Forum Herrenhäuser Markt, Hannover
Einem Stadtteil mit ca. 9 000 Bewohnern eine Mitte zu geben, die mit ihrem Nutzungsmix diesen Namen auch verdient, war wesentliche Triebkraft dieses Konzeptes: Zu zeigen, dass qualitativ hochwertiges Wohnen mit Blick auf die Stadtbahnhaltestelle möglich ist und einen Wert an sich darstellt, war uns wichtig. Wer kann von sich schon sagen, dass er im 50-Meter-Radius seinen täglichen Bedarf decken, zahlreiche Ärzte und den ÖPNV-Anschluss finden kann, ohne auf Privatsphäre und lärmgeschützte, individuelle Freiräume verzichten zu müssen? Auch für die übrigen 9 000 Herrenhäuser ist das Zentrum ein enormer Zugewinn an Lebensqualität in ihrem Stadtteil. DBZ Heftpaten ksw architekten + stadtplaner
70 Jahre prägte der größte Zivilschutzbunker von Hannover das Gebiet am Herrenhäuser Markt, nicht weit entfernt von den berühmten Barockgärten. Im Sommer 2013 kaufte die Wohnungsgenossenschaft Herrenhausen – kurz WGH – den Betonkoloss für einen symbolischen Euro von der Stadt, mit der Auflage, ihn abzureißen. Damit begann die dritte und letzte Bauphase für das neue Stadtquartier in Hannovers Norden nach den Plänen der Architekten kellner schleich wunderling.
Von den Anfängen ...
„Bereits zur Jahrtausendwende hatten wir mit ersten Planungen für einen Gemüsehändler begonnen, der sein Geschäft am Herrenhäuser Markt hatte“, erinnert sich Architekt Lutz Schleich. „Diese Planungen zogen sich über mehrere Jahre. Weil der Händler das Projekt nicht mehr allein finanzieren konnte, übernahm die Wohnungsgenossenschaft Herrenhausen und stellte es 2008 fertig.“ Zu dem Zeitpunkt fristete hinter dem neuen Geschäftshaus am Herrenhäuser Markt eine Ladenzeile aus den 1950er-Jahren ihr Dasein, die auch der Wohnungsgenossenschaft gehörte. „Wir schlugen der WGH in einer ersten Studie vor, die Ladenzeile mit Containern aufzustocken“, beschreibt Schleich den Beginn der zweiten Planungsphase. „Als die WGH feststellte, dass die Mietverträge für die Ladengeschäfte zeitnah auslaufen würden, konnten wir für den Abriss der Ladenzeile plädieren und einen wesentlich verdichteteren Neubau vorschlagen, der das Potential für eine richtige Stadtteilmitte hat“. Fünf Jahre später stand das so genannte Forum Herrenhäuser Markt 1.0 mit zwei großen Einzelhandelsflächen im Sockel und drei darüber liegenden Riegeln mit Wohnungen, Praxen und Büros.
Wohnen statt Bunker
Doch an der Hauptfront des Gebäudeensembles entlang der Herrenhäuser Straße stand nach wie vor der Hochbunker. Viele Menschen aus der Nachbarschaft waren mit dem Koloss aufgewachsen und, vor allem die älteren, verbanden mit ihm Erinnerungen an die Bombennächte im Zweiten Weltkrieg. Um alle mitzunehmen, wurde von der Agentur tabasco media eine Ausstellung zur Geschichte des Bunkers konzipiert und eine große Abrissparty organisiert. Beides wurde schon im Vorfeld von der Lokalpresse aktiv begleitet. Architektin Karin Kellner ist überzeugt: „Man muss die Leute mitnehmen. Diese Aktion beweist, wie wichtig die Einbeziehung der Öffentlichkeit ist.“ Danach begann der eigentliche Abriss.
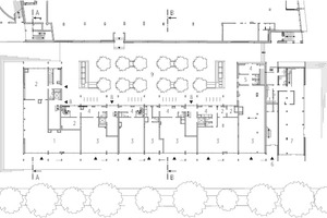
Nun steht an der Stelle des Bunkers entlang der Herrenhäuser Straße ein vier- bis fünfgeschossiger Neubau in der gleichen, klaren Formensprache wie die der beiden vorherigen Bauabschnitte. Im Erdgeschoss befinden sich sechs kleinere Gewerbeeinheiten, u. a. ein Reisebüro, ein Optiker, ein Eiscafé und die „Lieblingsbar“. In den oberen Geschossen gibt es vier Büroeinheiten und 22 großzügig geschnittene Wohnungen. Sie werden über drei schmale Treppenhäuser vom Innenhof aus erschlossen. „Gerne hätten wir die Treppenhäuser von der Straßenseite erschlossen. Doch die wirtschaftlichen Abwägungen des Bauherrn zugunsten von größeren Gewerbeflächen im Erdgeschoss hatten einfach Priorität“, betont Karin Kellner.
Wohnungen im Quartier
Der Wohnungsmix im neuen Stadtquartier ist vielfältig. Die Wohnungsgrößen reichen von ca. 45 m² (2 Zimmer-Wohnung im Forum 1.0) bis zu 210 m² (eine Wohnung in Süd-West Ecke 4.OG im Forum 2.0). Alle Wohnungen sind durchgesteckt, sie werden also von zwei Seiten (in 1.0 West/Ost, in 2.0 Süd/Nord) belichtet. Somit haben die Wohnungen immer eine ruhige und eine lebendige Seite bzw. eine Stadt- und eine Gartenseite.
Eckhard Wunderling ist überzeugt: „Für uns besteht das Wohnen in der Stadt immer aus der Teilhabe am öffentlichen Leben (und sei es nur der Blickkontakt mit anderen Menschen) und einem Rückzugsraum.“ Deshalb haben die meisten Wohnungen zwei unterschiedlich ausgerichtete Freisitze, entweder als Balkon, Terrasse oder Laubengang. Die Wohnungsgrundrisse sind barrierefrei geplant. Wohn-, Ess- und Kochbereich bilden meis-tens einen Raum und gehen ineinander über, nur wenige Küchen sind räumlich abgetrennt. Die Aufenthaltsräume der durchgesteckten Wohnungen werden über großflächige Verglasungen natürlich belichtet. Für diese bieten die vorgestellten Balkone (oder Laubengänge) aus Stahlbetonfertigteilen im Sommer Schatten. Auf der Südseite zur Herrenhäuser Straße unterstützen zusätzlich verschiebbare Lamellenwände den Sonnenschutz.
Menschliche Maßstäbe
Zur Planungsphilosophie von kellner schleich wunderling sagt Architekt Wunderling: „Die Regeln für zwischenmenschliche Kontakte bzw. die menschliche Wahrnehmung haben sich im Laufe der Zeit nur geringfügig verändert. Für uns sind sie essentiell, sie begrenzen die Höhenentwicklung der Gebäude und die Organisation der Wohnungsgrundrisse. So kann von einem auf einem Balkon stehenden Menschen nur bis zum dritten Obergeschoss ein auf der Straße Stehender als Individuum bewusst wahrgenommen werden. Deshalb ist die Nähe zur Straße oder zum Marktplatz für uns stets eine wichtige Größe beim Entwerfen.“
Im Forum 1.0 werden die Wohnungen über Laubengänge erschlossen. Sie laden zu Begegnungen und Gesprächen vor der Wohnungstür ein. Dieser halböffentliche Raum bietet zudem die Möglichkeit der Aneignung durch die Bewohner. Um ein Gefühl der Gemeinschaft entstehen lassen zu können,
ist es wichtig, dass der Abschnitt eines Laubenganges bzw. die Anzahl der darüber erschlossenen Wohnungen überschaubar bleiben.
Die Innenhöfe beider Bauabschnitte bilden als halböffentliche Räume den Gegenpart zu den öffentlichen Räumen des geschäftigen Marktplatzes oder der Herrenhäuser Straße. „Besonders beeindruckend ist dies bei einem Besuch am Samstagvormittag festzustellen“, äußert der Architekt begeistert. „Denn der sehr lebendige Wochenmarkt, der bereits seit dem Krieg dort jeden Samstag stattfindet, bildet dann den Kontrast zu den fast „paradiesischen“ bzw. „arkadischen“ Gärten der Innenhöfe, die wir als Bezug zu den Herrenhäuser Gärten verstehen.“
Konzept der kurzen Wege
Dass das Zentrum im Quartier sehr gut verkehrstechnisch angeschlossen ist, beweist nicht nur die Stadtbahnhaltestelle vor der Tür, sondern auch ein Blick in die Tiefgarage mit den Kundenparkplätzen für die Einzelhandelsmärkte: Sie ist nahezu leer. Der ganze Komplex ist barrierefrei erschlossen. Um Anlieferungslärm zu vermeiden, fahren die Lkws in den Sockel und liefern im Gebäude an.
In einem der Wohnriegel ist eine Wohnanlage für betreutes Wohnen. Sie umfasst vor allem 2-Zimmer-Wohnungen zwischen 50 bis 60 m² Größe, aber auch zwei größere Einheiten als 3-Zimmer-Wohnungen mit 92 m². Es gibt einen Concierge-Service rund um die Uhr als Anlaufpunkt für alle Mieter. Ebenso betreibt die WGH einen Mietertreff, der für Gemeinschaftsveranstaltungen oder Familienfeiern genutzt werden kann.
Multifunktionales Quartier
Das neue Stadtquartier bildet ein multifunktionales Quartier der kurzen Wege. Wohnungen, Büros, Kanzleien, Arztpraxen, kleinteiliger Einzelhandel und auch großflächiger Einzelhandel sind hier vertreten zur Grundversorgung der Mieter innerhalb des Quartiers. Darüber hinaus stellt das Quartier einen wichtigen Bestandteil, Anlauf- und Versorgungspunkt für den Stadtteil Herrenhausen dar. Eckhard Wunderling stellt fest: „Der Blick in die spärlich belegte Tiefgarage und den gut funktionierenden Einzelhandel zeigt, dass die Kunden aus dem Quartier und dem Stadtteil kommen.“ Karin Kellner ergänzt: „Und wir haben hier niemanden verdrängt.“ Wo der Hochbunker einst den Herrenhäuser Markt prägte, hat der Stadtteil seine neue Mitte gefunden. Susanne Kreykenbohm, Hannover
Baudaten
Objekt: Forum Herrenhäuser Markt 2.0 – zweiter Bauabschnitt
Standort: Herrenhäuser Straße 74 – 78, 30419 Hannover
Typologie: Wohn- und Geschäftshaus
Bauherr: WGH Herrenhausen eG, Hannover,
www.wgh-herrenhausen.de
Nutzer: Einzelhandel, Wohnen
Architekt: ksw architekten + stadtplaner gmbh, Hannover, www.ksw-architekten.com
Mitarbeiter (Team): Jörn Schinkel
Bauleitung: Kiepke + Neumann Architektur GmbH, Hannover, www.kiepke-architektur.de
Generalunternehmer: Muntebau GmbH, Hannover, www.munte-bau.de
Bauzeit: August 2015 – Mai 2017
Fachplaner
Tragwerksplaner: Drewes + Speth, Beratende Ingenieure, Hannover, www.drewes-speth.de
TGA-Planer + Energieberater: GMW-Ingenieurbüro GmbH, Hannover, www.g-m-w.eu
Akustikplaner: GTA Gesellschaft für Technische Akustik mbH, Hannover, www.gta-akustik.de
Freianlagenplanung: ksw architekten + stadtplaner gmbh, Hannover, www.ksw-architekten.com
Vermessung: Rohardt Evensen ÖbVI, Hannover,
www.vermessung-hannover.de
Brandschutzplaner: HHP Nord/Ost, Braunschweig, www.hhp-nord-ost.de
Bodengutachter: K. H. Arndt, Gehrden,
Projektdaten
Grundstücksgröße: 2 200 m²
Grundflächenzahl: GRZ (I) = 0,5, GRZ (II) = 0,9
Geschossflächenzahl: GFZ = 1,9
Nutzfläche: 4 900 m²
Brutto-Grundfläche: BGF (R+S) = 6 645 m²
Brutto-Rauminhalt: BRI (R+S) = 22 210 m³
Baukosten (nach DIN 276):
Gesamt 300 + 400 brutto: 8,8 Mio. €
Gebäudehülle
U-Wert Außenwand = 0,15 W/(m²K)
U-Wert Fassadenpaneel = 0,31 W/(m²K)
U-Wert Bodenplatte = 0,19 W/(m²K)
U-Wert Dach = 0,10 W/(m²K)
Ug-Wert Verglasung = 0,85 W/(m²K)
Haustechnik
Das Gebäude wird über Fernwärme versorgt. Weitere Stichworte: Nachtauskühlung, passive Bauteilaktivierung, mechanische Fensterlüftung, Komfort-Wohnungslüftung
Hersteller
Dach: alwitra GmbH & Co. KG, www.alwitra.de
Fenster + Fassade: heroal – Johann Henkenjohann GmbH & Co. KG, www.heroal.de
Wand: Xella International GmbH, www.xella.com
Dämmung: Gerflor GmbH, www.gerflor.de
Sonnenschutz: ROMA KG, www.roma.de
Sonnenschutz/Blendschutz: Renson Ventilation & Sun Protection, www.renson.eu
Weiße Wanne: Wabos GmbH – Gesellschaft für Wasser- und Bodenschutzsysteme, www.wabos.de
Brandschutztüren/-tore: Hörmann KG,
www.hoermann.de
Sektionaltor: Jansen Holding GmbH,
www.jansentore.com
RWA-Anlage: ESSERTEC GmbH, www.essertec.de
