LKR Innovation House, Østbirk/DK
Was eigentlich machen wir mit unserem Gebäudebestand? Diese Frage stand am Anfang eines Umbauprozesses, bei dem das experimentfreudige Unternehmen Velux drei kalte Lagerhallen von Praksis Arkitekter in ein Innovationszentrum umplanen ließ. Daraus entstanden ist ein Showcase, wie Corporate Design alte Unternehmenswerte in die Zukunft überführen kann und dabei Platz für neue Räume und Ideen schafft.
Die Firmensaga will es, dass die Erschließung von ungenutzten Räumen zum Gründungsmythos der dänischen Velux-Gruppe gehört: 1941 erhielt Unternehmensgründer Villum Kann Rasmussen den Auftrag, Schuldächer mit Fenstern auszustatten, damit sie als weitere Klassenzimmer benutzt werden konnten. Was die Kinder an diesen stickigen Orten wirklich brauchten, war VEntilation und Licht (lat. LUX). Die Idee zum VELUX Dachfenster mit der ikonischen Kippfunktion war geboren. Schon 1942 meldete Kann Rasmussen ein Patent für seine Konstruktion an. Der Rest ist Geschichte.
Auf die Heldentaten der Vergangenheit wollte man sich im immer noch familiengeführten Imperium (rund 2,96 Mrd. Euro Umsatz im Jahr 2024) noch nie verlassen: Schon 1994 erkannte der Sohn des Firmengründers die Zeichen der Zeit und errichtete auf dem Firmengelände in Østbirk ein Kaltlager mit drei Hallen in Holzbauweise. „Damals war das ein gewagtes Experiment, da zu diesem Zeitpunkt kaum jemand Erfahrung mit Holzbauten in diesem Maßstab hatte“, erzählt Lone Feifer, Architektin und Leiterin für nachhaltiges Bauen in der Velux Gruppe. „Und so war es auch gemeint. Lars Kann-Rasmussen hatte bei einem Vortrag in Birmingham die Mahnung gehört, wer künftig nicht mit Holz plane, trage zum Untergang des Planteten bei und wollte mit den Lagerhallen seinen Teil zur Entwicklung der Bauart beitragen.“
Vorher: Der Hallenkomplex auf dem Firmengelände wurde Mitte der 1990er-Jahre vom Sohn des Unternehmensgründers als experimenteller Holzbau in Auftrag gegeben
Foto: Adam Mork
Rohes Holz, warmer Kern
Handwerklichen Fügungen, großzügigen Dachüberständen und mineralischem Sockel sei Dank, überstand das unbehandelte Holz die nächsten 25 Jahre so unbeschadet, dass ein dänisches Fachmagazin ihm mit einem Gutachten bescheinigte, immer noch „gut dazustehen“. Experiment gelungen. Und nun? „Die Idee kam auf, einen Schritt weiterzugehen und den kalten Bau in einen warmen umzuwandeln, der die Werte des Unternehmens repräsentiert und die Experimentierfreude der Unternehmensgründer an die nächste Generation vermittelt“, formuliert es Lone Feifer. Ein Bestandsgebäude mit offensichtlichen Schwächen für die Büronutzung umzuwandeln sei wirtschaftlich sicherlich nicht die überzeugendste Idee gewesen. Aber letztlich habe der Wunsch überwogen, sich den aktuellen Bauaufgaben zu stellen und einen Umgang mit dem Existierenden zu finden, anstatt von Grund auf neu zu planen.
Nachher: Das LKR Innovation House verkörpert den alten Unternehmergeist,
schlägt aber gleichzeitig eine Brücke in die Zukunft des Unternehmens
Foto: Adam Mork
Flickenteppich mit System
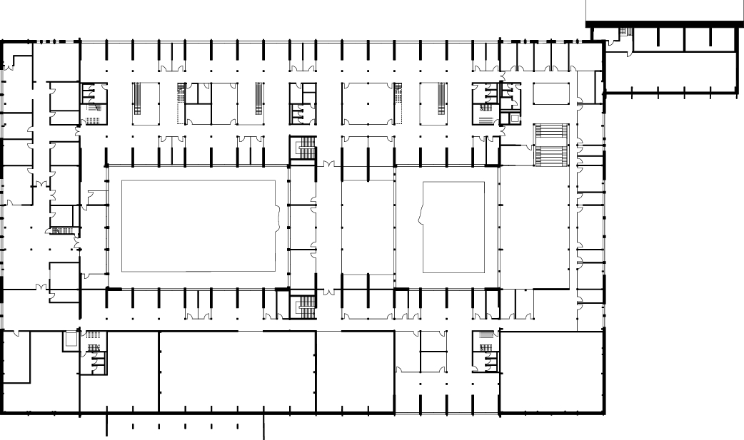
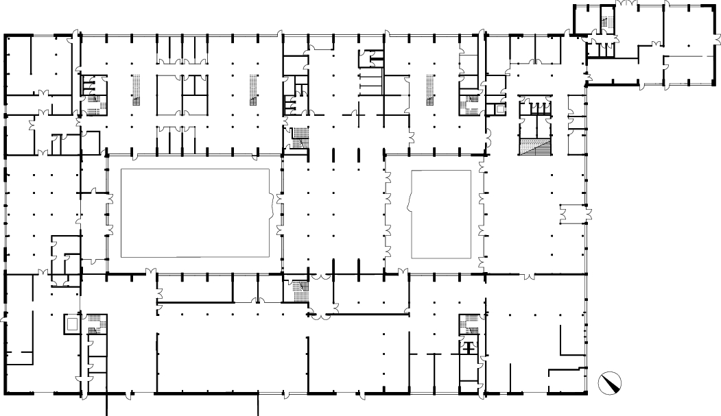
Nach einer anfänglichen Interviewrunde mit zehn Büros lud das Unternehmen vier Teams zu einem formellen Wettbewerb mit externer Jury ein. Praksis Arkitekter stellten sich hier schnell als klare Favoriten heraus, weil ihr Ansatz so simpel wie elegant den Markenkern von Velux auf den Punkt bringt: dunkle Räume mit natürlichem Licht und Frischluft fluten und damit verborgene Raumpotentiale erschließen. Vor allem bei den drei Hauptvolumen, den rund 140 m langen und zusammen 90 m breiten Lagerhallen, erreichten die Planerinnen das durch zwei Kniffe: große Ausschnitte für zwei begrünte Höfe in der mittleren Halle. Und ein Flickenteppich aus Velux Fenstern nach Art einer Petersburger Hängung in der Dachfläche. So einfach kann man schnöde Funktion, die schon im Ursprungsgebäude eine ganze Batterie von Oberlichtern übernahmen, in eine spielerisch leichte Produktpräsentation verwandeln. „So haben auch unsere Beschäftigten das Ergebnis ihrer Bemühungen immer vor Augen und es ist geplant, die Dachfläche weiterhin als Experimentierfläche für Neuentwicklungen zu nutzen“, erklärt Lone Feifer das Konzept.
Heller Empfang: Im Foyer ist unter anderem der Aufbau für Privatkunden untergebracht. Die Baumscheibe verbindet Innen- und Außenbereich miteinander
Foto: Adam Mork
Überzeugen statt beeindrucken
Anders als bei früheren Corporate Architekturen – man denke nur an den BMW-Vierzylinder von Karl Schwanzer in München oder das Lego Markenhaus von B.I.G. im dänischen Billund – geht es bei diesem Projekt weniger um die Außenwirkung als um die Binnenwirkung im Betrieb. Auch das ist Konzept: „Der Firmengründer Villum Kann Rasmussen hat einmal gesagt: Ein Experiment ist besser als tausend Expertenmeinungen. Wir benötigten einen Ort, an dem wir die Innovationskräfte von drei verstreuten Standorten bündeln konnten, um diesen alten Geist wieder aufleben zu lassen.“
Begrünter Innenhof: Durch die Dreiteilung des Mittelschiffs entstehen nicht nur neue Aufenthaltsqualitäten, sie bringt den sperrigen Lagerkomplex auch auf ein menschliches Maß
Foto: Adam Mork
Das LKR (Lars Kann-Rasmussen) Innovation House vereint daher zahlreiche Funktionen unter – je nach Zählweise – einem bis sechs Dächern: In der südlich gelegenen Teilhalle sind Werkstätten untergebracht, in der nördlichen Büroflächen nach der New Work-Philosophie mit zahlreichen unterschiedlichen Platzangeboten für Intensiv- und Gruppenarbeit, Versammlungen und Videokonferenzen. Hier finden auch Beschäftigte aus dem Personal- und Finanzwesen einen neuen Schreibtisch, wenn auch keinen „eigenen“, um den Austausch mit der Forschungs- und Entwicklungsabteilung zu befördern. Die ist im Wesentlichen im westlichen Gebäudeteil untergebracht und damit genau zwischen Werkhallen und Büros. Das Zentrum des Gebäudes bildet der Kantinenkomplex als Begegnungsraum für alle Gewerke. Der östliche Mittelteil schließlich wird als Foyer, Showroom, Galerie, Meetingraum und Lounge genutzt und gehört zu den öffentlicheren Räumen, ebenso wie das leicht versetzt vorgelagerte Forum, das für ganz ähnliche Anlässe genutzt wird. Explizit ohne Überdachung bleiben die beiden begrünten Innenhöfe, die durch neu geschaffene Fensterfassaden im Mittelschiff einsichtig und zugänglich sind.
Baumaterial-Recycling am Limit
„Da das LKR auf unserem Firmengelände liegt, sind regelmäßige Kundenbesuche eher nicht zu erwarten. Dennoch funktioniert das Dach mit seinen zahlreichen Velux-Modellen aus unseren Commercial und Residential Serien wie ein Showroom, und auch für den privaten Sektor haben wir einen Aufbau, der unsere Produkte zeigt“, sagt Lone Feifer. „Denn wir verstehen uns als offenes Haus, das auch immer wieder Besucher und Besucherinnen aus dem In- und Ausland empfangen will.“ In näherer Zukunft sei zum Beispiel geplant, dass ein ganzes Semester von Architektur-Studierenden aus Aarhus eine Exkursion in das Innovation House unternimmt, um sich vor Ort zu informieren und eigene Studien anzustellen.
Tüfteln am Dachfenster der Zukunft:
Das LKR Innovation House bündelt die Kräfte von ehemals drei verschiedenen Standorten
Foto: Adam Mork
Was das Baumaterial-Recycling angeht, zieht Lone Feifer eine gemischte Bilanz: Zwar seien Balken, Böden, Wände und Fassadenverkleidungen zu einem Großteil einer neuen Verwendung im Gebäude selbst oder auf dem Firmengelände zugeführt worden – in manchen Fällen seien sie aber auch am dänischen Baurecht gescheitert: „So wollten wir zum Beispiel alte Betonteile für neue Wände und Aufzugschächte nutzen, konnten das aber nur für die Wände umsetzen. Für die Aufzugschächte war der statische Nachweis nicht erbracht. Also mussten wir sie neu gießen.“ Bei den zahlreich im Gebäude verbauten Radiatoren hätte Feifer gerne abgespeckt, um den Einsatz neuer Materialien zu begrenzen und die CO2-Bilanz zu verbessern. „Wenn wir wirklich mit dem Bestand arbeiten wollen, sollte ein Pullover mehr an besonders kalten Tagen schon zumutbar sein.“ Aber auch das ließ die Verordnungslage nicht zu.
Kältebrücken eliminieren
Immerhin konnte der alte Werkboden gerettet werden, in dem entlang der Außenwände ein 80 cm breiter Streifen ausgegraben und isoliert wurde. Und da die Heizenergie eine Wärmepumpe liefert, die ein eigenes Gebäude auf dem Firmengelände einnimmt, und der Strom aus einer werkseigenen PV-Anlage stammt, sei die Energiebilanz insgesamt noch besser als nur vertretbar. Insbesondere wenn man die Graue Energie in Betracht zieht, die bei Abriss und Neubau der Hallen freigesetzt worden wäre. Mit mineralischer und, wo immer möglich, Holzwolle-Dämmung in Dach und Außenwänden sowie dreifach-verglasten Fenstern ist das einstige Kaltlager heute ein behaglicher Ort, der sich dennoch zum Außenraum öffnet. Mehr als 400 Velux-Fenster in Dach und Fassade versorgen den Komplex zentral und abschnittsgesteuert mit Licht und Frischluft. „Teil des Konzepts, mit dem sich Team Praksis beworben hat, war zudem die Landschaftsgestaltung um das Gebäude. Mit der Besonderheit, dass die Landschaft nicht nur um und zwischen den Gebäudeteilen gestaltet wurde, sondern sich auch durch die Räume zieht“, sagt Lone Feifer. Dazu wurde im Foyer eigens eine Baumscheibe aus dem Werkboden geschnitten. Immer wieder tauchen im Gebäude Bäume in großen Pflanzmöbeln auf. So verzahnt die Vegetation nun optisch Innenräume, die begrünten Innenhöfe und den nördlich gelegenen, öffentlich zugänglichen Park miteinander. Als Willkommensgeste umschmeicheln außen weitere Baumscheiben, geschwungene Wege und Pflanzungen das LKR, was die monumentale Klotzigkeit des Ursprungsbaus deutlich entschärft.
Produktkatalog mal anders: Auch für die Präsentation der eigenen Ware ist das LKR Innovation House bestens gerüstet
Foto: Adam Mork
Was bringt ein solcher Bau für das Unternehmen? Neben Prestige, zum Beispiel durch die Veröffentlichung in Fachzeitschriften, auch eine gewisse Sichtbarkeit im Markt. Die ist heute allerdings deutlich anders motiviert als zu Zeiten des Vierzylinders. Man könnte sagen: Statt auf Wow-Effekte zu setzen sind Unternehmen wie Velux heute eher daran interessiert, als modern, zukunftsoffen und verantwortungsbewusst wahrgenommen zu werden. Und nicht zuletzt konnte das Unternehmen in diesem Prozess auch lernen, was Architekten und Bauingenieurinnen umtreibt, die sich mit den Themen Reduce, Reuse und Recycling beschäftigen. „Das war eine steile Lernkurve für uns. Und nach vier Jahren Bauzeit kann ich sagen: Hätten wir noch ein halbes Jahr mehr Zeit gehabt hätten, hätten wir sicher noch mehr alte Substanz wiederverwenden können“, sagt Lone Feifer. „Aber man muss realistisch bleiben. Irgendwann sind das Zeit- und Kostenbudget aufgebraucht und dann muss man sich mit Kompromissen zufriedengeben, die man beim nächsten Mal nicht mehr eingehen würde. Auch das gehört zum Experiment.“ ⇥Jan Ahrenberg/DBZ
Die neue Glasfassade bringt viel zusätzliches Licht in die tiefen alten Lagerhallen
Foto: Adam Mork
Velux Group
Lone Feifer
www.velux.de
Foto: Stamers Kontor
Projektdaten
Objekt: VELUX LKR Innovation House
Standort: Østbirk/DK
Typologie: Büro, Produktion
Bauherr: VELUX Gruppe
Nutzer: 500 Beschäftigte Velux DK
Architekten: Praksis Arkitekter, www.praksisarkitekter.dk
Projektteam: Praksis Arkitekter, Sub-Consultant Søren Jensen, www.sj.dk, BRIQ, www.briqgroup.com, DetBlå Landskab,
www.somdetblaa.dk
Generalübernehmer: KG Hansen, www.kgh.dk
Bauzeit: Feb. 2023 bis Mai 2025
Grundstücksgröße: 20 000 m²
Brutto-Grundfläche: 14 000 m²
Fachplanung
Statik: Søren Jensen
HKL: Søren Jensen
Energieplanung: Søren Jensen
Innenarchitektur: BRIQ, Holmriss B8, www.holmrisb8.com, Spant Studio Architects, www.spantstudio.dk, FRIIS & MOLTKE Design, www.friis-moltke.dk/design, KASPER MOSE
Tageslichtplanung: Oculight, www.oculightdynamics.com
Landschaftsarchitektur: DetBlå Landskab
Energie
Energiebedarf: 38,6 kWh/m² a
Energiekonzept: Das Gebäude verfügt über ein intelligentes natürliches Belüftungssystem, das von 400 WindowMaster WMX 804 Kettenantrieben gesteuert wird, die zentral und zonengesteuert über MotorLink betrieben werden. Dies gewährleistet eine bedarfsgerechte Frischluftzufuhr das ganze Jahr über. Mehr als 400 Velux-Dachflächenfenster bringen Tageslicht in das Gebäude, reduzieren den Bedarf an künstlicher Beleuchtung und unterstützen das passive Raumklimamanagement. Darüber hinaus wird die bestehende Gebäudestruktur erhalten und thermisch optimiert – Dämmung, Innenrenovierung und Oberlichter tragen zu dem sehr niedrigen grauen CO2-Fußabdruck von nur 4,6 kg CO2e/m2/Jahr bei.
U-Werte Gebäudehülle:
Neue Außenwand = 0,19 W/m,²K
Bestehende Wand = 0,20 W/m²K
Bodenplatte = 0,27 W/m²K
Neues Dach = 0,11 W/m²K
Bestehendes Dach = 0,17 W/m²K
Fenster = 0,8 - 1,4 W/m²K
Nachhaltigkeit: 56,5 % Material wurde im Vergleich zu einem Neubau gespart.
CO2-Fußabdruck: 4,6 kg CO2e/m2/Jahr (Grenzwert für 2029: 6,1 kg CO2e/m2/Jahr)
Hersteller
Dachfenster: VELUX, www.velux.de
Fassadenfenster: Krone, www.kronevinduer.dk
Decke: Troldtekt, www.troldtekt.dk
Boden: Forbo Flooring, www.forbo.com
Bodenbelag: Forbo, www.forbo.com
Dämmung: Isover, www.isover.de
Sonnenschutz: VELUX, www.velux.de
Türen: Krone, www.kronevinduer.dk
Tore: Dansk Portindustri, www.danskportindustri.dk
Rauchabzug: VELUX, www.velux.de
Wärme: Fenagy, www.fenagy.dk
Belüftung: Iv produkt, www.ivprodukt.dk
Zugangssystem: Nedap, www.nedapsecurity.com
Sicherheit: Axis, www.axix.com
Sanitär: Frost, www.frostdenmark.com
Trockenbau: Fermacell, www.fermacell.dk/dk
