Katajanokan Laituri, Helsinki/FI
Finnland ist gesegnet mit Waldflächen und will in den kommenden Dekaden nicht nur klimaneutral werden, sondern seine CO2-Emisson ins Negative drücken. Dabei verwandeln sich Finnlands Wälder zu Gunsten eines auf nachwachsenden Materialien umschwenkenden Baugewerbes zusehends zu einem Rohstoff-Reservoir, auf das auch das Unternehmen Stora Enso zurückgreift. So auch für den Neubau der eigenen Unternehmenszentrale, dessen Hochbaukonstruktion zum größten Teil aus firmeneigenen Holzwerkstoffen besteht, was auch die aussteifenden Elemente betrifft. Atmosphärisch eindrücklich öffnet sich das Katajanokan Laituri dabei auch der Öffentlichkeit und leitet eine Erneuerung des Hafens von Helsinki ein.
Haben Sie eine Packung Milch im Kühlschrank, greifen beim Einkaufen zur Papiertüte oder Blättern gerne in Büchern und Zeitschriften? Dann liegt die Annahme nahe, dass Sie Produkte von Stora Enso nutzen. Das Unternehmen ist einer der größten Anbieter für erneuerbare Produkte in den Bereichen Verpackung, Biomaterialien oder Holzbau, einer der größten Waldbesitzer der Welt und blickt auf über 700 Jahre Unternehmensgeschichte zurück. Der Hauptsitz Stora Ensos befindet sich in Helsinki, was in diesem Zusammenhang wenig überrascht, denn kein europäisches Land hat mit ca. 75 Prozent seiner Landfläche einen so hohen Forstanteil wie Finnland. Ungefähr 60 Prozent dieser Forstflächen gehören dabei den Finninnen und Finnen selbst, ca. 25 Prozent dem Staat und ca. 14 Prozent Unternehmen und Organisationen. Entscheidend dabei ist, dass das jährliche Wachstum des finnischen Waldes die Entnahme seines Holzes übersteigt, womit der Wald nicht mehr nur Erholungsort ist, sondern auch Material- und CO2-Speicher sein soll.
Rechts im Bild der Neubau von AOA mit seinen vertikalen Fensterformaten. Ganz links, mit quadratischen Fenstern, der „Zuckerwürfel“ von Alvar Aalto, der zuvor als Hauptsitz von Stora Enso diente
Foto: Kalle Kouhia
Bessere Klimabilanz durch langfristige Berechnung
Das berichtet auch Antto Kauhanen, Sales & Business Development Manager bei Stora Enso. „Unsere Wälder werden regelmäßig ausgedünnt, damit die größeren Bäume besser wachsen können.“ Das bedeutet, dass kleine Bäume den großen, schneller wachsenden weichen müssen, was wiederum zu einem stärkeren Gesamtwachstum führt. „Hinzu kommt, dass für jeden Baum, den wir fällen, mehrere neue Bäume gepflanzt werden“ ergänzt Kauhanen und verweist darauf, dass Stora Enso von den gefällten Bäumen „so gut wie jede Faser nutzt“. Das gewonnene Rohmaterial wird dabei auch für Baumaterialien, wie beispielsweise Cross Laminated Timber (CLT) eingesetzt, für das Stora Enso einer der größten Hersteller weltweit ist. CLT wird auch für Stora Ensos Bausatz Sylva genutzt, der Wände, Decken, Dächer, Stützen, Treppen und Träger im Repertoire hat und entsprechend der Bauaufgabe maßgefertigt werden kann. Zudem bietet Stora Enso die Übernahme einer Baustellenplanung und -logistik an, was wiederum auf die Berechnung des sog. Life Cycle Assessment (LCA), der Lebenszyklusanalyse einzahlt, aus der dann eine Environmental Product Declaration (EPD) abgeleitet werden kann, die zur Nachhaltigkeitsberechnung eines Gebäudes genutzt wird.
Die Terrassen im 1.OG sind holzbeplankt mit dezenter Glasbalustrade und schließen mit einer Kante aus Granit ab. Grüninseln nehmen ebenfalls Bezug zur Umgebung und finden sich als ausgedehnte Fläche auf dem Dach wieder
Foto: Stora Enso / © Kalle Kouhia
Nachweis durch Selbstversuch
Hier setzt auch die Geschichte des Neubaus von Stora Ensos Hauptsitz, dem Katajanokan Laituri in Helsinki an, dessen Hochbau in weiten Teilen aus Holzbauteilen Stora Ensos besteht. Der Entwurf stammt vom finnischen Architekturbüro Anttinen Oiva Architects Oy (AOA) und ging als Sieger aus einem internationalen geschlossenen Architekturwettbewerb hervor. Bei dem Neubau handelt es sich aktuell um Finnlands größten Massivbau aus Holz, mit 23 000 m² Bruttogeschoss- und ca. 16 400 m2 Nutzfläche. Hinter der doppelschichtigen Glas- und Aluminiumfassade besteht der größte Teil der oberirdischen Konstruktion aus Holz, was auch die aussteifenden Elemente, wie Treppenhäuser oder Aufzugschächte einschließt. Durch diesen weitreichenden Materialeinsatz von Holz konnte während der Bauteilproduktion und Errichtung des Gebäudes die CO2-Emission um 35 Prozent im Vergleich zur herkömmlichen Bauweise aus Beton reduziert werden. Die für den Neubau verbauten Holzelemente haben während ihres Wachstums als Baum ca. 6 000 Tonnen CO2 eingelagert, was nach den aktuellen Berechnungen der CO2-Emission des Gebäudebetriebs in den nächsten 50 Jahren entspricht. Bemerkenswert ist an dieser Stelle, dass der Eigner des Neubaus, die finnische Pensionsversicherungsgesellschaft Varma, anstrebt, dass Gebäude für die nächsten 100 Jahre im Portfolio zu führen.
Der Lichthof, um dem sich die Geschäftsbereiche von Stora Enso versammeln, ist als Gemeinschaftsraum und informeller Besprechungsbereich gedacht. Neben den von AOA entworfenen Einbauten und Möbeln findet man auch den ein oder anderen Designklassiker aus der firmeneigenen Sammlung
Foto: Kalle Kouhia
2 000 Elemente in 171 Lieferungen in 7 Monaten
Die oberirdische Konstruktion besteht aus ca. 2 000 tragenden Holzelementen, die in 171 Just-in-time Lieferungen zur Baustelle gebracht wurden, wodurch die Bauzeit auf sieben Monate verkürzt werden konnte. Das Material der Wahl war dabei in großen Teilen eine Mischung aus Fichte und Esche, sowie CLT und LVL (Laminated Veneer Lumber), mit einer dezenten, mattweiß pigmentierten Wachsoberfläche, die vor einer zu schnellen Alterung und UV-Strahlung schützt und die natürliche Anmutung der Oberflächen erhält. Zum Einsatz kam diese nicht nur bei den Bauelementen (in diesem Falle aus Fichte), sondern auch bei den Einbaumöbeln (zumeist aus Esche), wobei AOA auch für die Innenarchitektur von Stora Enso und der Lobby zum Zuge kam. „Wir wollten so viel Holz wie möglich im Innenraum einsetzen, um das Raumklima, die Akustik und damit das Wohlbefinden der Nutzer und Nutzerinnen zu verbessern“ erläutert in diesem Zusammenhang Selina Anttinen, Gründungspartnerin von AOA.
Lageplan, M 1:10 000
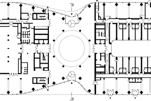
Grundriss EG, M 1:750
Vom Fischmarkt und Aaltos „Zuckerwürfel“
Der Neubau steht prominent an der Wasserkante von Helsinkis Hafenviertel Katajanokka und ersetzt ein Lagerhaus, das aus der Zeit der einst ausgeprägten Hafennutzung stammt. Da der Neubau auf eine angestrebte Neuplanung des gesamten Hafens zurückgeht, war der Vorgängerbau auch aus Hochwasserschutzgründen nicht haltbar, wobei ein Großteil der demontierten Bauteile weitergenutzt werden konnte. Der Neubau orientiert sich an der Länge seines Nachbarn, dem Alten Zollhaus und ist nur geringfügig größer als sein Vorgänger, wie Kauhanen auf Nachfrage bestätigt. Stora Enso residierte bereits zuvor in der Nähe, in einem von Alvar Aalto entworfenen Gebäude, das im Volksmund den Namen „Zuckerwürfel“ trägt. Dieser ehemalige Hauptsitz liegt direkt gegenüber dem ganzjährig geöffneten Fischmarkt Kauppatori und bildet das „Torgebäude“ zur Halbinsel Katajanokka. Stora Enso gab das Gebäude 2019 auf Grund von Platzmangel auf. Wegen der Nähe zum Wasser und dem Überflutungsrisiko durch Hochwasser wurde das UG, in dem Parkplätze und Technik untergebracht sind, in Beton ausgeführt und das EG-Niveau
ca. 3,5 m über der Wasserlinie angesetzt. Neben dem nötigen Beton im UG und dem Hauptmaterial Holz für den Hochbau kam zudem finnischer Granit zum Einsatz, der für die Außenbereiche, wie Zugangstreppen und Rampen, sowie als Bodenbelag genutzt wurde und sich bis in das Foyer des Gebäudes zieht. Auf diesem Sockel aus Granit steht ein rundum verglastes Erdgeschoss, darüber erheben sich drei Obergeschosse mit einer hellen, leicht geschwungenen und vertikal gerasterten Fassade.
Grundriss OG, M 1:750
Schnitt AA, M 1:750
Ein Foyer als Platz für Alle
Das Foyer wird von einem Innenhof belichtet, dessen kreisrunde Form mit einer ebenfalls kreisrund ausgeführten und von AOA entworfenen Sitzbank formal verstärkt wird. Der Innenhof wird von vertikalen Holzlamellen, die sich eng gestellt von der EG-Decke in den Lichthof ziehen, überhöht und mit einem Oberlicht abgeschlossenen. Von hier aus werden die Hauptfunktionen des Neubaus, die Hauptverwaltung Stora Ensos, ein Hotel sowie ein Restaurant und ein Konferenzbereich repräsentativ erschlossen. Hinzu kommen im Foyer eine Café-Bar und Außenterrasse mit Blick zum Hafen sowie der Zugang zur Dachterrasse samt gastronomischen Angebot, die ebenso wie das zentrale Foyer als öffentlicher Bereich gedacht sind. Der großzügig angelegte Empfangsbereich setzt u. a. auf den Blick nach draußen und bietet zudem Nischen zum Rückzug und für vertrauliche Gespräche. „Uns war die direkte Sichtverbindung zum benachbarten Alten Zollhaus aus Backstein und zur Geschichte des Ortes wichtig.“ erklärt Anttinen dazu. Die massiven abgestuften Holzstützen, von denen die äußeren auch die Fassadenlast abtragen und somit etwas massiger als die rund um den Innenhof gestellten ausfallen, stecken vier trapezförmige Nischen im Grundriss ab, in denen die Rezeption, jene Café-Bar sowie Warte- und Rückzugsbereiche untergebracht sind. „Wir wollten, dass die Stützen etwas Monumentales haben“, erzählt Anttinen und dass sie deshalb ein wenig dicker ausfielen, als es der Brandschutz vorgab. Dieser spielte auch für den viergeschossigen, runden Innenhof eine Rolle, da neben der flächendeckenden, verdeckten Sprinklerung eine Brandschutzverglasung im vierten Geschoss vorgesehen werden musste, um einen Brandüberschlag zu verhindern. Basierend auf Feuersimulationen wurden Brandschutzwände aus Holz eingebracht und das Gebäude zudem in Brandschutzabschnitte eingeteilt.
Halb Büro, halb Hotel
Ein weiterer, bis zur östlichen Stirnseite des Baukörpers durchgezogener Innenhof für die „Hotel-Hälfte“ ist witterungsoffen, extensiv begrünt und wird von zwei Zweibünden für die Gästezimmer gefasst. In der Stora Enso zugeschlagenen „Büro-Hälfte“ bleibt der Innenhof wiederum mit einem Oberlicht thermisch geschlossen. Um diesen als Pausen- und Gemeinschaftsbereich gedachten Innenhof sind auf den Längsseiten Büros angelegt, ebenso wie nach außen zur Fassade, wobei diesen innenliegende Nebenräume angegliedert sind. Größere Besprechungs- und Gemeinschaftsräume sind an der westlichen Stirnseite des Gebäudes mit Blick Richtung Innenstadt vorgesehen. Neben der angesprochenen Dachterrasse befinden sich im 1. OG zudem Balkone auf jener Stirnseite mit Blick Richtung Innenstadt sowie auf der Längsseite zum Hafen und auf der östlichen Stirnseite zwischen den beiden Hotelflügeln. Der für den Sockel verbaute finnische Granit wird im 1.OG auch für die Fensterbänke und Terrassenaufkantungen als Plattenmaterial genutzt, um aus dem „Piano Nobile“ einen optischen Materialübergang zum Sockel zu schaffen.
Fassadenschnitt, M 1:50
1 (Schall-)Dämmung mit Hinterlüftung
2 Fassadenprofil horizontal
3 Verkleidung Deckenpaket in der Fassade
4 Deckenplatte, CLT
5 Fassadenprofil vertikal
6 MSE Verglasung, innen
7 Fensterlaibung in der Fassade, Holz
8 Festverglasung außen
9 Fassadenelement vorgefertigt, LVL
10 Natursteinverkleidung, Granit
11 Träger, LVL
12 Abgestufte Stütze Erdgeschoss, LVL
13 Glasschwert
14 Festverglasung Sockel
Gelungener Auftakt für Helsinkis Hafen
Das Katajanokan Laituri spiegelt mit den großen Ambitionen des Bauherrn und Nutzers auch das ehrgeizige Ziel Finnlands in Sachen Holzbau und Klimaneutralität bis 2035 wider. Hinzu kommt die anstehende Neuplanung des Hafens, bei der auch die direkte Umgebung rund um den Neubau einbezogen wird. Dazu gehört der im September veröffentlichte Siegerentwurf für das Neue Museum für Architektur und Design, das vis-à-vis auf der anderen Seite des Hafenbeckens entstehen soll. Jetzt schon besuchbar ist der Allas Pool im Hafenbecken, der dem „Zuckerwürfel“ gegenüber angelegt ist und zum Schwimmen und Saunieren einlädt. Langfristig soll die Umgebung rund um Katajanokka, wie man über den stadteigenen Internetauftritt erfährt, zu einem atmosphärischen Hub für Kultur und Freizeit werden. Der elegante und helle Stora Enso-Neubau an der Wasserkante leistet in diesem Sinne einen gelungenen Beitrag, wobei die Reminiszenzen an die Aaltos, die in diesem Zusammenhang immer wieder auftauchen, nichts anderes als ein Kompliment an die Architektinnen und Architekten sind, die für den Entwurf verantwortlich zeichnen. Für die nun anstehende Gesamtplanung der Neugestaltung, die den Hafen für die Menschen öffnen möchte, ist die Messlatte damit hoch gelegt. Der Auftakt ist geschafft.
Hartmut Raendchen/DBZ
Projektdaten
Objekt: Katajanokan Laituri
Standort: Helsinki/FI
Typologie: Büro, Hotel, Gastro
Bauherr/Bauherrin: Varma Pensionsfonds,
Helsinki/FI, www.varma.fi
Nutzer/Nutzerin: Stora Enso Oyj, Helsinki/FI, www.storaenso.com; Sokotel, www.sokotel.fi
Architektur: Anttinen Oiva Architects Ltd.,
Helsinki/FI, www.aoa.fi
Team: Selina Anttinen, Vesa Oiva, Teemu Halme, Päivi Puukari, Heidi Antikainen, Fanni Suvila, Teija Tarvo, David Pfister, Katri Palojärvi, Kaj van der Puij, Aleksi Kraama, Henri Eväsoja, Antti Keskinen, Aaro Martikainen, Tomi Itäniemi, Jussi Kalliopuska
Innenarchitektur: Anttinen Oiva Architects Ltd. (Lobby, Café, Stora Enso Büros und Restaurant, Nebenräume), Franz Design (Hotel, Restaurant, Konferenzbereiche), Helsinki/FI, www.franz.fi
Generalunternehmung: Haahtela Project Management, Helsinki/FI, www.haahtela.fi
Bauzeit: 08.2020 – 08.2024
Zertifizierungen: LEED Platinum
Grundstücksgröße: 5 430 m²
Grundflächenzahl: 1,0
Nutzfläche gesamt: ca. 16 400 m²
Brutto-Grundfläche: 22 995 m²
Brutto-Rauminhalt: 119 170 m³
Fachplanung
Tragwerksplanung: Sweco Finland Ltd., Helsinki/FI, www.sweco.fi
TGA-Planung: Granlund Ltd, Helsinki/FI,
www.granlundgroup.com
Lichtplanung: Granlund Ltd
Energieplanung: Granlund Ltd
Energie
U-Werte Gebäudehülle:
Außenwand: 0,24 W/(m²K)
Bodenplatte: 0,14 W/(m²K)
Dach: 0,09 W/(m²K)
Fenster (Uw): <1,0 W/(m²K)
Verglasung (Ug): <0,7 W/(m²K)
Herstellerfirmen
Holzbauteile/CLT: Stora Enso
FSH: Punkaharjun puutaito, www.puutaito.fi
Trennwände: Vitrea, www.vitrea.fi
Gründach: Viher-Pirkka, www.viherpirkka.fi
Fassade/Glasdach: HAKA pks, www.hakapks.fi
Innenausbau: Raision Puusepät, www.raisionpuusepat.fi, Merianto Install, www.merianto.com, Kaluste-kolmio, www.kalustekolmio.fi
Möbel: Nikari, www.nikari.fi, Artek, www.artek.fi, Lepo, www.lepoproduct.fi, Yrjö Kukkapuro, www.yrjokukkapuro.com
Naturstein: Loimaan Kivi, www.loimaankivi.fi
Glaskunst: Baiba Glass, www.baibaglass.com
