Haus im Garten, Gockhausen/CH
Unterhalb des Tobelhofs an der gleichnamigen Straße ist es laut: Von und nach Zürich fahren hier auf einer Hauptstraße Pkw, Lastwagen und Busse. Der Straßenlärm strapaziert das landschaftliche Idyll und doch ist es bei einem jüngst fertiggestellten Projekt gelungen, das Beste aus der anspruchsvollen Lage zu machen: Loeliger Strub haben auf einem spitz zulaufenden Hanggrundstück in einem einzelnen Gebäude einen Wohnort für 14 Parteien geschaffen.
Die Bullaugen bringen Licht und Luft in die kleinen WCs in den aus Beton gefertigten, aussteifenden Kopfseiten des Gebäudes
Foto: Loeliger Strub Architektur
Dort, wo die Bauherrin früher das Restaurant „Roter Kamm“ betrieb und der lauschige Platz unter der alten Kastanie den Gästen Schatten bot, ist gemeinschaftliches Wohnen und Gärtnern eingezogen. Die Lage an der Straße haben die Architektinnen und Architekten zum Entwurfsthema gemacht: Da sich die Tiefgarage auf Straßenniveau befindet und sich als Untergeschoss mit Kellern und Nebenräumen nach Westen in den Hang eingräbt, liegt die erste Wohnetage bereits deutlich oberhalb der Straße. Der Vorplatz und damit Auftakt zum Wohnhaus befindet sich auf der Westseite des Riegels, eine verbliebene Stampflehmmauer aus früheren Zeiten und üppige Büsche säumen den Eingang dazu. Dreigeschossig ist die aus Beton konstruierte Struktur, der straßenseitig eine schmale Arkade vorgelagert ist, die mit der Zeit immer mehr von Grün umrankt werden wird.
Um den Gemeinschaftsbereich großzügiger wirken zu lassen, ist statt einer Wandscheibe eine einzelne, skulptural geformte Stütze unter den flachen Unterzug gesetzt
Foto: Seraina Wirz
Betoneinsatz, den Aufgaben entsprechend
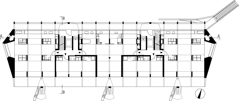
Die drei Geschosse hohen Stützen, die als Fertigteile auf die Baustelle kamen und zwischen denen sich die Rankhilfen spannen, sind imposant: Sie verbreitern sich nach oben, gehen nahezu rechtwinklig zum Gebäude und in die zuoberst aufliegenden Dachträger über, die auf der Gartenseite mit einem kleinen Fortsatz den Dachvorsprung stützen. Insgesamt 15 dieser Träger sind im Raster von 3,20 m auf der Länge des Skelettbaus gesetzt. Ihre Lasten werden über jeweils drei stützende Wandsegmente in der Gebäudetiefe ins Fundament geleitet. „Die linearen Bestandteile der Tragstruktur, das heißt die Unterzüge, die tragenden Stützen und die Filigrandeckenelemente, sind vorfabriziert worden“, erklärt die projektleitende Architektin Fanni Müller. „Die spezielleren Bauteile, die etwas plastisch geformt sind, haben wir hingegen in Ortbeton erstellen lassen.“ Je nach Raumsituation sind die Unterzüge auch einmal neben den Wandscheiben platziert. In den Wohn- und Essbereichen stehen die Scheiben auf den Außenseiten der Unterzüge, sodass der Wohnraum etwas großzügiger wird und die Schiebeelemente auf der Seite des Wohnzimmers liegen. Dort, wo sich ein Raum über zwei Achsen aufspannt – also zum Beispiel im Gemeinschaftsraum oder in den Studiowohnungen südlich des Treppenhauses – liegt der Unterzug direkt auf den stützenden Wandelementen. Mit der Entscheidung, statt Stützen Scheiben auszubilden, richten Loeliger Strub die Wohnungen klar in Nord-Süd-Richtung aus, statt einen stützenbestandenen Allraum zu schaffen. Da die dienenden Schichten auf der Nordseite liegen, ist die Öffnung zur Veranda und zum Garten logisch – in den Wohnungen zieht es einen automatisch weg von der vorgelagerten Straße.
Die Einbaumöbel auf der Nordseite verbinden den Wohnbereich mit den Nebenräumen und der Küche. Die Raumfolge kann mit Schiebewänden und drehbaren Spiegeln unterbrochen werden
Foto: Seraina Wirz
Die Treppe als „Haus im Haus“
Von beiden Treppenaufgängen im Haus sind im Erd- und Dachgeschoss je zwei Wohnungen erschlossen, im ersten Obergeschoss sind es jeweils drei. Im Aufbau funktionieren sie alle ähnlich: An die frei im Raum stehenden Betonscheiben dockten die Architektinnen und Architekten Holz- und Leichtbau-Elemente an, die im Inneren mal zum Schrank, mal zum Gästebad werden. Auch im eigentlichen Badezimmer, das wiederum über Schiebeelemente von den angrenzenden Räumen getrennt wird, befinden sich Toilette und Waschbecken in einem solchen Element. Eine Besonderheit sind die Duschen, die Loeliger Strub in die skulptural ausgeformten Giebel setzten. Statisch ist das Haus über die Decken und über diese beiden aussteifenden Seitenfassaden zusammengebunden. „Wir wollten die geschliffenen Stufen monolithisch mit den Wänden verbinden, weshalb die Schallentkopplung auf der Innenseite der Wohnungen stattfindet“, so Müller. Die Wohnungsdecken kragen über die darunter stehenden Stützen und liegenden Unterzüge aus und sind lediglich über schall-entkoppelnde Randstellstreifen an diesen Kern angeschlossen. Da die Treppenhäuser somit keine aussteifende Funktion übernehmen können, nutzten die Planenden dafür die Stirnseiten des Gebäudes und bildeten sie skulptural aus. Während die dreieckigen Vorsätze auf der Gartenseite massiv sind, ist in ihre straßenseitigen Gegenüber eine kleine Nische eingeschnitten. Als spielerisches Detail kommt darin eine Dusche unter – zwar auf kleinem Raum, aber dank eines Bullaugenfensters mit weitem Blick in die Landschaft.
Zwei kleine, vorgelagerte Balkone, die direkt an das Treppenhaus angebunden sind, ermöglichen im Dachgeschoss hausinterne Treffen mit Ausblick
Foto: Seraina Wirz
Flexibel gestaltbare Innenräume
Mit der Reihung der Einbauten werden die Innenräume allseitig ähnlich, wenn nicht gleich. Die Bewohnerinnen und Bewohner können selber entscheiden, ob die unter den Unterzügen verschiebbaren Tapetentüren Räume trennen oder gar abschließen sollen oder ob der gezielte oder freie Einblick gewünscht ist. Die vorfabrizierten Betonscheiben und Beton-unterzüge geben, wie es die Architektinnen und Architekten ausdrücken, lediglich den Takt der Wohnungen vor. Die Nutzenden können mit den Schiebeelementen die Wohnsituationen orchestrieren – und so genauso ein Raumkontinuum wie auch eine Abfolge einzelner Zimmer schaffen. Die Bauherrin, die mit dem Projekt besonders auch jene ansprechen wollte, die nach einer Zeit im Einfamilienhaus eher wieder in Gemeinschaft wohnen wollen, weiß aber, dass solches Wohnen nicht für alle passt: „Mit Kindern kann man hier zwar auch wohnen, aber auf lange Sicht werden einer Familie mit Teenagern die Rückzugsmöglichkeiten fehlen“, so Irma Peter.
Raum für die Gemeinschaft mitplanen
Peter befasste sich als private Investorin genau mit ihrer Mieterschaft und ließ ein paar Besonderheiten einbauen: Statt im Erdgeschoss zwei weitere Wohnungen einplanen zu lassen, ist die Gebäudemitte zwischen den Treppenhäusern der gesamten Mieterschaft gewidmet. Zur Straße orientiert sind eine Gemeinschaftsküche, ein großes Badezimmer und die Waschküche – aber auch ein Kaminzimmer mit einem Sofa und Sesseln vor der Feuerstelle, an deren abgewinkelter Front sich wiederum die Handschrift von Loeliger Strub findet. Im Gemeinschaftsraum zeigen sich ähnliche Gestaltungsthemen wie in den Wohnungen, nur sind sie hier etwas opulenter ausformuliert. So ist auch der Riemenboden aus Douglasie, der bereits in den Wohnungen zu finden ist, hier zum Ornament gelegt und überzieht den Boden bis zur Gartenseite. Dort lassen sich die raumhohen Glastüren statt nach innen zur Terrasse hin öffnen, wodurch der vorgelagerte Sitzbereich den Raum erweitern kann. Die untere Terrasse, aber auch die großzügigen Veranden in den Obergeschossen ziehen sich vor den Wohnungen durch und spannen sich über die ganze Länge des Hauses auf. Lediglich Vorhänge und die entsprechenden Schienen lassen erkennen, wo die Wohnungen enden.
Freude an überraschenden Details
Von ganz oben bis hinunter in den Garten führen über die Länge drei skulpturale Treppen in den Garten, die an Sprungtürme erinnern. Die Form der mal dunkelblauen, mal weißen Geländer macht es einfach, hier einen maritimen Kontext und die Decks von einem Schiff zu erahnen. Inwieweit diese Anspielung dort oben, zwischen Zürich und dem nahen Flughafen passt, mag wohl jede und jeder selber entscheiden. Am Wohnhaus führt der Sprungturm ins gemeinsame Grün, durch das mehrere kleine und große Wege hinauf zur Kastanie und zu den höher gelegenen Pflanzbeeten führen.
Der Rückblick auf das Gebäude erstaunt, denn im Inneren fühlt es sich weit weniger voluminös an, als man es in seiner Gesamtheit wahrnimmt. Das mag an der flexiblen Öffnung der Wohnungen, der immer wieder überraschend auftretenden Farbigkeit oder auch an einzelnen, mit einem Augenzwinkern gesetzten Details liegen. Für die Bewohnenden scheint das Konzept des gemeinsamen Alleinwohnens gut zu funktionieren und die Möglichkeit, eine 14 Parteien umfassende Gemeinschaft zu erleben, bereichernd.
Katinka Corts
Projektdaten
Objekt: Haus im Garten
Standort: Tobelhofstraße 240/242, 8044 Zürich/CH
Typologie: Mehrfamilienhaus
Bauherrschaft: privat
Nutzung: privat (Mietwohnungen)
Architektur: Loeliger Strub Architektur, www.loeligerstrub.ch
Team: Fanni Rea Müller (PL), Lucien Villiger (Stv. PL), Johannes Walterbusch, Corinne Liebi, Yves Rechsteiner, Sofie Unger, Thomas Rutishauser
Bauleitung: Baumanagement Wild GmbH, www.bm-wild.ch
Bauzeit: 10.2020–07.2023
Grundstücksgröße: 2 523 m²
Nutzfläche ges.: 2 006 m²
Nutzfläche: 1 226 m² (HNF) + 596 m² (NNF)
Technikfläche: 30 m²
Verkehrsfläche: 154 m²
Brutto-Grundfläche: 2 459 m² (Grundfläche total, inkl. UG)
Brutto-Rauminhalt: 7 448 m³ (Gebäudevolumen total, inkl. UG)
Fachplanung
Tragwerksplanung: dsp Ingenieure + Planer AG, www.dsp.ch
TGA-Planung: EHV-Technik AG, www.ehv-technik.ch
Akustik: Bakus Bauphysik & Akustik GmbH, www.bakus.ch
Landschaftsarchitektur: Matthias Brück, Permatur, www.permatur.org
Energieplanung: BS2 AG, www.bs2.ch
Beratende Ingenieure: Scherler AG, www.scherler.swiss
Bauphysik: Bakus Bauphysik & Akustik GmbH
Farbgestaltung: Andrea Burkhard
Energie
U-Werte Gebäudehülle:
Außenwand: U = 0,15 / 0,2 W/(m²K)
Dach: U = 0,13/0,17 W/(m²K)
Fenster: Uw= 0,9 W/(m²K)
Haustechnik: dachintegrierte PV/PVT-Anlage in Kombination mit Erdwärmesonden
Hersteller (Auswahl)
Beleuchtung: Osmont, www.osmont.cz,
Bega www.bega.com
Dach: Swisspearl, www.swisspearl.com
Sonnenschutz: Storama AG, www.storama.ch
Wärmedämmung: Dietrich Isol, www.dietrich-isol.de
