W Hotel Prag, Prag/CZ
Wie baut man ein Jugendstil-Hotel weiter? Mit dem W Hotel Prag, Teil der exklusiven Hotelkette W Hotel von Marriott, bieten Chapman Taylor und AvroKO eine Antwort, indem sie die Gäste in eine psychedelische Zauberwelt entführen. Die protzt mit einer Formen- und Farbenvielfalt und lässt die Besucher vergessen, dass wir inzwischen im 21. Jahrhundert angekommen sind.
Die Idee des Gartens wurde auf dem beengten Grundstück durch die mit unterschiedlichsten Pflanzen begrünten Seitenwände umgesetzt
Foto: Eric Laignel
Das Ende 2024 eröffnete W Prag befindet sich im seit 1958 unter Denkmalschutz stehenden „Hotel Evropa“ am geschichtsträchtigen Wenzelsplatz unweit der Kreuzung mit der Vodičkova- bzw. der Jindřišská-Straße. Chapman Taylor wurden 2021 vom Hoteleigentümer Ferid Nasr mit der Restaurierung, Generalsanierung und dem Umbau des historischen Bauwerks beauftragt. Gleichzeitig koordinierten sie, in enger Zusammenarbeit mit den Innenarchitekten von AvroKO, die Instandsetzung, Modernisierung und funktionale und technische Neugestaltung aller Innenräume im hofseitigen Zubau.
Als Chapman Taylor das Gebäude übernahmen, stand es bereits seit einiger Zeit leer und befand sich daher in einem schlechten Zustand. Es hatte vor allem unter den zahlreichen unsachgemäßen Umbauten gelitten, durch die sowohl die Inneneinrichtung als auch die architektonische Integrität als Gesamtes erheblich beeinträchtigt worden waren.
Funktionelle Einteilung: Die denkmalgeschützte Jugendstilfassade am Wenzelsplatz ist in einen Sockelbereich und eine hellgelbe Putzfassade der Obergeschosse unterteilt, hinter der sich die Hotelzimmer verbergen
Foto: Jiri Lizler
Denkmalgeschütztes Grand Café
Ein Großteil des Interieurs des platzseitigen Jugendstilgebäudes, namentlich des Grand Cafés, ist denkmalgeschützt. Angesichts der notwendigen Anpassungen an den gewünschten Komfort und an zeitgenössische Sicherheitsvorschriften waren spezifische technische Lösungen von Planern und Planerinnen sowie Handwerksbetrieben erforderlich: Elektro- und Wasserinstallationen mussten angepasst und erneuert, Brandmeldeanlagen, Sprinkler, Lüftungsinstallationen und Lifte neu eingebaut werden – ohne dabei die bestehenden Plafonds und das Mauerwerk, wie beispielsweise den vielerorts verwendeten gespachtelten Stucco Veneziano zu zerstören.
Das Erdgeschoss spielt für die Sichtbarkeit und Wahrnehmung eines Hotels eine zentrale Rolle. Umso auffälliger ist es, dass der eigentliche Hoteleingang und die Lobby des W sehr diskret und im Straßenraum kaum sichtbar sind. Die Straßenfassade wird vielmehr von den drei doppelgeschossigen Fenstern des Restaurants „Le Petit Beefbar au Grand Café” dominiert, das sich rechts vom Hoteleingang befindet.
Bronzefarbene Möbel, Lampen und Metallvorhänge verbreiten im AWAY-Spa-Wellnessbereich einen Hauch von Luxus, der durch anthrazitfarbene Keramikfliesen sowie bronzefarben schimmernde Spachtelputze ergänzt wird
Foto: Eric Laignel
Tageslicht flutet das Café durch die hohen Fenster. Das Mezzanin ist über eine Treppe im hinteren Teil des Restaurants erreichbar und wird im Zentrum durch eine ovale Öffnung durchbrochen, die dem Raum Eleganz und Größe verleiht. Projektarchitektin Pavla Doležalová erläutert, dass alle Einrichtungsgegenstände überarbeitet, ergänzt und an die technischen Standards angepasst werden mussten. Die originalen Marmorböden und Wandverkleidungen, die Holzvertäfelungen und Geländer sowie die Tür- und Fenstergriffe wurden restauriert oder erneuert und die Stuckarbeiten am Plafond instandgesetzt und ergänzt.
Die Wandbänke wurden mit glänzend goldenen Stoffen gepolstert – als Reminiszenz an Prag, die „Goldene Stadt“. Viele der Möbel, Tische und Servicetische wurden neu entworfen. Der ursprüngliche Tresen wurde beidseitig verlängert, mit Glasvitrinen ergänzt und mit gebürstetem Messing verkleidet. Die Tische an den bogenförmigen Straßenfenstern des Mezzanins und der private Speisesaal im hintersten Teil des Cafés bieten intimere Sitzgelegenheiten, während die um das Oval zentrierten Tische spannende Blickbeziehungen ins Innere und auf die Straße bieten.
Die von Chapman Taylor entworfene WOW-Duplex-Suite im historischen Bauwerk besticht durch ihr in knalligem Rot und Bronze gehaltenes Dekor, das sich in seiner Material-, Farb- und Motivwahl am Jugendstil orientiert
Foto: Eric Laignel
Der Reichtum der Dekoration wird erst nach dem Betreten des Hotels sichtbar und mit jedem Schritt in die Tiefe des Gebäudeblocks begreifbar. Der erste Eindruck ist überwältigend. Man findet sich in einem Ambiente im Stil des Art Nouveau wieder, in dem die Steinböden und steinernen Wandverkleidungen, die Holzvertäfelungen und hölzernen Wandpaneele, die Beleuchtungskörper, die Stuckarbeiten bis hin zu den Möbeln eine perfekte Harmonie ausstrahlen. Auf die schlichte Rezeption, die sich im Wesentlichen auf zwei Pulte im Treppenhaus beschränkt, folgt eine Reihe von opulent dekorierten Salons und Séparées sowie ein Weinkeller.Das lichtdurchflutete und mit einem transluzenten Dach gedeckte Atrium des Altbaus, das sich über dem Empfang befindet, wird durch neu entworfene, zeitgenössische Kronleuchter und andere Lichtinstallationen betont. Die Läufer der Treppe und der Rundgänge, die zu den Zimmern führen, wurden im Stil des Art Nouveau mit satten Farben entworfen. Die verwendete Farbpalette orientiert sich im Allgemeinen an den ursprünglichen Farbtönen des denkmalgeschützten Gebäudes. Dazu gehören erdige Gelb-, Beige- und Terrakottatöne, Dunkelgrau sowie verschiedenste Grüntöne.
Minus One: die reich dekorierte Unterwelt des Hotels mit Cocktail-Bars in allen Stilen und für alle Sinne
Foto: Jiri Lizler
Zaubergarten als Leitmotiv
Das historische Jugendstilgebäude ist lediglich im Erdgeschoss mit dem hofseitigen Anbau über einen schmalen, aber hohen Gang verbunden. Als Leitmotiv für die Innenraumgestaltung wählten die Designer:innen den „Zaubergarten“. Diese Idee ruft Bilder von skurrilen, bezaubernden Landschaften hervor, die mit Elementen der Fantasie, Magie und Wunder gefüllt sind. Sie sind von Prager Legenden, Träumen sowie den fantastischen Welten aus Geschichten inspiriert. Neben diesem Motiv haben die Architekten vor allem die leuchtenden, satten Farben aufgegriffen, die letztlich Neugier und Lust auf Abenteuer wecken sollen.
In diesem Sinne wurde der Verbindungsgang von der Lobby zur W Lounge in ein sattes Tiefgrün getaucht. Auf der einen Seite wird er durch einen raumhohen, schweren Vorhang akzentuiert, der reich mit floralen und tierischen Motiven bestickt ist und von der Londoner Stickerei Studios Adam Ellis angefertigt wurde. Auf der anderen Seite wurden die Wände mit eigens entworfenen, halbrunden, glasierten Fliesen verziert. An mehreren Stellen wurden Mauerdurchbrüche in die benachbarte Küche gemacht und mit Bronzegittern verkleidet, die so perforiert sind, dass die Gäste in die Küche blicken können, ohne von den Köchinnen und Köchen gesehen zu werden.
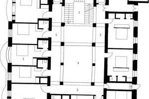
Altbau Art Nouveau, 3. OG, M 1 : 250
1 offene Treppe
2 gebäudehoher Luftraum
3 Standardzimmer
4 viergeschossiges Atrium
5 Rundgänge
Der Innenraum der ovalen W Lounge geht fließend in den Garten über, der den Rest des langgestreckten Grundstücks einnimmt. Er wurde mit Sitzecken und intimen Sitznischen, die um einige Treppen erhöht liegen, gekonnt gestaltet. Auf dem beengten Grundstück wurde die Idee eines Gartens in vertikaler Form umgesetzt, durch zahlreiche, dicht an den Wänden hochwachsenden Pflanzen. Sie findet sich auch in der Farbwahl der in verschiedenen Gelb- und Beigetönen sowie Grüntönen gehaltenen Sitzmöbel und Bänke wieder. Die Idee des Wassers und des Brunnens wurde wiederum in Form eines langgezogenen Beckens umgesetzt, das durch zahlreiche bronzefarbene Wasserhähne gespeist wird. Ein von dem tschechischen Maler Michal Škapa entworfenes, skurriles Wandgemälde im oberen Bereich der seitlichen Brandschutzmauer setzt die Illusion des paradiesischen Gartens auch für die Gäste in den oberen Hotelgeschossen fort.
Die Zimmer des Anbaus wurden nach denselben Prinzipien wie die des historischen Bauwerks ausgestattet. Während man sich im historischen Bauwerk für rotfarbene Teppiche in Anlehnung an die Farbe des Art Nouveau entschied, wurden in den Gästezimmern des Neubaus grünfarbene Teppiche verwendet. Gekrönt wird der Neubau durch eine Dachterrasse mit Dachbar, von der aus sich ein 180-Grad-Blick über die Prager Altstadt und die umliegenden Hügel bietet.
Nach den üppig dekorierten Gemeinschaftsräumen wirkt die Einrichtung der Zimmer erfrischend ruhig. Insgesamt konnten im Hotel 161 Gästezimmer arrangiert werden, 23 davon als Suiten. Im Allgemeinen befinden sich die größeren Zimmer im hofseitigen Gebäude. Die Standardzimmer sind etwa 32 m2 groß. Die Gäste können auch die Fantastic-, Marvelous- oder WOW-Suiten wählen, die in Größe und Ausstattung variieren, sich aber im Allgemeinen durch einen eigenen Wohnbereich, eine zusätzliche separate Toilette oder durch mitunter freistehende Badewannen auszeichnen. Die Krönung bildet die WOW-Duplex-Suite mit ihrem in knalligem Rot und Bronze getauchten Dekor, die im historischen Bauwerk durch den Ausbau des Dachstuhls und dessen Verbindung mit dem letzten OG entstand. Die größten, sehr offen gehaltenen, loft-artigen EWOW-Suiten wurden im 8. OG an den Scheitelpunkten der Längsachse des Neubaus arrangiert. Neben den breiten Fensterfronten und großzügigem Wohnbereich besitzen sie private Bars und zeichnen sich durch offen gehaltene Schlafbereiche aus, die dezent in die Badezimmer übergehen.
Eine der Bars des Minus One wurde in der ehemaligen Bierhalle mit ihren reich verzierten Stuckarbeiten und kunstvoll gestalteten Holzvertäfelungen im ersten Untergeschoss eingerichtet
Foto: Eric Laignel
Schwieriger Einbau der Nasszellen
Während die 43 Gästezimmer des historischen Gebäudes über eine offene, monumentale Treppe und ein viergeschossiges Atrium erschlossen werden, sind die Zimmer im Hofgebäude entlang eines zentralen, in dunkle Farbtöne getauchten Gangs angeordnet. Die größte Herausforderung war laut Doležalová der nachträgliche Einbau der Nasszellen und der damit verbundenen Installationsleitungen in den bestehenden Zimmern, die die ursprünglichen Etage-Badezimmer ersetzen. Trotz des Einbaus der Badezimmers mit ihren Duschen und Toiletten, und einem Schrankraum sind die Zimmer generös. Bei ihrer Gestaltung setzte man auf Zurückhaltung: Die Wände sind einfach weiß und ungeschmückt, die hellen Parkettböden sind mit schlichten, farbigen Teppichen belegt.
Die elegante, nüchterne und qualitativ hochwertige Einrichtung wird durch Sofas und Möbel aus Holz oder Messing ergänzt, darunter freistehende Minibars, Beistelltische, Lampen, Spiegel und Regale. Die Waschbecken sind, wie in anderen W Hotels auch, vielfach Teil eines Waschtischs mit Spiegel, der frei im Zimmer steht. Das zentrale Element aller Räume bildet das Kingsize-Bett, nicht nur durch seine Größe, sondern vor allem durch die kunstvoll mit Bronzeringen und farblichen Glaseinlagen gestalteten Kopfteile und die in Leder, Stoff oder Holz ausgeführten, breiten Bettgestelle.
„Die gesamte Einrichtung, also Stoffe, Betten, Bänke, Sofas und Sessel, Lampen, Teppiche, Vorhänge usw., wurde speziell für dieses Projekt entworfen und angefertigt, um dessen einzigartigen und unverwechselbaren Stil zum Ausdruck zu bringen“, bestätigt Doležalová.
Die Haustechnik, die Entlüftungs- und die Klimaanlage wurden effizient und unsichtbar in einem Installationsplafond über den Bädern und im Eingangsbereich installiert. Die unterschiedliche Deckenhöhe sorgt für eine räumliche Differenzierung zwischen Eingangsbereich und Schlafbereich.
Entführung in die Unterwelt
Links vom Hoteleingang befindet sich neben der Boutique der Glasmanufaktur KLIMCHI der externe Abgang in die reich dekorierte Unterwelt des Hotels: die Cocktail-Bar Minus One. Dabei handelt sich um eine vom Hotel separat funktionierende Bar bzw. einen Club. Das Minus One ist in mehrere Räume aufgeteilt. Eine eklektische Bar mit wulstigen, roten Sitzmöbeln und dazu passenden, schweren Vorhängen sowie pink und blau getünchten Wänden bildet den Eyecatcher. Eine zweite, diskretere Bar, in der wiederum Grüntöne überwiegen, befindet sich in der ehemaligen Bierhalle mit ihren reich verzierten Stuckarbeiten an den Gewölbedecken und mehreren historischen Wandgemälden. Auch hier wurden die kunstvoll gestalteten Holzvertäfelungen an den Wänden restauriert und der Saal mit einer wirkungsvoll beleuchteten und verspiegelten Bar – einer „Art-Deco-Schmuckkiste“ – sowie unterschiedlichsten Lampen neu möbliert. Obwohl dieses Geschoss keinerlei Öffnungen besitzt und von den Gewölben dominiert wird, wird den Räumen durch ihre Höhe, die vielfältigen Lichtinstallationen und die Spiegel ihre Beklemmung genommen.
Fernab vom Trubel der Stadt liegt im Geschoss unter der Minus One Bar der Wellnessbereich AWAY-Spa mit einem Fitnessraum. Wie in anderen W Hotels befindet man sich auch hier in einer in Grau-, Schwarz- und Bronzetönen gehaltenen, dezent beleuchteten, völlig introvertierten Welt der Entspannung und des Wohlbefindens. Bronzefarbene Möbel, Lampen und Metallvorhänge verbreiten einen Hauch von Luxus, der durch anthrazitfarbene Bodenfliesen und bronzefarben schimmernden Spachtelputz ergänzt wird. Auch der Pool und der Whirlpool sind von bronzefarbenen Mosaiken umgeben und mit einer schwarzen Decke überdacht.
Romantisch-femininer Jugendstil
„Der Jugendstil ist für mich äußerst feminin und romantisch“, betont Pavla Doležalová bei der Besichtigung. Sie ist sich der Einzigartigkeit und Eigensinnigkeit des Ortes und des Projekts sehr bewusst, weshalb für sie jedes Detail zählt. Sie ist überzeugt, dass die außergewöhnliche Bauaufgabe auch dazu beitrug, dass die verschiedenen Designer, Baufirmen und Hersteller trotz des komplexen Auftrags so gut und engagiert zusammenarbeiteten.
Wie bei anderen überladenen Kunst- und Architekturstilen wird man auch im W Prag von der Formen-, Farben-, Motiv- und Materialvielfalt überwältigt und kann die Außergewöhnlichkeit einzelner Objekte kaum mehr wahrnehmen. Man muss sich einfach zurücklehnen, sich dem Reichtum der Eindrücke hingeben und sich in diese fantastische Welt entführen lassen – ein Hotel, das zum Verweilen einlädt.
Autor: Michael Koller
Projektdaten (Auswahl)
Objekt: W Hotel Prag, Prag/CZ
Typologie: Hospitality
Bauherr: Hotel Evropa Praha s.r.o., Nutzer: Marriott International – W Hotels
Architektur: 2006–2008 DAM architekti s.r.o., 2017-2019 Benoy, 2021–2024 Chapman Taylor (auch Innenarchitektur und Landschaftsarchitektur),
www.chapmantaylor.com, 2022–2024 AvroKO’s London studio (auch Innenarchitektur),
www.avroko.webflow.io
Team AvroKO, Chapman Taylor: Ing. arch. Pavla Doležalová, Ing. Marek Vávra, Ing. arch. Tatiana Osina, Ing.arch. Ayan Nasibli
Ingenieurbüro: DELTAPLAN spol. s r.o.
Assoziierte Architekten: Ing. arch. Lucie Harcubová, Adam Neubauer
Generalunternehmung: Zakládání Group a.s. Metrostav a.s.
Bauzeit: 07/2018–10/2024
Grundstücksgröße: 2 048 m²
Bruttofläche: 20 537 m²
Brutto-Rauminhalt: 68 913 m³
Fachplanung
Tragwerksplanung: Alston spol. s r.o.
TGA-Planung: RTCH consult sro
Lichtplanung: DALEA v.o.s.
Elektrik: JEKU s.r.o., AZ elektroprojekce s.r.o
Energieplanung: Ing. Jakub Slavíček
Fassadenplanung: MFS digital Ltd.
Akustik: Studio D-akustika s.r.o.
Energie
Primärenergiebedarf: 415,6 kWh/m²a
Endenergiebedarf: 227,1 kWh/m²a
Jahresheizwärmebedarf: 103,1 kWh/m²a
Energiekonzept: Die Außenwärmedämmung wird durch ein Wärmedämmfassadensystem gewährleistet, das mit perforierten Betonfertigteilen verkleidet ist. Die Sandwichkonstruktion besteht aus Ortbeton, Wärmedämmung und einer äußeren Betonfertigteilplatte, die mit trapezförmigen Fenstern perforiert ist.
U-Werte Gebäudehülle:
Außenwand: 0,30 W/(m²K)
Fassadenpaneel: 0,19 W/(m²K)
Bodenplatte: 0,37 W/(m²K)
Dach: 0,15 W/(m²K)
Fenster (Uw): 0,80 W/(m²K)
Verglasung (Ug): 0,6 W/(m²K)
Ug-total (mit Sonnenschutz): 0,27 W/(m²K)
Haustechnik: Zentrale Wärmequelle ist eine Niederdruck-Heißwasser-Gaskesselanlage. Die Kühlung erfolgt über flüssigkeitsgekühlte Kältemaschinen. Die Räume werden mit Gebläsekonvektoren versorgt.
Hersteller
Beleuchtung: Preciosa lighting,
www.preciosalighting.com
Bodenbeläge: Stilles, www.stilles.com, EXX,
www.exx.cz, AxPro Concept Sp. z o.o.,
www.axproconcept.com
Fassade/Fenster: Metrostav – Divize 3, LOP,
www.metrostav.cz
Sanitär: Hotbath, www.hotbath.it, Villeroy and Boch, www.villeroy-boch.com, Laufen, www.laufen.cz, Tece, www.tece.com, Axor-Hansgrohe, www.axor-design.com, Duravit, www.duravit.com, Decor Walther, www.decor-walther.com
Zutrittssysteme: Assa Abloy, www.assaabloy.com
Türen: SAPELI, Atelier Šrámek, www.sapeli.cz
Wärmedämmung: Rockwool, www.rockwool.com, ISOVER, www.isover.de, Bachl, www.bachl.de
