Helmholtz Pioneer Campus, München-Neuherberg
Der Auf- und Ausbau umfangreicher Infrastrukturen für das weite Gebiet des Life Science Markts ist weltweit von Dynamik geprägt, allein in Europa rechnen Expertinnen mit jährlichen Investitionen in Forschung und Entwicklung von rund 55 Mrd. €. Grund genug, dass führende Forschungsgemeinschaften, wie Helmholtz, bestehende Einrichtungen erweitern oder gar neu bauen. Dass diese Forschungsneubauten aber ganz anders sein müssen, als vor Jahren noch geübt, zeigt sich am Beispiel des HPC bei München.
Vielleicht hatten die Architekten nicht mit der positiven Entscheidung im VgV-Verfahren von 2017 gerechnet, war die am Wettbewerb mitteilnehmende Konkurrenz doch die Spitze der deutschen Architekturbüros, die seit vielen Jahren, vielleicht Jahrzehnten, Forschungsbauten aller Größen realisieren. Womöglich war entscheidend, dass der Entwurf von wulf architekten sehr grundsätzlich und überzeugend den Anforderungen einer medizinischen translationalen Forschung gerecht wird: In dieser geht es darum, wissenschaftliche Erkenntnisse aus der Grundlagenforschung im Labor in konkrete, klinisch anwendbare Diagnostik, Therapien und Präventionsmethoden für Patienten zu überführen. Gerade die Covid-Pandemie hat die Dringlichkeit bewiesen, Laborergebnisse direkt in die Patientenversorgung einfließen zu lassen. „So sollen Entwicklungszyklen, in denen bisher 20 Jahre vergingen von der Grundlagenidee zum Medikament, auf fünf Jahre reduziert werden“, kommentiert Steffen Vogt, geschäftsführender Gesellschafter bei wulf architekten. Mit ihm und der Teamleiterin Sonja Schmuker haben wir per Videokonferenz gesprochen.
Scheinbare Resträume sind hier Nutzflächen: Die aus der Grundrissgestaltung resultierende, sehr offene Raumlandschaft bietet Rückzug, Raum für informelles Aufeinandertreffen und interdisziplinäres Arbeiten
Foto: Brigida González
Der Bauherr wollte ein Haus haben, das „Interdisziplinarität zum Thema hat, das unterschiedlichste Fachrichtungen zusammenzubringt, das zur informellen Kommunikation anregt bzw. zwingt. Mit dem Fokus auf den jungen Pionieren. „Man sucht herausragende junge Talente aus der ganzen Welt, gibt ihnen fünf Jahre lang eine Spielwiese. Hier können sie sehr frei forschen und arbeiten, sollten natürlich am Ende auch Ergebnisse liefern“, so Steffen Vogt. Anschließend ziehen neue Forscherinnen und Forscher im Gebäude ein. Damit waren viele Pflöcke eingeschlagen, die den Entwurf bestimmten und in der Labore beispielsweise als Module definiert sind. Neben solchen technischen Komponenten steht als Thema im Raum, dass der Neubau „superattraktiv“ sein muss, dass das Helmholtz Zentrum München „junge Talente aus den verschiedensten Regionen dieser Welt“ in die bayerische Landeshauptstadt locken kann. „Wenn diese Spitzenforscher dann in ihrem Netzwerk ein Bild vom HPC posten mit ‚Guckt, in diesem Gebäude arbeite ich und das ist deutlich cooler, als das, was anderswo entsteht‘, dann haben wir die Forschung in eine andere (bauliche) Sphäre gebracht“, so Steffen Vogt weiter.
Labore und Arbeitsplätze sind (visuell) einander zugewandt, Kommunikation ist – wenn auch akustisch eingeschränkt – überall möglich
Foto: Brigida González
Die Cafeteria ist für das Meiste
konzipiert: entspannter Aufenthalt, konzentriertes Gruppenarbeiten oder Nahrungsaufnahme. Und das alles
mit Blick nach Draußen, in die
Nachbarschaft
Foto: Brigida González
Grundrisse einmal anders gedacht
Für die Entwicklung der Grundrisse waren Flächenmuster entscheidend, die auf den ersten Blick nicht zwingend und zugleich luxuriös erscheinen. Die Dreiecksform, deren Achsenspiegelung eine Raute ergibt, reagiert auf das Grundstücksinventar: Auf der rechteckigen Fläche im Campus stand noch ein Gebäude, eine Lagerstätte für radioaktives Material. Diesem weicht der Baukörper in seiner Zuspitzung aus. Die Flächen, die den Laborkern umschließen, sind Nutzflächen, die der Bauherr von Beginn an als Zonen für informelle Kommunikation und interdisziplinäres Arbeiten im Raumprogramm festgehalten hat. „Überall, wo bequeme Sessel stehen, eine Wendeltreppe als Raumskulptur erscheint etc., haben wir eine Nutzfläche. Hier treffen sich alle und arbeiten“, so Steffen Vogt.
Das Gebäudeleitsystem mit Hinweisen auf Lift, LAB, Gebäudelevel, Cafeteria wurde von büro uebele visuelle kommunikation konzipiert. Mit seiner konkreten Durchdringung des Gebäudes übersetzt es das Werkzeug Gebäudeleitsystem auf das Anschaulichste
Foto: Brigida González
Grundriss UG, M 1 : 750
a Kommunikation „Piazza“
b Kommuikation „Forum“
c Kommunikation „Salone“
d Kommunikation „La Terrazza“
1 Atrium
2 Cafeteria
3 Seminar, Konferenz
4 Meeting
5 Labor (LAB A1, B1)
6 Bürofläche
7 Teeküche
8 Lounge
9 Creativity LAB
10 Abluftzentrale
11 Dachterrasse
12 Logistik
13 Werkstatt
14 Spülküche
15 Technikzentrale
Sonja Schmuker: „Die Flächen im Atrium hätten wir nicht derart großzügig umsetzen können, wenn der Bauherrschaft nicht wichtig gewesen wäre, dass das Kernthema Kommunikation eine bauliche Relevanz hat. Die Begegnung unterschiedlichster Menschen aus verschiedensten Fachdisziplinen kann Forschung beflügeln, und wir haben unsere Aufgabe so verstanden, dass wir diese Begegnungen fördern wollen.“
Konstruktion. Technik. Fassade
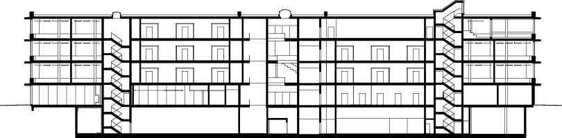
Das als Stahlbeton-Skelettbau ausgeführte Gebäude bietet mit den außenstehenden Stützen und flachen Decken die Möglichkeit, mit leichten Trennwänden Grundrisse zu variieren. Auch die Laborzonen können atmen, wie Sonja Schmuker anmerkt. Man kann sie – im Rahmen – verkleinern, vergrößern, verschieben. Werden weniger Labore gebraucht und zum Beispiel mehr Bioinformatikplätze etc., ist das möglich, denn die Decken haben eine durchgehend gleichhohe Tragkraft.
Da die Betondecken nicht aktiviert sind – was eine Flexibilität der Nutzungen auch erschwert hätte – wurde sämtliche Technik unter die Decke gepackt. Vortemperierte Luft kommt von oben, geht nach oben. Allein im Erdgeschoss sind die Böden temperiert. Die Beläge (Terrazzo im EG als Weiterführen des Außenraums ins Innere) sind ab Treppe EG aufwärts Holzparkett, für die Labore wurde heller Kautschuk ausgewählt. „Unsere Grundidee war“, so Sonja Schmuker, „nicht zu nüchtern, zu clean zu gestalten. Wir wollten auch Wohnliches, das wir mit der Möblierung, der Beleuchtung, mit Oberlächen etc. herstellen. Dabei sollten sich die ‚Küchen‘, das sind die Labore, von den ‚Wohnzimmern‘, die Büroflächen, klar unterscheiden.“
Dass die Fassade so ganz anders ist, als vielleicht erwartet, ergibt sich grundsätzlich aus dem schon Gesagten: Dass nämlich ein Forschungsgebäude heute kein reiner Funktionsbau mehr sein kann. So wundert man sich vielleicht über die an den spitzen Ecken eingesetzten gebogenen, großformatigen Scheiben zu Unrecht, wie Steffen Vogt nachvollziehbar erklären kann: „Würden wir die runden Gläser an den Ecken auf die Gesamtkosten der Fassade umrechnen, wäre man erstaunt, wie wenig mehr das ausmacht. Klar, in der Regel werden derartige Bauteile von jedem Projektsteuerer, der neu im Geschäft ist, als erstes rausgefischt. Wir haben von Anfang sehr deutlich gemacht, dass die Raute, wenn sie so werden soll, nur mit den runden Glasecken perfekt ist. Und so haben wir ein abstraktes, feines Fassadenbild, das nicht von Funktionalität dominiert wird. Das geht bis hin zur Integration der Anlieferung, die Sie auf den ersten Blick nicht finden werden.“
„Wer hier höhere Kosten unterstellt, der liegt falsch“, so Sonja Schmuker, „denn eigentlich ist die Fassade ziemlich einfach konstruiert. Die umlaufenden Betonfertigteile sind überwiegend gleich bis auf die Rundungen, die wir aber geschossweise mehrfach haben. Es gibt also keine Einzelanfertigungen.“
Labore. Wet Lab. Luftwechselrate
Ein Forschungsbau ohne Labore ist wohl nur ein halber, in jedem Fall im Life Science-Forschungsfeld. Zwar habe man keine „speziellen Fundamente für Hochpräzisionsapparaturen“ (Schmuker) und tatsächlich ist das meiste High-End-Standard. Es gibt noch einen Reinraum für Mikroskopie im Keller, große Kryotanks im Erdgeschoss zur Probenlagerung bei extremen Minustemperaturen, doch insgesamt handle es sich schlicht um biomedizinische Labore. Diese enthalten vollausgestattete Laborbänke mit eigenem Freezer/Fridge, Pipettenset, Tischzentrifuge und Schüttler, haben Tageslicht in allen Bereichen. Stichworte hier sind Zellkultur, Mikrobiologie, DNA/RNA Space und Proteinbiochemie.
Und dann noch – neben der Beteuerung, dass ohne Dr. Heinekamp Labor- und Institutsplanung und den HLS Planern Scholze Jaeger nicht dieses Ergebnis möglich gewesen wäre – das Thema „Luftwechselrate“. Dazu Steffen Vogt: „Ich sehe unser Gebäude auch als Best Practice, das zeigt, wie Luftwechselraten effizient geplant werden können. Standardgemäß hat ein Labor in Deutschland einen achtfachen Luftwechsel pro Stunde und das 24 Stunden am Tag, sieben Tage die Woche. Selbst am Sonntag, wenn wahrscheinlich niemand da ist. Doch wenn ein Wissenschaftler am Sonntag um 11 Uhr ins Labor möchte, muss er sicher arbeiten können. Das bieten wir natürlich, aber wir haben den Dauerbetrieb an den echten Betrieb angepasst. Im Schnitt kommen wir damit durch die Steuerung über Taster und Sensoren auf einen drei- bis vierfachen Luftwechsel im Standardbetrieb. So kann man mit diesem angepassten Verfahren gigantisch Energie sparen.“ Dass die Anlage so ausgelegt ist, dass sie den achtfachen Wechsel schafft, ist selbstverständlich.
Ein letztes größeres Thema waren die Brandlasten in den Laboren. Das wurde schlicht dadurch gelöst, dass man die Brandlasten für Lagermaterialien im Labor begrenzt. „Wir haben mittels eines – ich nenne es einmal –‚Kistentransportsystems‘ jegliches mobiles Labormaterial wie Handschuhe, Pipetten und Spritzen, außerhalb der Laborbereiche so verpackt, dass es bei Bedarf in die höher gelegenen Labore geliefert werden kann“, so Steffen Vogt.
Fazit
Forschungsbauten müssen nicht wie Forschungsbauten ausschauen, vielleicht ganz im Gegenteil. Aber müssen solche dann doch spezialisierten Gebäude, meist in speziellen städtebaulichen Kontexten, auch etwas anderes können, als Forschung? Was wird aus den Nasslaboren, wenn die KI komplett übernimmt? Auf meine Frage, was denn mit dem Gebäude wird, wenn die jetzt angebotene Nutzung nicht mehr nachgefragt wird, antworten die Architekten: „Das Gebäude ist flexibel, mit dem kann man sehr viel machen“, so Steffen Vogt. Zum Beispiel weniger Labore, mehr Büro. Wohnen auf dem Campus?! Vielleicht. Die weitgespannten Decken, die offen montierte TGA, Erschließung und auch die offenen Übergänge zum Campus machen das Haus tatsächlich bereit für anderes. Aber das ist noch nicht zu sehen. Jetzt wird erst einmal geforscht, in der „Küche“, im „Wohnzimmer“ oder auch einmal auf Treppenstufen, in der Cafeteria oder dem Platz, den die Raute draußen neu definiert. Gibt es dort Bänke, WLAN?! Natürlich! Benedikt Kraft/DBZ
Fünf Partner bei
wulf architekten, Stuttgart
www.wulfarchitekten.com
Foto: Klaus Mellenthin, Berlin
Die reduzierte, klare Formensprache sorgt für eine ruhige und präzise Wirkung.«
Projektdaten
Objekt: Helmholtz Pioneer Campus
Standort: Gebäude 3630 am Gaborplatz, Ingolstädter Landstraße 1, 85764 Neuherberg
Typologie: Forschungs- und Laborgebäude
Bauherr/Nutzer: Helmholtz Zentrum München, Deutsches Forschungszentrum für Gesundheit und Umwelt (GmbH), Neuherberg
Architektur: wulf architekten gmbh, Stuttgart
Team: Sonja Schmuker (Teamleiterin), Julia Zumkeller (Projektleiterin), Sana Barray, Linn Benz, Marcus Huber, Steffen Lepiorz, Anas Muhammed, Aliakbar Nazari, Kari Silloway, Boris Weix
Bauleitung: Alber & Schulze Baumanagement GmbH, Stuttgart, www.alber-schulze.de
Generalplanung: wulf architekten gmbh, Stuttgart
Projektsteuerung: Seitz + Müller Projektmanagement GmbH, Planegg, www.sm-p.de
Tragwerksplanung: wh-p GmbH Beratende Ingenieure, Stuttgart, www.wh-p.de
Landschaftsarchitektur: lohrer.hochrein, Landschaftsarchitekten und Stadtplaner gmbh, München, www.lohrer-hochrein.de
TGA-Planung: Scholze Jaeger GmbH, Stuttgart, www.scholzejaeger.de
Energieplanung, BNB-Zertifizierung und Bauphysik: ee concept, Darmstadt, www.ee-concept.de
Lichtplanung: FAKTORLicht GmbH & Co. KG, Filderstadt, www.faktorlicht.de
Brandschutz: HHP Nord/Ost Beratende Ingenieure, Braunschweig, www.hhp-nord-ost.de
Laborplanung: Dr. Heinekamp Labor- und
Institutsplanung GmbH, Karlsfeld, www.heinekamp.com
Orientierungssystem: büro uebele visuelle kommunikation gmbh & co. kg, Stuttgart, www.uebele.com/de ELT-Planung: Müller & Bleher GmbH & Co. KG, www.mueller-bleher.de
Bauzeit: 09.2019 – 05.2024
Zertifizierung: BNB-Silber (beantragt)
Nutzfläche gesamt: 6 185 m²
Technikfläche: 1 550 m²
Verkehrsfläche: 1 700 m²
Brutto-Grundfläche: 10 800 m²
Brutto-Rauminhalt: 51 490 m³
Baukosten (KG 300–500 nach DIN 276):
ca. 40,45 Mio. € Netto
Energie
Primärenergiebedarf: 170 m²a nach EnEV
Endenergiebedarf Wärme: 109 m²a nach EnEV
Endenergiebedarf Strom: 33 kWh/m²a nach PHPP/EnEV
Außenwand: U = 0,164 W/(m²K)
Erdberührende Außenwand: U = 0,208 W/(m²K)
Bodenplatte: U = 2,110 W/(m²K)
Dach: U = 0.131 W/(m²K)
Fenster: Uw = 0,76 W/(m²K)
Verglasung: Ug = 0,6 W/(m²K)
Ug-total (mit Sonnenschutz) = 0,6 W/(m²K)
Produkt/Hersteller
Beleuchtung: &Tradition, Artemide, Licatec, Foscarini, Trilux, LTS, Ruco, Bega, iGuzzini, Vitra, Moooi
Schalter: Jung
Bodenbeläge: Nora (Kautschuk), Forbo (Lino), Cinca (Wandfliesen), „Florim Neutra“ (Bodenfliesen) Sopro (Abdichtung)
Möbel: HAY, vitra, Fritz Hansen, OUT (Objekte unserer Tage), Moroso, Novy Styl, OK Design, FORMvorRat, Artek, Fermob, Wiesner Hager, Bosse, Bimons Labsit
Stahl-Türen/Tore: Hörmann, FSB (Türdrücker)
