Deutsches Meeresmuseum, Stralsund
In Stralsund wurde vor vielen Jahren das Ozeaneum eröffnet. Nun folgt mit dem Abschluss von Sanierung und Neubauen am Deutschen Meeresmuseum ein weiteres Ausstellungshaus, das so ganz anders in den historischen Bestand eingefügt ist. Während der Behnisch-Entwurf noch sichtbar auf Form und Behauptung setzte, nimmt sich die Arbeit am Meeresmuseum deutlich zurück, ohne sich dabei zu verstecken.
Die Schlange derjenigen, die am Tag der offiziellen Eröffnung ins Meeresmuseum wollten, war sicherlich 100 m lang. Was für das Interesse der Bevölkerung an ihrem Haus in Stralsund spricht, zugleich aber auch ein wenig verwunderte: Es war bestes Wetter! Elke Reichel, Partnerin bei Reichel Schlaier Architekten, Stuttgart, dem Büro, das dem Meeresmuseum neuen Glanz im alten Kleid verliehen hat, erinnerte sich, dass sie als Kind häufig im Meeresmuseum unterwegs war, wenn es regnete und der Strand auf Rügen nass war – wie viele andere auch, die in der Nähe ihren Jahresurlaub machten. Möglicherweise fuhren die aber nicht wegen der gotischen Museumsarchitektur nach Stralsund, eher wegen der dort eingebauten Aquarien, der präparierten, angsteinflößend riesigen Haigebisse oder dieser Geschichten, die sich um die wilden Meere, geheimnisvollen Tiere und den industriellen Fischfang drehen, um Chemie, Physik und Biologie – Bildung, Unterhaltung und am Ende noch ein Souvenir.
Die Attraktivität des Deutschen Meeresmuseums, das mit dem benachbarten Ozeaneum (Behnisch Architekten, 2008), dem Nautineum und dem Natureum drei weitere Standorte unter einem (Privat)Stiftungsdach vereint, hatte die Betreiber veranlasst, den Museumskomplex um ein Großaquarium zu erweitern und im gleichen Zug den Bestand zu sanieren, zu ergänzen sowie seine über die Jahrzehnte gewachsene Struktur neu aufzusetzen.
Den 2017 europaweit ausgelobten Architektenwettbewerb zur Modernisierung und Ergänzung des Ensembles in und um das ehemalige Dominikanerkloster St. Katharinen gewannen die Stuttgarter mit einem komplex einfachen Entwurf, der sich damals schon durch den konsequent rücksichts- wie respektvollen Umgang mit der historischen Bausubstanz auszeichnete. Und sieht man von offensichtlich neuen Bauteilen ab, war meine Frage an die Architekten während des gemeinsamen Rundgangs eine häufige: „Das ist jetzt von euch gemacht … ?!“
Blick in den alten Westhof, der auch der neue Westhof ist, nun allerdings als ein geschützter Raum. Die große Wand ist Teil der historischen Stadtmauer, links im Bild der Museumsshop, dem gegenüber der Start für den Rundgang liegt
Foto: Brigida González
Grundsätzliche Aufgaben
Zentral waren die üblichen Verdächtigen bei einer Bestandsertüchtigung: TGA, Brandschutz, energetische Optimierung, Barrierefreiheit, Oberflächen etc. Auch wesentlich: Die Neukonzeptionierung der über viele Jahrzehnte organisch gewachsenen, mittlerweile unzweckmäßig willkürlichen Führung durch die Ausstellung. Neben der Erstellung neuer Flächen für Büros und Werkräume und der vollständigen Überarbeitung des bestehenden Aquarienkellers, kam noch die Aufgabe hinzu, den Bestand um ein Großaquarium zu erweitern – im Kontext Denkmalschutz, wenig Platz auf der Parzelle und seit 2002 (mit Wismar) Teil des Unesco Weltkulturerbes Altstadt Stralsund.
Im Ensemble kontextbezogen arbeiten. Neubauten
Bei der Platzwahl für das Großaquarium blieb nur eine kleine Fläche auf dem südlichen Teil des Areals, direkt am Katharinenberg. Hier trennte eine Backsteinmauer Straße und dahinterliegende Brache. Das neue Volumen, dessen Südfassade nun auf dieser Mauerlinie steht und das auf Untergeschossebene weitere Aquarien unterschiedlicher Größe anbietet, musste komplett geschlossen ausgebildet sein. Um hier den Bezug zum Kontext aufnehmen zu können, wurde der oberirdische Teil in Gänze mit Kupferblechen eingehüllt. Das Material sei, so Peter Schlaier im Rundgang, „hier in Stralsund häufig anzutreffen, es hat für die Dacheindeckung zahlreicher Backsteinkirchen Verwendung gefunden. Mit der handwerklich hergestellten Leistendeckung wollten wir zum einen die großen Flächen sinnfällig gliedern und ebenso, wie schon beim Westhof mit seiner Stützenfolge, Bezug nehmen auf den Pfeilerrhythmus der benachbarten gotischen Architektur.“
Der Anschluss an den Bestand ist eine kunstvolle Glasfuge, die als solche gar nicht in Erscheinung tritt. Die Konstruktion des gläsernen Übergangs gliedert den Raum des Westhofs und schafft eine sinnvolle Zonierung vor dem Rundgang. Tageslicht über altem Pflasterboden ist ein zusätzlicher Gewinn
Foto: Brigida González
Die vertikale Gliederung durch feine Nähte findet sich auf allen Fassaden, die entweder Neubauten verkleiden, oder überarbeiteten Fassadenteilen, die wegen der inneren Neustrukturierung nun teils großflächig geöffnet werden konnten. Dass auch die Steildächer, die wegen einer Silhouettenausbildung aufgesetzt wurden – auch, um mehr Arbeitsraum zu gewinnen –, dass auch diese Flächen aufwändig verkupfert wurden, ist der Forderung geschuldet, die Luftansicht (von benachbarten Kirchtürmen) denkmaltauglich zu halten. „Hier oben sichtbar die Haustechnik aufzusetzen, das wäre unmöglich“, so Peter Schlaier, „wenngleich das vieles sehr vereinfacht hätte!“
Neben dem Neubau für das Riff-Aquarium sowie weiterer Aquarien im unter den Werkhof reichenden Untergeschoss kam als Neubau noch der so genannte „Westhof“ hinzu. Dieser erweitert das Foyer – eine ehemalige Sporthalle – und bietet den Auftakt wie Schlusspunkt des Rundgangs. Den Hof zwischen Sporthalle/Kirche einerseits und Stadtmauerresten andererseits gab es bereits, doch war er zum Himmel offen, eher ein Restraum, in dem eine Toilettenanlage auf seinen Nebenschauplatzcharakter mehr als deutlich hinwies. Diesen Hof haben die Architekten jetzt mit einem Dach geschlossen. Aber nicht irgendwie so, sondern sehr einfach und zugleich höchst kompliziert:„Für die Planung, die Detaillierung des Dachs haben unsere Architekten sicherlich 1 000 Arbeitsstunden aufgewandt. Der Übergang von der gekurvten Außenmauer zur gegenüberliegenden Kirchenwand, Gefälle und Stöße, senkrechte und waagerechte Flächen, geschlossene und transparente … Da kam vieles zusammen, die gesamte Konstruktion wurde aufwändig modelliert“, so Peter Schlaier. „Wir wollten einen bewegten Raum“, ergänzt Elke Reichel, „wir wollten Licht und Aussicht, Ankommen und Aufenthalt. … Was mir besonders gefällt und was in der Planung noch gar nicht so klar wurde, ist die Sichtbeziehung nach außen: Wer im Foyer steht, schaut gleich ins Grüne, er oder sie werden in den Hof gezogen, von dem aus alles startet.“ Das Pflaster des Hofs sieht blitzsauber aus und sehr robust, hier hatten die Architekten das Glück, historischen Granitstein verwenden zu können, der schon an gleicher Stelle lag.
Die verglaste Brücke führt vom obersten Ausstellungsgeschoss im Altbau hinüber zum Großaquarium, das als größter Neubau im Ensemble mit Kupferblech eingekleidet steht, wie alles, was hinzugefügt wurde
Foto: Brigida González
Erwähnenswert ist auch das Tragwerk, zahlreiche Metallstützen als geschweißte Hohlkästen, die schmal auf dem Boden aufsetzen und sich über der Bestandsmauer zu veritablen Schwertern verbreitern.
Zu den beiden genannten Neubauteilen kommt noch eine Aufstockung auf das bestehende Schildkrötenhaus hinzu sowie ein paar Einbauten, Büroräume im Foyerbauteil beispielsweise.
Die beiden in den Kirchenraum eingefügten Ausstellungsebenen wurden nur sehr vorsichtig erneuert und angepasst, der größte Eingriff war das segmentweise Öffnen des mero-ähnlichen Deckentragwerks, womit dezent eine bessere Wahrnehmbarkeit des Kirchenraums erreicht wurde
Foto: Brigida González
Erschließung, Rundgang
Da eine wichtige Aufgabenstellung die barrierefreie Neukonzeptionierung des Ausstellungsrundgangs war, soll sie hier in Kürze beschrieben werden. Der ehemalige Haupteingang vom Nordhof aus direkt ins Kirchengebäude wurde geschlossen. Nun liegt er gleich vorne am Hof in dem ursprünglich als Turnhalle genutzten Anbau. Hier sind Kassen, Garderoben und im ersten OG oberhalb des Eingangs kleine Büroräume untergebracht. Eine Treppe führt hinunter zu den WC-Räumen, in das neu geschaffene Untergeschoss (mit Befund Kellerräume aus dem 14. Jhd.). Die Wand der Turn-, nun Eingangshalle zum ehemaligen Hof wurde an drei Stellen (ehemalige Hochformatfenster) aufgebrochen. Durch die nun wandhoch ragenden Öffnungen gelangt man in den Westhof, dessen leichtes Gefälle zum Rundgangstart/-ende führt; dem Startpunkt gegenüber ein in den sich weitenden Raum eingestelltes, großes Regalmöbel, das die eine Seite des Museumsshops markiert.
Der Rundgang startet ins Kirchenschiff, dessen denkmalgeschützter, zweigeschossiger Tisch vor dem Ostchor endet. Hier verweisen bodenbündig verglaste Ausgrabungsarbeiten auf frühe Vorgängerbauten.
Die eingefügten Ebenen – in den 1970er-Jahren auf mero-ähnlichem Raumtragwerk optisch berührungsfrei ins Kirchenschiff gestellt – bilden den Auftakt der Ausstellung. Von der oberen Ebene aus geht es weiter durch nun freigeräumte und sanierte Bestandsräume, hinüber zum verglasten Brückenraum, von dem aus ein Rundumblick über das Ensemble und die Nachbarschaft möglich ist. Von hier geht es in den eher dunklen Aquarienneubau, dessen Treppenläufe durch (tragende) Betonfertigteilstützen zum Großaqaurium hin getrennt sind. Die Stützen stehen so auf Lücke, dass das Licht des Treppenraums nicht direkt auf die Scheibe des Großaquariums treffen kann. So werden Spiegelungen ausgeschlossen, die einen direkten Blick ins Geschehen jenseits der Scheibe sehr gestört hätten.
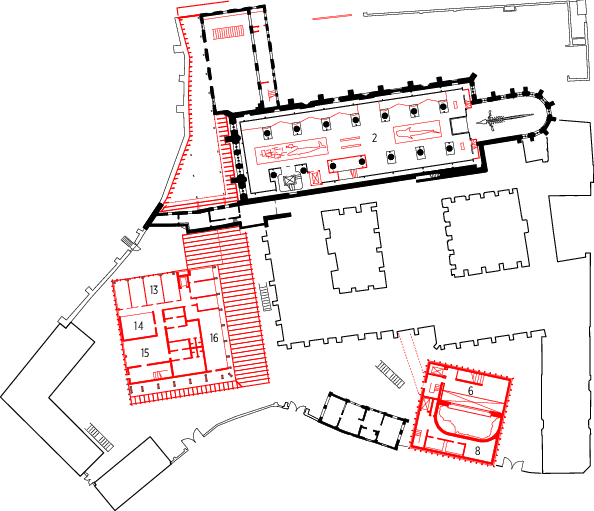
Grundriss UG, M 1 : 1 250
1 Foyer
2 Kirchenschiff / Ausstellung
3 Westhof mit Shop
4 Schildkrötenhaus
5 Futterküche
6 Großaquarium
7 Garderobe
8 Technik
9 WC
10 Aquarien
11 Aufsalzung
12 Reservoir
13 Büros
14 Pausenraum
15 Mitarbeiterbereich
16 Lager
17 Pädagogik
18 Sonderausstellung
Wer von allen drei Ebenen aus – es müssen die ca. 10 m Höhe des Aquariums bewältigt werden – staunenden Blicks alles gesehen zu haben glaubt, geht, im Untergeschoss angekommen, weiter zu den auf dann nur noch einer Ebene angeordneten Aquarien. Dass man dabei zuerst nochmal den historischen Bestand mit Kreuzgewölben über kleineren und größeren bodentiefen Aquarien passiert, fällt nur den wenigsten auf.
Nach dem letzten Becken (Schildkröten), das bis in die Halle des Schildkrötenhauses in die Höhe reicht, geht es per Treppe/Fahrstuhl in das genannte Haus hinauf, dessen Wände großflächig geöffnet wurden. In diesem Anbau der Nuller-Jahre kommen Kloster und jüngere Vergangenheit noch einmal zusammen. Man durchschreitet eine wild gemauerte Wand mit zahlreichen Fehlstellen, quert einen von den Architekten wiedergeöffneten Teil des alten Kreuzgangs und steht – wie von Zauberhand geführt – wieder im Westhof.
Bauen im Bestand. Arbeitsschritte und Details
„Überall dort, wo wir mehr als einen halben Meter tief gegraben haben, kam Unbekanntes, kam teils Jahrhunderte alte Geschichte zum Vorschein. Das war spannend wie zugleich höchst arbeitsintensiv“, so Bastian Matthias, Projektleiter bei Reichel Schlaier Architekten. Doch, man habe eine gute Planungsdokumentation vorliegen gehabt, aber wenn Fassaden millimetergenau gefertigt auf die Baustelle kommen und hier Zentimeterabweichungen vorliegen, ist der Schaden da.
So wurde der Bestand mittels eines 3D-Aufmaß erfasst und in ein Modell überführt, aus dem die Werkplanung folgte. Weil aber nicht jede Schicht am Ende das freigibt, was erwartbar gewesen wäre, galt immer: Maße sind vor Ort zu prüfen! Große negative Überraschungen gab es keine. Schön waren die schon genannten Fundament-Funde der ältesten Kirche Stralsunds im Chor (jetzt unter Glas sichtbar gelassen), die die Ortsgeschichte neu schreiben könnten. Schwierig wurden Mauerfunde dort, wo man unter dem Foyer die Toiletten unterbringen wollte und das zusammen mit Statikern und Archäologen dann auch schaffte, leicht anders als geplant! Erwartbar der Verzug des Stahltragwerks im Schildkrötenhaus, dessen Sichtbetondecke nach außen verbreiterte wurde, um die Stahlträger bündig in der Wand enden zu lassen (und um mehr Raum darüber zu erzeugen, wurde auf der Südseite die Decke so verlängert, dass nun die Nebenräume wie die Futterküche platziert werden konnten).
Das Ausheben der Baugrube für die Aquarien im heutigen Werkhof war gleich mit zusätzlichem Zeitbudget versehen worden. Hier war klar, dass man sich in archäologisch höchst sensibler Umgebung befand: Gräber, Öfen, Brunnen, das alles musste beurteilt, dokumentiert und teils gesichert werden.
Gesichert werden mussten auch die Gründungen auf Feldstein, an die die Bagger schon mal nah heran mussten. Hier waren Injektionen und zahlreiche Pfahlgründen sowie Rückanker nötig, die unter der Straße hinduch bis unter die Nachbarhäuser geführt wurden, um den unterirdischen Anschluss an die historischen Kellerräume zu erstellen. Dass diese Dinge, die meist als „Überraschung“ tituliert werden und das Bauen im Bestand als Hochrisiko-Veranstaltung diffamieren, in die Planung von Anfang an einbezogen wurden, spricht für eine vorausschauend pragmatische Planung.
Dass man sich wundert, den Bestand noch so authentisch erleben zu können, muss als Erfolg dieser Sanierung bezeichnet werden. Dass Patina auf Treppenstufen und Handläufen, am Putz der Wände, Fensterrahmen, Verglasungen oder Türdrücker erkennbar ist, dass Vitrinenpodeste oder auch Teile des Mobiliars aus jüngst vergangenen Zeiten stammen, verwundert beinahe schon; sollte hier nicht saniert werden?
Es wurde. Doch der Denkmalstatus erlaubte es auch, der energetischen Sanierung etwas Pragmatisches zu verleihen. So wurden die meisten Fenster erhalten, wenige aus Gründen des Brandschutzes ersetzt. Umgerüstet wurde die komplette Beleuchtung im Haus auf LED-Technik. Auch wurden Teile, die an einer Stelle ausgebaut wurden, an anderer wieder eingebaut (Brandschutzscheibe). Alte Garderobenschränke wurden überarbeitet und woanders wiederverwendet. Ausgebautes Holz wurde beispielsweise für Trittstufen oder den Möbelbau neu genutzt. Es war dem Bauherrn ein Anliegen, funktionierende Elemente und Material mit Wert nicht wegzuschmeißen – in DDR-Zeiten eine Selbstverständlichkeit.
Der historische Plattenbelag der Katharinenhalle wurde gänzlich erhalten, auch wenn seine Farbigkeit heutigen Vorstellungen moderner Ausstellungsgestaltung widerspricht. „Wir haben hier ständig abgewogen, was erneuert werden muss und was bleiben kann. Natürlich ist die Gotik hier außerhalb jedes Eingriffs, aber auch die späteren Ein- und Zubauten wollten wir als Zeitschicht erhalten“, so Elke Reichel. „Dass wir den Fußboden in der Ausstellung im Bestand vereinheitlich haben, ist vor allem seiner notwendigen Nivellierung und der Barrierefreiheit geschuldet.“
Direkt neben die Vertikalerschließung aus den Nuller-Jahren mit Treppenhaus und innenliegendem Fahrstuhl im Kirchenraum – einerseits Fluchtweg und immer noch, um die Mitarbeiterinnen des Hauses in ihre Büroräume und die Ausstellung gelangen zu lassen – haben die Architekten einen Aufzug gestellt, der beide Ebenen im Kirchenraum verbindet.
Fazit
Was geht mehr, als wenig zu machen und dennoch zum bes-ten Ergebnis zu gelangen? Das Deutsche Meeresmuseum hat eine baulich/architektonische Kur erhalten, die es in die kommenden Jahrzehnte führen wird. Die pragmatische und zugleich gestalterisch anspruchsvolle Arbeit von Reichel Schlaier Architekten wird eine solide Grundlage für die andauernde Fortschreibung des Bestands sein können. Exemplarisch hat das Team – gerade auch im Bestand – gezeigt, dass Respekt vor der Arbeit der Vorgängerinnen ein gutes Standbein ist, ein solches Haus mit einer derart komplizierten Baugeschichte für die Zukunft fit zu machen. Dass die Stuttgarter den Bestand allein schon durch seine Neuorganisation, durch Reduktion und sanftes Schieben wieder sichtbarer machten und trotzdem den Veränderungen jüngster Zeit ihren Respekt erwiesen haben, ist Referenz für die Kollegenschaft. Dass sie zudem mit ihren Zubauten beweisen konnten, eine derart komplizierte Raumlandschaft wie selbstverständlich neu zu beleben mit den Mitteln der heutigen Technik, das sollte das Thema Bauen im Bestand attraktiv machen für Nutzerinnen, Investoren, Kolleginnen und nicht zuletzt die öffentliche Hand, die immer noch viel zu viel wegwerfen lässt.⇥
Benedikt Kraft/DBZ
Reichel Schlaier Architekten
Peter Schlaier und Elke Reichel
www.reichel-schlaier.de
Foto: Bernhard Kahrmann
Projektdaten
Objekt: Sanierung und Erweiterung Deutsches Meeresmuseum
Standort: Bielkenhagen 10, Stralsund
Typologie: Museum
Bauherrin/Nutzerin: Deutsches Meeresmuseum Stralsund, Stiftung bürgerlichen Rechts, Museum für Meereskunde und Fischerei
Architektur: Reichel Schlaier Architekten GmbH, Freie Architekten BDA, Pof. Elke Reichel, Prof. Peter Schlaier, Stuttgart,
www.reichel-schlaier.de
Team (Wettbewerb): José Candel Talavera, Susanne Weng, Maximilian Helbig. Projektleitung: Bastian Matthias, Sandra Kellert, Susanne Weng. Mit Sebastian Wockenfuss
Mitarbeit: Maximilian Bihrer, José Candel Talavera, Katharina Felix, Vanessa Pohler, Roman Rosert, Julia Zürn
Beratung Bestand + Denkmalschutz: Kaup + Wiegand Architekten GmbH, Berlin, www.kaupwiegand.de
Ausschreibung, Bauleitung LP 6-8: mo Architekten Ingenieure, Hamburg, www.mo-architekten.de
Bauzeit: 02.2018 – 09.2025
Grundstücksgröße: 7 725 m²
Nettoraumfläche gesamt: 8 539 m²
Nutzungsfläche: 6 617 m²
Technikfläche: 1 166 m²
Verkehrsfläche: 757 m²
Brutto-Grundfläche: 10 500 m²
Brutto-Rauminhalt: 48 500 m³
Baukosten (nach DIN 276):
Gesamt brutto: ca. 50 Mio. €
Fachplanung
Tragwerksplanung: Leonhardt, Andrä und Partner, Hamburg,
www.lap-consult.com
TGA-Planung: AIU Architekten- und Ingenieurunion Stralsund GmbH, Stralsund, www.aiu.de
Fassadentechnik: Reichel Schlaier Architekten GmbH, Stuttgart,
www.reichel-schlaier.de
Lichtplanung: Dinnebier Licht GmbH, Wuppertal,
www.dinnebier-licht.de
Ausstellung (Innenarchitektur): Die Werft Raißle & Sieber PartG mbB, München, www.diewerft.com
Energieberatung: GSE Ingenieur-Gesellschaft mbH, Berlin,
www.gse-berlin.de
Brandschutz: CDI Ingenieure Matias Ceschi, Berlin,
www.cdi-ingenieure.de
Projektsteuerung: Hitzler Ingenieure, Berlin,
www.hitzler-ingenieure.de
MSR: Kofler Energies Ingenieurgesellschaft mbH, Berlin,
www.koflerenergies.com
Aquarientechnik: Futurefish Aquaculture GmbH, Hamburg,
www.futurefish.de
Beratung Aquarien: Stefan Kadatz, Rheinsberg
Beratung Tragwerk Bestand: Ingenieurbüro Höhne, Bergen auf Rügen, www.hoehne-ib.de
Bauforschung: Frank Hoffmann, Stralsund
Baustellenlogistik: Schoenberg.Baulogistik, Berlin
Baugrunduntersuchung: Baugrund Stralsund Ingenieurgesellschaft mbH, Stralsund, www.baugrund-stralsund.de
Vermessung: Ingenieurteam Nord GbR, Stralsund,
www.vermessung-itn.de
Archäologie: AIM-V Archäologie in Mecklenburg-Vorpommern GmbH, Neubukow
Grabungsleitung: Dr. Jörg Ansorge, www.archaeologie-in-mv.de
Hersteller
Beleuchtung:
- Grundbeleuchtung Besucherrundgang: Erco, www.erco.com
- Forum Büro und KH EG Wegeführung: iGuzzini, www.iguzzini.com
- Decke SKG: Ribag Vior, www.ribag.de
- Befunde Objekte: DGA, www.dga.it
- Stufenbeleuchtung: Wever & Ducré, www.weverducre.com
- Brücke / Handlauf: MS Licht, www.ms-licht.de
- Bestandsleuchte SKG Büro: Louis Poulsen, www.louispoulsen.com
- Schalter: Jung, www.jung-group.com
Bodenbeläge:
Noraplan (Kautschuk), www.nora.com
Gerflor (Linoleum), www.gerflor.de
