Der Schlüssel zu bezahlbarem Wohnraum
Dass günstiger Wohnraum knapp ist in Deutschland, ist nicht neu. Ebenso wie die vorgeschlagenen Lösungsvorschläge, die bereits in der Vergangenheit keine Linderung gebracht haben. Ein Umdenken muss einsetzen. Auch und gerade bei den Grundrissen, die sich mehr an den tatsächlichen Bedürfnissen, anstatt an den vermarktbaren Quadratmetern orientieren müssen.
Optimierter Grundriss: Das Konzept der
Kleinstwohnung hat die Tiny Foundation bereits in mehreren Projekten erprobt
Foto: Philipp Obkircher
Vor 2 000 Jahren soll Jesus einem Fischer in Galiläa gesagt haben: „Ich will dir die Schlüssel des Himmelreiches geben.“ Der Mann freute sich über den Schlüssel und begründet damit die erste Kirche in der Geschichte des Christentums. Sein Name ist Petrus. Nach ihm ist das katholische Wohnungsbauunternehmen Petruswerk benannt. Und dieses Unternehmen hat auch mit Schlüsseln zu tun. In Berlin-Neukölln hat das Petruswerk vor zwei Jahren eine Neubausiedlung entwickelt. Doch bei 15 Wohnungen wurden die Wohnungsschlüssel niemals übergeben. Sie stehen seit der Fertigstellung leer. Grund: Die Wohnungen sind zu teuer. Eine 4-Zimmer-Wohnung kostet warm 3 500 Euro Miete. Das Petruswerk, das sich zu bezahlbarem Wohnraum verpflichtet fühlt, hat die Wohnung für Familien entwickelt, die ein Monatseinkommen von 10 500 Euro haben. Denn nur für diese Gruppe wäre das per definitionem eine bezahlbare Wohnung. Die Wohnung ist 118 m² groß. Macht man doch so, oder? Wer dem Petruswerk Wucher unterstellt, tut dem Petruswerk unrecht. Es sind tatsächlich die Baukosten, die zu solchen Mieten führen, verteidigt sich das Petruswerk. Ist bezahlbarer Wohnraum im Neubau noch möglich?
Mieten steigen beständig
Berlin trifft es am härtesten: In nur zwei Jahren sind die Neuvertragsmieten laut dem Institut der deutschen Wirtschaft um mehr als 22 Prozent gestiegen. Die Baukosten sind offensichtlich so sehr explodiert, dass Jones Lang LaSalle für das zweite Halbjahr 2024 eine Miete von knapp 20 Euro/m² (kalt) ermittelt hat. Damit haben die Berliner*innen ein Niveau erreicht, das man bislang nur vom Wohnungsmarkt im reichen München kannte.
Wichtig bei der Bündelung der Funktionen ist,
dass die Bewohnerinnen und Bewohner einen
Rückzugsraum haben
Foto: Philipp Obkircher
Wie die Baubranche reagiert? Sie macht paradoxerweise die Wohnungen größer. Noch 1995 betrug der Wohnflächenverbrauch in Deutschland 36 m² pro Einwohner, in den letzten 30 Jahren ist dieser Wert um 20 Prozent auf über 47 m² angestiegen. In Berlin beträgt der Wohnflächenkonsum laut dem DIW durchschnittlich 39,1 m². Das hat schwerwiegende Folgen: Eigenbedarfskündigungen nehmen zu, was einen Anstieg bei der Zahl der Wohnungslosigkeiten begünstigt. Ein internationaler Vergleich ist erkenntnisreich: In anderen Großstädten ist der durchschnittliche Wohnflächenverbrauch geringer. In Warschau (32,4 m²), Paris (31,0 m²) und London (29,5 m²) wohnen die Menschen auf weniger Raum. Wir Deutschen leben eindeutig über unsere Verhältnisse.
Geht es eine Nummer kleiner?
Es liegt also nahe, auch über den Wohnflächenverbrauch nachzudenken. Die gemeinnützige Tiny Foundation hat in einer 10-jährigen Forschungsarbeit verschiedene Wohnungsgrundrisse entwickelt und teilweise als Probewohnung im Maßstab 1 : 1 gebaut. Mit der Hilfswerk-Siedlung ist 2017 die „100 Euro Wohnung“ entstanden und das „Co-Being House“, ein Typenhaus, das im Geschossbau WG-Grundrisse und einen klassischen Wohnungsschlüssel ermöglicht. Der Tiny House Verband hat eine Industrienorm für Kleingebäude entwickelt, in der Standards für Tiny Häuser auf Rädern und kleine Einfamilienhäuser festgeschrieben sind. Die Tiny Foundation hat für den Geschossbau eine Definition für Kleinstwohnungen verfasst, die Architekt*innen beim Entwerfen helfen kann, bezahlbaren Wohnraum zu schaffen.
Co-Being-House Grundriss Konzept, M 1 : 250
Co-Being-House Grundriss 3. OG, M 1 : 250
Definition Kleinstwohnung
Die Tiny Foundation hat eine 2-Punkte Definition herausgegeben:
1. Der Wohnflächenverbrauch pro Person beträgt nicht mehr als 20 m².
2. Für jede Person im Haushalt muss ein abgeschlossener Raum von mindestens 4 m² Größe vorgesehen werden, in dem geschlafen werden kann.
Der Gesetzgeber sieht erst eine Überbelegung vor, wenn sich mehr als zwei Personen (z. B. Geschwisterkinder) ein Zimmer teilen müssen. Der Tiny Foundation ist das zu lasch. Sie sieht bereits eine Überbelegung vor, wenn mehr als eine Person sich das Zimmer teilen muss. Nach dieser Definition liegt bereits in jedem Elternschlafzimmer eine Überbelegung vor. Deshalb gibt es in unseren Kleinstwohnungen nicht mehr das klassische Elternschlafzimmer, in das ein großes Ehebett reinpassen muss mit einem Beistelltisch links und rechts daneben, was die Zimmer sehr breit macht. Die Statistik ist eindeutig: Fast jede dritte Ehe scheitert. Eine Kleinstwohnung für eine 4-köpfige Familie muss demnach vier abgeschlossene Räume haben, in denen vier Personen getrennt voneinander nächtigen können: Also eine Wohnküche (in der man auch schlafen kann) plus drei separate Zimmer. Deshalb sind die Küchen in unseren Kleinstwohnungen meist so gestaltet, dass dort auch eine Schlafmöglichkeit vorgesehen ist (z. B. als Hochbett). Diese Definition hat zur Folge, dass die Raumhöhe in unseren Kleinstwohnungen serienmäßig luftige 340 cm hat. Das freut auch großgewachsene Menschen, denen die Decke bei den 250 cm hohen Standardwohnungen auf den Kopf fällt. Diese Zwei-Punkte-Definition hat noch einen weiteren Vorteil: Jede Kleinstwohnung ist WG-tauglich. In einer Kleinstwohnung hat jeder Mensch einen eigenen Rückzugsraum. Wenn dieser Zustand in allen Wohnungen vorherrschen würde, würden womöglich weniger Ehen zerbrechen.
Co-Being-House Grundriss 4. OG, M 1 : 250
Serielles Haus für Berliner Baulücken
In Berlin gibt es noch mehr als 1 000 Baulücken, die nachverdichtet werden können. Das ist ökologisch und infrastrukturell sinnvoll, weil dann weniger Bauland im Umland auf der grünen Wiese versiegelt werden muss und keine neuen Straßen geteert werden müssen. Wozu neue Gleise legen, wenn der bestehende Nahverkehr genutzt werden kann? Viele dieser Baulücken sind nur 15 m schmal. So schmal und wirtschaftlich unlukrativ, dass Projektentwickler und Eigentümer diese Lücken unbebaut lassen. Mit einem Architektenkollegen habe ich ein Wohnungsbauunternehmen gegründet, das diesen Umstand ändern will. Wir haben ein seriell geplantes Stadthaus entwickelt, das diese Lücken mit einem Baukastenprinzip füllen kann. Die Fassade erinnert mit ihren symmetrischen, hochformatigen Sprossenfenstern an vertraute Stadthäuser der Gründerzeit. Niemand soll sich in diesen Neubauten stigmatisiert fühlen.
Der „Co-Being-House“ Baukasten (COB)
Mit unserem Wohnungsbauunternehmen Gemeinwohlbau nutzen wir den Grundriss-Fundus der gemeinnützigen Tiny Foundation. Die am besten entwickelten Typenwohnungen sind die Grundrisse des so genannten „Co-Being-House“. Speziell für diese schmalen Baulücken haben wir geeignete Co-Being House-Grundrisse in ein 5-geschossiges Mehrfamilienhaus gegossen, das verschiedene Wohnungsschlüssel ermöglicht. Das „Co-Being-House“ ist dem Co-Living verwandt, nur mit dem Unterschied, dass beim Co-Being House der Anspruch besteht, bezahlbare Mieten auch für einkommensschwache Bevölkerungsgruppen zu ermöglichen. Bezahlbar bedeutet: Wohnraum ab 330 Euro Warmmiete. Diese Zahl ergibt sich, wenn man das Einkommen der einkommensschwächsten Gruppe in Deutschland zugrunde legt: Azubis. Azubis verdienen durchschnittlich 1 000 Euro monatlich.
WGs willkommen
Mit dem Co-Being House Baukasten (COB) sind sowohl WG-Grundrisse als auch klassische Grundrisse möglich. Exemplarisch sollen hier drei unterschiedliche Wohnungseinheiten aus dem COB erläutert werden. Die Grundrisse sind auf Basis eines Mietzinses von 20 Euro/m² bruttokalt entwickelt:
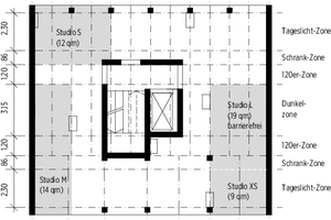
1. WG-Zimmer Studio XS (17 m²), ideal für Azubis (Miete: ca. 340 Euro)
Dieses WG-Zimmer ist um eine Wohnküche gruppiert, die von vier WG-Mitgliedern genutzt wird. Wichtiges Detail: Jedes WG-Mitglied hat ein eigenes Bad und auf Wunsch auch eine eigene Miniküche. Das Studio XS ist eigentlich nur 9 m² groß (Raumhöhe: 340 cm). Das WG-Mitglied aus dem Studio XS zahlt anteilig ein Viertel der 32 m² großen WG-Küche und kommt rechnerisch auf eine Miete für insgesamt 17 m² Wohnfläche, nutzt aber tatsächlich 41 m² Wohnraum (9 + 32 m²= 41 m²). Auf diese Weise ist die Gefahr der Vereinsamung geringer, die in Einzimmerwohnungen immer wieder beobachtet werden kann. Interessantes Detail: Eins der WG-Zimmer (14 m²) kann einen eigenen Zugang zum Treppenhaus haben – wie eine Anliegerwohnung. Diese ist besonders gut geeignet für integrierte Housing First Konzepte. Die Bezahlbarkeit der Miete ist hier begründet durch die Kompaktheit der Individualflächen.
2. Barrierefreie 4-Zimmer Wohnung (54 m²), für 4-köpfige Familien (Miete: ca. 1 130 Euro)
Jedes Zimmer ist nur 210 cm breit und nicht größer als 10 m². Nur das Wohnzimmer ist größer. Oberhalb des 5 m² großen Badezimmers befindet sich ein Luftraum, der temporär als Schlaf- oder Spielbereich genutzt werden kann. Hinweis: Laut Bauordnung sind diese Lufträume nicht als Aufenthaltsräume zugelassen. Das hindert uns nicht daran, diese Zwischenräume so zu gestalten, dass sie eine so hohe Aufenthaltsqualität besitzen, sodass man sich vorstellen könnte, dort zu nächtigen. Die Mieter*innen können in ihren Zimmern Hochebenen einziehen. Die Türöffnungen sind so konzipiert, dass sie nicht mit den Hochbetten kollidieren. Auch wenn Rollstuhlfahrer*innen keine Hochbetten nutzen werden, ist es sinnvoll, Barrierefreiheit zu ermöglichen. Denn Rollstuhlfahrer*innen haben auch Bedarf an Stauraum und wollen auch vielleicht Übernachtungsgäste oder WG-Mitglieder in ihr Zuhause einladen, die nicht auf einen Rollstuhl angewiesen sind.
3. Einzimmerwohnungen Studio S (12 m²) und M (14 m²), ideal für Studis (Miete: ca. 240-280 Euro)
Das Studio S und zwei Studios M lassen sich hervorragend als kombiniertes Modul planen, das genau vier Achsfelder von je 120 cm ausfüllt. Das sind klassische Mikroapartments. Die Studios M eignen sich gut für Laubenganglösungen. Auch bei diesen Studios ist oberhalb des Badezimmers ein Luftraum mit einer lichten Höhe von 120 cm. Dieser Luftraum ist als Abstellfläche ausgewiesen. In Berliner Gründerzeitbauten mit ähnlich hohen Geschossen ist es gang und gäbe, Hochbetten einzuziehen. Der Luftraum oberhalb des Badezimmers erfüllt laut Berliner Bauordnung nicht die Anforderungen an einen Aufenthaltsraum. Auch wenn die Realität in den Gründerzeitwohnungen mit ähnlich hohen Decken das Gegenteil belegen, weisen wir unten Liegen von 90 cm Breite und 210 cm Länge nach, nebst kleinem Schreibtisch und kleinem Kleiderschrank. Auf diese Weise sind die Pläne baugenehmigungsfähig.
Co-Being House vs. Co-Living
Das Co-Being House vereint die Kompaktheit von Tiny Häusern und die Flexibilität von Berliner Gründerzeithäusern. Die Zimmer sind (wie in Tiny Häusern) meist nur 220 cm breit. Und die lichte Raumhöhe ist (wie in Gründerzeithäusern) 340 statt 250 cm. Die Höhe ist wichtig, weil die Badezimmer alle (auch in den barrierefreien Wohnungen) nur 210 cm hoch sind und der Luftraum darüber als Abstellfläche (oder als Hochbett) nutzbar ist. Die Nutzung des Luftraums als Aufenthaltsraum ist laut der aktuellen Bauordnung nicht zulässig. Sie ergibt aber Sinn, weil kein Badezimmer eine 340 cm hohe Decke braucht. Diese Split-Level-Nutzung ist inspiriert von Tiny Häusern und Gründerzeitbauten. Dort hat die Tiny Foundation beobachtet, dass Hochbettlösungen (z. B. oberhalb von Badezimmern oder Küchenzeilen) weit verbreitet sind.
Vertikale Wohnraumnutzung
Die meisten Typenwohnungen organisieren die Wohnraumnutzung horizontal. Das ist sowohl in der Wohnungsbauserie 70 (DDR-Plattenbauten) der Fall als auch bei den Typengrundrissen von Goldbeck und den anderen Rahmenvertragspartner des Bauministeriums. Auch bei innovativen neuen Typenwohnungen, wie dem fantastischen Collegium Academicum von DGJ Architektur in Heidelberg, ist die Raumorganisation horizontal: Schlafbereich und Abstellflächen beispielsweise sind horizontal neben den anderen Wohnbereichen organisiert. Das Co-Being House hingegen nutzt den Luftraum. Die Schlafbereiche und Abstellflächen sind oberhalb von Küchen, Badezimmern und Fluren angeordnet. Auf diese Weise können im Co-Being House auf weniger als 60 m² vier-Zimmer-Wohnungen entstehen. Diese Kompaktheit ist in horizontal organisierten Typenwohnungen nur mit hohem Aufwand möglich – mit teuren Einbauten und speziellen Multifunktionsmöbeln wie Klapptischen und Schrankbetten. Im Co-Being House wird bewusst auf Sondereinbauten verzichtet, weil wir beobachtet haben, dass die Bewohner*innen erst dann anfangen, eine Wohnung zu einem Zuhause zu machen, wenn sie ihre eigenen Möbel mitbringen.
Wie geht es weiter?
Mir ist aufgefallen, dass es bei Architekturkolleg*innen eine Skepsis gibt, die Grundrisse nach der 2-Punkte Definition zu planen. Viele weigern sich, Zimmer zu entwerfen, die schmaler als 250 cm sind. In Tiny Häusern auf Rädern ist das ein betrieblicher Standard. Hämische Kommentare folgen manchmal, es seien Wohnverhältnisse wie in einer Legebatterie. Als ich diese Pläne bei einer Veranstaltung in Stuttgart präsentierte und ähnliche Kommentare aus dem Publikum kamen, sprang mir eine Kuratorin aus Seoul bei. Sie sagte, sie empfände die Herabsetzung von Kleinstwohnungen als Beleidigung für sie und das südkoreanische Volk. Dort wären Kleinstwohnungen völlig normal und kein Zeichen für ein prekäres Leben. Sie verwies auf die 9 m² großen Goshiwon-Einzimmerwohnungen, die in Seoul zahlreichen Studierenden eine bezahlbare Bleibe böten. Vielleicht ist das der Grund, warum es in Seoul kaum Obdachlose gibt, dort sind es weniger als 5 000 Menschen. Anders in Berlin, wo mehr als 47 000 wohnungslose Menschen in Notunterkünften ausharren. Man kann viel schimpfen auf die Baukosten, auf die Bürokratie, auf die Politik und auf die Wohnungsbauunternehmen. Man kann aber auch mit offenen Augen schauen, wie andere Großstädte mit steigenden Kosten umgehen und die Wohnungen etwas kleiner planen. Darüber hätte sich auch der Apostel Petrus gefreut. Niemand verlangt einen Schlüssel für das Himmelreich. Ein Schlüssel für eine kleine, aber bezahlbare Wohnung hätte es auch getan.
Autor: Van Bo Le-Mentzel ist Kleinstwohnung-Planer und Gründer der gemeinnützigen Tiny Foundation. Aktuell sucht er für die Gemeinwohlbau-Initiative ein Grundstück, um dort bezahlbaren Wohnraum herzustellen. Er lebte jahrelang selbst mit Frau und drei Kindern in einer 56 m² großen Wohnung, bis sie wegen Eigenbedarf ausziehen mussten.
www.gemeinwohlbau.de
Foto: Jan Pries
Termin
Am 18. Februar 2026 veranstaltet die Architektenkammer Berlin mit Van Bo Le-Mentzel ein Seminar namens „Kleinstwohnungen entwerfen“, in dem die Entwurfspraktiken des „Co-Being House“ vermittelt werden.
www.ak-berlin.de
