Modernes Kellerstöckl
Ferienhaus im Burgenland/AT
Mit einem schlichten Sommerhaus in wildromantischer Landschaft konnte Architektin Judith Benzer aus Wien die Jury des Holzbaupreises Burgenland 2012 für sich einnehmen. Neben der reduzierten Form überzeugten die konstruktiven Details.
Um im Südburgenland, einem der kleinsten Weinanbaugebiete Österreichs, stilecht Urlaub zu machen, sollte man eines der ursprünglichen Kellerstöckl mieten. Das sind Gebäude inmitten der Weinberge, die früher den Helfern während der Weinernte als Schlafplatz dienten und in dessen Kellern die Reben verarbeitet wurden. Ein solches Kellerstöckl war Entwurfsgrundlage für Judith Benzers ausgezeichnetes Sommerhaus. „Das Haus sollte wie die Kellerstöckl aus einem einzigen fließenden Wohnraum in Holzbauweise und einem massiven Keller bestehen.“ Wohn- und Schlafraum sind durch eine Wandscheibe getrennt, an der die einläufige Treppe auf die Galerie führt. „Den Keller haben wir nur von außen zugänglich gemacht, um das Klima dort möglichst konstant zu halten.“ Wie aus einem einzigen Stück Holz geschnitzt, wirkt das Haus mit der durchgehenden Lärchenholzfassade aus der Ferne. Vor allem, wenn alle Klapp- und Faltläden geschlossen sind, denn diese schließen fassadenbündig. Werden die Läden an den langgezogenen Fensterbändern im Sommer aufgeklappt, sorgen sie für Verschattung der Fenster, da sie nach oben geöffnet werden. Als würde man die Hand über die Augen halten, hat man so einen gerahmten Blick über die Weinberge.
Mildes Klima
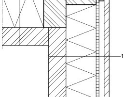
Die unbehandelten Wände im Wohnraum offenbaren die Konstruktion des Gebäudes: Innen die sichtbaren Brettsperrholzplatten aus heimischer Fichte, außen diffusionsoffene Holzwerkstoffplatten als Unterkonstruktion für die vorgehängte Fassade aus sibirischer Lärche. „Wir haben uns für sibirische Lärche entschieden, weil sie weniger Asteinschlüsse hat und langlebiger ist.“ Als Dämmstoff kam Steinwolle zum Einsatz. Das Südburgenland ist klimatisch sehr begünstigt. „Hier herrschen vom Frühling bis in den Herbst sehr milde Temperaturen.“ Auf eine Heizung wurde daher verzichtet. „Es gibt jedoch die Möglichkeit, elektrisch zu heizen“, erklärt Judith Benzer. Sollte es trotz des milden Klimas schneien, sorgen das steile Dach und die breiten Fugen zwischen den Lärchenholzbrettern dafür, dass der Schnee nicht lange liegen bleibt. Das Dach ist als hinterlüftete Konstruktion mit EPDM-Bahnen als wasserführender Schicht aufgebaut. Um die homogene Außenform nicht durch Regenrinnen zu zerstören, verlaufen Kastenrinnen in der Dämmebene der Wände.
Umtriebige Ruheständler
Wenn die Bauherren in fünf Jahren in den Ruhestand treten, wollen sie ihre Zeit zum Weinanbau nutzen. Damit die Reben zu diesem Zeitpunkt Trauben tragen, die sich für die Weinherstellung nutzen lassen, muss das Land darauf vorbereitet werden. „Im Moment wird auf dem Grundstück nach der notwendigen Fruchtfolge erst Mais, dann Klee und Senf angebaut.“ Erst dann ist der Boden bereit für die Weinstöcke, die noch vier bis fünf Jahre brauchen, bis sie Trauben eines bestimmten Ausmaßes tragen. Das Haus ist schon jetzt bereit. Der aus Sichtbeton erstellte, von drei Seiten von Erdreich umgebene Keller, bietet genug Fläche für die Weinpresse, die Gärtanks und einen abgeschlossenen Bereich für die Lagerung der Eichenfässer und das Flaschenlager. Die Weinernte kann kommen. Ulrike Meywald, Münster
