Grüner Wohnen Büro- und Wohnquartier Elmpark, Dublin
Am Rande von Dublin errichteten Bucholz McEvoy Architects ein urbanes Stadtquartier zum Wohnen, Leben und Arbeiten. Die Natur bezogen sie als Energielieferant geschickt mit ein, auch den mitunter rauen Wind an der irischen See.
Am Südrand des Zentrums der irischen Hauptstadt liegt Dublin 4, einer der vornehmsten und teuersten Wohnbezirke der Stadt. Inmitten von Einfamilien- und Reihenhäusern, Konsulaten, Botschaften, einem Golfplatz und einer Universität entstand 2008 eine der größten Büro- und Wohnanlagen Irlands. Elmpark ist eine kleine Stadt in der Stadt: mit Wohn- und Bürogebäuden, einer Privatklinik, einem Konferenzzentrum, einem Fitnessstudio mit Schwimmbad, einem Kindergarten, Seniorenwohnungen, Bars und Cafés.
Das leicht abschüssige, sieben Hektar große Grundstück liegt direkt an der irischen See. Im Südwesten erheben sich die Dublin Mountains. Bislang nutzte das benachbarte Konvent der „Sisters of Charity“ das Gebiet als klostereigenes Weideland – nur deshalb konnte es solange als Einheit erhalten bleiben. Trotz der gewaltigen Baumasse – unter anderem entstanden 30 000 m2 Bürofläche, 322 Appartements und 100 Seniorenwohnungen – gelang es den Architekten Merritt Bucholz und Karen McEvoy den Charakter einer begrünten Parklandschaft weitgehend zu erhalten.
Die unterschiedlichen Nutzungen verteilen sich auf sechs achtgeschossige Gebäuderiegel: Zur Marrion Road im Nordosten schirmt ein mehrfach abknickendes Gebäude das Gelände ab, in dem sich eine Privatklinik und Büros befinden. Zum angrenzenden Golfplatz im Westen begrenzt ein langes, geschwungenes Wohngebäude das Gebiet. Zwischen den beiden abknickenden Gebäuden liegen parallel zueinander drei gerade, jeweils 110 m lange Büroriegel sowie ein weiteres Wohngebäude. Die Seniorenwohnungen sind am Südrand des Grundstücks in sieben zweigeschossigen Gebäudefingern untergebracht, die einen sanften Übergang zur angrenzenden, kleinteiligen Wohnbebauung im Süden bilden.
„Unsere Idee war es, eine grüne Lunge inmitten der Stadt zu schaffen, die Meer und Berge miteinander verbindet“, sagt Architekt Merritt Bucholz. Aus diesem Grund ist das Gelände – bis auf Taxis und Krankenwagen – autofrei gehalten. Nur schmale Geh- und Radwege durchziehen die Gartenanlage. Die Autos parken in einer natürlich belüfteten Tiefgarage mit rund 480 Stellplätzen.
Ein Großteil der Gebäudemasse wurde in den unteren zwei bis drei Geschossen aufgeständert, so dass mehr Licht und Luft in die Gartenhöfe zwischen den Gebäuderiegeln dringen. Jeder der Gärten ist unterschiedlich gestaltet: Zum Meer hin wurden Farne und Pinien gepflanzt, zur Bergseite Rhododendron oder Heide. Das Gelände fällt zum Wasser leicht ab. Kleinere, bepflanzte Hügel durchziehen die Gärten und schützen sie ein wenig vor den kräftigen Südwestwinden aus den Bergen. Ein Teil der Grünanlage, der Wege und Plätze wird von haushohen, gläsernen Flugdächern beschirmt. Das Dachtragwerk dieser Glasdächer, der sogenannten „Canopies“, besteht aus einer mehrfach gefalteten, unterspannten Stahl-Holzkonstruktion, bei der kaum ein Bauteil dem anderen gleicht.
Die Nebengebäude – Kindergarten, Fitness-Center, Konferenzzentrum und Restaurants – sind in zweigeschossigen Gebäudekuben untergebracht, die unter den aufgeständerten Riegeln eingeschoben sind und die Anlage kleinteiliger erscheinen lassen.
Energiekonzept
Bucholz McEvoy Architects sind in Irland bekannt für umweltschonendes Bauen. Das Büro aus Dublin, das seit 2007 auch eine Dependance in Berlin hat, verbindet in seinen Arbeiten Ökologie und energieeffizientes Design und wurde dafür mehrfach prämiert, unter anderem 2001 mit dem Architekturpreis des Royal Institut of Architects für den „Fingal County Council“, ein Regierungsgebäude in Dublin. Auch beim Elmpark ist Nachhaltigkeit nicht nur ein trendiges Schlagwort, sondern die Grundlage des Entwurfs.
Die Energieversorgung der Anlage übernimmt ein Energiezentrum unter dem dritten Büroriegel. Geschickt wird dabei der je nach Tageszeit unterschiedliche Energiebedarf im Quartier genutzt: Tagsüber produzieren drei mit Holzpellets betriebene Blockheizkraftwerke den Strom für die Büros. Die dabei anfallende Abwärme wird morgens und abends zum Heizen und zur Warmwasserversorgung der Wohnungen eingesetzt. In Spitzenzeiten springt zudem ein Gasboiler ein.
Noch wichtiger war den Architekten, den Energiebedarf von vornherein auf ein Minimum zu reduzieren. So sind Büro- und Wohngebäude jeweils nur etwa 12,5 m breit, um die natürliche Belichtung und Belüftung maximal auszuschöpfen. Alle Gebäude wurden in Ost-West-Richtung ausgerichtet: Das erlaubt einen konstanten Tageslichteinfall und den Blick auf das Meer und die Berge. Vor allem aber lässt sich der vorherrschende Westwind als „natürliche Lüftung“ für die Büros einsetzen. „In Irland ist der Wind stärker als die Sonne“, erklärt Merritt Bucholz. „Deswegen haben wir die Gebäude so konstruiert, dass sie die Windkräfte nutzen, genauso wie die Sonne an den wenigen sonnigen, aber windstillen Tagen.“ In der Praxis funktioniert das so: Die häufigen Westwinde erzeugen einen kräftigen Unterdruck, der die kühlere Luft vor der Ostfassade ansaugt. Schmale, von Hand zu öffnende Lüftungsflügel an beiden Fassaden ermöglichen eine Querlüftung der Etagen. Wirkungsvoll unterstützt wird dieser Luftwechsel, sobald sich die Luft in der gegenüberliegenden, doppelschaligen Westfassade erwärmt und aufsteigt. Die Wärme, die sich in den Büros angestaut hat, entweicht und zieht über die nach oben offene Fassade ab. Das Gebäude be- und entlüftet sich quasi von selbst.
Design
Was Bucholz McEvoy unter energieeffizientem Design verstehen, lässt sich im Elmpark anhand der Fassaden erkennen: Die Gestaltung leitet sich stimmig aus der jeweiligen (Energie)Funktion ab. Feststehende, vertikale Holzlamellen schützen die Büros auf der Ostseite vor Überhitzung und rhythmisieren die Fassaden. Die raumhohen Glasfenster wurden wie Schuppen schräg gegeneinander versetzt, so dass die Büroangestellten vom Schreibtisch aus auf´s Meer blicken.
An den Westfassaden stützt ein rautenförmiges Holzfachwerk die gläsernen Windschilde. Aufgrund der Verschattung durch Nachbargebäude und der geringeren Windgeschwindigkeiten sind die unteren drei Geschosse nicht verglast. Stattdessen neigen sich die Träger wie ausgespreizte Finger von der Fassade weg. Für die frei bewitterten Stützen wurde Brettschichtholz aus kesseldruckimprägnierter Kiefer verwendet, in den geschützten Bereichen Fichte. Alle anderen Holzfassaden sind mit Lärche verkleidet, die mit der Zeit gleichmäßig verwittern und eine edle, graue Patina bekommen wird.
Wohnen
Die beiden Wohnriegel im Westen des Quartiers umfassen insgesamt 322 Appartements. Kompakte, als Dreispänner organisierte Treppenhäuser erschließen die Wohnungen. Die Wohnungsgrößen variieren von 46 m2 (für das Ein-Zimmer-Appartement) bis zu 159 m2 (für die Maisonette-Wohnungen im 7. und 8. Obergeschoss). Die kleineren und mittleren Appartements profitieren jedoch von großzügigen Wintergärten, die sich über raumhohe Schiebetüren zum Wohn- oder Schlafzimmer öffnen lassen; in den Ein-Zimmer-Appartements sogar zu beiden Räumen. Die Bewohner nutzen sie als ganzjährig witterungsgeschützten Panoramasitz, Leseraum oder Esszimmer.
Beim östlichen der beiden Wohnblöcke lugen statt der Wintergärten Boxen aus Glas und Aluminium vorwitzig aus der Fassade. Diese „Pop-Outs“ erweitern den Wohnraum und ermöglichen den Bewohnern einen traumhaften Blick auf das Meer, den Stadthafen und die vorgelagerte Halbinsel Howth. Jede Box ist durch eine Glastür mit einem Balkon verbunden. Um Zeit und Montagekosten zu sparen, wurden die Boxen komplett im Werk vorgefertigt, ebenso Bäder, Küchen und Toiletten.
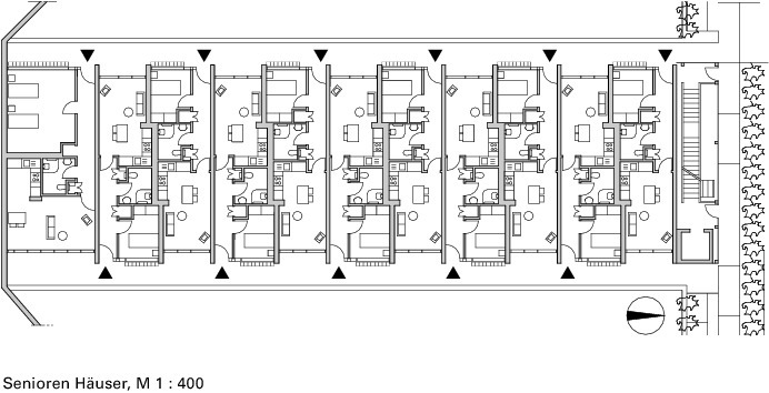
In den sieben zweigeschossigen Fingern am Südrand des Grundstücks sind 100 Seniorenwohnungen und ein kleines Gemeindezentrum untergebracht. Zwischen den einzelnen Riegeln öffnen sich Innenhöfe, die nach Süden von einem Felshang begrenzt werden. Laubengänge erschließen die barrierefreien Wohnungen: Dort tauschen sich die Bewohner aus, spielen Karten oder sitzen in der Sonne. Mit einfachen Mitteln werden private, halbprivate und öffentliche Räumen geschaffen, etwa durch die Vor- und Rücksprünge der Glasfassade oder weit herausgezogene Wandschotten. Ein Sichtschutz aus raumhohen, sägerauhen Brettern verstellt den Blick ins Schlafzimmer, während die Bewohner herausschauen können und so Anteil haben am öffentlichen Leben. Michael Brüggemann, Mainz
