Haus Schreber, Aachen
Mit „reduce, reuse, recycle“ hat Muck Petzet, der Generalkommissar des deutschen Beitrages auf der diesjährigen Architektur-Biennale in Venedig denselben überschrieben. Als ein gelungenes Beispiel für den Umgang mit Bestandsgebäuden wird im Rahmen der Biennale das Erweiterungsprojekt Haus Schreber von Amunt aus Aachen präsentiert.
„Wir wollten zeigen, dass die Erweiterung aus einer anderen Epoche stammt“, so erklärt Björn Martenson vom Architekturbüro amunt das Grundanliegen des Entwurfes. Die Erweiterung des Siedlerhauses aus den 1920er Jahren begreift er als einen Versuch, den Bestand, auch in Hinblick auf die seinerzeit eingesetzten Bautechniken, mit zeitgemäßen Techniken und Materialien in dessen Sinne fortzuschreiben. Historisierende Details, wie etwa die Verwendung im alten Stil gefertigter Ziegel, passen ebenso wenig zu diesem Anliegen, wie die Schaffung eines aufwändigen, formalen Kontrastes.
Entwurfskonzept
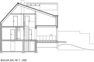
Der sanierte Bestandsbau ist der südliche Teil einer Doppelhaushälfte. In Höhe der mittleren Brandwand standen früher einmal zwei eingeschossige Lagerschuppen quer zur Gebäudeachse. Schon in den 1980er Jahren errichtete der Nachbar an dieser Stelle einen weit ausladenden Wintergarten. Björn Martenson hatte angesichts der gegebenen Situation gleich den Impuls, den Komplex wieder in eine kubische Gesamtform zu bringen.
Auffälligstes Charakteristikum des Bestandsgebäudes ist das unübliche, um etwa 1,50 m erhabene Hochparterre. An der Stelle der Erweiterung befindet sich eine massive Bodenplatte. Es ist die Grundplatte einer ehemaligen Terrasse aus Beton. Der Anbau sollte jedoch niveaugleich an das Erdgeschoss ansetzen. Aufgrund des immensen Aufwandes entschloss man sich, die alte Platte zu halten, als Abstellfläche zu nutzen und den neuen Fußboden einfach als Tisch darüber zu spannen. Der Höhenversprung zum Garten wurde durch einen künstlichen Erdhügel kompensiert, der aus dem Abraum der Fundamente, des Regenwasserbeckens und der dazugehörigen Sickergrube besteht.
Mauerwerk
Bei den Wänden des Bestandes handelt es sich um zweischaliges Mauerwerk. Der tragende Kern besteht hier aus einem Leichtbimsstein. Auffällig ist die Erweiterung an der südlichen Giebelseite, wo das neue Mauerwerk an den Bestand anschließt. Der optische Bruch ist beabsichtigt: So effizient früher einmal der Einhandziegel war, so antiquiert ist diese Bauweise heute. Die Architekten betrachten das nun verwendete Steinformat 3DF (113 x 175 x 24 cm) als dessen zeitgemäße, mechanisierte Entsprechung.
Die signifikante Unschärfe im Übergang der beiden Mauerarten war unvermeidlich. Sie erklärt sich aus dem Abbruch der alten Rollschicht am Ortgang, einer erforderlichen Reparatur der dadurch beschädigten Steine und natürlich in dem Übergang vom alten Steinformat in das neue.
Obwohl die Steine des Anbaus einen dämmenden Effekt besitzen, wurden sie als hinterlüftetes Element bei den thermischen Berechnungen nicht in Betracht gezogen. Auch werden sie nicht als wasserführende Schicht eingestuft und sind in keiner Form behandelt oder versiegelt. Tragender Kern der Außenwände ist im Obergeschoss eine 20 cm starke Holzständerkonstruktion. Das tiefere Eindringen von Feuchtigkeit wird durch wasserfeste Faserzementplatten verhindert, mit der die Außenfront des Ständerwerkes beplankt ist.
Innenseitig sind die Ständer mit OSB-Platten bekleidet. Deren hoher Leimanteil erfüllt alle Anforderungen einer Dampfsperre, weshalb ein zusätzliches Einfügen einer solchen unnötig war. Während die Vormauerschale in gerade Linie entlang des neuen Ortganges abgesägt und mit einem Traufholz verblendet wurde, geschah die Verbindung der Dachsparren mit dem Holzständerwerk einfach durch Verschraubung.
Innenausbau
Gleichwohl die der Straße zugewandte Westfassade der Doppelhaushälfte weitgehend unverändert blieb, wurde die innere Raumfolge stark verändert. Um Zugänge zu der neuen, wintergartenartigen Küche zu erhalten, mussten die Brüstungen der zwei Bestandsfenster abgebrochen werden. Völlig neu angelegt wurde das Obergeschoss. Der typische Dachboden im Giebelbereich wurde aufgegeben. Alle Wohnräume reichen bis in die Dachschräge und bis unter den First. Geschickt nutzten die Planer diese Höhe, um in zwei der Räume Zwischenebenen einzuziehen. Dabei beschränken sich diese nicht nur auf die Grundrissfläche der jeweiligen Zimmer, sondern überdecken auch Bereiche ohne Dachschräge, wie das Badezimmer oder das Treppenhaus. Diese Emporen sind über Stellleitern zugänglich.
Fazit
Die Erweiterung des Hauses Schreber stellt nicht nur unter Beweis, dass eine Sanierung und Erweiterung von Bestand nicht nur kostengünstig machbar ist, sie zeigt, dass man mit der Verwendung „einfacher“ Mittel auch ästhetisch mehr als ansprechende Architektur schaffen kann: nämlich vorbildliche!
Baudaten
Objekt: Schreber_Sanierung eines Siedlungshauses
Standort: Aachen Richterich
Architekten und Bauleitung: amunt – architekten martenson und nagel theissen, www.amunt.info
Planungs- und Bauzeit: 2010–2011Fachplaner
Tragwerksplanung: Ingenieurbüro Jürgen Bernhardt, Köln
Energetische Planung: Dipl. Ing. Jörg Lammers, Berlin
Projektdaten
Grundstücksgröße: 650 m²
Wohnfläche: 133 m²
Bruttogeschossfläche: 168 m²
Brutto-Rauminhalt: 621 m³ Baukosten
Gesamt brutto: 190.000 €
Gesamt netto (HNF): 1428€/m²
Brutto-Rauminhalt: 306 €/m³
Energiekonzept
Jahresheizwärmebedarf: 78,4 kWh(m²a)
Primärenergiebedarf: 91,2 kWh(m²a)
U-Werte Außenwand: 0,20 W/m²K 11,5 cm, Porenbeton-Plansteine, 5 cm Luftschicht 15 mm Zementfaserplatte 20 cm Holzständerwerk, Mineralwolledämmung, 20 mm OSB Platten, Stöße verklebt, 12 mm Gipskartonplatten, Anstrich
Kellerfußboden: 0,29 W/(m²K), 16 cm Stahlbetondecke, 60 mm PUR Hartschaumplatten WLG 024
Dach (geneigtes Dach als Warmdach): 0,20 W/(m²K), Betonsteindeckung, 20 bzw. 24 cm Sparren, Zwischensparrendämmung Mineralwolle WLG 032, Dampfsperre 12 mm Gipskartonplatten
Uw-Wert Fenster Altbau:Zweifachverglasung WSV: 1,2 W/(m²K)
Uw-Wert Fenster Anbau: Dreifachverglasung WSV: 0,9 W/(m²K)
