Dansehallerne, Nationales Zentrum für Tanz und Choreografie, Kopenhagen/DK
Das ehemalige Kesselhaus einer Brauerei bietet heute professionellen Tänzerinnen und Amateurinnen aus ganz Dänemark einen Ort, an dem sie proben, aufführen, zusammenkommen und lernen können. Auf unerwartete Weise passt sich hier der menschliche Maßstab dem industriellen an. Durch die gezielte Intervention von Mikkelsen Arkitekter wird das für die Industrie gestaltete Gebäude zu einem zentralen Kulturort für die gesamte Nachbarschaft.
Das imposante Kesselhaus befindet sich am südlichen Eingang des Stadtteils Carlsbergbyen in Kopenhagen und ist Teil des denkmalgeschützen Gebäudeensembles der dänischen Brauerei Carlsberg. Gegründet wurde das Unternehmen 1847 auf dem damals noch unbebauten Hügel in Valby, es ist heute der drittgrößte Bierkonzern weltweit. Mit der Firmenübernahme durch Carl Jacobsen, Sohn des Gründers und Namensgebers, wurde die Brauerei international erfolgreich. Bis 2007 wurde das weltberühmte Bier am Standort in Valby produziert, 2008 wurde die Produktion hier eingestellt und ins jütländische Fredericia verlegt. Die historischen Gebäude auf dem Produktionsgelände wurden zu Gewerbe, Gastronomie, Museum und Forschungsinstitut um- und ausgebaut. Eine kleine Spezialitätenbrauerei blieb nach dem Umzug erhalten.
Um das Gamle („Alte“) und das Ny Carlsberg („Neue Carlsberg“) herum entsteht heute ein ca. 30 Hektar großes Quartier. 2007 gewann das dänische Büro Entasis den Wettbewerb für die Planung. Für dieses neue urbane Zentrum, wenige Minuten vom Hauptbahnhof Kopenhagens entfernt, etabliert sich nun ein reiches Angebot an Nutzungen für die Öffentlichkeit. Neben der 2024 eröffneten Dansehallerne, das Nationale Zentrum für Tanz und Choreografie, entstehen hier viele Gastronomie-, Gewerbe- und Kulturangebote. 2027 soll auch das letzte freie Grundstück bebaut werden.
Finanzierung und Anfänge
Die Grundstücksaneignung durch Dansehallerne – der Name der Institution ist Programm – war jedoch nicht ganz so gradlinig. Als gemeinnützige Institution darf sie kein Eigentum besitzen, so finanziert sie sich durch eine Stiftung, die Gelder durch private und öffentliche Sponsorinnen sammelt. Die erste Spendensammlung für das Projekt von Mikkelsen Arkitekter aus Kopenhagen verlief nicht so wie erhofft. So konnte die Planung erst nach der Schenkung des Gebäudes durch Carlsberg selbst beginnen. Der Architekt Nikolaj Rahbek Ernst, der seit Beginn des Prozesses maßgeblich beteiligt war – erst selbstständig, später dann als Partner bei Mikkelsen –, erzählt, dass die Finanzierungsschwierigkeiten dem Projekt letztendlich zugute kamen: „Am Anfang hatten wir ein viel umfangreicheres Raumprogramm. Doch recht bald wurde klar, dass wir das durch die steigenden Baukosten nicht umsetzen konnten. Dadurch konnten wir dann aber dem Bestand mehr Raum lassen und die Eingriffe so zurückhaltend wie möglich gestalten.“
Bestandsgebäude
Das Bestandsgebäude von 1927 war der Produktion von warmem Wasser für den Brauprozess gewidmet. Vier große Kessel füllten die große Halle; die notwendige Kohle für die Maschinen wurde durch die heute noch sichtbaren Trichter im Dach eingeführt. Von der heutigen, neuen Nutzung lässt sich an der historischen Fassade kaum etwas ablesen: Das Gebäude sollte nach Auflagen des Denkmalschutzes bis auf wenige notwendige Eingriffe seine ursprüngliche Gestalt beibehalten. „Mit diesen Brandschutzmaßnahmen haben wir am Anfang nicht gerechnet. Wir mussten das Gebäude innen und außen durch Sandstrahlung von toxischen Materialien reinigen und mit einer speziellen Farbe neu streichen. Das war sehr teuer – heute planen wir dafür immer etwas Puffer ein“, so der Architekt.
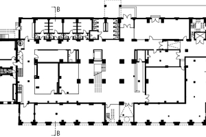
Das Tragwerk der Halle, die ca. 30 m spannt, besteht aus zehn 18 m hohen Stahlbetonbögen, die paarweise gegliedert sind und den stützenfreien Raum für die großen Maschinen gewährleisten. Die großen Kessel lasteten nicht auf dem Boden der Halle, sondern direkt auf den Stützen im Sockelgeschoss. Der Boden wurde mit besonderem Merkmal auf Trittschalldämmung hinsichtlich der neuen Nutzung ertüchtigt.
Das Tragwerk der Halle besteht aus zehn Stahlbetonbögen, die den freien Grundriss ermöglichen. Die Box mit der Tribüne wurde hineingesetzt und bleibt statisch unabhängig
Foto: Adam Mørk
Offenes Erdgeschoss
Das Sockelgeschoss, zu Betriebszeiten mit einem Rohrsystem gefüllt, welches das erhitzte Wasser in das gesamte Brauerei-Gelände leitete, öffnet sich über seine gesamte Länge zum Vorplatz hin: Der Boden um das Kesselhaus wurde geebnet, die historischen Bogenfenster wurden nach unten hin erweitert und zu Türöffnungen umgestaltet. Zur Straße und zum neugestalteten Platz laden Restaurants und Cafés die Öffentlichkeit zum Verweilen ein. Durch den dezentral platzierten Haupteingang gelangen Besucherinnen in das Foyer, das ganztägig zugänglich ist. Ein Rezeptions- und Cafétresen empfängt Tänzerinnen und Gäste, die die informellen Sitzmöglichkeiten und die Tanzstudios im Erdgeschoss nutzen können.
Der Eingangsbereich im Erdgeschoss ist ganztägig frei zugänglich. Hinter der Stahltreppe fällt der Blick auf die verglasten Studioboxen
Foto: Adam Mørk
Die vier unterschiedlich großen Studios füllen den Raum zwischen den Stützen und sind als isolierte Glaskästen ausgeführt. Bei geöffneten Vorhängen können Neugierige einen Blick in die laufenden Tanzproben werfen. „Bei den Studios haben wir besonders auf die Bodeneigenschaften geachtet. Unterschiedliche Tanzstile haben unterschiedlichen Bedarf an Oberflächen, sodass mal Linoleum, mal Parkett zu sehen ist. Dafür haben wir eng mit Dansehallerne zusammengearbeitet, damit wir den Bedürfnissen der Nutzenden gerecht werden“, so Nikolaj Ernst. Das gesamte Erdgeschoss ist ohne Schwellen ausgebildet, um eine durchgängige Barrierefreiheit zu gewährleisten. Informelle Sitzmöglichkeiten und eine Teeküche im hinteren Bereich stehen allen Besucherinnen und Tänzerinnen zur Verfügung.
Hinter den Kulissen ist vor den Kulissen
Die für Dansehallerne konzipierte Gebäudestruktur kehrt die klassische Theater-Typologie um: Das, was meist „hinter der Bühne“ versteckt bleibt, begegnet Besucherinnen beim Betreten des Gebäudes. Probe- und Umkleideräume, Werkstätten und Besprechungsräume stehen nun im Vordergrund des Geschehens: „Es war allen Beteiligten von Anfang an wichtig, dass Dansehallerne so viele Menschen wie möglich in der Stadt anspricht. Das Gebäude soll immer für Jung und Alt, Tänzerinnen und Zuschauende zugänglich sein“, so der Architekt. Dabei entstehe ein Haus, dass nicht nur seinem eigenen Publikum dient, sondern auch Außenstehende anziehen und begeistern möchte.
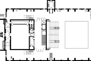
Seitlich des Eingangsbereichs liegt die Haupterschließung von Dansehallerne: Eine einflügelige Stahltreppe nebst Fahrstuhl verbindet das Erdgeschoss mit dem Obergeschoss. Doch bevor sich der große Freiraum der Halle den Besucherinnen offen-bart, erreicht man ein geschlossenes, kleineres Foyer, das in die „Blackbox“ führt, ein Tanzstudio für Aufführungen, das, wie der Name bereits verrät, ganz in Schwarz gehalten ist. Seine mobile Tribüne kann frei im Raum positioniert werden und bietet den Künstlerinnen freie Gestaltungsmöglichkeit des Programms.
Das zweite, kleinere Foyer im Obergeschoss erschließt die „Blackboxen“ und dient als Vorraum für die Halle, Herzstück des Gebäudes
Foto: Adam Mørk
Vom Foyer aus gelangen die Besucherinnen durch Pivot-Türen in die ehemalige Kesselhalle, Herzstück des Gebäudes und heute der zentrale Veranstaltungsraum von Dansehallerne. Blickt man von dieser mehr als 1 100 m2 großen Fläche auf das Volumen, aus dem man gerade heraustrat, wird dieses als eigenständiges Raumelement lesbar: eine zweigeschossige, aluminiumverkleidete Box, die statisch unabhängig von der Bestandskonstruktion die westliche Seite der Halle füllt. Zwei konstruktiv entkoppelte Treppen führen rechts und links davon auf die zweite Ebene, wo sich ein Tanzstudio mit Blick auf die Halle und ein Technikraum befinden. Eine teleskopische Tribüne mit ca. 170 Sitzplätzen mit Blick auf die Halle kann sich hinter den perforierten Falttüren zurückziehen und verstecken. Die Box passt sich somit dem Veranstaltungsprogramm an: Wird die gesamte verfügbare Fläche benötigt, schließt sie sich zu einer kompakten Form, wird dagegen mehr Raum für Zuschauende nötig, wird dies durch die Tribüne möglich gemacht.
Eine bereits vorhandene Öffnung im Boden wurde hier erweitert und mit der Haupterschließung gefüllt. Die Pivot-Türen führen Besucherinnen in die Halle
Foto: Adam Mørk
Das Gebäude spielt mit
Dennoch – die imposanten Betonbögen, die Dachkonstruktion, die Kohle-Trichter und die Schornsteinöffnungen, die großen Fensteröffnung an den Längs- und Kurzseiten sowie die teilweise im Original belassenen Laufstegsysteme machen aus dem Raum keine neutrale Umgebung. „Die Tänzerinnen und Tänzer nutzen diese Qualitäten ganz bewusst mit. Es gibt hier oft Aufführungen, bei denen die Laufstege oder die Fenster eingebunden werden. Wenn ein neutralerer Kontext erwünscht ist, steht aber dennoch die Blackbox zur Verfügung.“ Der Architekt erzählt weiter, dass diese Elemente saniert, ertüchtigt und für ihre neue Nutzung optimiert wurden. So wurde z. B. das Dach von außen gedämmt, sodass die von innen sichtbare Fläche, die ursprüngliche Holztafeloptik, heute durch eine ad hoc konzipierte, akustische und brandschutzkonforme Täfelung ersetzt, beibehalten werden konnte. Den raumhohen Fenstern wurde von innen eine zusätzliche Verglasung vorgesetzt, die sowohl dem Denkmal als auch dem Innenklima gerecht wird. Um Letzteres zu gewährleisten, wurde ein umfassendes Lüftungssystem eingebaut, das, so der Architekt, jedoch laut und raumeinnehmend sei. Er habe sich zwar mit seiner Ästhetik angefreundet – sie passe eigentlich ganz gut zum Charakter der Halle – jedoch nicht mit dessen Lautstärke.
Auch für das Material der Einbauten diente die ehemalige Nutzung des Kesselhauses als Inspiration. Der normalisierte Stahl der Treppenläufe und des Aufzugs zitiere die Materialität der ehemaligen Kessel, erklärt der Architekt. Dass an seiner Oberfläche bereits Nutzungsspuren zu sehen sind, sei ein willkommener Nebeneffekt. Auch an anderen Stellen wird die historische Nutzung des Gebäudes zitiert, wie etwa bei der Aluminiumbekleidung der Box, die den industriellen Charakter der Halle aufgreift und gleichzeitig durch die vorhangartige Wellung der Platten auf die aktuelle Nutzung hinweist.
Der Schornsteinschacht sowie das Laufstegsystem erinnern an die ehemalige Nutzung des Gebäudes als Kesselhaus. Die großen Fenster an der Kurzseite dienen heute auch der Anlieferung
Foto: Adam Mørk
Bedachte Überraschung
Dansehallerne öffnet sich mit gezielten, effektiven Gesten ihrem neuen Publikum, ohne dabei den Überraschungseffekt zu vergessen. Das schlichte, funktionale Erdgeschoss bereitet spannungsvoll auf das vor, was die Besucherinnen im oberen Geschoss erwartet. Doch bevor die große Überraschung enthüllt wird, bewegen sich diese durch die historischen Schichten des Gebäudes. Oben angelangt, wird die Spannung aufgelöst – und die Erwartung nicht enttäuscht. „Dieser Spannungsbogen lag der Aufgabe nahe. Wir wollten die einzigartigen Räumlichkeiten selbst zur Sprache kommen lassen. Das Neue sollte das Alte noch mehr zum Vorschein bringen“, sagt Nikolaj Ernst. In einem eleganten Pas des deux spannen sich die Betonbögen wie eine schützende Hülle über die Tanzfläche. Trotz der hohen Decken und sakralen Atmosphäre schaffen sie im Kesselhaus einer ehemaligen Brauerei den passenden Maßstab für tänzerische Ausdrucksformen.
Amina Ghisu/DBZ
Der normalisierte Stahl der eingebauten Treppe erinnert an das Material der Kessel. An dieser Stelle werden die Schichten des Bestands offengelegt
Foto: Adam Mørk
Projektdaten
Objekt: Dansehallerne
Standort: Carlsberg Byen, Kopenhagen/DK
Typologie: Kulturbau
Bauherrin: Bygningsfonden Kedelhuset
Nutzerin: Dansehallerne
Architektur: Nikolaj Rahbek Ernst, Partner Mikkelsen Architects, Kopenhagen/DK www.mikkelsengroup.dk
Projektteam: Clive Hennessey, Jan Philip Holm, Rasmus Klavsen
Generalunternehmer: Julius Nielsen & Søn, Kopenhagen/DK www.jns.dk
Bauzeit: 01.2023 – 08.2024
Grundstücksgröße: 2 423 m²
Bruttogeschossfläche: 4 300 m²
Brutto-Grundfläche: 1 750 m²
Baukosten gesamt: 16,2 Mio. €
Fachplanung
Tragwerksplanung: Vita Engeneering, Kopenhagen/DK, www.vitaing.dk
TGA-Planung: Vita Engeneering
Lichtplanung: Mikkelsen Arkitekter
Elektroinstallation: Vita Engeneering
Innenarchitektur: Mikkelsen Architects
Energieplanung und -beratung: Vita Engeneering
