Coreum, Stockstadt am Rhein
Die Faszination großer Maschinen lässt sich an diesem Ort hautnah erleben. Über 50 Partner sind im Außengelände und in den Themenwelten vertreten. Das Coreum ist aber weit mehr als ein Showroom mit Praxisteil. In der Akademie finden diverse Trainingsmöglichkeiten statt und die Eventfläche lädt zu vielfältigen Veranstaltungen ein. Ein Ort, wo Erwachsene wieder Kind sein dürfen und abends müde in die Betten des dazugehörigen Hotels fallen.
Kinder auf Dreirädern bleiben mit offenen Mündern stehen, Männer im „besten Alter“ riskieren einen kritischen Blick. Wann immer Bagger und schwere Baumaschinen ins Spiel kommen, ziehen sie alle Blicke auf sich. Muss man wirklich für sie werben? Nein. Aber man muss zeigen können, was sie so alles drauf haben. Und dafür braucht man Platz. Viel Platz!
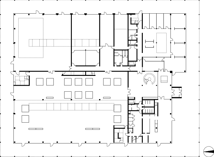
Übersicht über den Coreum Campus mit seinen Bau- und Funktionsteilen
Bild: atelier 522
Das Coreum eröffnete im Oktober 2018 in Stockstadt am Rhein – nur eine dreiviertel Stunde mit dem Auto von Frankfurt am Main Richtung Süden. Hier, abseits der ausgetretenen Messepfade, bietet die Kiesel Group ihren Kundinnen und Kunden mehr als nur einen Showroom, der mit seiner Funktionalität, Ästhetik und schieren Größe auch auf die Marke selbst abstrahlt: So umfasst das Areal eine Gesamtfläche von 120 000 m², davon 80 000 m² Demofläche im Außenraum und 5 500 m² im Innenforum für Schulungen, Tagungen und Events.
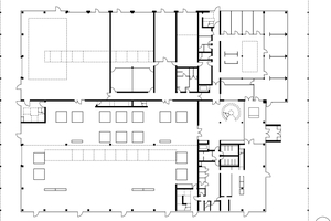
Werkstattbereich mit Kommunikationsinsel
Bild: atelier 522
Die konzeptionelle Wurzel reicht zurück bis 2010, initiiert von Toni Kiesel, formte sich 2012 zu einer verifizierten Vision, die mit dem Spatenstich 2017 die bauliche Realisierung in Bewegung setzte. Ursprünglich als Aus- und Weiterbildungszentrum und Marken-Showroom vorgesehen, dient der Campus der systematischen Markenführung und dem räumlichen Markenauftritt der Kiesel Group. Heute definiert das Coreum Markenarchitektur und Bildungsraum neu. Aus den vielen Dialogen mit Kunden, Partnern, Lieferanten und Verbänden entstand eine stetige Weiterentwicklung der Idee, mit dem Ziel, die Faszination Baumaschinen für jeden spürbar und nachvollziehbar zu gestalten. Der Name Coreum entstand aus einem internen Ideenwettbewerb bei Kiesel, es handelt sich um eine Wortschöpfung. Das Wort kombiniert Core – das Herz der Bau- und Recyclingbranche – mit Forum – einem Ort der Begegnung.
Filigrane Stahlstützen in Kombination mit Glas gewähren tiefe Einblicke
Foto: atelier 522
Die Entwicklung des Campus in Stockstadt am Rhein begann bereits Ende der 2000er-Jahre und ist noch nicht abgeschlossen. Die im Coreum eingesetzten robusten Materialien Beton, Stahl und Glas entsprechen dem Verwendungszweck und signalisieren die bauliche Herkunft des Unternehmens.
Den bisherigen Abschluss des Campus bildet das Coreum Hotel mit seinen 129 Zimmern. Es schließt sich fließend an die Ausstellung- und Veranstaltungsflächen an und prägt seit April 2023 das architektonische Gesamtkonzept des Campus.
Das Coreum fungiert als multifunktionale Einrichtung auf sechs Säulen und lässt Bauwirtschaft, Recycling und Materialumschlag zusammenkommen. Es ist Plattform, Showroom, Eventlocation und nicht zuletzt ein Ort der Gastlichkeit. In der Ausstellung und im Expo-Park Bau präsentieren über 50 Marken das ganze Jahr über ihre Produkte und Lösungen – immer mit Fokus auf Praxisnähe. Allein der Außenbereich gliedert sich in 12 Aktionsflächen.
Showroom und Training im Sandkasten
Das Coreum arbeitet mit über 50 Marken und Partnern aus den Bereichen Bau, Materialumschlag und Recycling zusammen. Diese Partnerschaften machen aus dem Coreum eine branchenübergreifende Plattform. In dieser kooperativen Umgebung werden Innovation und Entwicklung gefördert, um die jeweilige Branche voranzutreiben.
Ein zentrales Highlight des Coreum ist der 2,5 m tiefe Indoor-Sandkasten, der sowohl Trainings- als auch Produktpräsentationen eine einzigartige Kulisse verleiht. Tief in den Raum hinein gespült, bietet er eine skulpturale Anmutung und eine unverwechselbare Textur, die Materialität und Raumwirkung zugleich erfahrbar macht. Umgeben von schlanker Architektur, großflächigen Sichtfenstern und einer ruhigen Farbgebung fungiert der Sandkasten als multisensorischer Ankerpunkt, der Aufmerksamkeit lenkt, ohne die Atmosphäre zu bedrängen. Mag ein Indoor-Sandkasten auf den ersten Blick ein wenig seltsam anmuten, steckt dahinter doch ein tieferer Sinn: Gerade bei schlechtem Wetter, wenn die Arbeiten auf den Baustellen landauf landab stillstehen, trifft man sich hier geschützt vor den Elementen zu Fortbildungen und Produktpräsentationen.
Mit 16 Tagungs- und Seminarflächen bietet das Coreum viel Platz für Aus- und Weiterbildung
Foto: atelier 522
Theorie trifft Praxis
Als einzigartige Bildungseinrichtung fokussiert sich die Coreum Akademie auf die Vermittlung von Know-how und Fertigkeiten in Bau, Materialumschlag und Recycling. Ziel ist es, praxisnahe Kompetenzen zu entwickeln, die in der Bauindustrie, im Recyclingsektor und verwandten Handwerksberufen unmittelbar anwendbar sind. Theorie trifft Praxis: Zahlreiche Versuchsflächen und drei Werkstätten bieten vielfältige Gelegenheiten zum Lernen und Anwenden von Wissen.
16 Tagungs- und Seminarflächen in variierenden Größen, geeignet für bis zu 200 Teilnehmende stehen für kleine und große Events, für Produktpräsentationen und Tagungen zur Verfügung. Die Räume zeichnen sich durch klare Linien, hochwertige Materialien und eine zeitlose Farbgebung aus. Großzügige Fensterflächen lassen natürliches Licht durchfluten, modulare Trennwände ermöglichen eine individuelle Raumnutzung, und ruhige Oberflächen sorgen für eine fokussierte Arbeitsatmosphäre.
Im atelier 522 entstand die Idee, ein Bällebad-Raumkonzept für einen motivierenden Ideenaustausch zu schaffen, damit Gedanken unbeschwert fließen können. Es macht einfach Spaß, den Ort und seine vielen liebevollen Details zu erkunden. „Wir vertreten die Idee, dass Markenarchitektur heute vor allem die Aufgabe zukommt, Besucher, Kundinnen und Belegschaft willkommen zu heißen, wie ein guter Gastgeber“, erklärt Philipp Beck, Gründer und Geschäftsführer von atelier 522. „Dazu gehört nicht nur, dass Licht, Atmosphäre und Materialien einladend gestaltet sind, sondern, dass das Gebäude auch unterhält, eine Geschichte erzählt und zum Verweilen einlädt.
Nach dem Tag im Coreum kann man am Boulevard direkt gegenüber in dem jüngsten durch das atelier 522 realisierten Projekt, dem Coreum Hotel, einchecken. Das 2023 fertiggestellte Hotel bietet auf sechs Etagen 129 Zimmer, Café, Bar, Lounge, Gym und auf dem Parkplatz auch Ladesäulen für das mitgebrachte E-Auto.
Das Coreum Hotel am anderen Ende des Boulevards
Foto: atelier 522
„Der Kiesel Group war es wichtig, dass sich hier jeder wohlfühlt – vom Monteur, der für eine Schulung anreist, bis hin zum internationalen Geschäftspartner, der das Coreum als Branchentreffpunkt nutzt.“, sagt Philipp Beck. „Deshalb haben wir so viel Liebe ins Detail gelegt.“ Bereits am Empfang fühlt man sich nach einem anstrengenden Tag durch die hochwertigen Oberflächen, natürlichen Hölzer und die klare Linienführung gut aufgenommen.
Die Spaten geben die Richtung an
Foto: atelier 522
Auch im Hotel sind es die spielerischen Details, die immer wieder einen Bezug zu dem Kerngeschäft der Kiesel Group bilden, die einen auf eine angenehme Art und Weise willkommen heißen. Die Gäste haben durch die rauen Oberflächen in den Zimmern auch immer wieder den Bezug zu dem Ort, an dem sie sich befinden. Die Zimmer sind mit allem Notwendigen ausgestattet und verzichten bewusst auf Chichi. Zum Feierabend lässt es sich mit den Kolleginnen und Kollegen bei einer Partie Billard oder dem gemeinsamen Dartspiel in gepflegter Atmosphäre entspannen. „Für uns als Designer und Architekten ist es natürlich ein Traum, ein solches Großprojekt von der Fahrzeughalle bis zur Visitenkarte mitgestalten zu können“, sagt Philipp Beck. „Dadurch erhalten wir die Gelegenheit, eine kohärente Geschichte zu erzählen, bei der Architektur, Design, Marke, Kunden- und Besuchererlebnis ein Ganzes ergeben, dass mehr als die Summer der Teile ist.“ Es gibt besondere Orte, an denen man sich sehr schnell wohlfühlt und sich auf das konzentrieren kann, weshalb man da ist. Ich freue mich auf meinen nächsten Termin im Coreum.
⇥Michael Schuster/DBZ
Projektdaten
Objekt: Coreum Forum + Hotel
Standort: Stockstadt bei Frankfurt
Typologie: Innovations-, Ausbildungs- und Veranstaltungszentrum (Multifunktionshalle) + Hotel
Bauherrin: Kiesel GmbH, www.kiesel.net
Nutzer/Nutzerin: Coreum GmbH, www.coreum.de
Planer: Georg Reisch GmbH & Co. KG (Forum),
www.reisch.de, atelier 522 GmbH (Hotel),
www.atelier522.com
Innenarchitektur: atelier 522 GmbH
Eröffnung: 2018 – 2023 (zuletzt das Hotel)
Areal: 120 000 m²
Außenbereich: ca. 80 000 m²
