Kimpton, Frankfurt am Main
Das in Frankfurt a. M. neu eröffnete Kimpton Hotel ist Teil eines frisch fertig gewordenen Hochhaus-Ensembles an prominenter Adresse. Dabei enthält sich das Hotel hinter seiner Bestandsfassade dem Geltungsbedürfnis seiner Umgebung und setzt auf eine farbenfrohe, moderne Innenraumgestaltung mit viel Liebe zum Detail. Entstanden ist eine hochwertige, den umgebenen architektonischen Superlativen entgegenwirkende Gastlichkeit, die mit ihren Referenzen, wie dem Bauhaus, einen menschlichen Maßstab anbietet, der an dieser Stelle nur guttun kann.
Das 5-Sterne-Hotel Kimpton ist einer der Bausteine, aus dem sich der Hochhauskomplex Four zusammensetzt
Foto: Sebastian Arlt
Four vor allem
Die Geschichte vom Kimpton in Frankfurt a. M. ist nicht ohne den gerade ebenfalls neu erwachsenden Hochhauskomplex Four zu erklären, denn das 5-Sterne-Hotel ist einer der Bausteine, aus dem sich das Four zusammensetzt. Entstanden ist das von UN Studio aus Amsterdam entworfene Hochhaus-Ensemble mit vier Türmen an prominenter Stelle in der östlichen Frankfurter Altstadt, direkt am Roßmarkt, auf dem Gelände des ehemaligen Deutsche Bank Areals. Der Komplex ist dabei eine Art durch Bestandsabriss ermöglichter Lückenfüller, dem zum Roßmarkt das Stammhaus der Deutschen Bank vorgelagert ist. Hinter diesem ragen nun gleich vier neue Türme in die Frankfurter Skyline und buhlen u. a. mit dem MainTower von Schweger + Partner, dem von Norman Foster entworfenen Commerzbank-Tower oder dem neueren Omnium Turm von Bjarke Ingels um Aufmerksamkeit.
Baustein Hotel
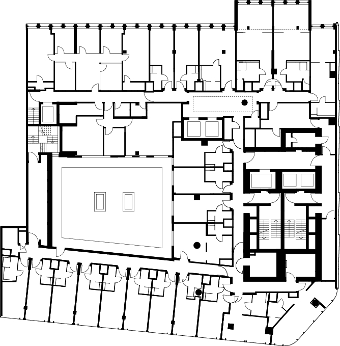
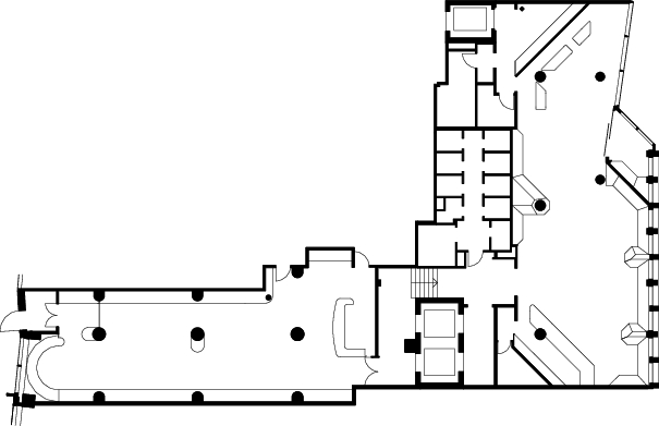
Das Kimpton bietet dabei gehobene Hotellerie in dem funktionsgemischten Neubau an, der auch Wohnen, Gewerbe und natürlich Büroflächen im Angebot hält. Untergebracht ist das Hotel mit dem angeschlossenen Restaurant Anni und der Dachgastronomie Lazuli dabei in dem für die Öffentlichkeit aufgebrochenen und durchwegbaren Sockel. Wer einen Blick in den ausführlich dokumentierten Bauprozess wirft, wird feststellen, dass lediglich die Fassade des Hotels noch original ist; der Rest, also der gesamte dahinter geschaffene Hochbau, ist neu. Die Fassade ist im Verhältnis zu den abgerundeten, etwas futuristisch wirkenden Türmen geradezu nüchtern und verschafft zumindest dem Kimpton einen Hauch von historischer Geltung.
Der diagonal in die Ecke gebaute Empfangstresen der Rezeption nimmt mit seiner Ausrichtung das Motiv der abgeschnittenen Ecken auf, …
Foto: Sebastian Arlt
Ein bisschen Bauhaus …
Die Gestaltung des Hotels wurde dabei inspiriert vom frühen Weimarer Bauhaus mit seinem handwerklich geprägten und interdisziplinär ausgerichteten Kosmos aus Formen und Farben. „Wir haben uns am Anfang des Entwurfsprozesses gefragt, welche Inspirationen wir aus Deutschland für das Projekt einfließen lassen könnten, um einen lokalen Bezug herzustellen und sind natürlich auf das Bauhaus gekommen“, erzählt Tom Bartlett von Waldo Works aus London, die federführend für die Inneneinrichtung waren. „Während meiner ersten drei Semester im Studium in Manchester habe ich einen Kurs zum Bauhaus gemacht“, so Bartlett. Ihm sei daher die Idee eines „handmade Modernism“ wichtig gewesen, der unterschiedliche Materialien aufnimmt und vom Möbel über die gewählten Kunstwerke bis zum Detail reicht.
Kräftige Kontraste fügen den Raum und seine Möblierung als Collage zusammen, womit auch die Arbeiten von Monika Gardyla ins Bild passen
Foto: Sebastian Arlt
… in den Gästezimmern
Dieser Anspruch betrifft vor allem die Zimmer mit ihrer gradlinigen, schnörkelfreien Formsprache, die immer wieder abgeschrägte Ecken aufweist und den Gästen so etwas mehr Bewegungsfreiheit verschafft. Farblich werden dazu ein sattes Blau, Rot oder Grün eingesetzt, was der ansonsten hellen Atmosphäre eine gewisse Gemütlichkeit verleiht. Um dabei die unterschiedlichen Einrichtungsgegenstände in Beziehung zu setzen, zieht sich diese Farbwelt über die verschiedenen Oberflächen. So sind beispielsweise Einbauten in Zimmer und Bad sowie Sessel oder Kissen in Blau oder Rot gehalten, Stühle oder Nachtischleuchten dafür in Grün. Boden und Farbflächen an der Wand sind dagegen heller ausgeführt, was die kräftigen Farben betont, ohne diese zu schwer zu machen. Chrom-Akzente lösen die geometrischen Formen etwas auf und verleihen einen postmodernen Touch.
… das sich auch bei den Sitzbänken in der Lobby wiederfindet, sowie in weiteren Einbauten, beispielsweise den Gästezimmern
Foto: Sebastian Arlt
Farbige Lobby
Ähnlich satt in den Farben, aber dafür stärker texturiert, geht es im Empfangsbereich im Erdgeschoss zu. Auch hier finden sich kräftige, allerdings dunklere Blau- und Rottöne, gemischt mit erdigen Farben und dazu natürlichen Oberflächen aus Stein oder Holz. Diese kommen beispielsweise für die Tische zum Einsatz, deren Form volumetrisch etwas an den oberen Teil einer dorischen Säule erinnern, mit einer Naturstein-Tischplatte als dünnem Abakus. Die runde Form wird auch für Sessel und Poufs aufgegriffen und weicht die recht geometrische Formensprache angenehm auf. Der etwas kalte, quadratisch gepixelte Boden findet sein Pendant in den rautenartig abgestuften Deckenleuchten, die in die Decke eingelassen sind und von Dan Flavins Arbeit inspiriert wurden, wie Bartlett erläutert. Um die Eingangssituation noch gastlicher zu machen, kommen zudem textile Oberflächen wie Teppiche zum Einsatz, was sich über die Sitzbänke bis zur Kunst an der Wand durchzieht.
Bar und Rezeption
Stilistisch etwas filigraner geben sich die benachbarte Rezeption und Bar. Die hier genutzten Stehhocker sind dank ihrer schlanken Gestelle recht elegant, was auch für die abgehängten Leuchten über dem Tresen zutrifft. Dessen filigranes Grundgerüst ist mit transluzenten, vertikalen Stäben ausgefacht, wodurch sich eine weite Lichtstreuung ergibt. Orientierung beim Empfang verschaffen neben den Tresen für Rezeption und Bar auch deren rückgelagerte, grüne Einbauwände, welche die aufgemachte Farbwelt weiterführen und durch die diagonale Positionierung die immer wiederkehrenden abgewinkelten Ecken aufgreifen und dabei eine einladende Adresse bilden.
Die massiven Stützen im Restaurant Anni verraten, dass es sich um einen Hochhauskomplex handelt, in dem das Kimpton untergebracht ist
Foto: Sebastian Arlt
Intime Atmosphäre im Restaurant
Eine vom Bauhaus-Stil etwas abweichende, jedoch nicht minder moderne Anmutung hat das im Erdgeschoss angegliederte Restaurant Anni, bei dem die Namensgeberin Anni Albers den Bezug zur Inspirationsquelle herstellt. Das Restaurant hat einen separaten Eingang und ist somit auch ohne den Hotelbetrieb zugänglich. Neben feinteiligen Einbauten, wie einer vertikal gegliederten Wandverkleidung und der hinterspiegelten Bar, dienen schlichte Bistrotische in rund oder eckig sowie eine entsprechende Bestuhlung als Einrichtung, was einen Anklang von Wiener Kaffeehaus-Schick ergibt. Die wuchtigen Stützen, die der darüber liegenden Hochhauskonstruktion entspringen, werden dabei durch einen schwarz-weiß kontrastierenden Fliesenspiegel verschleiert. Die durch dieses konstruktive Element entstehenden Räume und Nischen verleihen dem Anni dabei eine intime Atmosphäre.
Von den Einbauten über die Möbel bis zur Elektroinstallation und den Leuchten wurde so gut wie alles in den Zimmern von Waldo Works designt
Foto: Sebastian Arlt
Maritimes Feeling in der Skyline
Ein weiteres gastronomisches Angebot befindet sich auf dem Dach des Hotels, zwischen den umgebenen Türmen, quasi in der Frankfurter Skyline. „Wir haben uns für diesen Bereich von den Referenzen an die Schifffahrt, die es in der frühen Moderne gab, inspirieren lassen“, erklärt Bartlett. Er habe an das Deck eines Passagierschiffs denken müssen, als er das erste Mal auf der Terrasse stand. Dementsprechend wird hier immer wieder mit einem satten Blau gearbeitet und dieses mit Gelb kontrastiert. Der als dezent gefärbte Collage angelegte Deckenspiegel schließt den Raum gestalterisch nach oben ab. Im Vergleich zu den anderen Hotel-Bereichen ist das Lazuli, so der Name des Restaurants mit Bar, mit seinem glänzend blauen, runden Tresen und den Pflanzen verspielter und atmosphärisch lockerer.
Und Kunst!
Neben Tom war auch seine Schwester Laura Bartlett involviert, die als Kuratorin und Galeristin immer wieder mit Waldo Works zusammenarbeitet. Im Falle des Kimpton wurde ein Budget für Kunst festgelegt, um der Gestaltung der einzelnen Bereiche einen „roten Faden“ zu geben und zudem Qualität und Anspruch zu untermauern. „Leute, die Inneneinrichtungen machen, sind nicht unbedingt gut darin, über Kunst zu sprechen. Das ist einfach nicht unser Job“, so Bartlett. „Aber wir schlagen immer eine Beratung für so etwas vor, und dann arbeiten wir gerne mit Laura zusammen.“ Neben Arbeiten von Shu Takahashi und Wandskulpturen von Ruairiadh O’Connell entstanden so auch über 150 individualisierte Collagen von Monika Gardyla für die Gästezimmer.
It's a jumble!
Hotels möchten ihren Gästen immer ein erinnerbares Erlebnis bescheren. Das gilt in sich so stark wandelnden und vielschichtigen Städten wie Frankfurt a. M. umso mehr. Das Kimpton von Waldo Works ist in diesem Fall eine Welt für sich, die sich von der Lobby über die Gastronomie bis in die Zimmer wiederum in eigene kleine Welten aufteilt, die durch ihre übergeordnete Gestaltungssprache einen Zusammenhang bilden. Tom Bartlett erläutert in diesem Zusammenhang, dass er als Londoner an die Durchmischung in einer Großstadt gewöhnt sei und sie schätze. Er gibt aber auch zu bedenken, dass man dabei „seinen Enthusiasmus für das Detail“ behalten muss. So hängt das Große mit dem Kleinen zusammen und solange das mit einem handwerklichen Anspruch und der Liebe zum Detail wie im Kimpton passiert, lohnt es sich all diese Welten zu entdecken. Hartmut Raendchen/DBZ
Projektdaten
Objekt: Kimpton Hotel
Standort: Frankfurt am Main
Typologie: Hotel, Gastronomie, Veranstaltung/Konferenz
Entwicklung: Groß & Partner, www.gross-partner.de
Betreiber/Betreiberin: IHG Hotel & Resorts, www.ihg.com
Innenarchitektur: Waldo Works, London/GB, www.waldoworks.com
Team: Tom Bartlett, Bethan Southall, Andrew Treverton, James Vernon
Kunst: Laura Bartlett, www.laura-bartlett.com
Fertigstellung: 2025
Hersteller
Badezimmermodule: Stengel GmbH,
www.stengel-gmbh.de
