Aktiv-Stadthaus,Frankfurt a. M. - Warmmiete mit Energiepaket

Als ihren Beitrag der Architektur zur Klimawende verstehen die Macher des Aktiv-Stadthauses das bisher größte Mehrfamilienwohnhaus im Effizienzhaus Plus-Standard und stellen unter Beweis, dass Plusenergie auch im verdichteten, innerstädtischen Umfeld und im großmaßstäblichen Wohnungsbau machbar ist.

Verdichtung als Herausforderung
Wie werden wir in Zukunft wohnen? 2050 werden 80 % der Menschen in Metropolregionen leben. Frankfurt am Main hat schon jetzt einen jährlichen Zuzug von 15 000 Einwohnern, Tendenz steigend. Weil ab 2020 laut der Europäischen Gebäuderichtlinie Neubauten nur noch im Niedrigstenergiestandard errichtet werden sollen, hat die Großstadt, die sich selbst gerne Passivhaus-Hauptstadt nennt, schon 2007 ein Konzept für energieeffizientes Bauen entwickelt, um den zukünftigen Bedarf decken zu können. Die ABG Frankfurt Holding („ABG ist ein anderes Wort für Innovation“), die Wohnungsbaugesellschaft der Stadt Frankfurt, hat in den vergangenen Jahren mehr als 2 500 Passivhauswohnungen gebaut. Zudem hat sich die Kommune das Ziel gesetzt, ihre Energieversorgung bis 2050 zu 100 % auf erneuerbare Energien umgestellt zu haben. Dies kann nur gelingen, wenn die
Energie auch dort erzeugt wird, wo sie gebraucht wird.
Der Standort Frankfurt am Main bot sich also an, als Prof. Manfred Hegger, bekannt als Vordenker für energieeffizientes Bauen und den Aktivhausstandard, Mitstreiter für sein Projekt Aktiv-Stadthaus such-te. Erste Gespräche für das Pilotprojekt fanden im Januar 2011 statt, als Manfred Hegger und Frank Junker, Geschäftsführer der ABG, bei einer Besichtigung des Decathlon-Plusenergie-Pavillons in Frankfurt die Marschrichtung für ein gemeinsames Projekt ausgaben: An einem Mehrfamilienhaus sollte das  Innovationspotential der energetischen Zukunftsstandards sichtbar gemacht und die wirtschaftliche Umsetzung unter realen Bedingungen erprobt werden. Die ABG stellte ein Grundstück im Stadtzentrum zur Verfügung, das zwar eine deutliche Südausrichtung bot, durch seine Abmessungen allerdings bisher als kaum bebaubar galt.

Aktivhaus mit Nur-Strom-Konzept
Die Basis für Energiekonzept und Entwurf des solaraktiven KfW-40-Hauses war die Reduzierung des Energiebedarfs durch eine hochwärmegedämmte und luftdichte Gebäudehülle sowie die Bereitstellung von Energie aus lokal verfügbaren Energiequellen. Die eigentliche Innovation liegt in der intelligenten Kombination bereits verfügbarer (Bau-)Technologien. Dafür entwarfen HHS Architekten auf dem schmalen Grundstück ein achtgeschossiges Gebäude mit einem auskragenden Pultdach und einer leicht gefalteten Südfassade. Das von EGS-plan entwickelte Energiekonzept setzte auf eine Nur-Strom-Versorgung durch solare Stromerzeugung und hocheffiziente Anlagentechnik sowie Abwasserwärme aus dem Abwasserkanal einer Seitenstraße. Zwei voneinander unabhängige Leitungssysteme und Frischwasserstationen in den Wohnungen senken den Energieverlust bzw. verbessern den Einsatz der Wärmepumpe.
In einem vom BMUB geförderten Forschungsprojekt wurden die entwurfs- und grundstücksbedingten Parameter für das Demonstra-tionsbauvorhaben untersucht und simuliert: u. a. Optimierungen der Kubatur für die solaraktiven Flächen, Einfluss der Flächenanteile und Lage von Fenstern auf den Heizwärmebedarf, Optimierung der Fassadenkonstruktion, Einfluss der Wohndichte auf den Energiebedarf, Verschattungssimulationen für die Photovoltaik-Anlage uvm.
In der Forschungs- und Planungsphase lag ein Schwerpunkt in der Abstimmung der Einflussgrößen auf die Energiebilanz, die aus den jeweiligen Perspektiven der Beteiligten logischerweise unterschiedlich bewertet wurden: So hätte z. B. eine Reduzierung auf sieben Geschosse zwar den Energieverbrauch deutlich verringert, die Rentabilität aus Bauherrensicht jedoch verschlechtert. Andererseits wurde die Hüllfläche durch den Einbau von Loggien und Balkonen vergrößert, obwohl dies einen zusätzlichen Heizwärmebedarf bedeutete. Eine für alle Beteiligten positive Entwicklung war die Entscheidung für eine Holzelementfassade: Durch das Einbringen der Dämmung in die Konstruktionsebene wurden wertvolle Quadratmeter Wohnfläche gewonnen, die Tragstruktur vereinfacht sowie die Primärenergiebilanz verbessert. Durch die leichte Faltung der Fassade konnte zudem sowohl die Grundrisstiefe optimiert als auch die solaraktive Fassadenfläche vergrößert werden.
Wirtschaftliche Bauweise
Um die Umsetzbarkeit des Aktivhaus-Standards im Mehrfamilienhaus zu demonstrieren, musste der Bau auch wirtschaftlich darstellbar sein. Wegen der Lüftungsanlagen wurde die Geschosshöhe auf 3,04 m festgelegt. Die oberste Geschossdecke liegt knapp unter der Hochhausgrenze von 22 m. Somit entspricht der 27 m hohe Neubau der Gebäudeklasse 5. Wegen des Anschlusses an eine bestehende Tiefgarage wird es baurechtlich als Sonderbau eingestuft. Die Brandschutzanforderungen konnten daher mit der geplanten Schottenbauweise in Stahlbeton umgesetzt werden. Die Außenwände bestehen aus nichttragenden Holzrahmenelementen. Die vorgehängten, geschosshohen Fassadenelemente wurden bis zu einer Länge von 12,60 m vorgefertigt auf die Baustelle geliefert. Die mit Mineralwolle ausgestopfte Anschlussfuge sichert die Rauchdichtigkeit und den Schallschutz zwischen den Geschossen bzw. zwischen den Wohnungen einer Geschossebene.

Wohnen im Pilotprojekt
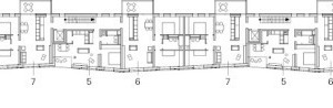
Auf den sieben Wohngeschossen des fast scheibenartigen Gebäudes finden 74 2- bis 4-Zimmer-Wohnungen Platz. Die als Dreispänner organisierten Wohnungen sind barrierefrei über einen Aufzug zu erreichen. Wegen der geringen Raumtiefe von nur 8 − 9 m gibt es in den durchgesteckten Wohnungen Tageslicht von zwei Seiten. Zudem verfügt jede Wohnung über einen Balkon oder eine Loggia. Die Wohnungen haben damit einen intensiven Außenbezug, in den höheren Geschossen mit beidseitiger Aussicht auf die Frankfurter Skyline.
Um den Energieverbrauch konsequent gering zu halten, sind die Küchen der Wohnungen komplett mit extrem energiesparenden Haushaltsgeräten ausgestattet. Sie gehören ebenso wie das Energieguthaben zu dem speziell für das Aktiv-Stadthaus entwickelten Warmmietenkonzept der ABG: Im Mietpreis von 13,70 €/m² sind bereits die Heizkosten enthalten sowie ein Stromkontingent, über das der Mieter frei verfügen kann. Bei einer Vergleichsmiete von 13,79 bis 14,39 €/m² (Frankfurter Mietspiegel) ein interessantes Angebot. Das Jahresstrombudget liegt zwischen 1 500 und 2 500 kWh, je nach Wohnungsgröße. Zum Vergleich: Der Jahresstromverbrauch für einen Zweipersonenhaushalt in einem Mehrfamilienhaus lag 2014 in Deutschland bei 2 000 bzw. 3 200 kWh (Geringverbraucher bzw. Durchschnitt). Für die Nachverfolgung des eigenen Energieverbrauchs wurde ein neues Interface entwickelt, mit dem die Bewohner ihren Verbrauch zeitnah abrufen und mit einem Prognosetool steuern können. Die Entwickler setzen darauf, dass darüber weitere 10 bis 20 % Energieersparnis generiert werden können. Ob das gelingt, wird ein zweijähriges Monitoring zeigen, das im August 2015 gestartet wurde. Inga Schaefer
Baudaten
Bauherr: ABG FRANKFURT HOLDING, Frankfurt a. M., www.abg-fh.de
Architekt: HHS Planer + Architekten AG, Kassel, www.hhs.ag
Forschung:
TU Darmstadt, Fachbereich Architektur, Fachgebiet Entwerfen und Energieeffizientes Bauen, Prof. Manfred Hegger, Darmstadt
Steinbeis Transferzentrum (Energie-, Gebäude- und Solartechnik), Stuttgart
Technische Gebäudeausrüstung, Bauphysik: EGS-plan Ingenieurgesellschaft für Energie-, Gebäude- und Solartechnik mbh, Stuttgart, www.stz-ges.de
Tragwerksplanung: B+G Ingenieure Bollinger und Grohmann GmbH, Frankfurt
Bauleitung: schneider + schumacher Planungsgesellschaft, Frankfurt a. M.,
Bauzeit: 24 Monate
Baukosten: 23,8 Mio
Wohnfläche: 6 644 m²
GRZ: 0,86; GFZ: 8,16
BRI: 38 000 m³; BGF: 11 700 m²
Energiekonzept
Gebäudehülle Konstruktion:
Dach: PV-Module auf Unterkonstruktion, Polymerbitumenbahn, Wärmedämmung WLG 32 36 cm, Polymerbitumenbahn mit Aluminiumeinlage, Dampfsperre und
Notabdichtung
Geschossdecke über DG: Wärmedämmung WLG 035 44 cm, Stb.-Decke 23 cm
Außenwand: PV-Module bzw. Fassadenplatten auf Unterkonstruktion, DHF-Platte 15 mm, Holzständer 30 cm mit Wärmedämmung WLG 040, OSB-Platte 15 mm, Luftschicht 20 mm, (Vorsatzschale:) Metallständer 50 mm mit Wärmedämmung WLG 040, Gipskarton 2 x 12,5 mm
Außenwand gg. Erdreich/beheizte Bereiche: Filtervlies, Dränmatte, Perimeterdämmung WLG 044 30 cm, WU-Beton 25 cm
Innenwand gg. unbeheizte Räume: Putz, Stb.-Wand 30 cm, Wärmedämmung WLG 035 30 cm, Putz
Geschossdecke über UG/EG: Bodenbelag 20 mm, Heizestrich 65 mm, Trittschalldämmung 25 mm, Installationsebene 50 mm mit Wärmedämmung WLG 035,
Stb.-Decke 30 cm (UG 25 cm), Wärmedämmung WLG 035 30 cm, Putz
Bodenplatte: Sauberkeitsschicht, Perimeterdämmung WLG 044 22 cm,
Bodenplatte WU-Beton 80 cm
Gebäudehülle Energiedaten:
Gebäudehülle H’T= 0,60 kWh/m²K
U-Wert Außenwand = 0,21 W/(m²K)
U-Wert Bodenplatte = 0,541 W/(m²K)
U-Wert Dach = 0,168 W/(m²K)
Uw-Wert Fenster = 1,0 W/(m²K)
Ug-Wert Fensterpaneel = 0,7 W/(m²K)
Ug-Wert Verglasung = 0,7 W/(m²K)
g-Wert Sonnenschutz = 0,50
Luftwechselrate n50 = 0,81/h
Endenergieüberschuss = 7,0 kWh/m²a
Primärenergieüberschuss = 23 kWh/m²a
x

Thematisch passende Artikel:

Ausgabe 01/2017

Plusenergie im Mehrfamilienhaus Aktiv-Stadthaus, Frankfurt a. M.

Das Projekt Mit dem Projekt Aktiv-Stadthaus stellte sich der 2016 verstorbene Architekt Martin Hegger von HHS Planer + Architekten der Herausforderung, ein Effizienzhaus Plus im verdichteten,...

mehr
Ausgabe 03/2015

AktivPlus — Wirtschaftliche Nachhaltigkeit Ein Gespräch mit Prof. Manfred Hegger

Unter der Projektleitung von Prof. Manfred Hegger, TU Darmstadt, Fachbereich Architektur, Fachgebiet Entwerfen und Energieeffizientes Bauen (Fgee) entsteht im Zentrum Frankfurts für die ABG Frankfurt...

mehr
Ausgabe 07/2015

Intersolar AWARD 2015 für das Aktiv-Stadthaus www.solarnova.de

Das Aktiv-Stadthaus im Frankfurter Gutleutviertel, das am 8. Juli feierlich eröffnet werden soll, ist als eines der innovativsten Geschosswohngebäude Europas mit dem Intersolar AWARD 2015...

mehr
Ausgabe 06/2019 Aktiv-Stadthaus im Bestand, Frankfurt-Riederwald

Wie kann man Plusenergie-Konzepte auf die Bestandssanierung übertragen?

AktivStadthaus im Bestand__Frankfurt Riederwald_Ostzeile, HHS Planer + Architekten

Die Architekten von HHS PLANER?+?ARCHITEKTEN verbindet viel mit ihrem Bauherrn ABG FRANKFURT HOLDING: Beide stehen seit Jahren für energieeffizientes Bauen und die Umsetzung von innovativen Ideen in...

mehr
Ausgabe 07-08/2024

Schlosswohnung, Frankfurt am Main

Mit der Schlosswohnung am Main in der Nähe von Frankfurt haben sich Nicole und Bernhard Franken den Traum vom luxuriösen Eigenheim erfüllt. Dabei haben die beiden Planer ihr gesamtes Know-How in...

mehr