Verdichtetes Wohnen am Rand„An der Sebastiankirche“, Wohnbau in Münster
Im innerstädtischen Bereich gibt es kaum noch Flächen für Wohnungsneubauten. In Münster hatte die stadteigene „Wohn+Stadtbau“ das Glück, auf einem ehemaligen Kirchengelände eine Kita und einen Wohnungsbau errichten zu können, der urbane Qualitäten mit ganz eigenem Gestus kombiniert.
Zwischen einem Park mit darin locker verteilten alten Platanen und Buchen auf der einen Seite und einem Autohaus in Glas-/Stahloptik auf der anderen Seite hat das Münsteraner Büro BOLLES+WILSON einen Wohnungsbau platziert, der unterschiedlichste typologische Themen in sich vereint, und hat manches davon, was gewohnt und erwartbar erscheint, auch ganz anders gemacht.
Eigentlich war für das Werden des fünfgeschossigen und zweigeteilten Wohnbaus nicht die gerade beschriebene Positionierung das, was den Entwurf bestimmte. Denn das, worüber hier geschrieben wird, ist der zweite Bauabschnitt eines größeren Projekts, das BOLLES+
WILSON über einen Wettbewerb 2009 gewonnen hatte. Damals ging es um den geplanten Abriss der profanier-ten Sebastiankirche und den Neubau einer Kita. Die Münsteraner hatten nicht abgerissen (DBZ 1 | 2014), um die Erinnerungen an den Ort zu wahren. Und auch, weil ihnen der Bestand Herausforderung und Chance für etwas Besonderes war. „Jeder Investor hätte hier einen Neubau gesehen. Aber wenn man das gemacht hätte, hätte man einen Kindergarten mit drei Meter Deckenhöhe bekommen,“ so Peter Wilson im Monatsinterview, DBZ 8 | 2013. Um den teureren Umbau der Kirche rechtfertigen zu können, argumentierten die Architekten mit der sicherlich hervorragenden Vermarktungschance der 53 Wohnungen, die im Wettbewerb ebenfalls gefordert waren und welche die Kita zur autoverkehrslauten Hammer Straße hin abschirmen sollten.
Entwurf / Verdichtung
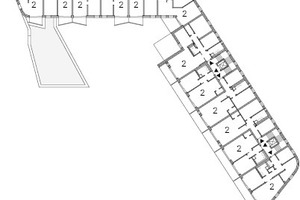
Damit waren die gestalterischen Vorgaben gesetzt: Zahl der Wohnungen, Lage. Die Architekten teilten also das Volumen in zwei Schenkel, einer entlang der stark befahrenen, mehrspurigen Hammer Straße, der andere entlang eines kleinen Parks mit einzelnen Buchen und Platanen. Beide fassen so die Kita mit ihrem Außengelände, beide zeigen Balkone zur Hofseite, die die Wohn-/Essräume nach außen erweitern.
So unterschiedlich exponiert im Stadtraum werden beide Volumen auch verschieden vermarktet. In dem mit Putzfassade und Laubengangerschließung verkleideten Riegel parallel zur Hammer Straße sind die öffentlich geförderten Wohnungen untergebracht, die zur Parkseite im Norden liegenden Wohnungen sind in der Hand privater Eigentümer. Allerdings mit einer Ausnahme: Dort, wo sich Putzriegel und Volumen hinter Riemchenfassade treffen und eine schöne Kurve um die davor stehende alte Platane machen, sind ebenfalls noch geförderte Wohnungen untergebracht. Das folgt der Erschließungs-logik. Der Blick aus den Schlafzimmerfenstern dieser 4-Zimmer-Wohnungen der drei Geschosse geht in den Park. Eine ähnliche Geste des sich Abwendens findet sich auf der Südseite des Putzriegels, hier wurde ein Erker mittig aufgesetzt. Dessen Befensterung weist in Richtung Hof und nicht zur Straße.
Dem Aspekt der Verdichtung trugen die Architekten insofern Rechnung, als sie einen weiten Mix an Grundrissen, Größen und Preisniveaus anbieten konnten, der nicht dem gängigen Mechanismus der Wohnflächen-/Renditemaximierung gehorcht, sondern einer allerdings gekonnt schlichten Zweckmäßigkeit, die solide Schönheit verstrahlt (Parkseite).
Parkseite / Lärmschutz
Mit Blick auf die unterschiedliche Setzung der beiden Schenkel war deren jeweils eigene Behandlung gegeben: Zum Park hin zeigt sich eine mit dunklen Riemchen auf Betonfertigteilen bekleidete und mit kräftiger Fens-terrahmung großstädtisch gemachte Fassade mit einer Noblesse, die durchaus britisches Understatement ausdrückt. Wäre nicht die pastellfarben bunte Skyline, die von den Putzfassaden der Apartments des Staffelgeschosses gebildet wird. Dass in der Fassade auch die beiden Treppenhäuser mit großformatigen, geschosseübergreifenden Fensterelementen versehen sind, erleichtert deren unaufdringliche Rhythmisierung, die zudem mit den Grundrissen dahinter wie selbstverständlich im Austausch ist.
Die Wohnungsgrößen reichen von ca. 50 m² bis 107 m². Dabei liegen die kleineren Wohnungen hinter den beiden Erschließungskernen, die größeren sind durchgesteckt. Zur Parkseite sind Bäder und Schlafräume orientiert, zum Hof hin Wohnen und Essen. Bei den kleineren Wohnungen ist das Raumprogramm um eine Wandachse in einem 180-Grad-Winkel geklappt, allerdings liegen hier die Bäder innen.
Zur Reduzierung des Straßenlärms im Haus wurden überall auf Erdgeschossniveau spezielle Betonplatten in die Fassade integriert. Die Platten kommen aus dem Lärmschutz im Straßenbau und haben eine starke strukturierte Oberfläche, die schallschluckend wirkt.
Straßenseite / „Bielefelder Modell“
Ganz anders das horizontal gegliederte Volumen, das sich zur Straße hin als eine beinahe blendweiße Wandscheibe hinter Putz zeigt. Das Horizontale erzeugt die Laubengangerschließung, die vielleicht die Baukosten gesenkt hat, die aber auch der Distanzierung der Wohnräume vom lauten Straßenraum dienen kann. Auch hier animieren Pastellfarben (rosa!, violett, gelb) auf dem Dach und dem Aufzugs- und Treppenturm sowie unter den Decken der Laubengänge. Gerade letztere Farbigkeit wirkt sehr indirekt und überrascht in ihrem ständigen Wechsel von Intensität und Streuung. Die zum Laubengang weisenden Fenster belichten Küchen und Bäder. Hier sind die Wohnungen zwischen 45 m² und 90 m² groß, die Räume allerdings im Schnitt kleiner wie ebenso die Balkone, die mit 5 m² etwa auf die Hälfte bis zu einem Drittel der Balkonflächen auf der gegen-überliegenden Schenkelseite kommen. Auch hier gibt es einzelne Wohnungen mit innenliegenden Küchen und Bädern.
Einige der Wohnungen sind einem Wohngruppenmodell für Senioren mit Pflegebedarf und für Behinderte zugeordnet. Sie werden ergänzt durch Angebote im Pavillonbau, der die Hofanlage auf der Südseite zum Teil fasst. Das fachliche Konzept ist dem „Bielefelder Modell“ entlehnt, dessen quartiersbezogener Ansatz des Wohnens mit Versorgungssicherheit ohne Betreuungspauschale hier auf die Anlage beschränkt eingefügt wurde. Das Modell wendet sich an ältere Menschen oder Menschen mit Behinderung, denen komfortable und barrierefreie Wohnungen geboten werden. Kombiniert wird das mit dem genannten Gemeinschaftsraum im Pavillonbau als Treffpunkt und Ort der Kommunikation, der auch den Menschen aus der Nachbarschaft offen steht.
Farbe
Im Gespräch mit Peter Wilson vor Ort meinte der sich schon entschuldigen zu müssen für die Farbakzente, „die manche der Kollegen eher nicht passend“ empfunden hätten. Doch da BOLLES+WILSON bereits in der Skizzenphase farbig (Aquarell) denken, gehört Farbe zum Entwurfsrepertoire. Der Kontrast zum Grün des Parks über das edle Grau der Riemchen mit dem Weiß der Fensterrahmenelemente überzeugt, auch die Farbigkeit der Dachlandschaft. Die Farbakzente vor den Balkonen, die mit denen der Kita korrespondieren und die sehr bewusst so ausgewählt wurden, machen aus dem Weiß der Putzfassade zum Hof eine Malfläche, die bunt betupft wurde. Die vor oder hinter dem Balkongitter aufgehängten Farbtafeln verhindern aber möglicherweise, dass die Bewohner anfangen, den eigenen Sichtschutz zu installieren. Wie das endet, ist vielfach anderswo zu beobachten.
Fahrräder / Fazit
Zwischen Park im Norden und Gewerbe im Süden, vor ehemaliger Kirche und heutiger Kita liegt der Wohnbau gerade richtig. Erschließung und Raumlandschaft sind einfach wie auf das Optimum getrimmt, die Parkfassade für den Ort angemessen und für Münster überdurchschnittlich. Die Einbindung eines Wohngruppenmodells mit der Erweiterung über den den Hof konturierenden Pavillon aus gesellschaftlicher wie städtebaulicher Sicht ein Zugewinn. Ob die Balkone auf der geförderten Bauseite nicht auch hätten durchlaufen können, mag der Lösung einer Rechenaufgabe geschuldet sein, gestalterisch wirken die leicht spitzwinklig in den Hof ragenden Balkone unentschieden und im Vergleich zum Gegenüber beinahe verloren.
Fast vergessen: Natürlich gibt es Fahrradständer am Haus in gutem Standard. Und: Fahrradräume gibt es auf Erdgeschossniveau. Sie fassen zusammen 64 Fahrräder. 48 Gästeparkplätze gibt es entlang der äußeren Gebäudekante. Die Tiefgarage ist natürlich belüftet und angstfrei zu nutzen. Verdichtetes Wohnen? Auf jeden Fall. Der Hof, um den – und um die ehemalige Kirche heutige Kita – sich alles dreht, könnte die unterschiedlichsten Wohnverhältnisse zu einer großen Familie verdichten. Und damit auch mögliche Ausweichmanöver, Abgrenzungen, Verbrüderungen, Feiern und Teilnahme in Gang setzen, wie es in einer Einfamilienhaussiedlung, einer vertikal geschichteten Wohnanlage oder einer klassischen Reihenhaussiedlung kaum möglich ist. Be. K.
1 Ein-/ Ausfahrt
2 Wohnung
3 Fahrradstellplatz
4 Terrasse
5 Besprechung
6 Lager
7 Assistenzzimmer
8 Gemeinschaftsraum
9 Müllraum
