Struktur und PerspektiveUniversitätsklinikum Frankfurt a. M.
Ihre auf Größe und Effizienz getrimmten Krankenhäuser aus der Nachkriegszeit verbauen vielen Kliniken bis heute die Zukunft. Wie lässt sich mit diesem Erbe umgehen? Für den Umbau des Frankfurter Universitätsklinikums fanden Nickl & Partner Architekten eine überzeugende Antwort: Das neue Zentralgebäude führt die zuvor verstreut auf dem Campus liegenden Betriebsstellen zusammen und bündelt ihre Wege in einer lichten Eingangshalle. Die Generalsanierung fand im laufenden Betrieb statt. Mit Hilfe einer klugen Baustellenlogistik konnten die Planer die Beeinträchtigungen durch Lärm und Staub jedoch möglichst gering halten.
In den 1950er- bis 1970er-Jahren boomte der Krankenhausbau. Unkoordinierte Erweiterungen und ziellose Stückwerksplanungen je nach Finanzlage führten dazu, dass Klinikgelände regelrecht „vermüllten“. Atmosphärische Aspekte, wie frische Luft, Tageslicht, warme Materialien und Farben, wurden damals vernachlässigt. Das Idealkrankenhaus der 1960er-Jahre war der „matchbox-on-a-muffin“-Typ: ein Bettenhaus als Hochhausscheibe über einem breiten Sockel mit Ambulanzen. Für diesen Bautyp steht auch das Zentralgebäude des Universitätsklinikums Frankfurt a. M. Es wurde 1972 eröffnet – als Ergänzung und neue Mitte des zur Gründerzeit in Pavillonbauweise entlang des Mainufers mit Blick auf die gegenüberliegende Skyline errichteten Campus.
Das Zentralgebäude wurde den modernen Anforderungen nicht mehr gerecht. Asbestfunde, Brandschutzprobleme, veraltete betriebstechnische Anlagen und bauphysikalische Defizite machten eine Kernsanierung unumgänglich. Zugleich sollten die verstreut auf dem Campus gelegenen Betriebsstellen zusammengelegt, Synergien besser genutzt, Wege verkürzt und das Areal baulich zum Campuszentrum hin verdichtet werden.
Den europaweiten Wettbewerb zur Neuorganisation und Revitalisierung des Gebäudebestands gewannen 1999 Nickl & Partner. Ihr Konzept schafft klare Strukturen und Perspektiven für den 46 ha großen Campus mit 32 Fachkliniken und 20 Forschungsinstituten. Die Hochhausfassade wurde saniert und die Brandschutzmängel in den Innenräumen behoben. Der Sockel des Zentralgebäudes wurde generalsaniert, nur der Rohbau blieb weitgehend erhalten, und im 1. BA durch einen viergeschossigen Erweiterungsbau ergänzt, der alle chirurgischen Kliniken aufnimmt sowie das neue operative Zentrum mit 16 OP-Sälen und der Intensivstation. Insgesamt zogen 4 500 Menschen in der Folge auf dem Campus um. Ein Großteil davon in den Erweiterungsbau, der während der Bauarbeiten am restlichen Sockel als Ausweichgebäude diente. Im neuen Zentralbau teilen sich nun mehrere Betriebsstellen Personal, Geräte und Räume. Die Folge: Synergien, eine bessere Auslastung und ein wirtschaftlicher Betrieb.
Großzügigkeit und Transparenz
Eine alles ordnende Magistrale mit einem markanten, weit auskragenden Vordach als einladende Geste führt Patienten, Besucher, Personal und Studenten in die neue Eingangshalle. Und dank der formalen Klarheit, Großzügigkeit und Transparenz der lichten, zweiseitig verglasten Halle lässt sich das viergeschossige Zentralgebäude vom Empfang aus rasch erfassen – trotz einer BGF von 46 700 m2. Von breiten Galerien in den Obergeschossen überblickt man die Halle, die als öffentlicher Platz, Anlaufstelle und Verteiler zwischen den neuen Forschungsgebäuden, Universität und Bettenhaus dient. Über eine breite Treppe und einen abgesenkten Hof erreicht man die zentrale Notaufnahme im UG der Halle. Krankenwagen fahren über eine separate Liegend-Zufahrt mit schnellöffnenden Toren vor. Ein Aufzugsschacht aus Sichtbeton verbindet die Notaufnahme auf kurzem Weg mit den OPs im 2. OG und dem Hubschrauberlandeplatz auf dem Dach.
Besucher steigen über die grazil an Stahlseilen vom Gitterrost des Daches abgehängte Rampe ins 1. OG. Von dort erschließt eine lichtdurchflutete Achse den vollständig entkernten Sockel von Ost nach West, von der aus die Fachabteilungen abzweigen. Der Weg verengt und weitet sich, wird durch Cafés und Wartezonen, Treppenläufe und Ausblicke in Innenhöfe belebt, welche die Planer zwischen den Stationen in den Sockel einschnitten. Hier treffen studentisches Leben und Krankenhausbetrieb aufeinander. Die Leitstellen der Stationen öffnen sich als L-förmige Empfangstresen zum Raum: „So können Schwestern und Pfleger das Geschehen besser überblicken und Patienten haben keine Scheu heranzutreten“, sagt Gesamt-Projektleiter Bernd Gottenhuemer.
Unliebsame Überraschungen
Bei der Sanierung des Sockels stießen die Planer auf unliebsame Überraschungen, darunter Asbestfunde in den Abhangdecken und Rohbetondecken mit mangelnder Betonüberdeckung. Die betroffenen Bereiche wurden mit Schleusensystemen abgeriegelt und die Schäden behoben. Erst danach konnten die nächsten Gewerke weitermachen. Trotzdem wurden die einzelnen Gebäudeabschnitte rechtzeitig fertig, so dass die Abteilungen, zeitlich gestaffelt, pünktlich einziehen konnten. Während der Sanierung des Sockels des Zentralgebäudes diente die Hauptachse des Sockels als Erschließung der Baustelle und Zwischenlager. Mehrere Bauaufzüge an der Südseite sowie an der westlichen Stirnseite des Gebäudes erschlossen die Achse. Da es wenig Platz für Lkws gab, erfolgten die Lieferungen „Just-In-Time“: Über ein Anmeldesystem im Internet buchten die Fahrer viertelstündliche Zeitfenster auf den Entladestellen. Ein Decoder überwachte die Einhaltung der Zeitfenster. Für die Logistik im laufenden Betrieb sowie als Flucht- und Rettungswege wurden 2 m breite und 2 m hohe Versorgungstunnel aus F90-Brandschutzplatten vom Betriebshof an der Westseite zu den Aufzugskernen der Hochhäuser sowie zum bereits in Betrieb befindlichen 1. BA errichtet. Über und neben den Tunneln lief die Baustelle dank Rollbrettern und fahrbaren Gerüsten weiter.
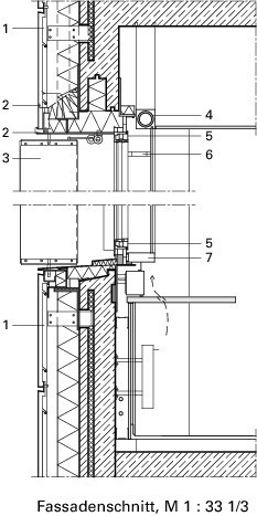
Herausforderung: Fassadensanierung
Keinen Einfluss hatten Nickl & Partner auf die Sanierung der Innenräume im Bettenhaus. Dafür planten sie die Fassadensanierung: Die 128 m lange, 17 m breite und 46 m hohe Scheibe wurde in den 1970er-Jahren mit einer Bandfassade aus dreiteiligen Waschbeton-Fertigteil-Brüstungen versehen. In den Fugen entdeckte man bei der Bestandsanalyse krebsauslösende Polychlorierte Biphenyle. Brüstungsplatten und Fugenmaterial wurden rückgebaut, die Fassade zusätzlich mit 15 cm Mineralfasern gedämmt und mit silbern gefärbten, hinterlüfteten Alu-Kassetten verkleidet. Ihr schmales, langes Format unterstreicht die horizontale Aufteilung der Nordfassade zum Mainufer. Die Südseite mit den Patientenzimmern prägen lange Balkonreihen, einzig vor den Fluren setzen sich die Fensterbänder fort. Das Sockelgebäude verkleiden Metallplatten, deren anthrazitfarbene Lackierung sich dezent gegenüber dem Silber des Hochhauses zurücknimmt.
Die Fassadensanierung dauerte zwei Jahre und fand im laufenden Betrieb statt. Zunächst wurde eine, dann die andere Hälfte der Fassade saniert. Dabei wurden, parallel zur Brandschutzsanierung des Innenraums, immer nur je zwei Halbgeschosse gleichzeitig erneuert. Für diese Zeit richteten die Handwerker eine Anlieferstraße auf dem Dach des Sockelgebäudes ein. Die Baustoffe wurden über den Bauaufzug an der Westseite längs übers Dach transportiert und über einen Zwischenraum zwischen Gerüst und Fassade hochgezogen.
Um die Beeinträchtigungen möglichst gering zu halten, trafen die Planer zahlreiche Vorkehrungen. „Am meisten stören den Betrieb Abbruch- und Bohrarbeiten. Die Bohrgeräusche übertragen sich über das Betonskelett auch über weite Strecken“, sagt Bernd Gottenhuemer. „Da helfen nur lärmarme Verfahren wie Kernbohren statt Schlagbohren, ein zeitlich kompaktes Durchziehen in maximal zwei Stunden, günstige Zeiten, die man mit der Klinik vereinbart, und viel Kommunikation.“
Außerdem war Staub bei der Betonsanierung ein Problem. Die betroffenen Betonbauteile wurden zunächst durch Sandstrahlen aufgeraut, das ist leiser als Stemmen, und dann eine zusätzliche Betonschicht aufgetragen. Die Bereiche wurden jeweils vollständig staubdicht eingehaust, Schleusen errichtet, Zu- und Abluftgebläse mit entsprechenden Filtern verwendet. Für den Abbruch montierte man „Nebelkanonen“, also umgebaute Schneekanonen, auf die Bagger, die Wassernebel auf die Schaufel sprühten und den Staub nah am Abbruchort fast vollständig banden. Trotz des durchgängigen Baubetriebs hat sich der Umzug für die Abteilungen gelohnt: Von der muffigen Altbauatmosphäre ist nichts mehr zu spüren. Michael Brüggemann, Mainz
