Schatzkammer mit Tageslicht
Staatliches Museum Ägyptischer Kunst, München
Der Neubau für das Staatliche Museum Ägyptischer Kunst und für die Hochschule für Fernsehen und Film wurde bereits 2011 an die beiden Nutzer übergeben. Im Juni 2013 war dann auch der Umzug der über 5 000 Jahre alten Kunstwerke vollzogen und die Museumsräume erhielten mit den Ausstellungsstücken ihre Vollendung. Denn anders als bei vielen Museen, dienen die Räume nicht nur als neutrale Hülle, sondern wirken mit der Ausstellung zusammen.
Eine politische Entscheidung legte fest, dass mit dem neuen Hochschulgebäude auch das Museum, das seit über 40 Jahren „provisorisch“ Räume in der Residenz nutzte, auf dem Grundstück gegenüber der Alten Pinakothek in München untergebracht werden sollte. Städtebaulich hob sich ein Entwurf hervor, der die beiden voneinander unabhängigen Nutzungen in einem klaren Riegelbau vereinte. „Ich wollte die städtebauliche Situation des Kunstareals in der Maxvorstadt, das Leo von Klenze so schön angelegt hat, mit der gleichen Ruhe und Großzügigkeit reparieren“, erklärt Architekt Peter Böhm. Er ordnet das Hochschulgebäude als langen Riegel der Alten Pinakothek gegenüber an. Es springt von der Straßenkante zurück und fasst so den großen Platz – oder die „Wiese“ – ein. Um möglichst viele Bezüge zwischen den Gebäuden herzustellen, ergab sich die Idee, das Museum unterirdisch vor dem Hochschulgebäude anzuordnen. „Das passte zum Thema Ägypten, wo vieles eingegraben ist oder ausgegraben werden muss“, so der Kölner Architekt.
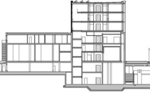
Das Hochschulgebäude selbst gliedert sich in einen 3-geschossigen Sockel, auf dem ein ebenfalls 3-geschossiger Glaskubus ruht. Für den geschlossen Bereich greift der Architekt auf den reichen Erfahrungsschatz seines Vaters Gottfried Böhm zurück, der bereits in den 1960er-Jahren eine besondere Technik des Betonierens erprobte, die der Sohn hier weiterentwickelt. Während beim Sichtbeton üblicherweise perfekte und übergangslose Flächen gefordert sind, waren hier sichtbare Schichtungen explizit gewünscht. Die bis zu 90 m langen Abschnitte wurden pro Tag ca. 1 m hoch frisch in frisch betoniert. Die Farbgebung des Betons wird durch die Zuschlagsstoffe Sand, Kies und gebrochenen Quarzporphyr mit 8 bis 16 mm Größe und durch rote und ockerfarbene Pigmente erreicht. „Es war schwierig abzuschätzen, wie das Produkt aus der Schalung herauskommt, daher habe ich es manchmal farblich verändert angegeben“, erklärt der Architekt. „Wenige schmale, ca. 20 cm hohe Schichten mit naturgrauem Beton verstärken den Schichteneindruck.“
Um einen rauen, felsigen Charakter zu erreichen, wurden die 12 m hohen Oberflächen gestockt. Hierbei wird mit einem Elektro- oder Drucklufthammer ein Teil der Betonrandzone mit Meißeln entfernt, so dass die Zuschlagstoffe zur Geltung kommen. „Die Schichten fließen wie bei einem Aquarell ineinander“, sagt Peter Böhm. „Der Zufall spielt eine Rolle, es ist ein Experiment. Man sieht dem Material an, dass es nicht zu 100 % zu planen ist. Es ist kein perfektes Edelmaterial, sondern es hat seine Poesie. Die Haptik, Farblichkeit und Lebendigkeit machen die Qualität aus.“
Was wie ein Experiment mit Werkstattcharakter wirkt, erfordert bautechnisch und herstellungstechnisch eine exakte Planung hinsichtlich Bauablauf, Schalung und Anschlussdetails. Für die Baufirma, die Fachingenieure und die Architekten sind mit den anderen, schwer einschätzbaren Kriterien Unwägbarkeiten verbunden, die mit einem Muster nur annäherungsweise erprobt werden können. „Als Architekt musste ich letztendlich für das Experiment gerade stehen. Ich stehe für die Qualität der Ästhetik, das Risiko musste ich eingehen. Ich konnte nicht davon ausgehen, dass man – wenn es daneben geht – es wieder abreißt.“
Im Osten öffnet sich der felsige Betonsockel mit einem großflächig verglasten Eingangsfoyer. Cafeteria, Kinosäle und Bibliothek der Hochschule für Fernsehen und Film sind frei zugänglich, so dass sich der öffentliche Raum im Gebäude fortsetzt. In den Sockelgeschossen finden sich fensterlose Studios mit guter Akustik für die Filmproduktion, während in den gläsernen Etagen Büro- und Seminarräume untergebracht sind. Um die Fassade der Glasriegel filigran auszubilden, erstrecken sich in den Flurwänden zwei 150 m lange, 3-geschossige Fachwerkträger in Stahlverbundbauweise mit Sichtbeton, die Spannweiten bis zu 30 m überbrücken. Die vier Geschossdecken sind tragende Bestandteile der Fachwerke. Um das stützenfreie Foyer zu ermöglichen, sind in diesem Bereich eingeschossige Querfachwerke angeordnet.
Im Gegensatz zu dem offenen Foyerbereich der Hochschule markiert eine 17 m hohe, massive Portalwand den Zugang zum Staatlichen Museum Ägyptischer Kunst auf der westlichen Seite des Gebäuderiegels. Die Portalwand ist der Fassade des Hochschulgebäudes vorgestellt und nimmt versteckt den Aufzug auf. Ein breiter Vorplatz führt den Besucher über eine kaskadenartige Freitreppe hinab zu einem schmalen und proportional klein wirkenden Eingang. „Ich habe versucht, das Museum im städtebaulichen Gefüge durch die große Portalwand zu markieren“, so Peter Böhm. „Das Museum wird dadurch als wichtiger Bestandteil in der Museumslandschaft stark betont.“ Das Hinabsteigen in das Museum ist der Auftakt zu überraschenden und mystischen Raumatmosphären.
Denn betritt der Besucher durch das Portal hindurch das niedrige Foyer, eröffnet sich nicht die erwartete „Grabkammer“, sondern der Blick fällt in eine tiefer liegende und Licht durchflutete Säulenhalle. Wiederum eine breit angelegte Treppe führt zum Licht hinab und der Blick schweift über die beeindruckende altägyptische Statuen-Sammlung. Dieser Effekt wird durch den 2-geschossigen Lichthof erreicht, der in der Rasenfläche vor dem Gebäuderiegel eingelassen ist. Der Blick fällt jedoch nicht direkt in den Innenhof, sondern massive Sichtbetonstützen mit einem dreieckigen Grundriss lassen das Licht hinein. „Je nachdem wie man auf die Stützen schaut, wirken sie sehr schwer, stämmig und kräftig oder von einem anderen Winkel aus plötzlich leicht, fast transparent. Sie scheinen sich im Licht aufzulösen“, findet Peter Böhm. „Dieses Spiel fasziniert mich auch an den Vorbildern. Die Stützen haben etwas von dem Gehabe ägyptischer Säulen, die in vielen Fällen etwas Massives und Schweres haben und trotzdem zart und empfindlich wirken.“ Peter Böhm gibt als Beispiel die sehr fein gearbeiteten Reliefs auf massiven Wänden und Säulen.
Im Anschluss folgen in Größe und Proportion unterschiedliche Räume – wie in einem ägyptischen Tempel. Die Übergänge von einem Raum in den nächsten sind inszeniert und bieten überraschende Durchblicke und Lichtstimmungen. Auch in der Innengestaltung ist Beton das prägende Material. Die Wände des schwarz pigmentierten Sichtbetons sind mit minimierten Arbeitsfugen erstellt. Die Gebäudetechnik ist in Leerrohren mit einem Durchmesser von bis zu 35 cm in der Bodenplatte und in den Hohlkammerdecken verlegt, so dass die Technik kaum in Erscheinung tritt.
Die Exponate kommen zum großen Teil aus Tempelanlagen. „Ich habe es vermieden, bestimmte Stilelemente zu übertragen, sondern es mehr von der Stimmung her gesehen: wie das Licht einfällt, was für eine Ausstrahlung die Räume haben, dass sie eine sehr emotionale Komponente haben“, erklärt Peter Böhm. Besonders positiv bewertet er, dass es bei diesem Museumsbau möglich war, mit den Nutzern zusammen die Räume speziell für die Exponate zu konzipieren. „Das Museum erkennt die Ausstellungsstücke tatsächlich als Kunst und arbeitet weniger geschichtlich und völkerkundlich. „Normalerweise wird immer gefordert, dass die Räume möglichst neutral sind. Die Räume nehmen sich hier auch sehr zurück und machen sich nicht durch Extravaganzen wichtig. Das Besondere liegt mehr in der Stimmung. Sie drücken Stille aus, die als Hintergrund für die Ausstellungsstücke angemessen ist.“ Die sakrale, mystische Atmosphäre in den Räumen ist gewünscht und für Peter Böhm ist der Widerstreit zwischen Tradition und Moderne nicht wichtig. „Ein ägyptischer Tempel fasziniert genauso wie eine gotische Kirche oder ein moderner Raum. Raumfolgen, Lichtführung und die sorgfältige Verarbeitung von Materialien sind zeitübergreifende Kriterien, die mich mehr begeistern als ein spezieller Stil.“
