Heiße Luft…Punkthaus, Mannheim
… statt dicker Dämmpakete: In Mannheim verwandelte der Fachbereich Architektur der TU Darmstadt ein fünfgeschossiges 1950er-Jahre-Wohnhaus mit porösen Außenwänden und einfachverglasten Fenstern in ein Passivhaus. Eine Luftkollektorfassade ersetzt das übliche Wärmedämmverbundsystem (WDVS) und sammelt Warmluft, mit der das Haus passiv beheizt wird.
Deutschland nach dem 2. Weltkrieg: In den Städten sind mehr als 3,5 Mio. Wohnungen zerstört. Rund 400 Mio. m³ Schutt liegen herum. Es herrscht Wohnungsnot und Mangel an Baumaterialien. Verwertbare Ziegelreste werden mit wenig frischem Kies sowie Zement vermischt und in eine Schalung eingebracht. Es ist die Geburt eines ungewöhnlichen Baustoffs: Trümmerverwertungs- bzw. Schüttbeton.
Wände aus Trümmern
Auch das 1958 erbaute, fünfgeschossige Punkthaus in der Lilienthalstraße 232 in Mannheim-
Schönau wurde aus 25 cm dicken Schüttbetonwänden aus dem Boden gestampft. 15 fast baugleiche Punkthäuser entstanden damals in der Lilienthal- sowie Karlsstraße und prägen bis heute als soziale Wohnungsbauten im lockeren Wechsel mit Wohnzeilen und Abstandsgrün den Charakter der Siedlung. Viele von ihnen wurden inzwischen mit einem WDVS aus Polystyrol energetisch saniert.
Für Haus Nr. 232 suchte der Eigentümer, die GBG Mannheimer Wohnungsbaugesellschaft, eine alternative Sanierungsmethode. In Zusammenarbeit mit dem Forschungspool Fondation Kybernetik des Fachbereichs Architektur der TU Darmstadt entstand ein ungewöhnliches Pilotprojekt, das von der Deutschen Bundesstiftung Umwelt gefördert und von einem zweijährigen, wissenschaftlichen Monitoring begleitet wird. Unter Leitung von Prof. Günter Pfeifer und Prof. Dr.-Ing. Annette Rudolph-Cleff entwickelten die Architekten eine passive Solarfassade, die das herkömmliche Prinzip energetischer Fassadensanierungen umdreht: Sie minimiert nicht Energieverluste, sondern maximiert Solargewinne.
„In der Energieeinsparverordnung (EnEV) ist das passive Energie-Gewinnen praktisch ausgeschlossen“, kritisiert Günter Pfeifer: Solare Gewinne über spezielle Konstruktion in Wand und Dach sind im Berechnungsverfahren nicht vorgesehen. Deshalb wurde das sanierte Gebäude auch nicht als KfW-40-Haus gefördert. „Die Grundlage der EnEV lautet: Energieverluste verringern. Also werden Gebäude möglichst dick gedämmt und abgedichtet. Die Dämmung verhindert jedoch das Eindringen solarer Energie.“ Pfeifer ist das Einpacken mit WDVS ein Dorn im Auge: „Wir bauen gedämmte Kisten, deren Wartungsaufwand hoch und Lebensdauer gering ist, um ihnen dann auch noch künstlich Luft zuzuführen.“
Das Punkthaus in Mannheim kommt fast vollständig ohne Wärmedämmung aus. Trotzdem bleibt es mit 11 kWh/m²a unter dem Passivhaus-Standard. Zum Vergleich: Vor der Sanierung wies das Haus aufgrund seiner Wandkonstruktion, der einfach verglasten Fenster und weiterer bauphysikalischer Mängel einen Heizenergiebedarf von 273 kWh/m²a auf – fast das 25-Fache! Innen- und Außen
wände waren außergewöhnlich porös. „Es ist erstaunlich, dass man das Gebäude angesichts der Baustoffqualität überhaupt zum Stehen brachte“, sagt Pfeifer. Für die energetische Sanierung war der Schüttbeton jedoch ein Glücksfall: Dank seines hohen Anteils an Lufteinschlüssen eignet er sich ideal als Speichermasse für den neuen Wandaufbau.
Luftpolster statt Dämmstoff
Mit seiner neuen, silbrig glänzenden Hülle aus transluzentem Polycarbonat hebt sich das Haus von den umliegenden Gebäuden ab. Die geschosshohen, hinterlüfteten Platten wurden im Abstand von 18 cm auf einer Alu-Unterkonstruktion an der Bestandsfassade montiert. Im Winter funktioniert die Fassade wie ein Luftkollektor im Umluftbetrieb, der das Gebäude passiv beheizt: Die Morgensonne erwärmt die Luft im Fassadenzwischenraum auf der Ostseite. Diese steigt bis zum Dach auf, strömt unterhalb der auskragenden Attika über Rohrleitungen zur Westfassade und wärmt sie. Ein Steinspeicher im Keller sammelt die Wärme. Von Ventilatoren unterstützt, wird die Warmluft in den Fassaden bewegt. Nachmittags, wenn die Sonne von Westen kommt, arbeitet der Luftkollektor in Gegenrichtung von West nach Ost.
Durch die warme Luft ist es im Fassadenzwischenraum in den kalten Jahreszeiten 6 bis 10 °C wärmer als draußen. Das Warmluftpolster ersetzt die Dämmung. Gleichzeitig wird das Haus weitgehend durch kostenlose Sonnenwärme beheizt: Die Schüttbetonwände speichern 40 % der von den Platten durchgelassenen Strahlungswärme und geben sie zeitverzögert an den Innenraum ab. Überschüssige Energie sammelt der Speicher aus kreuzweise gestapelten Kalksandsteinen: Die Luft strömt hindurch und gibt Wärme an die Steine ab.
Im Sommer lässt sich die Kühle der Nacht im Steinspeicher einlagern. Tagsüber verteilt sich die kühlere Luft gleichmäßig im Luftkollektor und kühlt die Fassade. Um im Sommer eine Überhitzung zu vermeiden, öffnen sich zudem Abluftklappen am Dach. Durch den dabei entstehenden Unterdruck klappen Zuluftöffnungen am Fußpunkt der Fassade auf und es strömt automatisch Frischluft nach.
Für die transluzente Hülle kamen 9-Kammer-Polycarbonatplatten mit einem U-Wert von 0,83 W/m²K zum Einsatz. „Die Platten sind schlagfest, Schmutz abweisend und witterungsbeständig, sie lassen sich sauber demontieren, recyceln oder wiederverwerten“, sagt Günter Pfeifer. Das Material sei preiswert und wegen seines geringen Gewichts für Fassaden besonders wirtschaftlich. Allerdings ließ sich die Unterkonstruktion nicht direkt an den Bestandsaußenwänden montieren: Der Schüttbeton hielt den zu erwartenden Lasten bei Dübelauszugsversuchen nicht stand. Mittels Probebohrungen stellten die Tragwerksplaner fest, dass die Bestandsdecken aus sehr gutem Beton B225 mit einer Durchschnittsstärke von 12 cm bestehen. Gemeinsam mit den Architekten erarbeiteten sie eine Lösung, um die Unterkonstruktion an den Decken zu verschrauben. So blieben die nicht tragfähigen Außenwände von Belastungen verschont.
Die Fassade fiel daher doch teurer aus als ein Polystyrol-WDVS, habe aber eine längere Lebensdauer und niedrigere Wartungskosten, betont Pfeifer. Auch optisch ist sie eine Bereicherung: Je nach Wetterlage changiert ihre Oberfläche, die Tiefe bleibt durch das Spiel von Licht und Schatten erlebbar. Ein gestalterischer Impuls für den Stadtteil Schönau, dem trotz kontinuierlicher Sanierung der sozialen Wohnbauten noch immer ein schlechter Ruf anhängt.
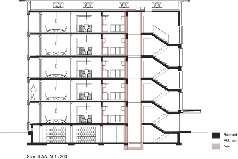
Aus vier mach zwei
Auch im Inneren ist das Haus kaum wiederzuerkennen. Vor der Sanierung waren die Flure eng und dunkel, die Fenster klein. Das Haus hatte keinen Aufzug und innenliegende Bäder. Die Wohnungen – je vier pro Geschoss – waren nur 45 m² groß und rein nach Nord-Ost bzw. Nord-West ausgerichtet.
Die Gebäudekonstruktion blieb bis auf kleine Veränderungen wie größere Tür- bzw. Fensteröffnungen vollständig erhalten. Wände und Decken wurden mit Vorsatzschalen verkleidet, ein Aufzug ins Treppenhaus eingebaut und die vier kleinen 2-Zimmer-Wohnungen zu zwei je 90 m² großen Wohneinheiten zusammengelegt. Erschließung und Bäder bilden einen energetischen Puffer nach Norden. Große Wanddurchbrüche verbinden die zuvor schachtelartigen Räume zu einem durchgängigen Koch-, Ess- und Wohnbereich. Der Wohnraum im Süden und je ein Schlafraum öffnen sich mit verglasten Loggien ins Grüne. Dank einer beweglichen Wand aus Glaslamellen lassen sich die Loggien in der Übergangszeit als Wintergärten nutzen, im Sommer als normale Balkone.
Die schlanken Proportionen der Dachkanten und Balkonprofile des Altbaus blieben erhalten. Fensterbrüstungen wurden durch raumhohe Isolierglasfenster ersetzt. Unabhängig von den Solargewinnen der Fassade, können die Räume mit Standard-Heizkörpern individuell temperiert werden. Statt einer zentralen Lüftung sitzt im Wohnraum über jedem Fenster ein preiswertes Lüftungselement mit Wärmerückgewinnung. Eine Sensorik im Fenster schaltet bei „Kipp“-Stellung automatisch die Heizung aus, um Lüftungswärmeverluste zu senken.
Das Haus kommt ohne großen technischen Aufwand aus. Die Architekten arbeiten mit simplen, passiven Prinzipien, die aus ihrer bauphysikalischen Logik heraus funktionieren. Statt eines vorschnellen Abrisses nutzen sie die oft verkannten Potentiale des Altbaus: die Fassade als Luftkollektor, die Balkone als Pufferzonen, das vermeintlich minderwertige Material Schüttbeton als Wärmespeicher. Ein wegweisender Fingerzeig, wie sich Wohnungsbestand intelligent sanieren lässt. Michael Brüggemann, Mainz
