Haus der Statistik – Gemeinsame Vision
Mehr als zehn Jahre Leerstand, weitere zehn Jahre in der Entwicklung: Das Haus der Statistik am Berliner Alexanderplatz ist eine jener Immobilien, deren Nachnutzung Investoren meist als unwirtschaftlich abqualifizieren. In einer gemeinsamen Anstrengung haben Zivilgesellschaft, Politik und Verwaltung es nun dennoch geschafft, diesen Zeugen der Ostberliner Nachkriegsmoderne zu erhalten – und für eine neue Nutzung umzubauen.
Von der künstlerischen Aktion zum Modellprojekt: Über ein Jahrzehnt lang stand der 50 000 m² große Gebäudekomplex am Alexanderplatz leer. Ursprünglich sollte das Areal verkauft und abgerissen werden – bis 2015 eine künstlerische Protestaktion das Blatt wendete. Die Allianz bedrohter Berliner Atelierhäuser (AbBA) brachte während der Berlin Art Week ein großflächiges Banner im Stil eines Bauschildes an der Fassade an. Diese symbolische Intervention machte den drohenden Verlust öffentlich sichtbar und löste eine breite Diskussion über die Zukunft des Hauses der Statistik aus.
Aus dieser Bewegung heraus entstand die „Initiative Haus der Statistik“, ein Zusammenschluss von Künstler:innen, Architekt:innen, Kulturschaffenden und Politiker:innen. Mit kreativen Aktionen, öffentlichkeitswirksamen Kampagnen und stadtweiten Vernetzungstreffen gelang es der Initiative, die bisherigen Pläne zu stoppen und eine alternative Vision zu entwickeln. 2018 mündete dieser zivilgesellschaftliche Erfolg in die Gründung der KOOP5, einer einzigartigen Kooperation aus Zivilgesellschaft, Politik und Verwaltung, die das Quartier Haus der Statistik heute als Modellprojekt gemeinwohlorientierter Stadtentwicklung weiterentwickelt.
Fünf zentrale Akteur:innen der KOOP5 arbeiten hier gemeinsam und auf Augenhöhe an der Entwicklung des Quartiers: Senatsverwaltung für Stadtentwicklung, Bauen und Wohnen (SenStadt), Bezirksamt Mitte von Berlin, WBM Wohnungsbaugesellschaft Berlin-Mitte mbH, BIM Berliner Immobilienmanagement GmbH und die ZUsammenKUNFT Berlin eG (ZKB), die sich aus der „Initiative Haus der Statistik“ heraus gebildet hatte, um stellvertretend die Interessen der Stadtgesellschaft in diese Entwicklung einzubringen. ↓
Das Ziel ist eine inklusive und nachhaltige Stadtgestaltung, die Raum für Neues, Mitgestaltung und gemeinschaftliche Nutzung schafft – ein lebendiger Ort von und für alle. Ein Modellprojekt, das Top-down- und Bottom-up-Prozesse miteinander verzahnt.
Im offenen Werkstattverfahren entstand das städtebauliche Konzept, das auf Nachhaltigkeit und Gemeinwohlorientierung basiert. Es geht nicht nur um klassische Partizipation, sondern um Ko-Produktion: Menschen entwickeln ihre eigenen Projekte und treiben gesellschaftliche Transformation aktiv voran. So entsteht eine neue Planungskultur – geprägt durch offenen Dialog und Zusammenarbeit auf Augenhöhe zwischen Verwaltung, Stadtgesellschaft und Planung. Pioniernutzungen und ein flexibler, lernender Prozess zeigen, wie komplexe städtische Herausforderungen gemeinsam gelöst werden können – lösungsorientiert und im Sinne der Leipzig-Charta.
Gemeinwohlorientierte Trägerstruktur
Um die Räume für Kunst, Kultur, Soziales und inklusive Wohnformen nachhaltig und gemeinwohlorientiert zu realisieren, wurde im Prozess der Quartiersentwicklung eine Trägerstruktur entwickelt.
Um eine ernsthafte partnerschaftliche Kooperation zwischen Politik, Verwaltung, Zivilgesellschaft und gemeinwohlorientierter Immobilienwirtschaft zu erreichen, bedarf es vielfältiger Rahmenbedingungen: Vertrauen gegenüber zivilgesellschaftlich getragenen Stadtentwicklungsprojekten, langfristig wirtschaftliche Autonomie, die Möglichkeit und den Willen zur Selbstverwaltung, eine ermöglichende Anwendung des Haushalts-, Vergabe- und Wettbewerbsrechts sowie eine konsequente Einbindung aller Partner:innen in die politischen Entscheidungsprozesse über öffentliche Ressourcen im Bereich der gemeinwohlorientierten Stadtentwicklung. Für die langfristige Sicherung der Flächen und die dauerhafte Bezahlbarkeit befindet sich unter Federführung der ZKB eG ein Public-Civic-Partnership im Aufbau: Ein Modell der Selbstverwaltung in partnerschaftlicher Kooperation und mit hoher Entscheidungskompetenz bei den Nutzer:innen. Zivilgesellschaftliche Akteure werden als Beteiligte direkt in die Bewirtschaftung öffentlicher Liegenschaften eingebunden und übernehmen Verantwortung in den Gremien und Organen. ↓
Das Public Civic Partnership besteht aus einer gemeinnützigen privatrechtlichen Stiftung im Projektverbund mit einer Bauherren gGmbH und zwei Betriebs-Genossenschaften sowie einem Verein (AllesAndersPlatz e. V.) aller Nutzer:innen zur Mitwirkung im Quartiers-Gremium. Das Land Berlin und ggf. ihre Unternehmen sollen eine geteilte Wächterfunktion über die zukünftige Verwendung der Grundstücke und Flächen der Initiative in einer neu zu gründenden Gemeinwohl-Stiftung Stadt übernehmen. Diese könnte als Wächterin auch an anderen Standorten zum Einsatz kommen. Um soziokulturelle Flächen und inklusive experimentelle Wohnflächen zu realisieren, wurden zwei Betriebsgenossenschaften (AndersMachen eG und AndersWohnen eG) in Zusammenarbeit mit dem gemeinnützigen Bauträger AndersBauen gGmbH gegründet. Letztere wird auch an anderen Standorten in Verknüpfung mit der Wächterstiftung zum Einsatz kommen.
Dauerhafte Sicherung nutzergetragener und gemeinwohlorientierter Stadtentwicklung
Für die Flächen im Bestand (Haus A und EG Zonen) wurde ein langfristiger Mietvertrag über 30 Jahre zwischen dem Land Berlin und der AndersBauen gGmbH abgeschlossen. Zusätzlich sind für die Flächen im Neubau der Experimentierhäuser bezahlbare Erbbaurechtsverträge (65 bis 99 Jahre) abgeschlossen worden. Im Gegenzug verpflichtet sich die AndersBauen gGmbH für die gesamte Laufzeit des Erbbaurechts, bezahlbare Mieten und Belegungsbindungen für sozio-kulturelle Nutzungen nachhaltig zu sichern. Über eine Mietspreizung können künftige Nutzungen mit sehr geringer wirtschaftlicher Potenz, aber erheblichen Mehrwert für die Quartiersentwicklung, aktiver Bestandteil des Public Civic Partnerships werden. Für den Bau/Ausbau der Initiativflächen wird über den Einsatz von „zivilem“ Eigenkapital, die Einwerbung von investiven Objektförderungen über Mittel der EU, Bund oder Land und Fremdkapital von ethischen Banken finanziert. Im Betrieb wird die wirtschaftliche, finanzielle und operative Verantwortung mit Belegungsrechten und -pflichten über eigene, kooperative Trägermodelle mit klarer Fixierung von gemeinwohlorientierten Nutzungen in Erbbaurechtsverträgen gesichert werden.
Ein grundlegende Herausforderung für die langfristige Bezahlbarkeit aller Initiativflächen liegt im Umgang mit sehr hohen Verkehrswerten der Grundstücke. Um die Wirtschaftlichkeit der Nutzungen im Betrieb gewährleisten zu können, gibt es folgende Möglichkeiten:↓
- Gestaltung Verkehrswert durch Definition planungsrechtlicher Rahmenbedingungen, Wertminderung durch dauerhafte Nutzungs-, Belegungs- und Mietpreisbindung
- residuale Ermittlung der Erbbauzinsen bzw. Verkehrswert Grundstück, gemessen an zu erwartenden Mieteinnahmen in gemeinwohl-orientierter Immobilienentwicklung, bedarfsgerechte Miethöhe für sozio-kulturelle Nutzungen und Wohnen
Prozessweise Umsetzung
Als erster Bauabschnitt des Quartiers wird 2025 die Bestandssanierung für die Verwaltungsnutzungen abgeschlossen, die ersten Nutzungen werden einziehen, das Haus A wird fertiggestellt und für den weiteren Innenausbau der Initiative freigegeben.
Die Fassade
Das Bestandsgebäude Haus der Statistik wird durch die Berliner Immobilienmanagement GmbH (BIM), eine landeseigene Immobiliengesellschaft, die im Auftrag des Landes Berlin tätig ist, bis zum Jahr 2025 umfassend saniert. Es soll künftig von der BIM selbst, dem Finanzamt Berlin-Mitte sowie für verschiedene sozio-kulturelle Nutzungen verwendet werden. An der Ecke Karl-Marx-Allee/Otto-Braun-Straße gelegen, gegenüber dem Alexanderplatz, bildet das Gebäude zusammen mit dem Haus des Lehrers, dem Haus des Reisens und dem Haus der Elektrotechnik eines der letzten bedeutenden Ensembles der Ostmoderne im Zentrum Berlins. Gleichzeitig markiert es den Auftakt der denkmalgeschützten Karl-Marx-Allee. Errichtet wurde das Gebäude zwischen 1968 und 1970 von einem Architektenkollektiv unter Leitung von M. Hörner und durch das BMK Ingenieurhochbau Berlin. Es besteht aus vier rechteckigen Hochhausscheiben (Bauteile A–D) mit einer Gesamtfläche von rund 46 000 m² Bruttogrundfläche und ca. 22 000 m² Fassadenfläche.
Zur Sicherung einer hochwertigen Fassadengestaltung wurde im Februar 2018 ein zweiphasiger Fassadenwettbewerb mit Neubauanteil ausgelobt, aus dem de+ architekten gmbh als Sieger hervorgingen. Der prämierte Entwurf sieht einen respektvollen Umgang mit den gestalterischen Intentionen des Bestands vor. Die Fassade soll weitgehend rekonstruiert werden, jedoch unter Berücksichtigung heutiger Normen und Nutzungsanforderungen. Um Eingriffe in die Primärkonstruktion zu minimieren, entschieden sich die Architekten dafür, das Gebäude in seiner Anmutung nicht grundsätzlich umzugestalten, sondern möglichst originalgetreu zu sanieren. Erweiterungen, Aufstockungen oder Anbauten waren im Wettbewerbsbeitrag daher nicht vorgesehen. Ergänzende Funktionen wie Kantine, Veranstaltungsräume oder Begegnungszonen sollten in einem zusätzlichen Neubau – der „Arche“ – untergebracht werden, der auch der Öffentlichkeit zugänglich sein sollte. Dieser zusätzliche Gebäudeteil soll jedoch nicht zur Ausführung kommen.
Entwurf
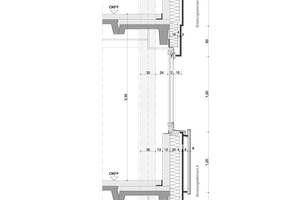
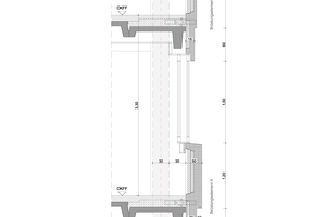
Das Haus ist in Stahlbeton-Skelettbauweise errichtet. Die außenliegenden Treppenhauskerne der Bauteile bestehen aus Ortbeton und dienen zusammen mit den eingelegten Beton-Rippendecken der Aussteifung der Konstruktion. Die ursprünglichen Fassaden waren als teilgedämmte, vorgefertigte Stahlbetonfertigteile vorgehängt, während die umlaufenden Fensterbänder als Holz-Kastenfenster ausgebildet waren. Die Straßenseite des Erdgeschosses wurde durch eingestellte Gewerbeeinheiten oder Eingangsbauten geprägt.↓
In den Jahren 2019/2020 erfolgte der Schadstoffrückbau im Inneren des Gebäudes. Im Zuge dessen wurde das Haus im Fassadenbereich bis auf die Stahlbetonskelettkonstruktion reduziert. Aufgrund des damit verbundenen Wegfalls der Brüstungselemente in den Obergeschossen sind als Ersatz 15 cm starke Stahlbeton-Fertigteilbrüstungen vorgesehen, die sowohl auf den Deckenplatten als auch an den Stützen befestigt werden.
Obergeschosse
Die charakteristischen horizontalen Bänder der Fassade werden mit hellen Brüstungspaneelen aus Glasfaser- bzw. Textilbeton neu gebildet. Hierbei handelt es sich um ca. 30 mm starke Weißbetonschalen mit textiler Armierung, die mittels einer Edelstahl-Unterkonstruktion befestigt werden. Die Elemente sind hinterlüftet, wärmegedämmt und erfüllen die Anforderungen der Energieeinsparverordnung (EnEV) sowie der BNB-Zertifizierung. Während die Paneele überwiegend identisch sind, entsteht in den höheren Bauteilen A und D durch jedes zweite, abweichend gestaltete Paneel ein lebendiges Schattenspiel. Diese werden zusätzlich durch messingfarbene Blechkassetten akzentuiert.
Die umlaufenden Fensterbänder werden als Verbundfenster aus Holz-Aluminium erneuert. Außen sorgt Aluminium für Langlebigkeit und Wartungsfreiheit, innen erzeugt Holz eine angenehme Haptik und warme Anmutung. Teilung und Proportion bleiben – in Anlehnung an den Bestand – erhalten. Sämtliche Fenster bleiben öffenbar, was individuelle Behaglichkeit und Reinigungsmöglichkeiten sicherstellt. Der Sonnenschutz wird im Scheibenzwischenraum integriert, wodurch das historische Erscheinungsbild ohne außenliegende Elemente bewahrt bleibt. Diese Lösung ist gleichzeitig windunempfindlich, wartungsarm und langlebig.
Nahezu alle Fassadenachsen ermöglichen standardisierte Anschlüsse für Trennwände über Fensterschwertkonstruktionen. Dadurch werden sowohl Bürogrundrisse mit flexibler Raumnutzung als auch Räume mit erhöhten Anforderungen an Vertraulichkeit oder konzentrierte Tätigkeiten, etwa Besprechungszimmer, ermöglicht. Weitere Fassadentypen, wie bspw. Putzfassaden oder Fensterflächen aus Profilglas, werden nach heutigem Stand der Technik in Anlehnung an den Bestand erneuert.
Erdgeschoss, Eingangsbauwerke und Erker
Das Erdgeschoss übernimmt eine besondere Rolle für die städtebauliche Wirkung des Hauses. Gemäß den Ergebnissen des Werkstattverfahrens öffnet sich das Haus künftig sowohl zur Otto-Braun-Straße als auch zum neuen Innenbereich. Dazu wurden die opaken Wandscheiben entfernt und weitgehend durch eine transparente Aluminium-Glasfassade in Pfosten-Riegel-Bauweise ersetzt. Straßenseitig entstehen – analog zur ursprünglichen Gestaltung – unter den Hochhausscheiben eingeschobene, eigenständige Eingangsbauwerke. Sie werden als Stahlrahmenkonstruktionen ausgebildet, die an den vorhandenen Trägern im Erdgeschoss befestigt sind. Ihre plastische, expressive Formensprache setzt sich bewusst von der streng gegliederten Fassade der Obergeschosse ab. Diese Baukörper, das hervortretende Eingangsbauwerk am Bauteil A sowie die messingfarbenen Zierelemente der Fassaden bei Bauteil A und D erhalten eine goldfarbene Eloxierung.
Das historische Eingangsbauwerk vor Bauteil D bleibt in seiner Geometrie erhalten. Es wird instandgesetzt – gespachtelt, geputzt und gestrichen – und erhält aufgrund bauphysikalischer Notwendigkeit eine Innendämmung.
Nachhaltigkeit
Nach Abschluss der Sanierung erfüllt das Haus der Statistik die Anforderungen der BNB-Zertifizierung in Silber. Damit wird ein bedeutendes Zeugnis der DDR-Moderne authentisch bewahrt und zugleich zu einem zeitgemäßen, energieeffizienten und vielseitig nutzbaren Verwaltungs- und Kulturstandort weiterentwickelt.
Nachhaltigkeit ist das zentrales Leitmotiv in der Entwicklung des Quartiers Haus der Statistik – ökologisch, sozial und städtebaulich.
