Urbane Wohnkonzepte
Wohnungsbau in Frankfurt/Main am Riedberg
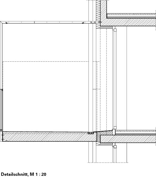
Am Riedberg im Norden Frankfurts baut das Hanauer Wohnungsbauunternehmen Bien-Ries mehrere Wohnquartiere mit hochwertigen Eigentumswohnungen. Eine der spektakulärsten Anlage ist „Take 5“. Als Sieger des dafür ausgelobten städtebaulichen Wettbewerbs ging das Schweizer Architekturbüro Atelier 5, Bern, hervor. Architektonische Merkmale sind die weit ausladenden Balkone und die tief eingeschnittenen Fenster. Die Anlage besteht aus vier Einzelgebäuden mit 56 Wohnungen mit insgesamt ca. 5 760 m2 Wohnfläche. Die Wohneinheiten umschließen einen zentralen Platz, der als Spielplatz, Ort des Miteinanders und der Kommunikation genutzt wird. Jede Wohnung verfügt über einen oder mehrere Freiräume – Patios, Terrassen, Balkone und Innenhöfe. Die Grundrisse sind klar gegliedert, der Wohnungsmix reicht von 2 bis 5-Zimmerwohnungen über Triplex- und Duplexwohnungen bis zu Ateliers, Penthouses und Lofts. Das Kalksandsteinmauerwerk von der Heidelberger Kalksandstein GmbH schuf darüber hinaus in Verbindung mit einem Wärmedämmverbundsystem die Möglichkeit, die Fassade klassisch-modern weiß zu gestalten. Die Flächen erhalten auf diese Weise eine abstrakte Struktur, die wirkungs- und spannungsvoll mit der Gesamtarchitektur und seinen Elementen kooperiert und sie hervorhebt. Damit bestmöglicher Schallschutz sichergestellt wird, sind die Kalksandsteine extra für Bien-Ries in der besonders schweren Bauart in Rohdichte 2,2 kg/dm³ hergestellt worden. Um den Ansprüchen heutiger Bauweisen gerecht zu werden, ist - wie bei allen Objekten von Bien-Ries – Kalksandstein, System KS-Quadro, von Heidelberger Kalksandstein gewählt worden.
