Eine Ausstellung auf Reisen
Go Box, mobiler Ausstellungspavillon
Das Konzept der Go Box ging als Siegerprojekt aus dem Architekturwettbewerb „Bauen und Wohnen mit nachwachsenden Rohstoffen“ hervor. Aufgabe des Wettbewerbs war es, einen Ausstellungsraum zu schaffen, der das Thema bild- und beispielhaft umsetzt. Dabei sollte die Möglichkeit geboten werden, sowohl Bildtafeln und Modelle zu präsentieren als auch beispielhafte Bauteilaufbauten oder Materialmuster. Da der Pavillon für eine Wanderausstellung geplant werden sollte, stand zusätzlich das Thema des Transports auf dem Aufgabenzettel. Ganz schön viel auf einmal. Architekt Alexander Palowski schaffte es in Form der Go Box, die Themen Nachhaltigkeit, Flexibilität und Mobilität in einem simplen Kubus zu vereinen.
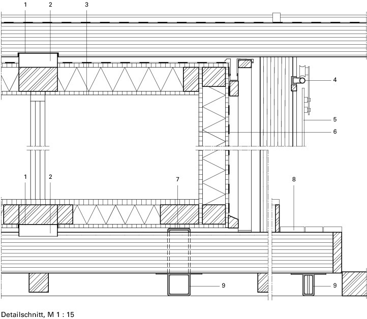
Die bauliche Realisierung des Ausstellungspavillons geschieht in Form von zwei Teilen, einer Schutz- und einer Raumkon-struktion. Erstere besteht zu 100 Prozent aus Massivholz - leimfrei – und schafft den Rahmen und Transportschutz für den Kubus. An seinen Innenseiten können Präsentationstafeln oder aufmontierte Modelle angebracht werden. Dieser feste Bauteil ist größer und umgibt im Transportzustand den verschiebbaren Teil des Ausstellungskörpers, der aus einer leichten Rahmenkonstruktion besteht. Dieser Bauteil nimmt in seinem Wandquerschnitt Präsentationsmaterial auf und schafft gleichzeitig die thermische Hülle. Eine Miniküche sowie eine Pelletheizung mit demontierbarem Schornstein erweitern die Nutzungsmöglichkeiten. So kann die Go Box auch zum Veranstaltungsraum werden.
Die beiden Gebäudeschalen können innerhalb weniger Minuten hydraulisch aufgeschoben werden. Durch das Herausziehen des beweglichen Teils werden Belichtungsflächen - in Form eines Oberlichts - und Zugänge an beiden Seiten geschaffen. Im Transportfall werden die Bauteile zusammengeschoben. Die äußere Gestaltung entspricht der zweiteiligen Bauweise. Massivholz und Weidenflechtwerk, welches den inneren Kubus verkleidet, betonen den Kontrast zwischen Stabilität und Leichtigkeit. Kleine Plattformen an den Kopfseiten der Box bilden Übergänge in den Außenraum und schaffen einen überdachten Eingangsbereich.
Architekt Palowski plante die Go Box in Größe eines Überseecontainers und versah sie gleich mit Montageankern, so dass die Ausstellung problemlos mit einem Lkw transportiert werden kann. Die Nutzung der Box ist auf Geländeniveau oder in einer aufgeständerten Position möglich. Mit Hilfe einer Rampe ist die Ausstellung barrierefrei zugänglich.
Man kann sich viele spätere Leben für die Go Box vorstellen, zum Beispiel als temporäre Gastronomie in Form der beliebten sommerlichen Strandbars. Der Fantasie sind dabei kaum Grenzen gesetzt. Nachhaltigkeit in reinster Form sozusagen. SG
