Der Name ist Programm!
Gymnasium „Kyoto“ in Poitiers/F
Das „Lycée Kyoto“ in Poitiers erhielt seinen Namen vom Kyoto-Protokoll, der Vereinbarung welche bis zum Jahr 2012 Treibhausgase um durchschnittlich 5,2 %, in Bezug auf das 1990, reduzieren will. Ein Fachgymnasium für Gastronomie in Poitiers und eines für Landwirtschaft haben sich hier unter dem Motto „de la terre à l‘assiette (Von der Erde auf den Teller)“ zusammengeschlossen. Fünfhundert Auszubildende lernen, leben und arbeiten hier seit September 2009, am Übergang zwischen Stadt und Land, in einer vom Ackerbau und neuen Wohnsiedlungen geprägten, sanft hügeligen Landschaft.
Das Schulgebäude lädt mit einem großzügig überdachten Vorplatz, der in das lichtdurchflutete Atrium übergeht, zum Eintreten und Verweilen ein. Dies und die signalhaft dimensionierte Schaufensteröffnung des auskragenden Baukörpers zeigen sofort an, dass hier das Herz des Ensembles schlägt. Es besteht aus der Schule, drei langgestreckten, parallelen Baukörpern für praktisches Arbeiten mit Übungsrestaurant und Kantine, sowie aus – gegenüber jenseits des blumenübersäten Geländes – einem Internat und Dienstwohnungen.
Ortsnahes Material
François Gillard, Mitglied der Pariser Architektenkooperation SCAU, zitiert Peter Handke: „Etwas begann, das schon da war“ und tatsächlich reflektiert das Lycée Kyoto den Ort und verwebt sich mit ihm – mit seinen Mauern aus dem hellen, hiesigen Kalksandstein, den unbehandelten, vergrauenden Lattenstrukturen und Holzläden aus Fichtenholz, die an die Gestelle erinnern, auf denen man in dieser Region einst den Tabak zum Trocknen aufhing. Eine weitere Referenz findet sich im Atrium. Die Bewegung des Geländes fließt, gut erkennbar an den Stufen, die sich seitlich hineinschieben, einfach hindurch, wird, leicht abfallend, von der Mediathek und dem Freizeitraum der Schüler abgefangen. Das einfach verglaste Dach mit seinen Klappen und sensorgesteuerten Verschattungsbahnen will an Gewächshäuser erinnern.
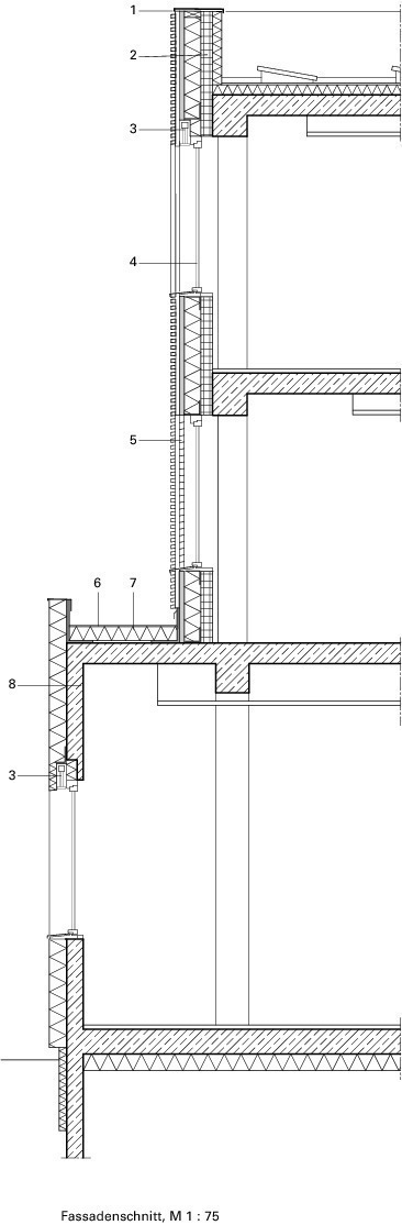
Ansonsten herrscht Sichtbeton vor. Das resultiert aus der ehrgeizigen Entscheidung des Bauherrn, der Region Poitou-Charentes, diese Schule zu einem Ort zu machen, der ohne fossile Brennstoffe auskommt. Dabei setzt der Architekt auf Bewährtes, wie etwa die thermische Trägheit, die man in traditionellen Steinhäusern der Gegend findet. Beton als Wärme- und Kältepuffer, spielt beim Energiekonzept im Lycée Kyoto eine tragende Rolle. Die Simulationen ergaben eine zusätzliche Dicke von 16 cm. Um das erwünschte Abstrahlen des Materials nicht zu beeinträchtigen, wurde nur ein Teil der schwarz gestrichenen Decken in den Klassenräumen mit abgehängten Elementen versehen. Dass das Material ortsnah produziert wird, spielte auch bei der Energiebilanz für den Bauprozess eine Rolle.
Alle Betonflächen sind mit Mineralfaser, der Architekt hätte gerne Hanffaser eingesetzt, und sechs Zentimeter Holzfaser isoliert. „Hanf ist in Frankreich immer noch zu teuer und außerdem für öffentliche, größere Projekte noch nicht entsprechend zertifiziert. Ich hatte überhaupt große Schwierigkeiten entsprechende Produkte auf dem Markt zu finden.“ Auf den Infrarotphotographien der Wärmemessung der Fassade, ein Studienprojekt der Universität, fällt die Effizienz der Dämmung auf. Im Kontrast zu den Betonwänden erscheinen die, eigentlich durch Isolationskörbe thermisch getrennten, auskragenden Zonen wie Wärmebrücken.
Frankreich entdeckt erst in den letzten Jahren, das was man dort „Développement durable“, also nachhaltige Entwicklung, nennt. Inzwischen gilt es als fortschrittlich Gebäude mit Photovoltaikelementen auszustatten. Ein Trend, dem François Gillard kritisch gegenüber steht: „Die Region, hätte aus Prestigegründen, gerne sichtbare Photovoltaik gehabt, aber mein Ziel war es, zuerst den Energiebedarf allein durch die Konfiguration der Architektur zu reduzieren. Außerdem altern diese Elemente nicht schön und ich glaube auch, dass sich in diesem Bereich viel und Besseres entwickeln wird.“ Der Architekt zieht es vor, die 800 m² Photovoltaik auf dem Dach zu verstecken.
Natürliches Klima
Statt einer Klimaanlage sorgen Belüftungsklappen in Fassaden und Decken, die von Hand zu bedienen sind, für sommerliche Kühlung. Alle Bereiche, von Schule bis zur Dienstwohnung, sind den gleichen Regeln unterworfen. Dies setzt allerdings die Mitarbeit und Beteiligung der Nutzer voraus. Auch deshalb wurden bereits bei der Konzeption der Anlage Lehrer und Schüler in den Planungsprozess miteinbezogen. So haben die Internatsschüler anhand eines Kartonmodells mit den Architekten auch die Möblierung ihrer Zimmer mitbestimmt.
Alle müssen das Gebäude verstehen und seinen Energiefluss kennen. Dass das allerdings noch ein weiter Weg ist, zeigt das Summen der mechanischen Belüftung an einem milden Vormittag bei gleichzeitig geöffneten Lüftungsklappen.
Der mechanische Luftaustausch während der kalten Jahreszeit ist an einen Wärmetauscher angeschlossen, ebenso wie Einbauten wie die Dunstabzugshauben in den Küchen des Übungsrestaurants und der Kantine.
Das Atrium wirkt als thermischer Puffer: Im Sommer erhitzt sich die eintretende Luft im Kontakt mit den warmen Oberflächen, und bildet eine heiße Luftblase unter dem Dach, wo sie über sondengesteuerte Klappen wieder austritt. Die Öffnungen für zu- und abgeführte Luft kommunizieren über Sensoren. In der Heizperiode ist es der Wintergarteneffekt, der die Halle um bis zu 10° Grad höher temperiert, als die Außenluft.
Heizen mit Abwärme
Der durch Isolierung und Wärmepuffer reduzierte, noch bestehende Wärmebedarf wird von der Abwärme einer Müllverbrennungsanlage in der Nähe abgedeckt. Bisher versorgte sie im Winter die angeschlossenen Siedlungen, aber im Sommer ging die Energie einfach verloren. Diese wird nun in einem Zwischenlager gespeichert. Es handelt sich um einen Stahltank mit einem Volumen von 1000 m³, mit Wasser als Speichermedium, und einer ein Meter starken Isolierung. Die Verbrennungswärme der Abfälle gelangt über einen Anschluss an das Heizsystem der angrenzenden Wohnsiedlung in den Speichertank, erhitzt im Sommer das Wasser auf 90 °Grad und versorgt dann in der kalten Periode alle Schul- und Wohngebäude mit Wärme. Die zunehmende Temperaturabnahme im Tank wird im Laufe des Winters durch rapsölbetriebene Kraft-Wärme-Kopplungsanlagen ausgeglichen, die auch das Brauchwasser mit ihrer gleichzeitig erzeugten elektrischen Energie aufzuheizen.
Lichtquelle Tageslicht
Hauptlichtquelle ist das Tageslicht. Das entspricht der Logik den Energiebedarf von vornherein zu minimieren und die einfachste Lösung anzustreben: ob im Atrium, das die innen liegenden Klassenräume belichtet oder in Bibliothek und Übungsrestaurant, wo das Licht durch schräg eingeschnittene Oberlichter einströmt und gelenkt wird. Sensoren, die sowohl die Lichtmenge, als auch die Anzahl der anwesenden Personen erfassen, schalten künstliche Beleuchtung zu.
Der niedrige Energieverbrauch von 35 KW pro m² und Jahr für Heizung und Warmwasser wird durch den Energieertrag der erneuerbaren Energie auf sieben KW reduziert; der Stromverbrauch reduziert sich so auf 2 KW pro Jahr und m².
Als Teil des Sensibilisierungsprogramms ist vorgesehen, die aktuellen Energiewerte der Anlage im Atrium auf einer Anzeigetafel anzuzeigen.
Wissenschaftliche Begleitung
Das Projekt wird nun drei Jahre lang wissenschaftlich begleitet. Zum einen, sollen anhand des Projektes Vorgaben und Erfahrungswerte gegenüber gestellt und überprüft werden, zum anderen dient die Schule als Referenzobjekt zur Neukonzeption der französischen Normen zur natürlichen Belüftung.
François Gillard sieht sich nach den Erfahrungen, die er in der Zusammenarbeit mit Ingenieurbüros und der Region machte, auf einem relativ neuen Gebiet, als Mediator: „Ich war oft der Schiedsrichter zwischen den Fachleuten. Und jede Entscheidung musste von mir dann dem Nutzer kommuniziert werden, das können die Spezialisten nicht. Es ist meine Rolle, als Architekt das Ganze im Auge zu haben und zu vermitteln.“Cornelie Kraus, Jarzé
