Mit den Nachbarn baden gehenTaunaBad, Oberursel
Der Neubau eines öffentlichen Hallen- und Freibades in einem teuren Villenviertel? Kein Problem – wenn man Zeit und einen versöhnlichen Entwurf hat, wie Sacker Architekten und die Stadt Oberursel mit dem Bau des TaunaBads in Oberursel beweisen.
Es ist die Lage, die die Bauaufgabe schön und schwer macht. Das Baugrundstück liegt am Südhang des Feldbergs, oberhalb von Oberursel in einem Wohnviertel. Wer hier lebt, hat mit etwas Glück einen Blick auf die Frankfurter Skyline und ein Gartentor zum Taunus. Und Ruhe und Sonne. Und ein Stadtschwimmbad.
Auf dem Areal gab es bereits ein Freibad von 1937 und ein Hallenbad von 1973. Beide waren sanierungsbedürftig und standen seit ca. 2003 zur Diskussion. 2007 schufen statische Mängel am Altbau Fakten: Ein Neubau musste her. Einer, der Konträres vereint: Er soll geräumig, aber nicht zu groß sein. Er soll immer ausgelastet, aber nicht überfüllt sein. Er soll sich zum Park öffnen, aber Lärm abschotten. Er soll architektonisch hochwertig, aber im Budget sein. Er soll sich mit den Nachbarn vertragen. In einem Wettbewerb zeigten Sacker Architekten aus Freiburg, dass sie die Gegensätze meistern. Zusammen mit den Freiraumplanern faktorgrün und den Tragwerksplanern Mohnke Höss Bauingenieure planten sie einen Gebäuderiegel, der, längs zu Straße gestellt, maximalen Lärmschutz und eine gleichzeitige Nutzung von Hallen- und Freibad ermöglicht. Ihre Idee gewann.
Der erste Eindruck
Am oberen Straßenabschnitt schiebt sich der Riegel mit etwa 3 m Höhe aus dem Hang und wächst am talseitigen Ende, der Eingangsseite, auf ca. 10 m. Naturstein prägt die Straßenfassade, horizontal verlegt und in den Obergeschossen unterbrochen von langen Fensterbändern, die leicht spiegeln und fassadenbündig sitzen – ein glatter, geschlossen wirkender Baukörper. Dazu sagt Jens Pasche, Geschäftsführer bei Sacker Architekten und Projektleiter beim TaunaBad: „Es ist, als hätte man das Gebäude mit dem Finger ringsum glatt gestrichen. Der Kehlheimer Muschelkalk wirkt dabei besonders lebendig, so dass das Auge die lange Fassade entlang wandern kann, ohne zu ermüden.“ Talseitig öffnet sich das Gebäude im Sockelbereich, mit eingerückter Ecke und Panoramafenstern. Dank der Hanglage spiegeln sich darin Baumwipfel und dichte Wolken. Die Reflexion lässt die schwere Natursteinfassade zauberhaft über dem wolkigen Grau fliegen. Eine niedrige Freitreppe davor überhöht diesen Effekt. Die eindrucksvolle Eingangsseite ist so nur vom Parkplatz sichtbar, sie bleibt leider unbemerkt für Passanten auf der Straße. Denn den Blick versperren Gabionsmauern, die hier am unteren Grundstücksende eine enorme Höhe haben und so die Nachbarschaft vor dem Lärm auf dem Parkplatz und im Freibad dahinter schützen.
Außen und Innen auf einer Ebene
Keine Frage, der Schwimmbadbetrieb ist auch in Oberursel ein Zuschussgeschäft. Doch wie kann man Frei- und Hallenbad so kombinieren, dass der Badebetrieb durch eine gemeinsame Infrastruktur möglichst kostensparend und ganzjährig funktioniert? Sacker Architekten planen eine Badeplatte, auf der sich alle Schwimmbecken verteilen – Innen und Außen als Einheit in einer Parklandschaft. Das Foyer und der daran anschließende Funktionsbereich mit Duschen und Umkleiden dienen beiden Bädern gemeinsam; von hier aus sind beide Bäder direkt zugänglich. Die Verbindung mit der Parklandschaft ist noch nicht perfekt, das Freibad noch nicht saniert, und noch trennt ein Höhenversatz die Bäder. Trotzdem prägen vor allem die Belichtung und der Ausblick die Schwimmhalle. Während die Südfassade das Bad nach Außen abschottet, öffnet sich die Nordfassade mit Gläsern im Panoramaformat und mit sechs zweiflügeligen Glastüren.
Die Weite im Grau
Lichtwirkung und Weite, alles andere nimmt sich vor diesen Elementen zurück. Die Stahlbetonwände belassen die Architekten als Sichtbeton. Darüber ermöglichen Dachbinder aus Holz mit einer Höhe von 1,6 m einen weiten, lichten Raum. Die Binder sind mit einer Holzdecke verkleidet, liegen aber an den Wänden frei und tragen Oberlichtbänder. Dort entstehen Lichtfugen, die die Raumkanten nach oben hin im Weiß auflösen und die Tiefe der Halle belichten. Das einfallende Licht färbt die Wandflächen rötlich und schärft die Kanten eines Betonre-liefs an der Südwand. Dessen Schatten schwinden und wachsen mit dem Sonnenstand und verblassen bei Wolken. Jens Pasche erklärt: „Die unterschiedliche Ausrichtung der Oberlichter bewirkt einen jeweils anderen Sonnenlichteinfall. Daher ließen wir die Gläser des westlichen Oberlichts gelb-orange einfärben und erhalten so eine ähnlich warme Farbigkeit auf den Reflexionsflächen.“
Die Architekten setzen auf wenige, bunte Details: zwei in Rottönen geflieste Steinbänke, die die Wände begleiten und dank integrierter Heizschlaufen wärmen, sowie der in Grüntönen geflieste Wasserlauf und die Sitzbank im Kinderbecken. Nicht Farbe, sondern Haptik hilft, den Raum intuitiv zu ordnen: Die Fußsohlen spüren die hellgrauen Feinsteinzeugfliesen wie samtig-rau gespaltener Naturstein. Die Hände und die Augen erfassen die begrenzenden Flächen des Raumes, raue, kantig hervorgehobene oder körnig-glatte Beton-, Stein- und Holzflächen. Wichtiges hebt sich fühlbar ab: So ist die Trennwand zu den Duschen mit beschichtetem Holz verkleidet, glatt und mit matter, anthrazitfarbener Oberfläche.
Wärme erzeugen, speichern, steuern
Der Wärmebedarf für Raumluft und Beckenwasser ist mit fast 90 % der Hauptenergieaufwand bei alten Bädern. Denn alleine die Größe der Wasserflächen führt zu starker Verdunstung und Abkühlung des Wassers. Eine hohe Lüftungsrate senkt die Raumluftfeuchte und ist daher notwendig. Sie erzeugt aber bei alten Anlagen enorme Raumwärmeverluste und beschleunigt die Wasserabkühlung. Im TaunaBad wirken daher vor allem drei Energiemaßnahmen: eine Rückgewinnung der Abluftwärme, eine nach Bedarf gesteuerte Lüftung und Wasserumwälzung und eine nachhaltige Primärenergiequelle. Letztere findet man im Keller des Bades: ein mit Biogas betriebenes Blockheizkraftwerk, dessen Wärme das Schwimmbad und mehrere Wohnhäuser in der Nachbarschaft versorgt. Zwei Pufferspeicher sorgen für eine gleichmäßige Verfügbarkeit der Wärmeenergie. Im Winter, bei hohem Wärmebedarf, federn zwei Gasheizkessel gelegentliche Bedarfspitzen ab. Der vom Blockheizkraftwerk erzeugte Strom geht ins Stromnetz.
Zwei Lüftungsgeräte, eines davon mit Wärmepumpe, steuern den Luftstrom und die Raumluftfeuchte in der Halle. Im Sommer, bei mindestens 25 °C Außentemperatur, erfolgt eine natürliche Be- und Entlüftung der Halle. Dabei entsteht zwischen der Glasfassade und den Oberlichtern eine natürliche Thermik. Über einen Wärmetauscher temperiert die Hallenabluft die Frischluft für die Duschen. Die Abwärme der Technik im Keller erwärmt die Zwischendecke zum Erdgeschoss. Daher verzichten die Planer in der Halle, in den Duschen und Umkleiden auf eine zusätzliche Fußbodenheizung. Eine Gebäudeautomation steuert die komplette Wärme- und Wassertechnik, sowie die Beleuchtung, angepasst an Jahres- und Tageszeiten, sowie an die Auslastung des Schwimmbades.
Bauzeit
Es dauerte fünf Jahre vom Wettbewerb bis zum Baubeginn, weitere zwei bis zur Eröffnung des Gebäudes. Zur langen Planungszeit sagt Jens Pasche: „Es gab zwischenzeitlich einen Planungsstopp von zwei Jahren, weil die Stadtverordneten neu gewählt wurden. Zudem haben ein paar Firmen die Planungszeit verzögert.“ Der Entwurf überlebte spät geäußerte Anforderungen, kommunalpolitische Umbrüche, eine ausführliche Bürgerbeteiligung und Bedenken aus der Nachbarschaft. Und er blieb im Budget. Pasche sagt: „Der Bau selbst konnte so umgesetzt werden, wie wir das planten.“ Mit Ruhe, Robustheit und guten Details, so klappt’s auch mit dem Nachbarn. Rosa Grewe, Darmstadt
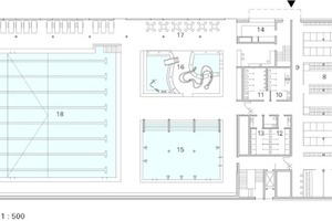
1 Eingang
2 Eingang Freibad
3 Hallenbad
4 Dachgarten (Rohbau)
5 Badeplatte (Planung)
6 Schwimmerbecken (Planung)
7 Nichtschwimmerbecken (Planung)
8 Sprungbecken (Planung)
9 Schwimmmeister (Planung)
10 Umkleidegebäude
11 Parkplatz
12 Fahrradabstellplatz
1 Haupteingang
2 Windfang
3 Foyer mit Kassentheke
4 Besucher WC Herren
5 Besucher WC Damen
6 Back Office
7 Stiefelgang
8 Umkleiden
9 Barfußgang
10 WC Damen
11 WC Herren
12 Duschen Damen
13 Duschen Herren
14 Gastro / Ausgabe
15 Lehrschwimmbecken
16 Eltern-Kind-
Bereich / Kinderbecken
17 Sitzbereich
18 Mehrzweckbecken
19 Geräteraum
