Kochen und Kunst statt Sport und Unterricht 
Ehemalige Jüdische Mädchenschule, Berlin
				
				
								
				
							Mit wenigen Eingriffen, in kurzer Zeit und mit knappen Mitteln verwandelten Grüntuch Ernst Architekten, Berlin, einstige Klassen- und Turnräume in Galerien und Restaurants. Sie retteten damit ein wichtiges Zeugnis jüdischen Lebens in Berlin vor dem drohenden Verfall und bewahrten zugleich die Spuren seiner Geschichte.
Berlin-Mitte, Spandauer Vorstadt, Auguststraße: In der Berliner Galeriemeile, inmitten des Zentrums Berliner jüdischen Lebens, befindet sich die von Grüntuch Ernst Architekten sanierte und Anfang letzten Jahres als Haus für Galerien und Restaurants wiedereröffnete ehemalige Mädchenschule. Erbaut 1927/1928 nach Plänen des Gemeindebaumeisters Alexander Beer im Stil der Neuen Sachlichkeit, wurde die Schule 1942 durch die Nationalsozialisten geschlossen und ab 1950 bis 1996 als DDR-Oberschule und -Gymnasium genutzt. Danach leerstehend und vom Verfall bedroht, suchten Architekten und Eigentümerin, die Jüdische Gemeinde Berlin, gemeinsam nach einem Konzept für die denkmalgerechte Umnutzung des Gebäudes. Ziel war es, trotz knapper finanzieller Mittel und neuer Raumnutzungen die historischen Raumstrukturen und Geschichtsspuren zu bewahren.
Historische Fassade denkmalgerecht saniert
Als minimalinvasiv bezeichnen die Architekten ihr Sanierungskonzept. Sie hätten die neuen Nutzungen quasi in den historischen Bestand eingepasst, erläutert Almut Grüntuch-Ernst auf dem Rundgang durch das Gebäude. So sind die Veränderungen an der strengen, mit dunkelroten Eisenklinkern verkleideten Straßenfront der Schule kaum erkennbar. Die teilweise doppelgeschossigen Metallfenster des Turmbaus, der früher Turnhalle und Aula aufnahm, wurden lediglich saniert. Die vor der Sanierung weißen Holzfenster des leicht zurückgesetzten Hauptflügels, wo sich einst Klassenräume und das Direktorenzimmer befanden, wurden nach historischem Vorbild in den mit Eisenklinker verkleideten Hauptgeschossen wieder ochsenblutrot und im hellgrau verputzten Dachgeschoss erneut weiß gestrichen. Nüchterner, wieder stärker an eine Fabrik erinnernd, wirkt das Gebäude damit nach der Sanierung.
Foyer zum Innenhof geöffnet
Betritt man das Gebäude durch den eingezogenen, zurückhaltend gestalteten Haupteingang und nimmt die wenigen Stufen bis zum Foyer im Hochparterre, weicht der strenge Charakter der Straßenseite einer durch geometrisch gemusterte, farbige Wand- und Bodenmosaike geprägten, lebendigen Atmosphäre. Der Blick geht direkt geradeaus in den grünen Innenhof. Die erste Vermutung, dass es sich hier um den sanierten Erbauungszustand handelt, bestätigt sich jedoch nicht. Die Mosaike entstanden vermutlich erst zu DDR-Zeiten und wurden zudem im Zuge der Sanierung oberhalb der Türen und auf der Hofseite wieder entfernt. Das Foyer öffneten Grüntuch Ernst Architekten erstmals zum Innenhof, indem sie die geschlossene, metallverkleidete Bestandstür durch eine neue, großzügig verglaste Holztür ersetzten. Alt und Neu lässt sich nicht so ohne Weiteres unterscheiden, dennoch überzeugt dieser Raum mit seinem stimmigen und lichten Gesamteindruck.
Alter Raumfluss trotz neuer Nutzungen
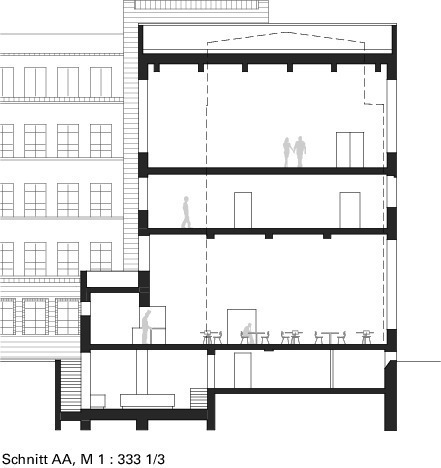
Wendet man sich vom Foyer aus nach rechts, erreicht man das Haupttreppenhaus im Übergang von Haupt- zu Seitenflügel. Hier stellten Grüntuch Ernst Architekten die fließenden Raumübergänge der Erbauungszeit wieder her. Sie entfernten zahlreiche, den Blick verstellende Trockenbauwände und konnten trotz der hohen Anforderungen an den Brandschutz die neuen Galeriewände durchlässig und transparent gestalten. Schwellenlose, nahezu raumhohe Glaswände begrenzen zwischen den historischen, mit farbiger Keramik verkleideten Stützen fast unsichtbar die neuen Räume. Raumhohe, weiße Holztüren markieren dennoch selbstbewusst die neuen Eingänge. Nicht rekonstruiert, sondern mit allen Gebrauchsspuren wieder freigelegt, wurden die historischen Oberflächen des stählernen Treppengeländers und der rötlichen Steinstufen. Passend zu diesem rohen Erscheinungsbild beließen Grüntuch Ernst Architekten die Stahlkonstruktion des neuen Aufzugs im historischen Treppenauge ebenfalls im Rohbau.
Klassenräume werden zu White Cubes
Den rauen Charme des Unfertigen zeigen auch die neuen Galerieräume in den ehemaligen Klassenräumen und Fluren in den Obergeschossen von Haupt- und Seitenflügel. Diese interpretierten die Architekten als White Cubes neu, ohne sie jedoch stark zu überformen – mit weißen Wänden und Decken sowie einem hellgrauen Zementestrich als Fußboden an Stelle des ehemals kräftig roten Linoleums. Alte Oberlichter in den Flurwänden, historische Raumzuschnitte und vor allem die doppelgeschossige, ehemalige Aula mit seiner ebenfalls frei gelegten, jedoch unsanierten Decke erinnern überzeugend an die Geschichte des Hauses. Neue elektrische Anschlüsse, Beleuchtung und die Fußbodenheizung integrierten Grüntuch Ernst Architekten entweder kaum sichtbar in Böden und Bestandswände oder fügten sie mit den zum Teil erhaltenen, historischen Lampen zu einem gelungenen, neuen Ganzen zusammen.
Neue Restaurants als Reinszenierung
Zurück im Erdgeschoss zeigt die Gestaltung der neuen Restauranträume, die überwiegend in der Verantwortung der Restaurantbetreiber lag, mit den Prinzipien Rekonstruktion und Reinszenierung gänzlich andere Ansätze. So wurde im Flur des Seitenflügels der kräftig rote Linoleumfußboden nach historischem Vorbild neu verlegt.
Das Restaurant „The Kosher Classroom“ im ehemaligen Lehrerzimmer erhielt wie alle Restauranträume einen neuen Fußboden aus hellem Eichenholzparkett. Die zurückhaltende Inszenierung als Klassenraum mit Schultafel und ausgestopften Tieren auf Wandborden überzeugt, auch wenn sie nicht der ehemaligen Funktion entspricht. Weniger glaub-würdig wirkt dagegen die Reinszenierung einer „mondänen Atmosphäre der goldenen Zwanziger Jahre“ im Pauly Saal, ehemals Turnhalle, und der Pauly Bar, einst Flur und Umkleiden.
Zum Opfer fielen der Neugestaltung dort nicht nur die historische Atmosphäre, sondern auch die alte Raumstruktur. Hier wurde die Flurwand großflächig aufgebrochen sowie Umkleiden und Flur zu einem großen Barraum verbunden. In der ehemaligen Turnhalle konnten zwar die rötlichen Keramikfliesen aus der Erbauungszeit vom entstellenden weißen Farbanstrich befreit werden, dennoch wirkt die Inneneinrichtung im Stile einer luxuriösen Art-Déco-Ästhetik an dieser Stelle wenig überzeugend.
Gestaltungsanspüche weitgehend eingelöst
Bewahren und rekonstruieren, neu interpretieren und reinszenieren, dies sind die Gestaltungsansätze, die die Architekten und die Inneneinrichter der Restaurants für die Sanierung und die Umnutzung wählten. Beispielhaft ist es den Architekten zusammen mit der Jüdischen Gemeinde gelungen, ein Umnutzungskonzept zu entwickeln, das die meisten neuen Nutzungen sensibel in den Bestand einzupassen versteht und diesen durch Neuinterpretation bewahrt und weiterentwickelt. Fehlt jedoch der Bezug zur Baugeschichte, so wie bei Pauly Saal und Pauly Bar, erscheint die Neugestaltung wenig glaubwürdig. Weniger wäre hier mehr wie die anderen Räume dieser geglückten Wiederbelebung historischer Architektur eindrucksvoll zeigen.




 
						 
						 
						 
						 
						 
						 
						 
						 
						 
						 
						 
						 
						 
						 
						 
						 
						 
						 
						 
						 
						 
						 
						 
									

 
									 
									 
									 
									