Farben mit SystemKindertagesstätte in Dingolfing
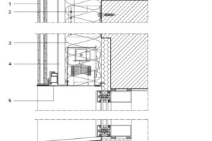
Das Erkennen von Farben lernen Kinder schon recht früh. Darauf aufbauend haben die Architekten arch|ing ostermeier, Dingolfing, die neue Kindertagesstätte St. Johannes geplant. Fünf wabenförmige Häuser sind in unterschiedlichen Farben gestaltet und gruppieren sich um einen mäanderförmigen Flurbereich. Wenn die Kinder morgens von ihren Eltern gebracht werden, folgen sie einfach den Farben der Fußböden und erreichen so zielsicher ihre Gruppen. Und nach dem Spielen auf dem gartenseitigen Gelände finden sie ihre Gruppenwabe auch von hier aus leicht hinter den in entsprechenden Farben glasierten Ziegelfassaden wieder. Das Gebäude ist als Massivbau konzipiert, mit erhöhtem Wärmeschutz, mit Gründach und vorgehängter, wärmegedämmter und hinterlüfteter Moeding-Ziegelfassade. Die stehend montierten Keramikelemente der Fassadenbekleidungen in Breiten zwischen 200 und 400 mm sind farbig glasiert. Und da hier der jeweiligen Leitfarbe stets eine Farbvariante (z.B. Verkehrsrot und Weinrot) im Wechsel mit Grau, Anthrazit und Weiß zugeordnet wurden, sind die Fassadenbilder durch ein bewegtes Streifenmuster geprägt.
