Mehrfamilienholzhaus Linse, Berlin
Es wird doch gebaut in Deutschland! Gerade in Berlin, in einer Stadt, in der einmal Wohnungen für wenige Euro (Mark) zu kaufen, zu mieten waren. Lange ist das her. Nach etwa drei Jahrzehnten sieht nicht nur Berlin anders aus. Die meisten Wohnungsneubauten sind sichtbarer Ausdruck einer freudlosen Boden-, Material- und Zuhausevermarktungmaschinerie. Aber auch, so wie hier berichtet, mit einem Statement für zukünftig möglichen, sozialeren Wohnungsneubau … Wenn wir schon neu bauen müssen!
Dort, in Schöneberg, entlang der Gotenstraße, wo lange Gewerbe auf das Abräumen beziehungsweise Umsiedeln wartete, hat die Stadt Berlin gleich mehrere Blöcke in Bearbeitung genommen. Wohnen sollte und soll zusammen mit Kleingewerbe, Büros, öffentlichen Einrichtungen, Läden etc. realisiert werden. Wir hatten im Rahmen unseres Berichts über das „Ausbauhaus Südkreuz“ von Praeger Richter Architekten (DBZ 04|2023) schon einmal das Gebiet erkundet; nun sind wir wieder hier, nur eine Parzelle weiter in Richtung Sachsenring, eine mehrspurige, immer laute Verkehrsader, die das große Entwicklungsgebiet Südkreuz nach Süden hin abschließt.
Fassade zur Hofseite als vertikale Holzstülpschalung (unbehandelte Lärche). Die Balkone wurden vor die Fassade gehängt. Die Fassade zur Straße ist mit Faserzementtafeln bekleidet
Foto: Jan Bitter Fotografie
Da hatte die Stadt 2016 über die stadteigene BIM Berliner Immobilienmanagement GmbH ein Konzeptverfahren ausgelobt, auf das sich ca. 80 Teams bewarben. Das Verfahren forderte dazu auf, einen Wohnungsbau (Blockrand) zu entwickeln, einen Holzbau, energetisch hocheffizient, der Raum für benachteiligte Gruppen bietet, Raum für einen gemeinnützigen Träger, der Gewerbeflächen vermietet sowie drei geförderte Wohnungen. Das Verfahren war vierstufig angelegt, was darauf hindeutet, dass am Ende 80 Teams mit hoher Vorleistung belastet waren und: The winner takes it all. Das war in diesem Fall das Berliner Büro Scharabi Architekten, deren Programmatik – pragmatischer, aber eben auch leistungsfähiger wie sinnlich definierter Holzbau – die sehr ambitionierten Wettbewerbsanforderungen der BIM erfüllte. Einerseits auf der Regelebene, nämlich realistische Ergebnisse mit idealistischen Vorstellungen des Auslobers in Übereinstimmung zu bringen. Andererseits auf der sozialen, mittels einer gebauten Struktur, die es theoretisch erlaubt, die Konzeptvergabegeschichte des Landes – es sind seit 2016 etwa 40 – erfolgreich zuende zu schreiben. Konzeptvergaben dieser überfordernden Art sind nicht zielführend, sozialen und erschwinglicher Wohnraum für alle zu schaffen.
Zur Gotenstraße und der verkehrsreichen Ringstraße sind die Balkone teils als geschlossene Räume/Raumerweiterungen geplant
Foto: Jan Bitter Fotografie
Ökologie, Tragwerk und Technik
Die Vorgaben seitens der BIM erzeugten dann auch kein Referenzprojekt zum Wohnungsbau. Das Projekt biete aber, so Farid Scharabi, Hinweise und Anknüpfungspunkte für den Wohnungsneubau insgesamt. Holzbau als generelle Lösung wird hier im „Wohnhaus Linse“ einmal grundsätzlich gedacht. Konstruktiv ist der Siebengeschosser in massiver Holzbauweise mit tragender Fassaden in Brettsperrholz (CLT) erstellt. Hinzu kommen ein Ortbetonkern für Treppenhaus und Fahrstuhlschachteinfassung (der Fahrstuhlschacht selbst besteht aus Holz) sowie Betonfertigteile für die Giebel. Dieser Mix spare, so Farid Scharabi, in der Erstellung rund 165 t CO₂ gegenüber einem komplett mineralisch erstellten Bau.
Neben den Französischen Fenstern zur Straßenseite stehen zwei schallabsorbierende Lüftungsklappen
Foto: Jan Bitter Fotografie
Die Geschossdecken kommen als Fertigteile aus der Schweiz und sind patentierte Hohlkörper-Holzelemente. Die, so der Architekt, sollten schon im Vorgängerprojekt, dem Mehrgeschosswohnungsbau „Walden 48“ in Berlin-Friedrichshain zum Einsatz kommen (s. a. DBZ 04 | 2021), wurden damals aber als zu teuer verworfen. Eine klare Fehlentscheidung, wie der Architekt kommentiert, mit allen Zusatz- und Nebenkosten waren die Betondecken am Ende gleich teuer. Alle Holzbauteile sind – inklusive der hofseitigen Fassade – unbehandelt und sichtbar belassen. Die Fassaden zur Gotenstraße wurden mit matten Faserzementplatten bekleidet, im Erdgeschoss und Staffelgeschoss im dunkel abgesetzten Farbton. Zu beiden Seiten wurden Balkone als filigrane Seilkonstruktionen angehängt, zur Straße teilweise mit Glaselementen eingehaust. Mit den Wänden und den Betonschächten gibt es geschossweise nur zwei (Holz-)Stützen, was eine variable Grundrissbespielung und Fensteranordnung je Geschoss möglich machte.
Holzoberflächen wurden grundsätzlich nicht verkleidet, die meisten Bewohnerinnen entschieden sich ebenfalls, die Sichtbetonelemente (Giebel) sichtbar zu belassen
Foto: Jan Bitter Fotografie
Betonkern um den hölzernen Fahrstuhlschacht mit Fluchttreppenhaus. Blick zum Hauseingang Gotenstraße
Foto: Jan Bitter Fotografie
Neben der Konstruktion und der Materialität, der Anpassungsfähigkeit des Wohnhauses an spätere Wohnansprüche, Wohngewohnheiten, spielt auch die energetische Versorgung eine Rolle in der Bewertung des „Ökologischen“ in diesem Neubau. Zentrale Stellpunkte, den Energiestandard KfW 40 Plus gemäß EnEV 2016 und besser zu erreichen, sind: geringe U-Werte der opaken Bauteile (Uw <= 0,15 W/m²K), Passivhausfenster (Uw <= 0,75 W/m²K), eine komplett wärmebrückenfreie Hülle, Luftdichtigkeit (n50<= 0,6), Weißglas für hohe passive Gewinne sowie eine kontrollierte Be- und Entlüftungsanlage mit Wärmerückgewinnung.
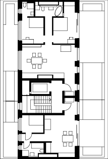
Wohnungsgrundriss komplett geöffnet oder ...
Foto: Jan Bitter Fotografie
... Wohnungsgrundriss teilgeschlossen
Foto: Jan Bitter Fotografie
Die verbleibende Heizlast wird gedeckt durch eine Kombination aus Sole-Wärmepumpe und Mikro-Blockkraftheizwerk kombiniert mit einem Eisspeicher. Ein Batteriespeicher nimmt den Stromüberschuss aus dem BHKW auf. Zur Sicherung des sommerlichen Wärmeschutzes dienen passive Kühlung über die Fußbodenheizung und Kühlregister in der Lüftungsanlage, kombiniert mit außenliegendem Sonnenschutz. Das sehr niedrige Energieaufwandsniveau wird auch mit den hochschalldämmenden Fenstern (HafenCity Fenster) erreicht. Selbst zum vielbefahrenen Sachsendamm gewährleisten diese Spezialfenster noch im teilgeöffneten Zustand niedrige Schallpegel innerhalb der Wohnungen bei ausreichend gutem Luftwechsel.
Solidarische Finanzierung
Vielleicht wären die Finanzierungsabsprachen in der Baugruppe nicht so großzügig und solidarisch verlaufen, hätten alle gewusst, dass eine Pandemie die Baukosten in die Höhe treiben wird, dass aus niedrigen Zinsen höhere werden und dass Fördergelder nicht mehr so reichlich fließen, wie sie es gerade noch taten. Die Forderung der BIM, mit dem Neubau auch sozialen und solidarisch erstellten Wohnraum zu schaffen, bedeutete in diesem Fall, dass in den Geschossen fünf und sechs die Erstellungskosten so kalkuliert sind, dass man mit ihnen die Erstellungskosten für den Bau darunter mitfinanziert. Natürlich sind die Wohnungen oben heller und haben einen kleinen Dachgarten. Der Ausbaustandard (betreffend Innentüren, Oberflächen und Sanitärausstattung) und die lichten Raumhöhen jedoch sind überall im Haus identisch. Die durch die Baugruppe zur Gesamtfinanzierung herbeizuführende enorme Spreizung der Baukosten habe mehr als die Hälfte der Bauherrnparteien aus den oberen drei Geschossen gezwungen, unter grenzwertigen persönlichen Bedingungen erhebliche Nachfinanzierungen in Kauf zu nehmen. In den unteren Geschossen unterscheidet sich der tatsächliche Ausbau der Wohnungen dagegen durchaus, hier konnten in einem großen Spektrum an Möglichkeiten „Sonderwünsche hinzugebucht“ werden.
Die schließlich unverhältnismäßig hohen Belastungen seien, so Farid Scharabi, kaum zumutbar, gerade wenn man sich selbst aktiv und über dann fünf Jahre mit großem persönlichem und zeitlichem Engagement eingebracht hätte. Auch mit Blick auf kostensenkenden Effekt!
Nutzungen, Grundrisse
Neben der sozialen Durchmischung der Baugemeinschaft „Holzhaus LINSE“ gab es auch die Anforderungen an gemischte Nutzungen. Insbesondere sollten die Erdgeschossflächen gemeinschaftliche Nutzungen (Gemeinschaftsraum zum Garten) bieten und dem gemeinnützigen Träger Räume zur Verfügung stellen (aktuell ist das die Jugendfreizeiteinrichtung „Kiezlinse“ vom F.A.B. e. V.). Ein geschlossener Flur zwischen Straße und Garten ist Rettungs- und Verbindungsweg zwischen Treppenhaus und Gemeinschaftsraum/Garten. Wegen der gewerblichen Nutzung liegt die Raumhöhe hier nach Vorgaben des Bebauungsplans bei rund 4 m, ansonsten bei ca. 2,75 m.
Neben den Zweispänner- (3. und 5. OG) und Dreispännergeschossen (2. u. 4. OG) gibt es eine Cluster-Wohnung im 1. OG mit drei Einheiten um einen Gemeinschaftsraum. Hier ist Wohnraum (als Eigentumsfläche) für Frauen über 50 vorhanden. Die Mieten für die Wohnungen des Gemeinnützigen Trägers liegen bei rund 8 €/m² Kaltmiete.
Tatsächlich erscheint es auf den ersten Blick nicht von Vorteil gewesen zu sein, den Bauherrn die offenen Grundflächen für eigene Flächennutzungsgestaltungsambitionen überlassen zu haben, es gibt (scheinbare) Merkwürdigkeiten, die einem individuellen Bedürfnis nachkamen und sich vielleicht dem Rat der Architekten entzogen haben. Dass sich das eher dezent im Fassadenspiegel niederschlägt, ist der Feinjustierung der Planerinnen geschuldet. Ob der Gemeinschaftsraum im EG beispielsweise (einer von dreien im ganzen Haus) fleißig und von (fast) allen genutzt wird, wird die Zeit zeigen. Die Durchmischung der Funktionen und finanziellen Ambitionen, die Förderung der Schwächeren durch die bessergestellten Projektpartner ist vorbildlich. Ob dadurch alternative Formen des Zusammenlebens, die soziale Vielfalt im Kiez gefördert wird?
Fazit
Tatsächlich sieht Farid Scharabi das Projekt über alle Zufriedenheit mit dem gebauten Ergebnis auch kritisch. Eine Querfinanzierung aus privaten Mitteln zur Erzielung kostengünstigen Wohnraums und zudem kostengünstiger Gewerbeflächen sei kein adäquater Weg – insbesondere dann nicht, wenn dies gekoppelt ist an überhöhte Ansprüche an ökologische, hier auch kostenintensive, technische Themen.
Einheben der Hohldeckenelemente
Foto: andreas meichsner photography
Detail Kastenfenster, Straße OG, M 1 : 15
1 Aufdopplungsholz, luftdicht mit Fenster verleimt
2 Vollholz 50 mm
3 Montagefuge mit beids. fugendichter,
dauererlastischer Abdichtung
4 EPDM-Abdichtungsfolie, diffusionsdicht,
wechselseitig klebend an Aufdopplungsholz
bzw. Rahmen
5 Dampfbremse gegen 4 gepresst
6 Massivholzelement (BSP) 40 mm
7 Massivholzelement (BSP) 20 mm
8 Holz-Unterzug, GL 28c, 200/400 mm
9 Fensterprofil Kastenfenster
10 Rahmen und -verlängerung, 50 mm Vollholz
(im Balkonbereich mit Löchern)
11 Rippen als Teil des Fensters
(nur punktuell, Hohlräume sind
mit MiWo auszustopfen)
12 Randdämmstreifen, mineralisch
13 Stahlwinkel, 120/15 mm
14 EPDM-Abdichtungsfolie, diffusionsdicht
15 Material zur Entkoppelung
16 Unterbrechung der Unterkonstruktion
zur Vermeidung der Flankenübertragung
17 Fassadenbahn, luftdicht an EPDM-Dichtfolie verwahrt
18 EPDM-Dichtfolie, diffusionsoffen, an Fensterrahmen und Unterdeckplatte befestigt (umlaufend)
19 Insektenschutzgitter
20 Fensterbankkeil mit zweiter Dichtebene und
Fensterband, Aufkantung hinter Laibungsblech,
Übergang zu Brandschutzblech
(nur bis Unterdeckplatte)
21 Absturzsicherung mit Stahlwinkeln am
Fensterrahmen befestigt
Detail Balkonanschluss/Brandschutzblech Typ C, M 1 : 15
1 schallentkoppelte Knagge Teil 3/3,
Lagerplatte, Blech t = 10 mm S235
2 schallentkoppelte Knagge Teil 2/3,
Anschlussplatte Blech t = 25 mm S235,
Lagerplatte, Blech t = 10 mm S235,
Steifen, Blech t = 15 mm, S235
3 schallentkoppelte Knagge Teil 1/3,
Lagerplatte, Blech t = 10 mm S235 + 2M12 4,6 angeschweißt, Steifen,
Blech t = 15 mm, S235
4 Elastomerlager 15 mm
5 Balkonhauptträger HEB 160, S235
6 Balkonnebenträger, IPE 160, S235
7 Holz-Nebenträger 6/10, GL 24c
8 EPDM-Dichtfolie, dicht verwahrt
9 EPDM-Dichtfolie, diffusionsoffen,
an Fassadenbahn dicht verwahrt
Der Architektur selbst – mehrgeschossiger Holzbau – spricht er eine „starke baukulturelle Relevanz“ zu, verweist auf die lange Tradition von Holzbauten und deren Entwicklung einer modernen Architektursprache und innovativer Technologien. Aber: Wie in den meisten Hausprojekten des Büros Scharabi Architekten werden Holzbauweisen erprobt, die zu einer Weiterentwicklung führen sollen. Bei der „Linse“ war es die Holz-Massivbauweise in Verbindung mit dem Einsatz von Holz-Hohlkörperdecken, die zu hervorragenden akustischen Ergebnissen geführt habe. In Folgeprojekten würde, dem entgegengesetzt, ein kostenminimierter Holz-Skelettbau geplant, weil der dem konventionellen Bauen gegenüber wirtschaftlich konkurrenzfähiger ist (so in dem Wohnungsbau „Greenville“ in Hamburg).
Dass man Wohnungsbau mit Holz machen müsse, verteidigt er vehement: Das Bauen mit unbehandeltem Holz und seine Sichtbarmachung steigern das Lebensgefühl in unvergleichlicher Weise. Dies sei ein wesentlicher qualitativer Aspekt der Holzbauweisen, sofern der Baustoff als massiver eingesetzt würde. Nur dann könnten seine sinnlichen, zugleich haptischen, olfaktorischen, visuellen und seine feuchteregulierenden Eigenschaften wie auch sein Wärmeleitverhalten voll zum Zuge kommen. Es sei aber bei jeder Bauaufgabe eine gründliche Abwägung erforderlich, welche Holzbauweise adäquat ist. Hybridbauten wären hier eher nur ein Schritt in die richtige Richtung. Den Nachteil mangelnder Speichermasse könne man mit einer Kombination von Holzkonstruktionen mit Lehm oder/und im Einzelfall Betonfertigteilen ausgleichen.
Wohnen mit natürlich belassenem Holz also, Wohnen mit Mitmenschen, Wohnen mitten in der Stadt und eigentlich wie zuhause.
Scharabi Architekten, Berlin
www. scharabi.de
Foto: Anne Schönharting
Projektdaten
Objekt: Holzhaus LINSE, Neubau eines Mehrfamilienhauses in Holzbauweise
Standort: Gotenstraße 44, 10829 Berlin-Schöneberg
Typologie: Wohngebäude
Bauherrin/Nutzerin: Planungsgemeinschaft Linse SL GbR
Architektur: Scharabi Architekten PartG mbB, Berlin
Team: Christin Blümel, Daniela Gallaraga, Irina Matthei, Susanne und Farid Scharabi
Bauleitung: Scharabi Architekten PartG mbB,
Reppmann & Pilath GmbH
Bauleitung: Farid Scharabi, Ina Pilath
Bauzeit: 03.2020–11.2022
Zertifizierungen: KfW 40 plus
Grundstücksgröße: 572 m²
Nutzfläche gesamt: 2 075 m²
Nutzfläche: 1 880 m²
Technikfläche: 35 m²
Verkehrsfläche: 160 m²
Brutto-Grundfläche: 2 750 m²
Brutto-Rauminhalt: 8 640 m³
Baukosten (nach DIN 276):
Gesamt brutto: 4,7 Mio. € (KG 300 + 400)
€/m² Hauptnutzfläche: 2 517 €
€/m³ Brutto-Rauminhalt: 548 €
Finanzierung, Überblick Kostenverteilung
Neben den drei mietpreisgebundenen Wohnungen gibt es im EG eine durch einen gemeinnützigen Träger erstellte Gewerbeeinheit. Cluster-WG im 1. OG, mit der die Zielgruppe „Frauen 50+“ angesprochen wurde, vier haben sich als Baufrauen beteiligt.
Zudem verfügt das Haus über drei Gemeinschaftsräume (mit insgesamt knapp 70 m²) und einen Gemeinschaftsgarten (120 m²) und einen freien Zugang zu einem gemeinschaftlichen Park (>3 000 m²).
Die obersten drei Etagen (DG, 5. + 4. OG) haben die Flächen im EG und 1. OG (Cluster) querfinanziert. Das 2. und 3. OG haben hingegen die Baukosten in für Baugruppen zurzeit üblicher Höhe und allgemein üblicher Spreizung mitgetragen.
Fachplanung
Tragwerksplanung: ifb frohloff staffa kühl ecker, Berlin, www.ifb-berlin.de
TGA-Planung: Dernbach GmbH, Berlin,
www.pb-dernbach.de
Fassadentechnik: MAX-HAUS GmbH, Marienwerder, www.max-holzbau.com
Lichtplanung: Scharabi Architekten PartG mbB
Innenarchitektur: Scharabi Architekten PartG mbB und Eyrich-Hertweck Architekten
Akustik: Akustikbüro Krämer+Stegmaier GmbH, Berlin, www.akustik-berlin.de
Landschaftsarchitektur: hutterreimann landschaftsarchitektur gmbh, Berlin, www.hr-c.net
Energieplanung
Energieberatung: Dipl.-Ing. Architekt Ingo Andernach, Berlin
Brandschutz: brandschutzplus GmbH, Berlin,
www.brandschutzplus.de
Thermische Bauphysik: Dipl.-Ing. Architekt Ingo Andernach, Berlin
Energie
Primärenergiebedarf: 21,15 kWh/m²a nach EnEV 2022
Endenergiebedarf: 17,26 kWh/m²a nach EnEV 2022
Jahresheizwärmebedarf: 8,10 kWh/m²a nach PHPP/EnEV 2022
U-Werte Gebäudehülle:
Außenwand = 0,14 W/(m²K)
Bodenplatte = 0,22 W/(m²K)
Dach = 0,10 W/(m²K)
Fenster (Uw) = 0,72 W/(m²K), als Mittelwert
Verglasung (Ug) = 0,50 W/(m²K)
Ug-total (mit Sonnenschutz) = 0,50 W/(m²K)
Luftwechselrate n50 = ca. 0,4/h
Hersteller
Türen / Tore / Fenster: Fa. MENCK,
www.menck-fenster.de
Heizung: u. a. Buderus, www.buderus.de,
Zehnder, www.zehndergroup.com
Innenwände/Trockenbau: KNAUF, www.knauf.de
Lüftung: u. a. Helios, www.heliosventilatoren.de
Sanitär: Duravit, www.duravit.de,
Laufen, www.de.laufen.com
Sonnenschutz: HELLA, www.hella.info
Wärmedämmung: u. a. STO, www.sto.de
