Mehr Spielraum als Standard
Die hohe Nachfrage nach Kitas wirft auch die Frage auf: Wie können wir den Bestand künftig besser für eine ökologisch und gesellschaftliche Bewältigung dieser Aufgabe nutzen? Einzelne Projekte zeigen bereits jetzt, wie flexible Lösungen zu echten Beiträgen führen können.
Gemäß dem Statistischem Bundesamt gibt es in Deutschland derzeit über 60 000 im Betrieb befindliche Kindertagesstätten. Seit mehr als einem Jahrzehnt wächst diese Zahl kontinuierlich um mehrere Hundert Neubauten pro Jahr. Dieser auf dem bestehenden Rechtsanspruch auf einen Kindergartenplatz fußende Trend dürfte die allgemeine Wahrnehmung der Architektenschaft widerspiegeln: Kindertagesstätten scheinen über alle Krisen des Bauens hinweg zuverlässige, weil dringend notwendige öffentliche Bauvorhaben zu sein. Die Komplexität der Aufgabe ist dabei überschaubar. Kommunen oder übergeordnet agierende Träger haben aufbauend auf den im jeweiligen föderalen System geltenden Gesetzen eigene Raumprogramme entwickelt, die sich im Grunde ähneln und im Detail unterscheiden. Die Umsetzung der funktional klar umrissenen Anforderungen wird stellenweise sogar jungen oder kleinen Büros zugetraut. Im Ergebnis braucht es keine endlose Recherche, um gute und aktuelle Kindergartenarchitektur aufzuspüren. Sowohl in der Bundesrepublik als auch im angrenzenden Ausland finden sich zahlreiche spannende Neubauprojekte.
Demgegenüber unterrepräsentiert sind gelungene Beispiele für die Umnutzung von Bestandsgebäuden, für Neubauten in verdichteter Lage oder für die Optimierung bestehender Einrichtungen. Das überrascht, schließlich ist die Auseinandersetzung mit dem gebauten Bestand im Hinblick auf Klimaschutz, Verdichtung und Baukostenentwicklung die zentrale Aufgabe unserer Zeit. Den Greyfield-Prognosen folgend wird das Bauen im Bestand gemessen an der Zahl der Baugenehmigungen den Neubau spätestens 2028 überholt haben. Wo verstecken sich also die überzeugenden Beispiele für Kitabauten im Bestand? Gibt es herausragende Qualität auch außerhalb der „grünen Wiese“ und lassen sich bestehende Standorte qualitätvoll verdichten? Oder stehen im Bestand die Anforderungen an eine normgerechte Kinderverwahrung im Widerspruch zu herausragender Architekturqualität?
Chance für gewachsene Quartiere
Die stetig zunehmende Zahl an Kindertagesstätten stellt vor allem in bereits verdichteten, urbanen Räumen eine Herausforderung dar. Während der Flächennutzungsplan im Neubaugebiet auf der grünen Wiese ausreichend Flächen für Gemeinbedarf vorhält und Kindergärten als selbstverständlichen Teil des Siedlungswachstums mitdenkt, sind die Flächen in engen Stadtstrukturen oftmals bereits anderweitig codiert. In der Folge werden Einrichtungen zunehmend in der Peripherie errichtet. Lange Wege zwischen Wohnung oder Arbeitsstätte und Kinderbetreuungsplatz führen zu mehr Verkehr und damit zu einer zusätzlichen, auch stadträumlichen Belastung.
Verspielt wird damit zugleich die Chance, Kindertagesstätten als sozialen Treffpunkt zu etablieren. Bereits die Nutzung des Freibereichs bringt eine selbstverständliche Lebendigkeit in Wohnsiedlungen und auch der Hol- und Bringverkehr, der mit dem Lauf- oder Lastenrad sozialverträglicher als mit dem SUV vonstatten geht, vitalisiert ein Umfeld. Kitas können aber auch als räumliche Reserve fungieren: Bei entsprechender Anordnung können Mehrzweck-, Bewegungs- oder Speiseräume außerhalb der Öffnungszeiten genutzt werden und die Gebäude damit einen Mehrwert für das gesellschaftliche Miteinander gewachsener Quartiere bilden.
Prämisse 1: Raumprogramme flexibler denken
Die Entwicklung oft standardisierter und damit idealisierter Raumprogramme fußt auf den gesetzlichen Vorgaben zum Bau von Kindertagesstätten. Die in den Bundesländern jeweils geltenden Gesetze über Kinderbetreuung machen in der Regel jedoch denkbar knappe Vorgaben zu räumlichen Anforderungen. In Sachsen beispielsweise umschreibt § 11 „Räumliche Anforderungen“ des SächsKitaG kurz und knapp: „Die Lage, das Gebäude, die Räumlichkeiten, die Außenanlagen und die Ausstattung der Kindertageseinrichtungen müssen den Aufgaben gemäß § 2 genügen. Sie müssen ausreichend und kindgemäß bemessen sein.“. § 2 wiederum beschreibt lediglich die grundsätzliche „Aufgaben und Ziele“ der Kindertagesbetreuung, zur Übersetzung dieser Ziele in gebauten Raum schweigt auch dieser Paragraf. Konkreter wird die „Empfehlung des Sächsischen Staatsministeriums für Soziales zu den räumlichen Anforderungen an Kindertageseinrichtungen“, die dem Landesjugendamt als Entscheidungshilfe für die Erteilung der Betriebserlaubnis und „gleichzeitig Architekten und Trägern von Kindertageseinrichtungen als Orientierung“ dienen soll. Ein Blick in den § 4 „Ausstattungshinweise“ gibt endlich konkrete Hinweise: „Die Gruppenräume für Kinder sollen so gestaltet sein, dass a) 3,0 m2 je Krippenkind, b) 2,5 m2 je Kindergartenkind und c) 2,5 m2 je Hortkind zur Verfügung stehen“. Gepaart mit weiteren Hinweisen zu Schlaf- und Sanitärräumen, Personalräumen, Projekträumen, einem Mehrfunktionsraum und Abstellräumen lassen sich darauf aufbauend Raumprogramme entwickeln.
Unter Berücksichtigung des gesetzlich geregelten Betreuungsschlüssels und daraus resultierenden Gruppengrößen von 18 bis 22 Kindern fordern die Programme meist Gruppenraumgrößen von 45 bis 55 m2. Diese oft streng gelebte Vorgabe ist im Zusammenspiel verschiedener Vorschriften dem Streben nach einem personell möglichst wirtschaftlichen Betrieb der Kitas geschuldet. Die großen Gruppenräume beruhen dabei allerdings auf dem pädagogischen Konzept der Stammgruppe, das mittlerweile insbesondere im Kindergartenbereich vielfach durch offene oder teiloffene Konzepte, in denen Kinder sich frei zwischen verschiedenen Raumangeboten bewegen dürfen, abgelöst wird.
Die Frage nach ausreichend großen Gruppenräumen steht scheinbar im Widerspruch zur Verortung von Kindertagesstätten in Bestandsgebäuden. Denn welche Typologie, abgesehen von selten vom Leerstand betroffenen Schulbauten, offeriert gleich mehrere Räume mit ca. 50 m2 Fläche? Wohnhäuser sind es nicht, zunehmend von Leerstand betroffene Pfarrhäuser, Bahnhöfe, oder andere Gebäude der städtischen Infrastruktur in der Regel auch nicht. Soll der gebaute Bestand zukünftig stärker für die Kinderbetreuung genutzt werden, ist ein Umdenken erforderlich: Anstelle fixer Raumprogramme sollte primär die für einen Standort gewünschte und notwendige Anzahl Kinder definiert werden.
Im Ergebnis könnten Kindertagesstätten auch in kleinteiligeren Bestandsstrukturen verortet werden und diese flexibel interpretieren. Für den wesentlichen Teil der Nutzenden – die Kinder – dürfte das durchaus ein Gewinn sein. Die Zergliederung des Programms in mehrere, kleinere Räume generiert differenzierte Abfolgen von Ruhe- und Spielbereichen, von Werk- und Bauräumen oder von Tobe- und Leseecken. Die Gebäudestruktur wirkt auf den Schallpegel regulierend und der kindliche, von den elterlichen Wohnungen bekannte Maßstab bleibt gewahrt. Herausforderungen können sich in Abhängigkeit des pädagogischen Konzepts hinsichtlich der Beaufsichtigung und damit für das pädagogische Personal ergeben. Vergleichsweise geringfügige bauliche Eingriffe können hier jedoch Abhilfe schaffen, um Strukturen zusammenzuschalten oder raumübergreifende Sichtbeziehungen aufzubauen.
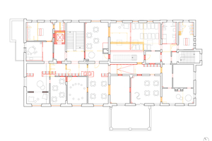
Praxisbeispiel Kita Leipzig Lößnig
Im Leipziger Stadtteil Lößnig wurde Anfang des 20. Jahrhunderts ein mehrgeschossiges, multifunktional genutztes Gebäude errichtet. Originär diente es u. a. der Siedlungsverwaltung, als öffentliche Badeanstalt, Casino, Gaststätte und Bibliothek. In der Nachwendezeit eignete sich ein freier Kita-Träger das im Besitz der Stadt Leipzig befindliche Baudenkmal sukzessive an. Nach 30 Jahren zu großen Teilen ungeregelter Nutzung und einem insgesamt hohen Sanierungsrückstau soll das Gebäude grundlegend saniert und in diesem Zusammenhang auf die Kita-Standards der Stadt Leipzig angepasst werden.
Die kleinteilige Gebäudestruktur bringt große Kompromisse und Abweichungen vom Musterraumprogramm mit sich. Die Fläche der Gruppenräume wurde auf bis zu drei Räume aufgeteilt, die untereinander mit Türen oder Durchbrüchen verbunden sind. Für Sanitäranlagen wurde auf die sonst meist obligatorischen Sichtbeziehungen zu Gruppenräumen verzichtet. Auch der Mehrzweckraum wurde auf mehrere kleinere Projekträume aufgeteilt und auf einen Speisesaal wurde gänzlich verzichtet: Das Essen wird dezentral in den Gruppenräumen ausgegeben. Im Ergebnis entstehen für die Unterbringung von mehr als 120 Kinder eher wohnungsartige Grundrisszuschnitte.
Die baulichen Eingriffe beschränken sich neben der denkmalpflegerischen und funktionalen Instandsetzung auf wenige Einbauten, die die Erschließung und Entfluchtung der Räume sicherstellen, Garderoben aufnehmen oder haustechnische Installationen kaschieren. Das übergeordnete Gestaltungskonzept rahmt die bisher situativ im Baudenkmal entstandene Unordnung und verleiht ihr einen roten Faden. Ohne dass der freie Träger sein im Wesentlichen offenes pädagogisches Konzept über Jahrzehnte hinweg auf den vorgefundenen Bestand angepasst hätte, steht jedoch zu bezweifeln, dass die Entwurfsplanung von den zuständigen Ämtern akzeptiert worden wäre.
Prämisse 2: Freibereiche kreativer verorten
Gut gestaltete Freibereiche sind für die frühkindliche Entwicklung mindestens genauso bedeutsam wie durchdachte Gebäude. In verdichteten Lagen stellt sich bei der Neuverortung von Kindertagesstätten zunächst jedoch die Frage nach der Verfügbarkeit entsprechender Flächen. Die „Empfehlung des Sächsischen Staatsministeriums für Soziales zu den räumlichen Anforderungen an Kindertageseinrichtungen“ fordert in § 2 „Anforderungen an den Standort“: „Das Grundstück der Kindertageseinrichtung soll eine Freispielfläche von 10 m2 je Platz umfassen“. Andere Bundesländer kommen zu durchschnittlich ähnlichen Werten. Bei Kitas mit häufig mehr als 100 Kindern entstehen damit große Freiflächenbedarfe, die viele Bestandsgebäude, z. B. den klassischen mehrgeschossigen Blockrand, für Umnutzungen disqualifizieren.
Die „Hamburger Richtlinie für den Betrieb von Kindertageseinrichtungen“ formuliert die Flächenvorgabe aus auf der Hand liegenden Gründen moderater und erlaubt: „Wenn im Einzelfall kein Außengelände zur Verfügung steht, muss ein Spielplatz aufgesucht werden können, der für die Kinder – je nach Altersgruppe gemäß ihrer Entwicklung – in bis zu 15 Minuten gut zu Fuß erreichbar ist und zur Verfügung steht“. Diese oder ähnliche Formen der Kompensation scheinen bei genauerer Betrachtung aber nur bedingt tragfähig. Höhlen, Naschbeete, Kletterbäume oder Verstecke werden auf öffentlichen Spielplätzen meist vergeblich gesucht, Parks sind in nur seltenen Fällen ausreichend eingefriedet. In der Folge entstehen höhere Aufwände für die Aufsicht und zusätzliche Wege im Alltag. Vor allem aber schränken ausgelagerte Freibereiche den Tagesablauf ein: Ein freies, selbstbestimmtes und situatives Wechseln zwischen Innen- oder Außenbereich ist nicht mehr möglich.
Abhilfe können Außenräume schaffen, die nicht das Geländeniveau in Anspruch nehmen, sondern in die Höhe wachsen. Je nach baulichen Gegebenheiten können Dachflächen Außenräume aufnehmen – hier liegt das wohl größte Flächenpotential innerhalb verdichteter Strukturen. Auch vorgelagerte Fluchtbalkone, die im Bestand häufig ein einfaches Mittel zur brandschutztechnischen Ertüchtigung sind, können als aufgeweitete Laubengänge neben ihrer primären Funktion ergänzende Aufenthalts- und Spielflächen abbilden.
Praxisbeispiel Kita Spreeklang in Fürstenwalde/Spree
Für den Neubau der Kita Spreeklang in Fürstenwalde/Spree stand im Kontext eines zentral gelegenen Baudenkmals in Bahnhofsnähe nur ein begrenztes Grundstück zur Verfügung. Um den Standort für einen freien Träger wirtschaftlich betreiben zu können, musste das Gebäude für mehr als 130 Kinder ausgelegt werden.
Dem Gebäude wurde gartenseitig ein Laubengang vorgelagert, der 250 m² zusätzlichen Außenraum im Obergeschoss generiert und damit die Kapazitäten des Grundstücks deutlich vergrößert. Die Verlagerung des zweiten baulichen Rettungswegs aus der thermischen Hülle heraus sorgt außerdem dafür, dass das eigentliche Bauvolumen kleiner werden kann und auch der ebenerdige Freibereich damit an Größe gewinnt. Neben diesem Rechenspiel sorgt der den Gruppenräumen vorgelagerte Außenraum für große Qualität in der Nutzung: Während vor den Gruppenräumen des Kindergartens im Obergeschoss direkt zugängliche, differenzierte Freispielbereiche entstehen, spendet die Balkonschicht für die Krippenräume im Erdgeschoss Schatten und definiert den Übergang vom geschützten Innenraum in die weitläufigere Freispielfläche.
Prämisse 3: Bestehende Strukturen optimieren
Auch bestehende Kitas in gewachsenen Lagen bergen ein nennenswertes Entwicklungspotenzial. Sofern Freiflächen Reserven aufweisen oder anderweitig kompensierbar sind, kann eine Umstrukturierung oder Erweiterung die Gesamtkapazität maßgeblich erhöhen. Vorhandene Strukturen sollten daher ganzheitlich auf den Prüfstand gestellt werden, mindestens im Zuge ohnehin anstehender Sanierungen.
Durch die Fortschreibung von Brandschutzkonzepten und die Abgrenzung von Nutzungseinheiten können etwa ehemals notwendige Flure zur Garderobenzone oder zum Spielflur umgewidmet werden. So entstehen Zuwächse an pädagogisch nutzbarer – und damit anrechenbarer – Fläche. Auch Einzelräume können durch multifunktionale Programmierung weiter optimiert werden: Sofern in der Betriebsbeschreibung eindeutig geregelt und mit den zuständigen Ämtern abgestimmt, können Gruppenräume mittags auch als Schlafraum genutzt werden, ein Mehrzweck- und Bewegungsraum kann temporär auch der Speisesaal sein. Für diese verdichtete Auslastung vorhandener Räume sind flexibel gestaltetes Mobiliar und entsprechend organisierte Abläufe die Grundvoraussetzung.
Erweiterungsbauten können neben der reinen Vergrößerung der Nutzfläche dazu beitragen, funktionale Missstände des Bestands zu beheben. Der Anbau von Fluchttreppen, Aufzügen oder technischen Infrastrukturen ermöglicht es, strukturelle und damit gravierende Eingriffe aus dem Bestand auszulagern.
Praxisbeispiel Kita Sonnenstrahl in Leipzig Sellerhausen
Die Kita Sonnenstrahl in Leipzig wurde in den 1960er-Jahren als DDR-Typenbau für 64 Kinder entwickelt. Der Sanierungsstau des Gebäudes soll grundsätzlich behoben und die Kapazität in diesem Zuge auf 84 Kinder erhöht werden.
Unter dem Erhalt der gartenseitigen Gruppenraumstruktur wird der zweigeschossige Hauptteil des Gebäudes von seiner kleinteiligen Mittelflurerschließung befreit. Die Ausweisung von Nutzungseinheiten lässt eine großzügige Garderobensituation entstehen, die eine gute Orientierung im Gebäude ermöglicht und zusätzlich als Spielflur nutzbar ist. Der nordseitig angelagerte, eingeschossige Gebäudeteil wird zurückgebaut und auf bestehendem Fußabdruck durch einen zweigeschossigen Erweiterungsbau in leichter Holzbauweise ersetzt. Neben der Aufnahme der Sonderfunktionen Küche, Mehrzweck-/Bewegungs- und Speiseraum bildet der Erweiterungsbau künftig auch die Haupterschließung des Gebäudes. Die Umwidmung vorhandener Treppen schafft differenzierte Zugänglichkeiten der bestehenden Außenspielbereiche für Krippe und Kindergarten. Ohne nennenswerte Eingriffe in den Außenraum und ohne Vergrößerung des Fußabdrucks wird die Kapazität der Kindertagesstätte zukünftig um mehr als 30 Prozent gesteigert.
Verantwortung ermöglicht Qualität
Die Verortung von Kitas in Bestandsbauten oder in verdichteten Quartieren kann einen wesentlichen Beitrag zur Lösung des stetig steigenden Betreuungsbedarfs leisten. Sie verbindet ökologischen Nutzen mit ökonomischen Vorteilen und bietet großes Potenzial für überraschende und innovative architektonische Lösungen.
Zweifelsohne müssen Gebäude, in denen Menschen mit besonderem Schutzbedarf betreut werden, höchsten Standards genügen. Im baulichen Bestand sollten gewisse Vorgaben jedoch hinterfragt werden dürfen. Das bedeutet explizit kein Ausklammern von sicherheitsrelevanten Themen wie denen des Brandschutzes. Vielmehr sollten Anforderungen an den Schallschutz, idealisierte räumliche Bezüge oder einzelne Punkte der Arbeitsstättenrichtlinie im Bestand mit größerem Augenmaß verhandelt werden dürfen. Der „Gebäudetyp E“ ist dafür vielleicht ein erster Schritt. Vor allem aber müssen Personen oder Institutionen mehr Verantwortung für Abweichungen oder Kompensationen übernehmen. Wenn das geschieht, dürfen wir uns über die wenigen bereits bestehenden Leuchtturmprojekte hinaus künftig in größerer Breite über ganzheitlich gelungene Umnutzungen freuen.
Das beste Beispiel für kreative Aneignungs- und Transformationsprozesse geben übrigens die Kinder selbst: Wenn aus einem Wäscheständer mit Bettlaken eine Spielhöhle und aus zwei umgekippten Stühlen ein ganzer Zug werden kann, sollte es unserer Zunft möglich sein, den leerstehenden Getränkemarkt oder das zunehmend ungenutzte Bürogebäude in eine kindgerechte Welt zu überführen.
