Kinderhaus Brunnengasse, Wolfurt/AT
Das gerade eröffnete Kinderhaus in Wolfurt bei Bregenz ist zurückhaltend neutral und sticht dennoch durch eine klare Formensprache hervor. bernardo bader architekten wählten für dieses Projekt lokale Materialien und natürliche
Oberflächen. Für die Kinder ist für alle Sinne etwas
vorhanden – auch viel Raum zur Aneignung.
Das Kinderhaus in der Brunnengasse liegt im südlichen Teil der Gemeinde Wolfurt, nahe der Stadt Bregenz. Ihr historischer Ortskern Rickenbach war lange Zeit Sitz des Weltmarktführers für Seilbahnbau. Noch heute produziert die Firma Doppelmayr an anderer Stelle in Wolfurt international eingesetzte Seilbahn- und Transportsysteme. Auf ihrem ehemaligen Betriebsgelände entsteht derzeit ein neues Wohnquartier, das noch im Sommer 2026 fertig werden soll. Um auf die Bedürfnisse der künftigen Bewohnerinnen einzugehen, entschied sich die Gemeinde Wolfurt früh für den Bau eines Kinderhauses und beauftragte damit bernardo bader architekten. So markiert dieses quadratische, in Holzbauweise realisierte Gebäude den Eingang zum neuen Quartier, das ebenfalls von dem Bregenzer Büro geplant wurde. Dennoch soll das Kinderhaus „ganz für sich stehen“ und sich von den anderen Gebäuden absetzen, so Bürogründer Bernardo Bader. In einem Punkt unterscheidet sich das Gebäude bereits vom restlichen Ensemble: Es wurde ein Jahr vor geplanter Eröffnung des Quartiers fertig und die ersten Kindergruppen konnten im September 2025 in die neuen Räumlichkeiten einziehen.
Der alte Firmenbestand – Hallen, Gewerbehöfe und weitere Nebengebäude – wurde teilweise abgerissen, saniert oder ergänzt. An der Kita entlang und quer durch das neue Quartier verläuft der nun freigelegte Rickenbach. Ein Hauptbestandteil der neuen Entwicklung liege in der Freiraumplanung: „Die Außenraumanlagen werden zusammenhängend gestaltet, so dass sich das Kinderhaus nahtlos in das Ensemble einbetten wird“, so Bader.
Das Kinderhaus bettet sich selbstbewusst zurückhaltend in seine Umgebung ein. Nicht im Bild: die Baustelle des „Quartiers am Rickenbach“, bis Sommer 2026 im Bau
Foto: Ralph Feiner
Pädagogisches Konzept
Das pädagogische Konzept des Kinderhauses war Grundlage für den Entwurf: „Kinder sind von Natur aus neugierig und das wollten wir auch im Gebäude ausreizen“, erklärt der Architekt. Grundriss und Material wurden angelehnt an die Lehre der österreichisch-ungarischen Pädagogin Emmi Pikler entwickelt. Sie verfolgte den Ansatz, dass sich Kinder in der richtigen Umgebung eigenständig und autonom Wissen aneignen und ihre Persönlichkeit entfalten können: „Die Idee ist nicht, das Kind zu formen, sondern einen Raum zu schaffen, in dem es sich entfalten kann“, so ihre Philosophie, die mittlerweile weit über Österreich verbreitet ist.
Die Planenden wählten dafür eine vielseitige Palette an Holzarten aus, die den Charakter des Gebäudes ausmachen. Es ist innen wie außen mit Holz verkleidet; die Raumabschnitte und -nutzungen bleiben aber dennoch ablesbar, da für Räume, Gänge und Fußböden verschiedene Holzarten gewählt wurden. Wichtig war es bernardo bader architekten auch, dass die Haptik des Materials vorhanden bleibt, denn „so lernen die Kinder ihre Umgebung kennen.“ Das Holz „lebt und offenbart seine Nutzungsspuren“ (Bader), aber das gewählte Material sei robust und werde durch die Präsenz der Kinder und dessen Spielmaterial aufgewertet
Die Holzoberflächen ziehen sich auch ins Innere des Gebäudes. Die horizontale Ausrichtung
der Bekleidung unterstreicht das Raumkontinuum und bindet auch die Decke mit ein
Foto: Ralph Feiner
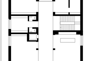
Das dreigeschossige Gebäude verfügt über ein Untergeschoss, in dem sich der Bewegungsraum befindet. Dieser dient als kleine Sporthalle für den Kindergarten, aber auch als Raum für die Gemeinde, z. B. für Yoga-Kurse. Die sonst fast identisch ausgeführten Obergeschosse sind jeweils durch einen breiten Flur unterteilt, der durch seine Großzügigkeit auch als Spielflur genutzt werden kann. Von hier aus gehen dann die Gruppenräume sowie Sanitärbereiche ab. Im Erdgeschoss befindet sich noch eine Küche mit Essensbereich und ein größerer Gruppenraum. Die Erschließung verläuft durch ein ebenfalls komplett aus Holz realisiertes Treppenhaus, während ein Fahrstuhl auf der anderen Seite des Flurs die Barrierefreiheit gewährleistet.
Der Flur, sowohl im Erdgeschoss als auch in den Obergeschossen, ist durch die großzügig verglasten Fenster von den Gruppenräumen immer einsehbar. So sind die Räume zwar akustisch getrennt, aber visuell fließen sie ineinander, was auch der Helligkeit im Gebäude zugutekommt. Dieses Gefühl eines ineinandergreifenden Raums, der aber trotzdem klar strukturiert bleibt, wird unter anderem durch die deckenhohen Schiebetüren, die einige Räume im Obergeschoss unterteilen, gestärkt.
Der Fußboden der Gänge besteht, außer im EG, aus natürlichen Materialien. Die oberste Schicht wurde in Lehmkasein realisiert
Foto: Ralph Feiner
Lokale Konstruktion und hybride Materialien
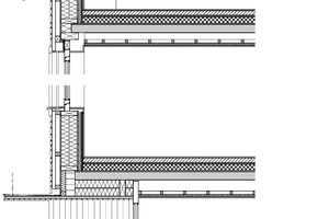
Das Kinderhaus Brunnengasse ist vom Erdgeschoss nach oben hin vollständig in massiver Holzkonstruktion gebaut, während der Sockel und das Untergeschoss in Stahlbeton ausgeführt wurden. Der konstruktive Holzbau wurde aus lokalen Ressourcen geschöpft, so wie auch Fassade und Fenster aus Eigenholzbereitstellung realisiert sind.
Bis auf den Beton wurden, wo möglich, natürliche Materialien eingebaut. Der Boden der Gänge ist aus Lehmkasein. Kasein, ein Bindemittel aus der Molkereiindustrie, wird mit mineralischen Baustoffen so vermischt, dass eine glatte, fugenlose Oberfläche entsteht. Für den Eingangsflur im Erdgeschoss wurde eine durchlaufende Matte aus Kokosfasern gewählt.
Für Wände und Decken im Gebäude haben sich die Architektinnen für Weißtanne entschieden, die Fußböden sind aus Lärche. Diese kam unbehandelt auch an der Fassade zum Einsatz, wo sie mal hochkant, mal quer eingesetzt, das Erscheinungsbild gliedert und die Geschossigkeit des Kinderhauses ablesbar macht. Die einzelnen Teile der Fassade wurden vorgefertigt und dann vor Ort eingebaut.
Deckenhohe Schiebeelemente trennen die größeren Gruppenräume flexibel
Foto: Ralph Feiner
„Die lokale Materialschöpfung war von der Gemeinde ausdrücklich erwünscht“, erläutert Bernardo Bader. Vorarlberg ist bekannt für seine traditionellen wie auch innovativen Holzbauten. Die Ressource wird hier also nicht nur wertgeschätzt, sondern selbstverständlich in die Architektursprache der Region aufgenommen. Zwar bauen bernardo bader architekten nicht nur aus Holz – einige ikonische Gebäude des Büros sind vollständig aus Beton –, doch ist das Bewusstsein über Materialressourcen und Kreisläufe auch an diesem Gebäude erkennbar. „Dieses Bewusstsein wollten wir auf mehr oder weniger direktem Wege auch den Kindern beibringen“, so Bader weiter.
Fazit
Dass das Kinderhaus bereits ein Jahr vor der geplanten Fertigstellung des Quartiers öffnen konnte, lag laut dem Architekten daran, dass „der Bau extrem gut verlaufen ist.“ Die Zusammenarbeit mit Firmen und Unternehmen, mit denen man schon oft gemeinsam gebaut hatte, hätte die Bauphase unkompliziert gestaltet und schnell zum Ende geführt.
Das Schwierigste bei der Planung des Kinderhauses sei die Anbindung an das „Quartier am Rickenbach“ gewesen, erzählt Bernardo Bader: Die Doppelmayr-Garage musste an die neue Tiefgarage des Projekts mit zehn Stellplätzen angeknüpft werden. Die genauen Höhen im Voraus zu eruieren wäre nicht leicht gewesen, aber hätte dann „zum Glück, perfekt geklappt“, so Bader.
Insgesamt können zwei Kita-Gruppen und vier Kleinkindergruppen die Räume belegen
Foto: Ralph Feiner
Das Kinderhaus Brunnengasse ist ein Beispiel für unkomplizierte Planung, die auf die Bedürfnisse ihrer kleinen Nutzerinnen reagiert. Der klare Grundriss, die hochwertigen, lokalen Materialien und der einfach umgesetzte pädagogische Ansatz wirken zuversichtlich, ohne Arroganz zu vermitteln. Eingebettet in die Maßstäblichkeit des Ortes und seiner unmittelbaren Umgebung ist das Kinderhaus ein vielversprechender Vorgeschmack auf das nun sehr bald fertiggestellte Quartier. Dennoch: Durch seine neutrale Kodierung kann es auch als Vorbild für weitere Typologien und Nutzungen dienen. Obwohl wir hoffen wollen, dass mehr und nicht weniger Kinder unsere Zukunft prägen werden, ist eine Umnutzung, zumindest im Prinzip, denkbar. Auch das ist zukunftsgerechte Pädagogik.
Projektdaten
Objekt: Kinderhaus Brunnengasse
Standort: Wolfurt, AT
Bauherrschaft/Nutzung: Marktgemeinde Wolfurt
Architektur: bernardo bader architekten, Bregenz,
www.bernardobader.com
Bauleitung: BauProjektLeitung Paul Martin, Feldkirch,
www.bauprojektleitung.at
Bauzeit: 07.2023 – 08.2025
Eröffnung: 09.2025
Grundstücksgröße: 987,80 m²
Bebaute Fläche: 338,56 m²
Bruttogeschossfläche: 1 650,88 m²
Nutzfläche: 1 020,52 m²
Brutto-Rauminhalt: 6 604,97 m³
Baukosten: 5,1 Mio. € (Netto)
Fachplanung
Tragwerksplanung: merz kley partner GmbH, Dornbirn,
www.mkp-ing.com
TGA-Planung: Planungsteam E-Plus GmbH, Egg, www.e-plus.at
Elektroplanung: Elektroplanung Schneider, Egg
Bauphysik: Spektrum Bauphysik & Bauökologie GmbH, Dornbirn,
www.spektrum.co.at
