Wohnungsneubau mit FabrikcharakterAm Lokdepot, Berlin
An der Grenze der Berliner Stadtteile Schöneberg und Tempelhof hat das Architekturbüro ROBERTNEUN™ mit dem Projekt „Am Lokdepot“ eine ausdrucksstarke Wohnbebauung errichtet, die sich dennoch wie selbstverständlich in den Bestand fügt. Nachdem an dieser Stelle ursprünglich flache Gewerbehallen vorgesehen waren, gelang den Architekten ihre Vision einer vielfältigen Wohnbebauung mit hohem Aneignungspotential durchzusetzen. Auf der 28 000 m² großen Gleisbrache sollen bis 2017 insgesamt 220 Wohnungen entstehen.
Das Projekt „Am Lokdepot“ auf einem ehemaligen Bahngelände nördlich des Berliner Südkreuzes ist nicht zu übersehen. In einem leuchtenden Rot präsentiert es sich deutlich und selbstbewusst, ohne aufdringlich zu wirken. Im Gegenteil: Durch eine stark aufgelockerte Fassadengliederung und eine genau ausgewählte architektonische Reaktion auf den Bestand fügt es sich so selbstverständlich in diesen Ort, dass man kaum glauben mag, dass der erste Bauabschnitt erst vor
1,5 Jahren fertiggestellt wurde.
Es ist ein besonderes Erlebnis, das Grundstück über den Flaschenhalspark zu erreichen, der ebenso wie die Außenanlagen und Höfe des Wohnprojekts vom Berliner Planungsbüro Loidl gestaltet wurde. Zwischen Bahngleisen und Neubau öffnet sich der Weg zu einem offenen Platz vor den historischen Lokhallen zu einem öffentlichen Treffpunkt. Der Charakter der alten Hallen aus den 1930er-
Jahren, die heute als Depothallen des Deutschen Technik Museums fungieren, das breite Gleisbett und ein Hauch Industrieromantik haben die Idee eines „Rohbau geprägten Fabrikwohnens“ nach dem Vorbild Kreuzberger Gewerbehöfe wachsen lassen.
Die Antwort der Architekten auf den Bestand basiert auf einem bis zu 7 m hohen Sockelgeschoss mit Recyclingziegeln und großen Holztoren, in dem kleine Werkstätten, Ateliers oder Galerien angesiedelt werden sollten. Erst über dem Sockel entwickelt sich die 6- bis 7-geschossige Ost-West-orienterte Wohnbebauung in drei verschiedenen Wohnungs- beziehungsweise Haustypen, die den bislang nicht vollendeten Wohnblock mit einer klaren Kante schließen.
Vielfältiger Wohnungsbau statt eingeschossiger Gewerbehallen
Dass an dieser Stelle überhaupt ein Wohnkomplex entstehen konnte, ist nicht zuletzt der Weitsicht und dem Enthusiasmus der engagierten Architekten und der Feinfühligkeit und gelungenen Moderation des Projektentwicklers geschuldet. Denn eine große Hürde des Projekts lag darin, dass im ursprünglichen Bebauungsplan das Grundstück ausschließlich für Gewerbenutzung vorgesehen war. 2006 hatte das Berliner Architekturbüro ROBERTNEUN™ von dem damaligen Eigentümer des Geländes den Auftrag für eine Beplanung dessen mit Supermarkthallen erhalten. Für die Architekten aber stellte die Überbauung mit eingeschossigen Lagerhallen eine Verschwendung von Grundstücksressourcen für den Wohnungsbau dar. Sie sahen hier großes Potential für eine nachhaltige Stadtentwicklung durch Bestandsergänzung.
Doch zunächst drohte das Projekt zu scheitern. Die Bewohner des bestehenden Wohnblocks, an das die neue Bebauung andocken sollte, störten sich daran, dass ihnen die Sicht über das freie Bahngelände auf die Stadt genommen werden sollte. Das Projekt wurde Gegenstand im Wahlkampf zum Berliner Abgeordnetenhaus.
Doch dann passierten zwei Dinge gleichzeitig: Die Wahl, die das Projekt politisch hatte hochkochen lassen, war vollbracht und der Berliner Projektentwickler UTB in die weitere Planung eingeschaltet worden. Zudem hatte sich das Berliner Baukollegium für die Realisierung der Wohnbebauung am Lokdepot stark gemacht und die Ausarbeitung eines vorhabenbezogenen B-Plans empfohlen. Der Bebauungsplan wurde dann Anfang 2013 geändert und ein Kompromiss mit den Bewohnern gefunden. Die Gebäude sollten nun in ihrer Höhe leicht abgetreppt und verjüngt sowie im Innenhof weniger Gewerbe angesiedelt werden.
Die Wohnungstypen: Modular, flexibel und nachhaltig
„Trotzdem wollten wir den Charakter des Fabrikwohnens in einem Neubau realisieren“, so Tom Friedrich, Teilhaber des Büros ROBERTNEUN™. „Zum einen durch die Wahl der Materialien, zum anderen durch die Idee eines robusten Rohbaus mit einem hohen Potential für die Aneignung durch die Bewohner.“ So ist der Stahlbetonskelettbau geprägt von einem vor die Fassade gesetzten durchgefärbten Sichtbetonraster aus Stützen und Trägern, von Fenstern und Fassadenelementen aus lackiertem Aluminium und Gerüsten für Balkone, Loggien und Erschließung aus leuchtend rot lackiertem Stahl.
Die Wohnbebauung sollte vielfältig, aber auf keinen Fall zu kleinteilig ausfallen und so die gerade geschaffene Stadtkante zu stark aufweichen. Sie sollte aber auch nicht als monumentale Großform zu stark dominieren. So gliedert sich die Bebauungskante durch drei verschiedene Wohnungstypen, die sich gebäudeweise, entlang des Blockrandes, wie auf eine Perlenkette auffädeln.
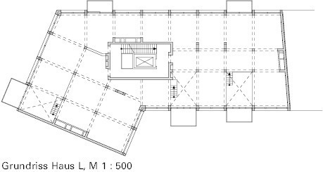
Die unterschiedlichen Typen S, M und L unterscheiden sich dabei zunächst in ihrer Achsbreite. So hat der schmale, meist zwei- bis dreigeschossige S-Typ eine Breite von 7 m, der mittlere M-Typ von 14 m und der breite L-Typ von 21 m. Zudem zeigt sich jeder Haustyp mit
einer anderen Fassadengestaltung: An der Straßenseite fallen die
Erker der S-Fassade auf, während der M-Typ sofort durch die rot
lackierten Loggien sichtbar wird. Der L-Typ wiederum lässt sich an den weit auskragenden Balkonen erkennen, die versetzt zueinander an der Fassade verspringen. In diesem Grundrisstyp wurde nämlich ein ungewöhnliches Element integriert: ein eineinhalbgeschossiger Wintergarten, das sogenannte „Gewächshaus“, das die Stringenz des vorgegebenen Rahmens aufbricht und gänzlich neue Raumwirkungen schafft. „Wichtig war uns aber nicht nur die Vielfalt des Angebotes durch unterschiedliche Grundrisstypen, sondern auch Flexibilität durch ein modulares System frei wählbarer Trennwände“, erläutert Architekt Friedrich das Konzept. „Innerhalb eines strengen Rohbaus konnten die zukünftigen Bewohner individuell ihre Wohnungen gestalten, sowie Lage und Beschaffenheit der Trennwände frei wählen.“ Dieses Konzept soll für eine starke Identifikation der Nutzer mit ihrem Gebäude sorgen und auch für die Zukunft anpassungsfähigen Wohnraum bereithalten. Auf der anderen Seite erforderte es aber auch einen enorm hohen Planungs- und damit auch Kostenaufwand. „Es ging dabei nicht nur darum, die zueinander verspringenden Ebenen des L-Typs vernünftig umzusetzen und ein paar Trennwände einzubauen“, erklärt hierzu Projektentwickler Berthold Pesch von der UTB, die seit Frühjahr 2011 auch Bauherr des Projektes ist. „Der hohe Planungsaufwand lag beispielsweise auch darin, die Gebäudetechnik schlüssig und vor allen Dingen brandschutzgerecht unterzubringen.“
Wie berechenbar ist experimenteller Wohnungsbau?
Vermutlich stoßen genau an dieser Stelle zwei Erwartungshaltungen aufeinander, die sich schwer verknüpfen lassen. Auf der Internetseite des Architekturbüros stehen Begriffe wie „unkonventionell“ oder „Experiment“ im Vordergrund der Projektbeschreibung. Ein Ansatz, der das Projekt enorm beflügelt und zu der Stärke und Präsenz geführt hat, die ihm heute innewohnt. Eine Qualität, die auch der Bauherr sieht: „Ohne den Enthusiasmus und das freie Denken eines jungen Büros, das auch für seine Ideen kämpft, wäre dieses Projekt so nicht möglich gewesen!“ Aber vielleicht auch ein Ansatz, der sich schwer mit dem Wunsch eines Bauträgers nach Planungs- und Kostensicherheit und mit einer gewissen Kompromissbereitschaft bezüglich der Vermarktung vereinbaren lässt. So ist es nachvollziehbar, dass die beiden Seiten nach den ersten fünf Häusern nun getrennte Wege gehen. Grundsätzliche Vorgaben sind weiterhin durch den
B-Plan gegeben und werden durch den Bauträger im Sinne einer durchgehenden Sprache fortgeführt.
Punktuell wird allerdings modifiziert: So wird der planungsaufwändige L-Typ teilweise ohne Gewächshaus und mit optimierter
Anzahl der Installationsstränge realisiert, in der Sockelzone ist zum Teil Wohnen angesiedelt und die markante Fassadenstruktur des
vorgesetzten Stahlbetonrasters ist an einem der Häuser zur Hofseite nur noch als Putzrelief erkennbar. Das letzte Grundstück wurde an einen Investor verkauft. Die Umsetzung erfolgt nach den Vorgaben des
B-Plans und optisch in Anlehnung an die Architektursprache des Projektes, aber entspricht sie noch der ideellen Idee der Architekten? „Es fiel uns nicht leicht, uns zurückzuziehen“, bemerkt Friedrich, „aber wir haben den Eindruck, dass unsere Grundidee so robust ist, dass sie dennoch trägt!“ Nina Greve, Lübeck
