Wohnprojekt Gleis 21, Wien/AT
verlangt einen langen Atem, fordert jeden
Einzelnen und führt doch zu einem
besonderen Resultat. Im Projekt
„Gleis 21“ im neuen Sonnwendviertel
Ost werden nun langsam
alle heimisch.
Das Sonnwendviertel ist eines der größten innerstädtischen Neubauareale von Wien: 2004 beschloss der Gemeinderat den Mas-terplan „Bahnhof Wien – Europa Mitte“, nach dem sich das 109 ha große, einstige ÖBB-Gelände entwickeln sollte. Es erstreckt sich südlich des neuen Hauptbahnhofs bis zum gründerzeitlichen
Arbeiterbezirk Favoriten. Die Architektengemeinschaft Hoffmann, Hotz und Wimmer legte als grünes Herz des Viertels einen 9 ha großen Park fest, der nach dem verstorbenen Bürgermeister Zilk benannt ist. Das fertige Sonnwendviertel West zeigte eine Tendenz zu monofunktionaler, urbaner Ödnis. Daher setzte man für das Sonnwendviertel Ost auf einen kooperativen Masterplan: Die Architekten ARTEC, Denk, Gasparin & Maier, Rüdiger Lainer und Partner, Studio Vlay und Max Rieder erarbeiteten neue Bebauungsrichtlinien. Autos sind in Sammelgaragen untergebracht, als Hauptweg windet sich die fuß- und radläufige Bloch-Bauer-Promenade durch das Quartier. Die Parzellen sind kleiner strukturiert, elf waren für „Quartiershäuser“ vorgeschrieben, vier für Baugruppen. Für jede mussten sich Architekten, Bauträger und künftige Nutzer mit einem Konzept bewerben.
Angebote an Gemeinschaft und Quartier
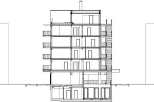
Die Parzelle C.17 C war für Baugruppen reserviert. 13 m breit und 60 m lang erstreckt sich nun der Riegel des „Gleis 21“ vom Zilk-Park im Südwesten bis zur Promenade. Mit und für die engagierte Baugruppe plante einszueins architektur, das auf partizipative Planung spezialisiert ist. Das Unter- und Erdgeschoss ist öffentlich-kulturell bestimmt, die Laubengänge eignen sich zum Plaudern, im Dachgeschoss bündeln sich Gemeinschaftsküche, -bibliothek, -garten, -sauna sowie eine Badewanne für alle, die nur eine Dusche in der Wohnung haben. An jede Stahlbetonstütze des Vorplatzes im Nordwesten schmiegt sich eine Bank, im Südosten ragen ab dem ersten Stock die privaten Balkone 2 m aus der Fassade. Selbst aus einer Vorschrift wurde ein Angebot an das Quartier: Der Müllraum am nordöstlichen Ende des Hauses störte den Magistrat. einszueins architektur setzte vor den Müllraum eine Bank, die in einen „öffentlichen Bücherschrank“ zur freien Entnahme und Bestückung von Lektüre eingehaust ist. Ein Teil des Büchrerregals dient als Anschlagbrett, die damit sehr informative Bank ist stark frequentiert.
Eine Vision wird Wirklichkeit
Begonnen hatte alles mit einer Kerngruppe von 23 Menschen, die ein Baugruppenprojekt realisieren wollte. einszueins architektur und realitylab, das soziale Prozesse gestaltet, waren von Anfang an dabei. Gemeinsam beteiligten sie sich am Bewerbungsverfahren für das Baufeld C.17 C und entwarfen das Projekt. Es ist von Werten bestimmt, die sich im Visions-Workshop herauskristallisierten: nachhaltiges Leben, soziale Begegnungen, gelebte Solidarität nach innen und außen. Das Haus bietet dazu mit seinen gemeinschaftlichen Angeboten viele Möglichkeiten, wesentliche Parameter standen schon beim Wettbewerb fest. Die abgesenkten Höfe, die das Untergeschoss belichten, der öffentliche Sockel, Laubengangerschließung für vier Wohngeschosse, daraus resultierende durchgesteckte Einheiten mit mittiger Sanitärzone, sowie das begrünte Dach für die Gemeinschaft. Außerdem plante die Baugruppe solidarisch vier „Flex“-Wohnungen für Flüchtlinge und eine für Gäste ein. Das realitylab, der Bauträger Schwarzatal, einige künftige Beteiligte wie Okto TV, die Diakonie oder die Gaumenfreundinnen, zwei Bewohnerinnen des „Gleis 21“, die ein Bio-Catering betreiben, waren schon an Bord. Ihre Bio-Gerichte sollten im geplanten Lokal serviert werden, dann schien das Risiko doch zu groß. „Gleis 21“ sucht also einen Pächter.
Intensive Phase
Im Sommer 2015 gewann „Gleis 21“ das Bewerberverfahren, die Kerngruppe klärte ihre Strukturen und stärkte die Gemeinschaft, damit ihr Motto „Solidarisch wohnen – G’scheit genießen – Medial gestalten“ konkrete Formen annehmen konnte. Die Gruppe musste sich vergrößern, man veranstaltete Informationsabende, Interessenten hatten Fragebögen zu ihrer Motivation, ihrem Zeitkontingent für das Engagement in Arbeitsgruppen auszufüllen, die Wunschgröße ihrer Wohnung zu nennen, ein persönliches Interview mit Mitgliedern der Baugruppe zu führen und – falls alles positiv lief – ihren Beitritt zu erklären und mit Zahlung des Beitrittsbeitrags zu besiegeln.
Das Haus ist sehr pragmatisch aufgebaut, um möglichst flexibel beplanbar zu sein. Es beruht auf einem Stützenraster von 6 m. In der Mitte befinden sich Schächte und Anschlüsse für Sanitärräume und Küchen, seitlich im Nordwesten der selbsttragende Laubengang aus vorgefertigten Stahlbetonteilen. Holzverbunddecken aus 14 cm Beton und 10 cm Fichte als Untersicht – die in jeder Wohnung sichtbar wird und so Heimeligkeit verströmt – vereinen Tragfähigkeit, Speichermasse, Schalldämmung und ein günstiges Preis-Leistungsverhältnis. Außerdem erwiesen sie sich für die Balkone als optimal: Ihre Betondeckung wurde zum Verbundelement für die Balkonfertigteile.
Zwischen Zwang und Mitbestimmung
„Vom Städtebau bis zur Steckdose gibt es rechtlich, statisch, haustechnisch und finanziell viele Sachzwänge“, erklärt Projektleiterin Annegret Haider. „Wo es ging, wurde mitbestimmt. Der Holzbau kostet mehr als ein Betonbau, aber er ist nachhaltiger. Daher entschied sich die Gruppe für Holz.“ Aus Kostengründen wurden Unter- und Erdgeschoss dann aus Stahlbeton ausgeführt – den sonnengelben Anstrich wählte die Arbeitsgruppe Architektur. Prinzipiell wurden Grundsatzentscheidungen von der ganzen Gruppe, spezifische Entscheidungen von den zuständigen Arbeitsgruppen getroffen. „So ein Projekt ist wahnsinnig anstrengend, aber man kriegt überdurchschnittlich viel zurück“, so Annegret Haider.
Standard- und Sonderlösung
Der Laubengang zieht sich als Raster über vier Geschosse. 1,20 m Erschießungsfläche sind Fluchtwege, alles darüber hinaus Kommunikationszone und anschließend Extrabalkon für die zugeordnete Wohnung. Als Fenster standen sieben Typen zur Auswahl, die meisten haben raumhohe Fenstertüren auf den Laubengang oder zum privaten Balkon. Optional gab es geteilte Fenster, die unten fixverglast und oben zu öffnen sind. Standardboden ist Linoleum, gegen Aufpreis waren Sonderwünsche wie Parkett möglich. Die Eckwohnungen haben einen Balkon mehr und von drei Seiten Licht. Sie waren am begehrtesten, für die bessere Lage ist ein monatlicher Beitrag in den Solidaritätsfonds zu zahlen.
Systemisch konsensieren
Bei der Wohnungsvergabe vertraut einszueins architekten dem „systemischen Konsensieren.“ Jeder kann zwischen 0– 10 Widerstandspunkte vergeben. 0 heißt unproblematisch, 10 absolute Abneigung. Jeder wählt die Einheit, die er gern hätte und optional zwei weitere, mit denen er oder sie leben kann. Daraus erstellt einszueins architektur sechs Modelle mit verschiedenen Verteilungen, die von allen systemisch konsensiert werden, bis das Modell mit dem geringsten Widerstand gefunden ist. Für jede Wohnung gibt es zwei individuelle Planungstermine.
„Gleis 21“ ist ein gefördertes Wohnheim im Niedrigenergiestandard, den der Verein der Baugruppe als Eigentümer erworben hat. Das anteilige Nutzungsrecht für eine Wohnung entspricht einer Miete. So will „Gleis 21“ einen Beitrag gegen Immobilienspekulation leisten. Derzeit leben 49 Erwachsene und etwa 27 Kinder im Haus. Die lieben es, die Karten abzureißen, wenn im Saal Veranstaltungen des Kulturvereins Gleis 21 stattfinden. Der Saal und das Klangwerk/Klanggarten leisten schon jetzt schon einen Beitrag für das Quartier. Wenn das Wetter besser ist, wird sich auch die Bar beim Waschsalon am abgesenkten Hof beleben. Und der Laubengang sowieso.
⇥Isabella Marboe, Wien
Baudaten
Objekt: Wohnprojekt Gleis 21
Standort: Bloch-Bauer-Promenade 22, Wien/AT
Typologie: Wohnbau
Bauherren: Schwarzatal – Gemeinnützige Wohnungs- & Siedlungsanlagen GmbH, Wien/AT, www.schwarzatal.at
und Verein „Wohnprojekt Gleis 21“, www.gleis21.wien/das-projekt
Nutzer: Verein „Wohnprojekt Gleis 21“
Architekten: einszueins architektur, Wien/AT, www.einszueins.at
Team: Markus Zilker, Annegret Haider, Francesca Bocchini, Victoria Marek
Bauleitung: (Projektleitung GU): Nils Jansen, Weissenseer Holz-System-Bau GmbH, Greifenburg/AT,
www.weissenseer.com
Generalunternehmer: Weissenseer Holz-System-Bau GmbH
Bauzeit: November 2017–Juli 2019
Fachplaner
Tragwerksplaner: GG Ingenieure ZT GmbH, Wien/AT, www.gg-ingenieure.at; DI Kurt Pock, Klagenfurt/AT,
www.kurzpock.at
TGA-Planer: BPS Engineering, Wien/AT, www.bps.co.at
Fassadentechniker: Weissenseer Holz-System-Bau GmbH
Landschaftsarchitekt: YEWO LANDSCAPES GmbH, Wien/AT,
www.yewo.at
Energieplaner: Holzforschung Austria – Österreichische Gesellschaft für Holzforschung, Wien/AT,
www.holzforschung.at
Brandschutzplaner: IMS-Brandschutz Ingenieurbüro GmbH, Linz/AT,
www.hig-gruppe.at
Baugruppenbetreuung: realitylab GmbH, Wien/AT, www.realitylab.at
Projektdaten
Grundstücksgröße: 1 691 m²
Grundflächenzahl: 0,57
Geschossflächenzahl: 2,29
Nutzfläche gesamt: 3 886 m²
Nutzfläche: Wohnen 2 569 m²
Nutzfläche: Wohnen-Gemeinschaftsräume 531 m²
Nutzfläche: Gewerbe 550 m²
Technikfläche: 154 m²
Verkehrsfläche: 641 m² (davon 82 m² allseitig umschlossen)
Brutto-Grundfläche: 4 698 m²
Brutto-Rauminhalt: 16 707 m³
Energiebedarf (Wohngeschosse)
Primärenergiebedarf: 50,16 kWh/m²a nach OIB RL6 März 2015
Endenergiebedarf: 74,24 kWh/m²a nach OIB RL6 März 2015
Jahresheizwärmebedarf: 23,60 kWh/m²a nach OIB RL6 März 2015
Gebäudehülle (Wohngeschosse)
U-Wert Außenwand AW02 =
0 ,168 W/(m²K)
U-Wert Außenwand AW03 =
0,144 W/(m²K)
U-Wert Bodenplatte = 0,145 W/(m²K)
U-Wert Dach = 0,095 W/(m²K)
Uw-Wert Fenster Wohngeschosse =
0,5 W/(m²K)
Haustechnik
Fernwärme, PV-Anlage auf dem Dach (13,4 kWp)
Hersteller
Fenster: Hrachowina Fenster & Türen GmbH, www.hrachowina.at
Dämmung: Baumit GmbH,
www.baumit.at
Sonnenschutz/Blendschutz: Climax, www.servisclimax.eu
Türen/Tore: Dana, www.dana.at
Heizung: Aquatec,
www.jaeger-aquatec.at
Zutrittssysteme: TCS TürControlSysteme AG, www.tcsag.de
PV-Paneele. LG, www.lg-solar.com
Fußbodenfliesen: Marazzi Group, www.marazzi.de
Linoleum: Forbo Flooring GmbH, www.forbo.com
Holzdielen/Parkett: Weitzer Parkett, www.weitzer-parkett.com
Eine Baugruppe der anderen Art. Laubengänge als Begegnungsraum für alle Bewohner, durchgesteckte Wohnungen in flexibler Größe und Gemeinschaftsflächen auf unterschiedlichen Ebenen bilden das Konzept für gemeinschaftliches Wohnen. Einfache und nachhaltige Baumaterialien werden unveredelt zu einer harmonischen Komposition von großer Strahlkraft gebracht.«
⇥DBZ Heftpartner Molestina Architekten
