Urbanes Wohnkonzept
Baugemeinschaft Sophienallee, Hamburg-Eimsbüttel
Bauen für eine Baugemeinschaft verlangt Flexibilität. Das Büro NeuStadtArchitekten aus Hamburg entwarf ein Mehrgenerationenhaus im Hamburger Stadtteil Eimsbüttel – als Passivhaus.
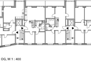
Mit ihrer bunt gemixten Baugemeinschaft aus jungen Familien, Senioren, Paaren und Singles nahmen NeuStadtArchitekten 2008 an einer Art Konzeptwettbewerb im Rahmen der zweiten Hamburger Wohnungsbauoffensive teil. Im Frühjahr 2010 konnte mit dem Bau des 5-geschossigen Mehrfamilienhauses begonnen werden. Die Stadt Hamburg fördert energiesparendes Bauen mit einem Festzuschuss/m². Dafür werden Bauplanung und Bauprozess von Beginn an einem qualitätssichernden Verfahren unterzogen. Die Besonderheit des Gebäudes liegt in seiner Tragstruktur: Die massive Schottenbauweise mit unterschiedlichen Achsbreiten erlaubt eine flexible Kombination der Wohnungsgrundrisse, ohne das statische System zu verlassen. Die zwischen den zwei Treppenhäusern liegenden Wohnungen haben sehr unterschiedliche Wohnungsgrößen, die kleinste ist 63 m², die größte 130 m² groß – sie gehen über zwei oder drei Achsbreiten oder als Maisonette über zwei Geschosse. Die Erschließung erfolgt barrierefrei über zwei Aufzüge. Die kreative Stapelung der Wohnungen erarbeiteten die Architekten nach den individuellen Wünschen der Baugemeinschaft im Planungsprozess. Insgesamt entstanden auf 1726 m² so 16 Wohneinheiten und zwei Gemeinschaftsräume. Für die Stellplätze wurde eine Tiefgarage erstellt, die Anzahl der notwendigen Stellplätze wurde zum Teil mit einem Doppelparkersystem realisiert.
Die Westfassade zur Gartenseite wird strukturiert durch die Erkerzimmer, die wiederum durch großzügige Balkone miteinander verbunden sind. Diese bilden neben den Senkrechtmarkisen der Erkerfenster und den Glasdächern im Dachgeschoss den sommerlichen Wärmeschutz. Eine Art Gelenkbau bildet den Übergang zum Nachbargebäude und beherbergt eine gemeinschaftliche Dachterrasse. Die Erdgeschosszone neben der Einfahrt zur Tiefgarage wurde als multifunktionaler Wasch- und Gemeinschaftsraum mit Durchgang zum Garten geplant. Den Architekten war es ein Anliegen, für die Fassade eine Alternative zu einer Dämmung mit WDVS zu finden. Von Anfang an stand daher fest, dass das Gebäude in Hybridbauweise – massiv und mit Holzbauelementen – errichtet werden sollte. Durch die Schottenbauweise bleiben die langen Fassaden des Passivhauses statisch unbelastet und konnten als hochwärmegedämmte Holzrahmenfertigteile montiert werden, bei denen die Dämmstärke annähernd der Konstruktionsstärke entspricht. Die massiven Giebelwände wurden ebenfalls im System mit vorgehängter Holzrahmenbauwand gedämmt. Aus Schallschutz- und Brandschutzgründen binden die Geschossdecken und die Schotten in die Holzrahmenbauwand ein. Letztere wurden nach der Montage der Wände überdämmt und mit einer HD-Platte geschlossen. Das Fassadenkonzept der Architekten gliedert die Fassade in drei Bereiche. Der Holzverschalung von EG und 4.OG mit horizontalen Rhombusprofilen aus Lärche stehen weiße Putzflächen zwischen 1. und 3. OG entgegen. Die Erkerzimmer an der Gartenfassade und die Treppenhäuser wurden mit Faserzementplatten in zwei frischen Grüntönen betont. Die Ostfassade ist mit variablen Fenstergrößen und dem Einsatz von Holzpaneelen rhythmisch gegliedert. Das Ergebnis ist ein lebendiges Fassadenspiel dreier unterschiedlicher Materialien, in dem sich die Flexibilität des Baukonzepts und Vielfältigkeit der Bewohner auch in der Außenwirkung des Objektes widerspiegelt. Zusätzlich unterstreicht das durchdachte Farbkonzept die unterschiedliche Materialität der gewählten Fassadenelemente. Die mit der Zeit vergrauenden Holzelemente ergänzen sich harmonisch mit den hellen Putzflächen und den farbbeständigen Faserzementplatten.
