Tragwerk aus Glas
Sanierung und Erweiterung von Schloss Grimma
Dach, Fassade, Stützen und Träger – alles aus Glas: Die Anbauten im sanierten Schloss Grimma reizen den Grad der Transparenz maximal aus. So entstanden herrlich lichte Räume, die die unterschiedlichen Gebäudeteile des Ensembles verbinden und den Blick auf die historische Bausubstanz freigeben.
Die Stadt Grimma im Südosten von Leipzig ist einer permanenten Bedrohung durch die Mulde ausgesetzt, einem beschaulichen Nebenfluss der Elbe, dessen Wasserpegel jedoch bei Hochwasser schnell steigt. Besonders verheerend wirkte sich die Flut 2002 aus: 700 beschädigte oder zerstörte Häuser, mitgerissene Straßen und Brücken. Auch das Schloss, das direkt am Flussufer im Norden der Innenstadt liegt, stand unter Wasser. In der Folge wurde das denkmalgeschützte Ensemble für rund 14,5 Mio. € saniert, umgebaut und um drei filigrane Glasanbauten erweitert. In die neuen Räume zogen das Amtsgericht Grimma und eine Zweigstelle der Staatsanwaltschaft Leipzig ein. Im März 2013 übergab man das Schloss nach zehn Jahren Planungs- und Bauzeit den neuen Nutzern – drei Monate später stand es erneut unter Wasser. Die Flut hatte wieder zugeschlagen.
Das neue Foyer, wie es die Fotos zeigen, ist heute abermals Baustelle: Der Pförtnertresen wurde vom Wasser herausgerissen, der Boden lagert als Bauschutt vor dem Eingang. Die Sanierung wird Jahre dauern. Immerhin: Der angrenzende Treppenturm und der Verbindungsgang – beides innovative Glaskonstruktionen – wurden weitgehend verschont, ebenso die Obergeschosse des Bestands. Mit etwas Glück könnte dem Schloss ein weiteres Hochwasser erspart bleiben: Der Bau einer 2 km langen Schutzwand entlang des Flusses, der sich durch Bürgerproteste immer wieder verzögert hatte, soll bis 2017 abgeschlossen sein.
Blickfenster in die Vergangenheit
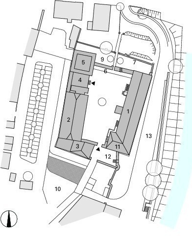
Schloss Grimma hat nicht nur das Wasser überdauert: Überall im Schloss finden sich Spuren seiner Geschichte. Ab dem 13. Jahrhundert diente es sächsischen Markgrafen und Kurfürsten als Schloss und Sommerresidenz. Anfang des 19. Jahrhunderts zog eine Textilfabrik ein, später nutzten Soldaten die Räume als Exerzierböden. Noch im selben Jahrhundert begann der Umbau zum Amtsgericht. Heute setzt sich das Ensemble im Wesentlichen aus zwei Baukörpern zusammen: dem eigentlichen Schloss im Ostflügel, dessen Mauern zum Teil noch aus der Spätromanik stammen, und dem Kornhaus gegenüber, das zusammen mit einem Anbau und einer Turmruine den im 14. Jahrhundert erbauten Westtrakt bildet. Schildmauern verbinden beide Gebäude und begrenzen den Schlosshof.
Bei der Sanierung stieß man auf bauhistorisch wertvolle Funde, die zum Teil bis ins Jahr 1220 zurückreichen. Sie wurden gesichert bzw. restauriert und für Besucher effektvoll inszeniert: Sichtfenster in Böden und Wänden gewähren den Blick in die Vergangenheit: etwa auf eine spätromanische Kaminkonsole oder eine kleine Treppe, die man in der Westwand des Kornhauses entdeckte.
Der Ostflügel wurde weitgehend entkernt und die Innenwände wegen mangelnder Tragfähigkeit und ungenügendem Schall- und Brandschutz durch Mauerwerks- und Trockenbauwände ersetzt. Die historischen Balkendecken konnten zum Teil als Holzbetonverbunddecken statisch ertüchtigt werden. Der spätgotische Nordgiebel wurde restauriert, ebenso die gotischen Lanzettfenster an der Ostwand sowie historische Innen- und Außentüren. Noch stärker blieb der historische Charakter im Kornhaus erhalten: Unterzüge verstärken die bestehenden Holzbalkendecken, das Parkett wurde restauriert und neu verlegt. Im historischen Sitzungssaal rekonstruierte man die gründerzeitliche Wand- und Deckenfassung. Neue Holzfenster, Außentüren und nachträglich gedämmte Fensterleibungen verbessern die Energieeffizienz der beiden Flügel. Insgesamt bietet das Schloss nach dem Umbau Platz für 65 Büroräume, drei neue Sitzungssäle, drei Archive, zwei Asservatenkammern und eine Bibliothek.
Das Ziel: maximale Transparenz
Zwischen den Bestandsbauten fügten die Architekten drei Ganzglaskonstruktionen ein, die die unterschiedlichen Gebäudeteile verbinden: Treppenturm, Gang und Foyer. „Unser Ziel war maximale Transparenz: Nicht nur Dach und Fassade sollten durchsichtig sein, sondern auch das Tragwerk selbst“, sagt Bauleiter Pedro Goretzki von der für Architektur und Bauleitung zuständigen Bauconzept® Planungsgesellschaft.
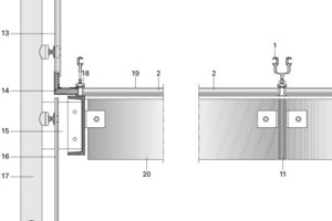
Für das neue Foyer zwischen Kornhaus, westlicher Schildmauer und Turmruine entwickelten die Planer einen gläsernen Trägerrost mit quadratischem Raster, der den Raum stützenfrei überspannt. Zwischen den 7 m langen Hauptträgern sind im Abstand von 1,4 m Nebenträger eingehängt. Die 35 cm hohen Träger bestehen aus 6 cm dickem Verbundsicherheitsglas (VSG). Je vier Scheiben heißgelagertes Einscheiben-Sicherheitsglas (ESG-H) wurden mit Spezialfolien zu einem Glasträger verklebt. Die kurzen Träger klemmen in U-förmigen Edelstahlwinkeln und sind mit den Hauptträgern verschraubt. Randträger aus Stahl verankern die Konstruktion mit den Umfassungsmauern. Dank der Stützenfreiheit bleiben die Bruchsteinwände des Bestands unverstellt.
Auf den Bildern, die vor dem Wasserschaden entstanden, erkennt man das Foyer als Ganzes: In den Boden integrierte Lichtvouten illuminieren das Mauerwerk. Hof und Eingangsbereich gehen fast nahtlos ineinander über. Der Basaltboden setzt sich im Foyer fort und reicht, wie vor dem Umbau, bis an die westliche Schildmauer. Pförtnertresen und Poststelle wurden als freistehende Holzkuben unter dem Glasdach platziert.
An die Nordfassade des Kornhauses dockt ein gläserner Treppen- und Aufzugsturm an und erschließt die Behördenräume. An Rundstahlkonsolen montierte Punkthalter tragen die bis zu 2 x 4 m großen, einzeln vorgespannten Fassadenscheiben aus Sonnenschutz-Isolierglas. Um die Raumkanten besser zu betonen, wurden die Scheiben geätzt und mit Siebdrucken versehen: Durchsichtige und opake Abschnitte wechseln sich ab. Der Glasturm ist nicht mit der tragenden Stahlbetonkonstruktion verbunden, eine eingestellte Sichtbetonwand hält die anbetonierten Treppenläufe. So bleibt die Fassade des Altbaus unverstellt, historisch wertvolle Bauteile wie Treppenerker und Kaminschacht kommen optimal zur Geltung.
Auch die sanierte, spätgotische Turmruine auf der gegenüberliegenden Seite des Foyers überspannt ein neu eingezogenes Glasdach. Von der Ruine führt ein 25 m langer und 2,5 m breiter Glasgang Mitarbeiter und Besucher wettergeschützt hinüber ins Schloss. Dach, Fassade, Stützen und Träger bestehen vollständig aus Glas, so dass man vom Hof durch den lichten Gang hindurch direkt auf die historische Schildmauer guckt. Abends erleuchten mit Opalglas abgedeckte Lichtbänder beidseitig den leicht ansteigenden Weg.
Das Tragwerk des Glasgangs bilden 17 Halbrahmen aus VSG, die jeweils aus einer Glasstütze und einem -schwert bestehen. Während die Stützen am Fußpunkt an der Stahlbetonrampe befestigt sind, wurde das obere Auflager in die Schildmauer eingelassen und vermauert. Am Knotenpunkt greifen die Halbrahmen wie Nut und Feder ineinander und sind mit einem hochfesten, lastabtragenden Acrylat-Klebstoff verbunden. Die innovative Klebverbindung wurde extra für das Projekt an der TU Dresden entwickelt und geprüft, alle Beteiligten betraten dabei bauaufsichtliches Neuland. Die Fertigung und Montage der Glasträger war äußerst komplex: Wegen der Krümmung der Schildmauer und des ansteigenden Hofniveaus weisen sämtliche Glasträger und -schwerter unterschiedliche Maße auf. Die Toleranzen wurden über Langlöcher und frei justierbare Stahlbolzen in den Anschlusskonsolen ausgeglichen.
Auch die Fassade hält eine Klebverbindung aus Silikon, die das komplette Eigengewicht der Außenhülle abträgt und – wie acht weitere Glaskonstruktionen – einer Zustimmung im Einzelfall bedurfte. Da der Gang nicht beheizt wird, konnte zugunsten der Transparenz auf Isolierglas verzichtet werden. Nicht mal ein Geländer versperrt den Blick: Die Gläser bieten ausreichend Anprallschutz. Einzig Gitterroste wurden zwischen den Glasrahmen montiert, damit niemand herunterfällt. Sogar die kleine Röhrpforte, die zu einer Treppe in der Schildwand führt, bleibt sichtbar: Die Streifenfundamente der Rampe wurden an dieser Stelle ausgespart. Der lichte Glasgang reizt den Grad der Transparenz vollständig aus und rückt so den historischen Bestand in den Blick.
