Schulcampus Hanhoopsfeld, Hamburg
Inmitten einer weitläufigen Parklandschaft führten AllesWirdGut Architekten und DnD Landschaftsplanung zwei Schulen zu einem gemeinsamen Campus zusammen. Sie erweitern damit das Standardraumprogramm um ein differenziertes Freiraumangebot, das den unterschiedlichen Altersstufen und Kommunikationsbedürfnissen gerecht wird.
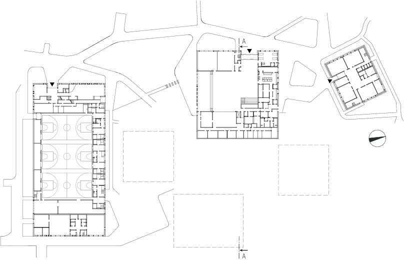
Die Lessing Stadtteilschule und das Alexander-von-Humboldt-Gymnasium liegen inmitten eines durchgrünten Wohngebiets am südlichen Ortsrand von Hamburg-Harburg, eingebettet in ein parkähnliches Grundstück. Bis 2013 hatten die beiden Schulen wenig Berührungspunkte und insbesondere die barackenartigen Gebäude der Stadtteilschule waren heruntergekommen und verlangten dringend nach Erneuerung. Hierzu lobte die Bauherrin, die GMH Gebäudemanagement Hamburg GmbH, einen europaweiten Wettbewerb aus, den das Architekturbüro AllesWirdGut gemeinsam mit DnD Landschaftsplanung, beide aus Wien, für sich entscheiden konnten. Die zentrale Aufgabe lautete, die beiden Schulen besser miteinander und auf dem bestehenden Gelände zu vernetzen. Die bewegte Topografie des Grundstücks sowie der alte Baumbestand sollten soweit wie möglich erhalten bleiben, ebenso die Bestandsbauten des Gymnasiums. Zur besseren Verbindung der beiden Schultypen wünschte die Bauherrin ein sogenanntes Verbundgebäude zu errichten, in dem gemeinschaftlich zu nutzende Räume, wie die Aula, eine Mensa, Probe- und Musikräume sowie eine Theaterbühne untergebracht werden sollten. Darüber hinaus sahen die Wettbewerbsvorgaben ein klassisches Raumprogramm vor, das in einem zweiten Baukörper Platz finden sollte. Als drittes Gebäude sollte eine neue Sporthalle entstehen.
„Unser Entwurf geht über das Geforderte hinaus“, bewertet Büropartner Friedrich Passler den Erfolg seines Büros im Wettbewerb. „Wir haben das nötige Volumen des gesamten Raumprogramms stärker aufgeteilt und mehrere freistehende Solitäre entworfen, die sich in ihren Proportionen in den Geländeverlauf mit dem markanten Baumbestand sowie in die Gebäudestruktur der Umgebung viel besser einfügen als die drei vorgesehenen Baukörper.“ Und Landschaftsplanerin Sabine Dessovic ergänzt: „Wir waren von Anfang an mit in den Entwurf einbezogen und konnten das Freiraumkonzept bestmöglich auf die Architektur und die Funktionen in den Erdgeschossen abstimmen.“
Pädagogisches Konzept und Raumaufteilung
Im Gegensatz zu vielen Schulneubauten der jüngeren Zeit liegt den beiden Schulen hier ein eher konservatives pädagogisches Konzept zugrunde. Von völlig offenen Lernlandschaften, wie man sie zum Beispiel aus Skandinavien kennt, ist man hier, auch aufgrund der Bestandsbauten und strenger Vorschriften etwa zum Brandschutz, weit entfernt. Die ArchitektInnen brechen die räumlichen Einschränkungen jedoch dergestalt auf, dass sie in den Neubaukörpern die jeweils um ein zentrales Atrium windradförmig angeordneten Unterrichtsräume über Lufträume miteinander verbinden und so zu offeneren Raumstrukturen gelangen. Gemeinschaftliche Unterrichts- und Lernformen werden dadurch ermöglicht. Bei dem Verbundgebäude sorgte zudem die Topografie des Geländes für eine besondere räumliche Qualität. Der Baukörper besitzt zwei Eingänge auf verschieden Höhenniveaus, die wiederum über eine große Freitreppe miteinander verbunden wurden. „So ist für beide Schulen eine Schnittstelle mit einem tollen Aufenthaltsraum entstanden“, kommentiert Friedrich Passler.
Materialwahl
Klinkerbauten prägen den Norden Deutschlands und die Stadt Hamburg wie kaum ein anderer Baustoff – für Friedrich Passler ein hochwertiges, langlebiges und robustes Material, mit dem sich der Wunsch nach einer zeitlosen, ortstypischen Gestaltung mit dem Anspruch der Bauherrin nach einer günstigen Bauweise bestmöglich vereinen ließ. „Dies mag auf den ersten Blick vielleicht verwundern“, so Passler, da es natürlich auch kostengünstigere Alternativen gibt, doch da die GMH die Schulen auch betreibt, lag hier der wirtschaftliche Fokus eben nicht nur beim Bau, sondern auch bei einem möglichst wartungsarmen Betrieb.“ Und auch für die Akzentuierung von Teilbereichen der Fassade führte der hohe Kostendruck zu einer kreativen Lösung. Ursprünglich dachten die ArchitektInnen hier an Betonfertigteile, doch mit dem Schlämmen des Mauerwerks entstand eine deutlich individuellere und nachhaltigere Alternative. Kosten konnten zudem dadurch eingespart werden, dass für die geschlämmten Bereiche die schlechteren Steine einer Charge eingesetzt wurden, die man für ein reines Sichtmauerwerk eher aussortiert hätte.
Die Innenraumgestaltung wurde im Kontrast zur soliden Fassade bewusst reduziert, die Räume sollten gestalterisch nicht überfrachtet werden, eher die Optik eines Rohbaus erhalten und den SchülerInnen so ausreichend Raum zur Bespielung und Aneignung bieten. Bedeutet konkret: Die Wände wurden nur gestrichen, Estrich beschichtet, Betonbauteile roh belassen und nicht in Sichtbetonqualität ausgeführt. Farben setzen die nötigen Akzente. Zur Verbesserung der Raumakustik sind die Decken mit zementgebundenen Faserplatten belegt; eine akustisch wirksame, aber wirtschaftliche Lösung, die auch gestalterisch zum weitgehend roh und grob belassenen Innenausbau passt.
Freiraum inklusive
Der Erhalt und das Arbeiten mit dem vorhandenen Grünbestand ist wesentlicher Bestandteil des Gesamtentwurfs und verleiht dem Campus eine besondere Qualität. Neben der Integration der Baukörper in den vorhandenen Geländeverlauf basiert das Freiraumkonzept auf drei wesentlichen Planelementen: Entwurfsbestimmend ist ein durchgängiger Pflanzstreifen in der Mitte des Geländes. Er dient einer groben Zonierung der Freiräume von Stadtteilschule und Gymnasium. In der von beiden Schulen genutzten Mittelzone teilt sich dieses grüne Band auf und umschließ so den zentralen Gemeinschaftsbereich. Daneben sollen die multifunktionalen Rasenflächen sowie die Platzflächen mit Sitzgelegenheiten die einzelnen Gebäude miteinander vernetzen, Zugänge markieren und neue Nutzungen ermöglichen. Wie in den Innenräumen wurde auch im Außenbereich nicht alles vorgegeben, um den Nutzern nötigen Raum für eine individuelle Ausgestaltung zu lassen. „Bei der Umsetzung waren trotz der guten Voraussetzungen kreative Ideen gefragt, um das geringe Budget von nur knapp 80 €/m² bestmöglich zu nutzen“, berichtet Sabine Dessovic. Die umfangreichen Erdarbeiten waren zwar ausgenommen, doch vorhandene Leitungen galt es ebenso zu integrieren wie eine barrierefreie Durchwegung von West nach Ost, eine Freiraumklasse, unversiegelte Parkplätze und die 80 Ersatzpflanzungen der insgesamt 324 Bäume.
Gemeinsam zum Ziel
Im Gespräch mit dem Architekten und der Landschaftsplanerin wurde neben dem bisher Dargestellten vor allem auch die ungewöhnlich gute Zusammenarbeit aller Beteiligten erwähnt. So rührt die ungewöhnlich lange Planungszeit vor allem aus der immer wieder sehr konstruktiven Diskussion her, die mit der Bauherrin und den beiden Nutzern geführt wurden, um dem hohen Kostendruck und den im Bauverlauf unvermeidlich auftretenden Schwierigkeiten mit kreativen Lösungen zu begegnen. „Auf beiden Seiten gab es ein hohes Vertrauen und erfreulich klare Entscheidungen, die immer zu einer gemeinsamen Weiterentwicklung des Projekts und letztendlich zum bestmöglichen Ziel führten“, erinnern sich sowohl Friedrich Passler wie Sabine Dessovic. Da bleibt eigentlich nur noch ein Wunsch offen – dass sich der Campus nach der Corona-Auszeit schnellstmöglich wieder mit schulischem Leben füllt!⇥KR
Ein Campus von klassischem Zuschnitt, mit einfachen, gut platzierten Bauten, die bekannte Schulbauprinzipien mit neuen Unterrichtsmöglichkeiten kombinieren. Ein gutes Beispiel dafür, was für urbane und grüne Qualitäten bei ausreichendem Platz mit einem Campuskonzept geschaffen werden können, wo die Landschaft eine wesentliche Rolle spielt.«⇥DBZ Heftpartner Mads Mandrup Hansen und Julian Weyer, C.F. Møller Architects⇥
Baudaten
Objekt: HHF, Hamburg
Standort: Hanhoopsfeld 21, Hamburg
Typologie: Bildungsbau und Landschaftsgestaltung
Auftraggeberin: GMH | Gebäudemanagement Hamburg GmbH, www.gmh-hamburg.de
Architektur: AllesWirdGut Architektur ZT GmbH,
www.awg.at
Mitarbeit Wettbewerb: Ivana Valekova, Lukas Morong, Nils Bergner, Simona Masarova; Ausführung: Agron Deralla, Alisa Klauenberg, Franziska Sturm, Jana Zdenkova, Julia Stockinger, Magdalena Drach, Martin Brandt, Nadine Tschinke, Rachele Albini Fertigstellung: 01.2019
Landschaftsgestaltung: DnD Landschaftsplanung, Wien, www.dnd.at
Mitarbeit Landschaftsarchitektur: Sabine Dessovic, Anna Detzlhofer, Roland Barthofer, Katharina Puxbaum, Sonja Schwingesbauer
Wettbewerb: 1. Preis, November 2013
Leistungsphasen: Lph 2 – 5
Bauzeit: Oktober 2016 – Januar 2019
Fachplanung
Statik: Ingenieurbüro Horn + Horn, Rostock,
www.hornundhorn.de
Schumacher + Gerber Ingenieurbüro, Hamburg,
www.sg-ing.de
Elektroplanung: Arcus Planung + Beratung, Cottbus, www.arcus-pb.de
Bauleitung: Zietz GmbH, Thedinghausen,
www.ralf-zietz.de
Haustechnik: KMG Ingenieurgesellschaft mbH, Berlin, www.vbi.de
Fachraumplanung: Spinzig + Spinzig GbR, Hamburg, www.sprinzig-planung.de
Küchenplanung: Cooking Solutions GbR, Hude,
www.cs-gbr.de
Bauphysik: D3-Architekten, Hannover,
www.d3-architekten.de; BZE-Ökoplan, Hamburg,
www.bze-oekoplan.de
Bauakustik: OSJ Ingenieure, Hamburg, www.qintus.de
Brandschutz: BIB Concept, Stelle, www.bib-concept.de
Ausschreibung: MRO Architekten, Hamburg,
www.mro.de
Zietz GmbH, Thedinghausen, www.ralf-zietz.de
Projektsteuerung: PMD Gesellschaft für Projektmanagement, Düsseldorf, www.pd-denk.de
Projektdaten
Nettogrundrissfläche NGF: 14 500 m²
Bruttogrundrissfläche BGF: 16 590 m²
Bruttorauminhalt BRI: 80 300 m²
Grundrissfläche Außenanlagen: 20 410 m²
Hersteller
Bodenbeläge: DLW/Gerflor Mipolam GmbH,
www.gerflor.de, StoCretec GmbH, www.stocretec.de, Forbo Flooring GmbH, www.forbo.com
Akustikdecken: Troldtekt GmbH, www.troldtekt.de, Knauf Gips KG, www.knauf.de
Fliesen: Agrob Buchtal GmbH, www.agrob-buchtal.de, Marazzi Group S.r.l., www.marazzi.de
Verblendziegel: Deppe Backstein-Keramik GmbH,
www.deppe-backstein.de
Mobiltrennwände: Franz Nüsing GmbH & Co. KG,
www.nuesing.com
Vorhangstoffe: Kvadrat A/S, www.kvadrat.de,
Indes Fuggerhaus Textil GmbH, www.fuggerhaus.de
