Prototyp mit positiver Energiebilanz+Energiehaus, Farschweiler
An einem Nordhang in der Nähe von Trier bauten die ARCHITEKTEN STEIN HEMMES WIRTZ ein ungewöhnliches Einfamilienhaus. Auf den ersten Blick würde kaum jemand vermuten, dass es sich bei dem skulpturalen Holz-Beton-Bau mit dem riesigen Panoramafenster auf der Nordseite um ein Plusenergiehaus handelt. Doch der Neubau reizt neue Bautechniken und Möglichkeiten energiesparenden Bauens konsequent aus.
Als in den Hang gesetzte Aussichtsplattform bezeichnen die ARCHITEKTEN STEIN HEMMES WIRTZ das innovative Einfamilienhaus, das sich oberhalb des 800-Seelen-Ortes Farschweiler bei Trier in einen Nordhang schiebt. Der skulpturale Holz-Beton-Bau gleicht einem Hochsitz, von dem aus sich das Tal und der angrenzende Hochwald überblicken lassen. Dem im Gelände vergrabenen Kellergeschoss aus Beton sitzt ein auskragender, sechseckiger Holzkorpus auf: die „Aussichtsebene“. Während sich der Wohnraum mit großer Glasfront und Terrasse nach Süden öffnet, dient im Norden ein ca. 2 x 7,8 m großes Panoramafenster als Ausguck.
Zwischen den eingeschossigen, weiß verputzten Satteldachhäusern in der Anliegerstraße hebt sich der Neuling wohltuend ab. Die glatte, scharfkantige Holzfassade hat weder Erker noch Dachüberstände, Vor- oder Rücksprünge. Die Fenster sitzen bündig wie Intarsien in der ebenen Fläche. Selbst die Regenfallrohre verlaufen unsichtbar hinter der Fassade. Trotzdem wirkt der Neubau nicht wie ein Fremdkörper: Dachform und Traufhöhe fügen sich in die Flucht der Nachbarhäuser ein, das Norddach folgt exakt der Hangneigung.
Die kompakte Form ist eine unkonventionelle Antwort auf die Vorgaben des Bebauungsplans und den Bautyp „Einfamilienhaus mit Satteldach“. Vor allem aber erlaubt sie es, das Haus luftdicht einzupacken wie eine Thermoskanne. Massive Holzwände, bis zu 40 cm Wärmedämmung und drei- bzw. vierfach verglaste Fenster halten die Wärme im Haus. Auch wenn es die großzügige Verglasung auf der Nordseite zunächst nicht vermuten lässt: Das Gebäude ist äußerst energieeffizient geplant. Dank einer luftdichten, extrem gut wärmegedämmten Außenhülle und einer sehr effizienten Lüftung bleibt es mit 13 kWh/m²a knapp unter dem für Passivhäuser geforderten Jahresheizwärmebedarf. Eine Erdwärmepumpe sowie ein nahezu vollflächig mit Solarthermie- und Photovoltaikmodulen belegtes Dach decken den Energiebedarf. Die Solaranlage sammelt darüber hinaus Energieüberschüsse und macht so aus dem Passiv- ein Plusenergiehaus. Dank der flachen Dachneigung von 13° und hocheffizienter Dünnschichtmodule kann auch die Nordseite solar genutzt werden. Die Solarpaneele sitzen – von der Straße aus unsichtbar – hinter einer Dachaufkantung.
Prototyp für neue Bautechniken
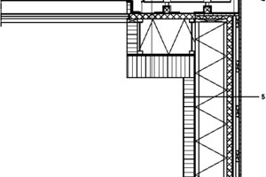
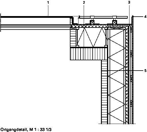
3,5 cm breite, bis zu 6 m lange, dicht gestoßene Bretter aus Sibirischer Lärche verkleiden die Fassade: „Das Holz ist ein Restprodukt aus der Herstellung von Fensterprofilen, das wir ‚recycelt‘ und zur Oberflächenbehandlung lediglich geölt haben“, sagt Architekt Hans-Jürgen Stein. Der Transportweg betrug keine hundert Meter: Bauherr Alois Annen führt im Ort ein international tätiges Fenster- und Fassadenbauunternehmen und nutzte den Neubau als Prototyp, um neue Werkstoffe und Bautechniken zu testen. So ist der Keller in Betonsandwichelementen mit einer nur 8 cm dicken Vakuumdämmung ausgeführt. Für das Panoramafenster entwickelte Fensterbauer Annen eine Vierfachverglasung mit einem Uw-Wert von 0,52 W/m²K, deren Aufbau einem Kastenfenster ähnelt und die die Wärmeverluste auf der Nordseite senkt. Sie erlaubt – entgegen der üblichen Passivhausbauweise – eine großzügige Öffnung nach Norden und ein Durchwohnen mit Ausblicken. Um die Glasfläche zu vergrößern und das Holz vor Verwitterung zu schützen, wurden die Rahmen aller Fenster überglast und betonen die Kubatur des Hauses.
Regelmäßig führt Annen Architekten durch das bislang noch unbewohnte Referenzobjekt. Vom Kellergeschoss, das Garage, Technik sowie einen als Arbeits-, Fitness- oder Gästezimmer nutzbaren Zusatzraum aufnimmt, bekommen die Besucher kaum etwas mit. Sie „tauchen“ unter dem zur Straße auskragenden Gebäude ein und steigen über eine breite, von Sichtbetonwänden flankierte Holztreppe direkt hinauf zur Wohnplattform. Dem Licht entgegen, das durch ein riesiges Südfenster in den Treppenraum sickert.
Wenige, unbehandelte Materialien prägen den bis unters Dach offenen Wohnraum: Eichenholz an Wänden und Decken, geschliffener Betonestrich, weißes Corian für die frei im Raum stehende Kochinsel. Wie ein Gemälde rahmt das Ganzglasfenster auf der Nordseite die Landschaft. Die gewaltigen Dimensionen – allein der „kleine“ Lüftungsflügel misst 2 x 1,5 m – werden erst jetzt erfahrbar. Auch die Südseite ist komplett verglast. Zusätzlich dringt Helligkeit durch ein Oberlicht im Dach. Damit noch mehr Zenithlicht einfällt und den Raum gleichmäßig ausleuchtet, wurden die Leibungen leicht abgeschrägt.
Wände und Decken aus Massivholz
Bis auf die weiß lackierten Schiebetüren, Türrahmen und Einbauschränke, das wasserfeste Corian für Bad und Kochzeile und das Industrieparkett aus dunkler Eiche in den beiden Schlafzimmern ist die gesamte Wohnetage mit Brettschichtholz ausgekleidet. Die 6 cm breiten und 12 cm (für Wände) bzw. 25 cm (für Decken) dicken Brettstapelelemente aus Konstruktionsvollholz wurden vorgefertigt und im Werk mit Buchendübeln zu 2,8 m breiten und bis zu 10,7 m langen Abschnitten verbunden. Die Dübel wurden vorab auf 6 Prozent Feuchtigkeitsgehalt herunter getrocknet und angefeuchtet, so dass sie nach dem Einbringen aufquollen und die Konstruktion kraftschlüssig verbanden. So konnte auf schadstoffhaltige Leime vollständig verzichtet werden. Die Oberflächen der tragenden Holzwände blieben unverkleidet und sorgen für ein ausgeglichenes Raumklima. Das Wärmespeichervermögen der Innenschale kommt dem eines konventionellen Massivbaus aus Mauerwerk nahe.
Von außen montierte Doppelstegträger aus Holz halten die Dach- und Fassadenverkleidung. Dank der schlanken Stege werden konstruktionsbedingte Wärmebrücken minimiert. Der Zwischenraum wurde mit 36 cm (Fassade) bzw. 40 cm Zellulose (Dach) ausgeblasen. Um Wärmebrücken zu vermeiden, ist das gesamte Gebäude einschließlich Unterseite in einen dicken Dämmstoffmantel eingepackt. Die Stahlbeton-Bodenplatte unterm Keller isolieren 50 cm aufgeschäumter Glasschotter als lastverteilende Schicht sowie eine 20 cm Dämmschicht aus Zellulose an der Oberseite.
Alle Böden sind als Doppelböden ausgeführt. Ein umlaufender Installationsschacht bündelt die Haustechnik. So lassen sich jederzeit ohne Eingriffe an den Wänden Nachinstallationen vornehmen, wenn sich Lebensweisen oder technische Standards ändern. Selbst die Um-luft-Dunstabzugshaube hängt nur an Stahlseilen schwebend über der Kochinsel. Einzig am First wurde die Holzhülle angetastet, ein Holzelement ausgefräst und eine durchlaufende LED-Lichtleiste eingebaut.
Haus ohne Heizkörper
Dank einer kontrollierten Lüftungsanlage kommt das Haus komplett ohne Heizkörper aus. Sie führt rund 80 Prozent der Abluftwärme aus Küche und Bädern wieder in den Heizkreislauf zurück. Die Luft wird über ein Heizregister erwärmt, über die umlaufenden Kanäle im Installationsschacht eingeblasen und über Löcher in den Holzplanken wieder abgesaugt. Eine dezente, nahezu unsichtbare und geräuschlose Entlüftung. Denn der Wärmebedarf entspricht mit 13 kWh/m²a exakt der Menge Luft, die sich – ohne Geräusche zu erzeugen – im Haus verteilen lässt. Im Sommer werden die Lüftungsflügel der Fenster abends aufgeklappt und kühlen das Haus über Nacht. Die Massivholzwände und -decken geben die gespeicherte Kälte im Laufe des Tages zeitverzögert an den Innenraum ab. So lässt sich Verdunstungskälte vom nahen Wald mitnehmen und auf eine aktive Kühlung verzichten. Damit sich das Gebäude über die vollflächig verglaste Südseite nicht zu stark aufheizt, werden die Raffstores im Sommer heruntergelassen und die Fenster geschlossen.
Für Primärenergiegewinne sorgt vor allem das Solardach: Die thermische Solaranlage auf der Südseite wird zur Raumheizung und Trinkwassererwärmung genutzt, die monokristallinen Photovoltaik-Module, um rund 6750 kWh/a Strom zu erzeugen. Auch die Nordseite lässt sich effektiv zur Stromproduktion nutzen: Die Dünnschichtmodule liefern selbst bei ungünstigem Sonneneinstrahlungswinkel und diffusem Licht gute Erträge.
Was jetzt noch fehlt, sind Bewohner: Auch zwei Jahre nach der Fertigstellung ist das Gebäude nicht bezogen. Auf Nachfragen räumt Bauherr Alois Annen ein, dass er das Haus schlecht hergeben könne, es sei „wie ein schönes Schmuckstück, das man gern für sich haben möchte, um es von Zeit zu Zeit anzuschauen“. Immerhin: Zu einer Vermietung hat er sich nun durchgerungen. Bruno Peter, Mainz
