Modellvorhaben „Alte Stadtgärtnerei“, Neu-Ulm
Im Rahmen des Modellvorhabens „effizient bauen – leistbar wohnen“ haben Fink + Jocher auf dem Gelände der ehemaligen Stadtgärtnerei Neu-Ulm ein außergewöhnliches Betonhaus realisiert. Hinter breiten Laubengängen und dicken Stützen sind 31 öffentlich geförderte Wohnungen sowie Gemeinschaftseinrichtungen entstanden – zu bezahlbaren Preisen. Und energetisch hocheffizient.
„An keiner Stelle darf man am Komfort sparen. Niemals und unter keinen Umständen.“ Dass er diese Worte nicht nur theoretisch meint, hat Prof. Dietrich Fink mit seinem jüngst fertiggestellten Betonhaus auf dem Gelände der alten Stadtgärtnerei Neu-Ulm unlängst bewiesen. Entstanden ist der experimentelle Wohnungsbau im Rahmen des Modellvorhabens „effizient bauen - leistbar wohnen“. Ziel der Initiative des Bayerischen Staatsministeriums für Wohnen, Bau und Verkehr ist die Förderung zeitgemäßer Wohnformen und Bauweisen, die so effizient konzeptioniert sind, dass sie ohne weitere Baukostensteigerungen in einer höchstmöglichen Wohn-, Gebrauchs- und Architekturqualität realisiert werden können.
Grundkonzept Architektur
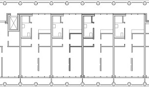
In dem von der Fink + Jocher Gesellschaft von Architekten und Stadtplanern mbH schlicht „Betonhaus“ genannten 4,35 Millionen-Werk in Neu-Ulm finden 31 öffentlich geförderte Wohnungen Platz, dazu ein Gemeinschaftsraum, eine Gemeinschaftsdachterrasse und ein Gemeinschaftsgarten. Im Zentrum des sechsgeschossigen Riegels reihen sich die Zwei-Zimmer-Einheiten aneinander, die Ränder belegen Drei bzw. Vier-Zimmer-Wohnungen. Einen Keller gibt es nicht. Stattdessen beinhaltet jede Wohnung einen Kellerersatzraum sowie einen 1,5 m2 großen Abstellraum.
Da der Baukörper direkt an die vierspurige – stark befahrene – Reuttier Straße grenzt, haben die ArchitektInnen die Erschließung zur Straßenseite hin organisiert und über Laubengänge gelöst. Diese sind wie erweiterte Gehwege gestaltet, robust und breit, mit Platz, um Fahrräder zu parken und Stühle für den Nachmittagsplausch aufzustellen. Zwei Treppenhäuser an beiden Enden des Bauwerks dienen als Rettungswege. Hinter der Straßenfassade befinden sich die weniger lärmempfindlichen Räume wie Küchen und Bäder. Schlaf- und Hauptaufenthaltsräume liegen auf der dem Verkehr abgewandten Süd-West-Seite des Gebäudes. Große Glasflächen sorgen für viel Licht und vorgelagerte Balkone für private Aufenthaltsflächen im Freien.
Kostenoptimierte Konstruktion
Entstanden ist der standardisierte Baukörper in strenger Schottenbauweise, die alle Vorteile des präfabrizierten und standardisierten Bauens bzw. des seriellen Bauens ausschöpft: Jede Etage und jeder Wohnungstyp sind gleich aufgebaut, die Bäder absolut identisch. Die Spannweiten der Bauteile sind kurz und wiederholen sich. Ausnahmen, Auswechslungen und Sondersituationen gibt es schlichtweg nicht.
Die 31 identisch aufgebauten Bäder nutzen die Kosteneffekte der Systematisierung, wurden aber vor Ort eingebaut, „weil dies in diesem Fall preiswerter war“, verrät Dietrich Fink. Die tragenden Innenwände aus Beton und die nichttragenden Trockenbauwände wurden ebenfalls direkt auf der Baustelle erstellt. Bei den Decken erwiesen sich Teilfertigteile als am günstigsten: Die 4 cm dicke, untere Fertigteilschicht dient als verlorene Schalung, die vor Ort nochmal mit Beton aufgegossen wurde. Stützen und Balkonplatten wurden hingegen als Fertigelemente angeliefert. Das gleiche gilt für die Außenhaut aus Betonsandwichfertigteilen, die eine 20 cm dicke innere Tragschale mit 18 mm Kerndämmung und einer Dekorschale aus 8 cm Sichtbeton kombinieren. Das ergibt summa summarum 46 cm Außenwand – genug für einen KfW40-Standard.
Sparen? Am besten in den Leistungsphasen 2 und 3
„Um die finanziellen Grenzen der Förderrichtlinien trotz hoher Wohnqualität nicht zu überschreiten, haben wir unsere Planung im Laufe der Weiterentwicklung energetisch, materiell und finanziell immer weiter optimiert“, erklärt der Architekt die Methode, die das Büro zur Effizienzsteigerung des preiswerten Wohnungsbaus gewählt hat. Wichtig sei dabei eine Systemoffenheit im Denkprozess gewesen. „Deswegen nutzten wir eine systemoffene Ausschreibung im Hinblick auf Materialien und Ausführung, die möglichst viele Einsparpotentiale öffnet“, fährt er fort. „Es darf bei der Ausschreibung also nicht heißen: Kommunwand in Ziegelbauweise, sondern Kommunwand, die der DIN 4109 entspricht und glatt ist usw.“ Am Komfort zu sparen, sei hingegen falsch. Und vermeintlich kostengünstige Materialien würden die Kostenfalle häufig nach hinten verschieben und beispielsweise mehr Erhaltungsaufwand erfordern. Oder aber sie würden Komforteinbußen nach sich ziehen, etwa im Hinblick auf den Schallschutz. Dietrich Fink ist überzeugt: „Die Systematik des Hauses ist das wesentliche Momentum zur Kostenreduzierung. Die wichtigste Stellschraube dafür befindet sich demnach in den Leistungsphasen 2 und 3. In diesen ersten Phasen muss man sich bewusst mit dem Thema Systematisierung auseinandersetzen.“ Dabei sei natürlich auch die frühe Einbeziehung von Fachleuten und Unternehmen wichtig, mit denen sich Abläufe weiter vervollkommnen ließen. Zur Kostenoptimierung der Betonkonstruktion ihres Neu-Ulmer Gebäudes setzten sich Fink + Jocher beispielsweise mit Fertigteilherstellern auseinander, um herauszufinden, wie Fertigteilstützen aussehen müssen, wenn sie möglichst günstig produziert werden sollen. Sie debattierten über die Vor- bzw. Nachteile der Sandwichbauweise. Und holten sich nicht zuletzt Unterstützung von den EnergietechnikerInnen von Transsolar, um das Klima- und Energiekonzept des Gebäudes zu verbessern.
Kostenoptimiert gedacht: Beispiel Energieeffizienz
Das Ergebnis setzt auf intelligente Planung statt auf teure Technik: Auskragende Balkonplatten und die 60 cm dicken Stützen halten die Hitze an heißen Sommertagen aus den Wohnungen fern und lassen den Energieeintrag an sonnigen Wintertagen zu. Die Betondecken speichern die Nachtkühle, die dank natürlicher Querlüftung in den Sommernächten in allen Wohnungen einziehen kann, was Temperaturanstiege am folgenden Tag deutlich dämpft. Wenn es kalt wird, kommen kompakte, schmale und fast raumhohe Plattenheizkörper zum Einsatz. In Fensternähe platziert, wärmen sie dort über vertikal integrierte Außenluft-Nachströmelemente die eintretende Frischluft vor. Gleichzeitig sorgen die im Estrich geführten Rücklaufleitungen der Heizkörper dafür, dass ein Viertel der Wärmeabgabe über die Fußböden erfolgt. Aus dieser Kombination resultiert behagliche Strahlungswärme mit hervorragender individueller Regelbarkeit – in einem kostengünstigen System.
Auch die Fernwärmeversorgung liefert energetische und finanzielle Pluspunkte. Das gilt ebenso für den Verzicht auf eine aufwendige mechanische Be- und Entlüftung mit Wärmerückgewinnung, da der eingesparte Lüfterstrom den leicht erhöhten Wärmebedarf primärenergetisch mehr als kompensiert.
Für allerletzte finanzielle Optimierungsschritte sorgte nicht zuletzt das Finishing. „Ursprünglich wollten wir einen pigmentierten Beton in einer hohen Sichtbetonklasse“, erzählt Dietrich Fink. Stattdessen wurde die Fassade von einem Bauunternehmen in normaler Sichtbetonqualität realisiert. Sandstrahlung und Pigmentierung fielen dem Rotstift zum Opfer. „Aber die Abstriche, die wir gemacht haben, sind verträglich und das Maß der Einsparungen gesund“, ist Dietrich Fink überzeugt, „Mit seinem industriellen Charme passt das Betonhaus perfekt in die etwas raue Nachbarschaft hinein.“ Und komfortabel ist es auch. Christine Ryll, München
Projektdaten
Objekt: Modellvorhaben Alte Stadtgärtnerei in Neu-Ulm
Standort: Reuttier Straße 71, 89231 Neu-Ulm
Typologie: Modellvorhaben Kostengünstiger Wohnbau mit 31 öffentlich geförderten Wohnungen und Gemeinschaftseinrichtungen
Bauherr: NUWOG Wohnungsgesellschaft der Stadt Neu-Ulm GmbH, Neu-Ulm
Architektur (LPH 1-5): Fink+Jocher Gesellschaft von Architekten und Stadtplanern mbH, München,
www.fink-jocher.de
MitarbeiterInnen: Gesche Bengtsson (Projektleitung), Sinem Aslan-Kavuk, Valentin Heid, Annika Schröck
Architektur (LPH 6-8): arc-studio carnevale architekten, Ulm, www.architektur-ulm.de
Mitarbeiter: Christian Rott (Projektleitung)
Bauzeit: 10.2018 – 07.2020
Grundstücksgröße: 1 783 m²
Grundflächenzahl: 0,64
Geschossflächenzahl: 1,75
Nutzfläche gesamt: 2 862 m² (inkl. Dachfläche 474,6m²)
Nutzfläche: 1 849 m²
Technikfläche: 18 m²
Verkehrsfläche: 521 m²
Brutto-Grundfläche: 3 670 m²
Brutto-Rauminhalt: 11 610 m³
Baukosten (nach DIN 276)
KG 200 (brutto): ca. 0,26 Mio. €
KG 300 (brutto): ca. 3,81 Mio. €
KG 400 (brutto): ca. 0,81 Mio. €
KG 500 (brutto): ca. 0,21 Mio. €
KG 700 (brutto): ca. 1,43 Mio. €
Gesamt brutto (KG 100-700): ca. 6,88 Mio. €
FachplanerInnen
Tragwerksplanung: Röder Ingenieure, Ingenieurbüro für Tragwerksplanung, Neu-Ulm, www.roeder-ingenieure.de
Wärmeschutz, Schallschutz: Bauingenieur- und Sachverständigenbüro Dipl.-Ing. M.Eng. Hans-Jürgen Ulrich, München, www.energiepass-muenchen.com
Landschaftsarchitektur: terra.nova Landschaftsarchitektur, München, www.tn-l.de
Klimaengineering: Transsolar Energietechnik GmbH, München, www.transsolar.com
Brandschutzplanung: Sachverständigenbüro Arnhold, Weimar, www.arnhold-weimar.de
HLS, Elektroplanung: Rennert Ingenieuratelier GmbH, Bamberg, www.rennert-ingenieure.de
Energie
Spez. Primärenergiebedarf Gebäude: 13 kWh/m²a
Spez. Primärenergiebedarf total: 44 kWh/m²a
U-Wert Gebäudehülle:
U-Wert Außenwand = 0,19 W/(m²K)
U-Wert Fassadenpaneel = 0,19 W/(m²K)
U-Wert Bodenplatte = 0,16 W/(m²K)
U-Wert Dach = 0,15 W/(m²K)
Uw-Wert Fenster = 0,95 W/(m²K)
Ug-Wert Verglasung = 0,50 W/(m²K)
Ug-total (mit Sonnenschutz) = 0,95 W/(m²K)
Luftwechselrate n50 = 0,93/h
Haustechnik
Mittlere Etage: Massive Betondecken, kontrollierte natürliche Entlüftung ohne Wärmerückgewinnung mit Nachströmung der Frischluft über die Fassade, Min. Frischluftwechsel: 0,4 /h (30 m³/h / Pers), Heizkörper mit Rücklauf über Mäander im Estrich, natürliche Fensterlüftung und Ablüften bei Übertemperatur im Sommer
HerstellerInnen
Sichtbeton Vollfertigteil: Dobler GmbH & Co. KG Bauunternehmung, www.dobler.de
Dach: HECLA Dachteam UG, www.hecla-ulm.de
Fenster und Außentüren: Scheifele Fenster- und Innenausbau GmbH & Co. KG
Innentüren: Salzmann GmbH,
www.schreinerei-salzmann.de
Bodenbelag: Schließer Wohnkultur,
www.schliesser-wohnkultur.de
Ausbau / Trockenbau: Wilhelm Frank GmbH
Schlosserarbeiten: Anderer GmbH u. Co. KG,
www.stahlbau-anderer.de
Boden- und Wandfliesen: Of Fliesen,
www.fliesen-of.de
Sanitär und Heizung: Schnitzer Gmbh,
www.h-schnitzer.de
Außenanlagen: LOKAJ Garten- und Landschaftsbau, www.lokaj-garten.de
Aufzug: Schmitt + Sohn Aufzüge GmbH,
www.schmitt-aufzuege.de




 
						 
						 
						 
						 
						 
						 
						 
						 
						 
						 
						 
						 
						 
						 
						 
						 
						 
									

 
									 
									 
									 
									