Langfristig investiertSanierung / Erweiterung des Stadtbades, Gotha
				
				
								
				
							Die Stadt Gotha hat das Privileg, mit ihrem denkmalgeschützten Jugendstilbad eine feine Architekturperle jenseits ihrer Residenzbautenpracht zu besitzen. Allerdings überleben solche Perlen nur, wenn sie genutzt werden. Sanierung, Erweiterung und Umgestaltung haben das nun möglich gemacht. Die Gothaer gehen gerne hin.
Vom heruntergekommenen Bahnhof der Stadt aus nördlich laufend, gleich am architekturpreisgekrönten Omnibusbahnhof vorbei in Richtung Residenzpark und -schloss und weiter durch eine teils recht glatt sanierte Altstadt zum neuen Stadtbad in Gotha ... Das geht in 
ca. 20 Minuten, je nachdem, wie lange man sich bei den (baulichen) Sehenswürdigkeiten der Stadt in Thüringen aufhält.
Das städtische Bad hat bis zu seiner Wiedererweckung etwas länger gebraucht als dieser Spaziergang, der Architekt, Nils Meyer, sprach beim gemeinsamen Termin im Bad von rund sieben Jahren. Für Sanierung und Neubau, für Bestandsanalyse und die konsistente Umsetzung eines Wettbewerbentwurfs aus dem Jahr 2007. Hier hatten Veauthier Meyer Architekten, Berlin, mit einem Entwurf punkten können, der das denkmalgeschützte und schon lange leer stehende Jugendstilbad nicht bloß sinnvoll um neue Anforderungen ergänzte. Die Architekten überzeugten mit einer Planung, die auf dem schwierigen Grundstück auch das Raumpotential des Bestands gehörig forderten.
Entwurf
Das Entwurfskonzept folgte der Aufgabe, ein barrierefreies Familien-, Schul- und Vereinsbad zu entwerfen, das durch Wellness- und Therapieangebote zu ergänzen war. Die Architekten interpretierten dabei die Jugendstil-Schwimmhalle als Dreh- und Angelpunkt in der Reihung von Neubauvolumen. So schoben sie den Körper des Sport- und Lehrschwimmbeckens wie eine Schublade in den Winkel Kopfbau/Bestandsschwimmhalle ein. Und reduzierten seine Größe optisch über die  Teilung der aufgesetzten Belichtungsquader. Auf der gegen-überliegenden Seite führten sie die Achse mit einem weiteren Volumen fort, in welchem die Sauna-Räume untergebracht sind. Im Umgang mit dem recht maroden und teils nur sehr aufwendig zu haltenden Bestand – hier haben die Tragwerksingenieure Wesentliches geleistet – setzten die Architekten nicht auf akribische Rekonstruktion. Mangels durchgehender historischer Befunde wurde so saniert, dass eine Anmutung hergestellt werden konnte: Wer in der historischen Halle steht, erlebt den ursprünglichen Raum − trotz 
seiner modernen Überformung. Erschlossen wird das neue Stadtbad über den historischen Eingang mit seinem kleinen Vestibül.
Neu und alt zusammen
Aufgrund sehr unterschiedlicher Gründungsarbeiten sowohl bei den Neubauten wie auch beim Bestand, mussten beide durch eine teils sehr aufwendig eingearbeitete Bauwerksfuge durchgehend getrennt werden. Tatsächlich können sich so sämtliche Bauteile gegeneinander verschieben, ohne dass es zu gefährlichen Spannungen kommt. In Teilen ist der Neubau dann aber derart mit dem Bestand (optisch) verschmolzen, dass ehemalige Außenwände des alten Bades zu Innenwänden im Neubau werden. Um auf Neubau und historischen Bestand dennoch immer wieder zu verweisen, verwendeten die Architekten aus den Originalfarbenresten abgeleitete Farbtöne bei den Wandfliesen: gedeckte, zurückhaltende Farbtöne im Bestand, kräftige, teils leuchtend helle Farben bei den Zubauten.
Ertüchtigung
Da das unter Denkmalschutz stehende Bad lange ungenutzt war und die Lüftungstechnik aus der Entstehungszeit eher rudimentären Charakter hatte, war eine Sanierung des teils feuchten Altbaus ebenso notwendig wie seine Ertüchtigung. Neben der Sanierung feuchter Wände oder Decken musste das alte Becken zum Teil neu betoniert werden (kom-
pletter Beckenkopf, Beckenumgänge). Die Galeriedecke wurde mit eingelegten GFK-
Lamellen ertüchtigt, die Rippen der Gewölbe-decke wurden auf der Oberseite über angeflanschte Stahlbögen gegen mögliches Einknicken gesichert.
Angebote
Das heutige Schwimmbad bietet seinen Bürgern mehr als die auf Volkshygiene ausgerichtete Anstalt im Jugendstilkleid; damals immerhin schon mit Dampfbad, dessen schöne Räume erhalten und mit neuem Glanz gerettet werden konnten. Wo sich damals Dusch- und Wannenbäder in den Seitenflügeln aufreihten, sind heute neben Umkleiden und Café, das Dampfbad, Räume für Therapie-Anwendungen, Verwaltung etc.
Zentral liegt immer noch das Jugendstil-, heute Therapiebad. Das Sportbecken ist für den Vereinssport tauglich, das Lehrschwimmbecken quer dazu schließt an das Kinderbecken mit Rutsche an.
Den Höhenversprung zwischen historischer und neuer Schwimmhalle nutzten die Architekten für den Bau einer Tribüne aus beheizten Stufen und Treppen. Unter diesem Volumen liegen Dusch-, Toiletten- und Lagerräume.
Barrierefreiheit
Die Herstellung eines komplett barrierefreien Bades war in dem von Niveauversprüngen und zahlreichen Zwischenebenen gegliederten Volumen nicht einfach. In der Planung erreichten die Architekten diese über einen zentralen Aufzug sowie Rampen und Treppenlifte.
Luft-/Wassertechnik
Neben der energetischen Ertüchtigung des Altbaus durch teils sehr aufwendige, denkmalschutzrelevant geforderte Maßnahmen, waren die Wasserführungs- und Aufbereitungsanlagen ein zentrales Thema. So verfügt das Bad über vier Aufbereitungsanlagen für die mit Stadtwasser betriebenen Bäder. Die beiden zum Einsatz kommenden Aufbereitungsverfahren sind „Flockung – Ultrafiltration – UV – Chlorung“ bzw. „Flockung – Filtration – Chlorung“.
Die Warmwasserbereitung erfolgt über ein Speicherladesystem, bestehend aus zwei Speichern mit einem Gesamtvolumen von 2 500 l und einem Wärmetauscher von ca. 250 kW. Das warme Wasser zirkuliert permanent über ein separates Zirkulationsmodul mit Reaktionsspeicher mit mehr als 60 °C (Legionellenprophylaxe).
Ein großes Thema war zudem das der Klimatisierung/Lüftung. Da die warme und feuchte Schwimmbadluft eine grundsätzliche Herausforderung ist, mussten 8 Lüftungsanlagen installiert werden, die auch für die Beheizung der Schwimmhallen, Umkleiden und Duschen vorgesehen sind. Steuerung und Regelung der Heizungsanlage erfolgt über eine zentrale Gebäudeleittechnik. Die gesamt Arbeitsleis-tung der 8 Anlagen in vL (Luftmenge) liegt bei ca. 73 000 m³/h.
Alle Anlagen sind als Zu- und Abluftanlagen ausgeführt. Insbesondere waren hier die komplexen Anforderungen des Brandschutzes zu beachten. An zwei Stellen im Alt- und Neubau kann man die Dimensionen der Anlage sichtbar nachvollziehen: Die beiden silberfarbenen Türme zwischen Sport- und Lehrschwimmbecken dienen der Be- und Entlüftung und ganz pragmatisch der Raumteilung. Versteckter stehen zwei Luftkanäle in den beiden nördlich, die Arkadenreihe abschließenden Bögen auf der Galerie der historischen Halle.
Fazit
Nicht bloß auf dem Hintergrund der komplexen Anforderungen, die Sanierung, Um- und Neubau mit sich brachten, ist das heute vorhandene Stadtbad nichts weniger als die gelungene Wiederbelebung eines für die Stadtgeschichte und alle Bürgerschichten relevanten Orts. In Zeiten so genannter „Haushaltssanierungen“, die meist auf Kosten öffentlicher Einrichtungen in kurzsichtiger Weise durchgezogen werden, kann man der Stadt Gotha gratulieren, mit dem von Veauthier Meyer Architekten sanierten und erweiterten Stadtbad ein Stück städtischer Grundversorgung wieder zur Verfügung zu haben. Die Qualität der Raumlandschaft und deren effiziente wie funktionale Erschließung macht das Schwimmbad zu einer langfristig wirkenden Investition ins Stadtmarketing. Nicht zuletzt aber hat die Stadt hier einen Ort erhalten, an dem man sich (ganz offensichtlich) gerne aufhält. Jetzt, liebe Stadtväter/-mütter, könntet ihr Euch einmal des Stadt-entrées erbarmen und Euch den Bahnhof vornehmen! Be. K.
1 Lüftungsturm:
Schieferdeckung
Unterdeckbahn
Vollschalung
Bestand Holzkonstruktion
2 Zellulosedämmung als Aufblasdämmung
3 Dachaufbau:
Biberschwanzziegel
Traglattung
Konterlattung
Unterspannbahn
Wärmedämmung 160 mm
4 Beckenbodenaufbau:
Steinzeugfliesen im Dünnbett
Butylkautschuk-Abdichtung
Estrich 30 mm
Magerbeton 30 mm
Dämmung 120 mm
Stahlbeton 250 mm
Sohle Bestand
5 Beckenwand:
Steinzeugfliese im Dünnbett
Butylkautschuk-Abdichtung
Ausgleichsputz 15 mm
6 Beckenrinnenaufbau:
tiefliegende Rinne in Epoxidmörtel verlegt
Kapillarsperre
Steinzeugfliese in Epoxid- mörtel verlegt
Hinterfütterung aus säure- festem Stein
Verbundabdichtung
7 Beckenkopfstein aus Betonwerkstein
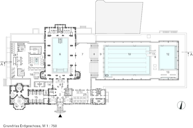
	1	Haupteingang
	2	Eingangshalle/ 
		historisches Treppenhaus
	3	Wartebereich
	4	Kasse/ Shop
	5	Alte Schwimmhalle
	6	Jugendstilbecken
	7	Aufenthaltsbereich
	8	Tribüne/ Sitzstufen
	9	Neue Schwimmhalle
	10	Schwimmbecken
	11	Sprunganlage 1 m und 3 m
	12	Lehrschwimmbecken
	13	Kinderbecken
	14	Zugang Saunaanlage
	15	Alter Ruheraum
	16	Kuppelraum Alte Sauna/ Lounge
	17	Tepidarium
	18	Sauna-Bar
	19	Saunahof mit Tauchbecken
	20	Biosauna
	21	Schwallduschen
	22	Dampfbad
	23	Finnische Sauna
	24	Ruhezone
	25	Gastronomie
26 Küche




 
						 
						 
						 
						 
						 
						 
						 
						 
						 
						 
						 
						 
						 
						 
						 
						 
									

 
									 
									 
									