Komplex im Kontext
HL 23 in Chelsea/Man-hattan, New York/USA
Elegant und grazil schwebt Neil Denaris Bau über der Highline und besticht durch seine präzisen Fassaden aus Aluminium und Glas mit Ein- und Ausblicken auf die urbane Promenade.
„Um ehrlich zu sein, war das für mich einer der zuletzt verbliebenen urbanen Bauplätze in Amerika“, erklärt der kalifornische Architekt Neil Denari. „Ich habe in den 1980er Jahren in New York gelebt und viel Zeit in dieser Gegend verbracht. Damals beeindruckte mich der industrielle Charme dieser Gegend und die morbide Hochbahntrasse.“ Im Augenblick entwickelt sich das West Chelsea Art District mehr und mehr zum neuen Wohnviertel in Manhattan. Zuvor war es jahrzehntelang ein Industriegebiet geprägt von Schlachthöfen, Lagerhäusern und KFZ-Betrieben. Nicht zuletzt hat die Highline zu diesem Wandel beigetragen. Sie ist eine moderne urbane Promenade, die sich auf einer brach liegenden Hochbahntrasse mitten durch Manhattans Westen zieht. Einer Bürgerinitiative Ende der 1990er Jahre ist es zu verdanken, dass die Trasse nicht abgerissen sondern zu einem Landschaftselement umgestaltet wurde. 2009 eröffnete der erste Bauabschnitt nach Plänen von Diller, Scofidio & Renfro mit James Corner Field Operations. Im Juni dieses Jahres folgte der zweite Bauabschnitt zwischen der 20. und 28. Straße. Gleichzeitig wurde – genau auf der Hälfte des neuen Abschnitts – Neil Denaris Apartmenthochhaus HL 23 fertig. Der Name ist Programm: Highline 23 = HL 23 liegt direkt an der Kreuzung zwischen der Highline und der 23. Straße.
Konzept
Programm war auch, elf Wohnungen auf einem handtuchgroßen Grundstück unterzubringen, davon eine Maisonettewohnung mit privatem Garten im Sockelbereich sowie ein zweigeschossiges Penthouse mit Dachterrasse im dreizehnten und vierzehnten Stock. Da die Grundfläche nicht ausreichte, erwarb der Investor Luftrechte, was nach New Yorker Baurecht möglich ist. So konnte der Bau nach oben hin an Fläche hinzugewinnen. „Die meisten Gebäude in New York sind nach dem Prinzip eines Hochzeitskuchens aufgebaut, indem sie zurücktreten während sie höher werden. Für unser Gebäude entwickelten wir eine ganz neue Form und Struktur, die auf die Baugrenzen reagiert und gleichzeitig den Kraftfluss des nach oben zunehmenden Volumens abbildet“, beschreibt der Architekt. „Denn unser Büro legt immer großen Wert darauf, Gebäude aus dem Kontext zu entwickeln. So bildet der Neubau ein vertikales Gegengewicht zur horizontalen Parktrasse. Gleichzeitig ist das Gebäude ähnlich kontrolliert gestaltet wie der künstliche Park auf der Bahntrasse.“
Konstruktion
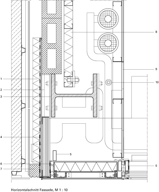
Vom zweiten Geschoss bis zum vierzehnten kragt das Gebäude nach und nach um 4,50 Meter aus. Da das Grundstück so schmal ist und die Wohnungen möglichst stützenfrei sein sollten, entschieden sich die Planer, das tragende Gerüst an die Fassaden zu legen und die Auskragung mit sichtbaren diagonalen Aussteifungen zu bewerkstelligen. Dazu kam, dass der Auftraggeber eine möglichst komplette Verglasung der Nord- und Südfassaden wünschte, um einen freien Blick auf die Highline zu ermöglichen. Der Statiker setzte die Vorstellungen der Architekten in eine schlanke Tragwerksplanung um. Dabei haben alle sichtbaren Stahlrohre einen Durchmesser von 20 cm und sind mit einem Brandschutzanstrich versehen. Um die Tragstruktur, vor allem die Diagonalen, in den Glasfassaden noch einmal zu betonen, sind die Gläser an diesen Stellen mit einem hellen Siebduckraster bedruckt. Während der Bauzeit wurde zunächst das Stahlgerüst für die ersten sieben Geschosse errichtet und mit hunderten von Stahlkabeln temporär abgesichert, bis man den Beton auf die Geschossdecken gegossen hatte und dieser nach 21 Tagen ausgehärtet war. Dann konnten die Kabel entfernt werden, weil die Betondecken jetzt das Tragwerk aussteifen. Anschließend folgte auf die selbe Art und Weise die Aufstockung um weitere sieben Geschosse. Während der Bauzeit musste die Stahlkonstruktion ständig mit Lasern überwacht werden, um zu kontrollieren, dass sie nicht „aus den Fugen geriet“.
Fassaden „HL 23 birgt viele optische Effekte in sich. Neben der Tatsache, dass es nach oben hin an Volumen zunimmt, erscheint es dank seiner Vorhangfassaden auch schlanker als es wirklich ist“, betont Neil Denari. Er fährt fort: „Die Glasfassaden bestehen aus vorgefertigten Elementen, bei denen 3, 4 oder 5 Glasscheiben vorab in einem Stahlrahmen zusammengesetzt worden sind statt einzeln vor Ort montiert zu werden. So können die Elemente geschosshoch spannen.“ Um die Vertikalität in der gläsernen Nord- und Südfassaden noch zu verstärken, sind die horizontalen Stöße der Glaselemente schwarz während die vertikalen aluminiumfarben hell hervortreten. In Verbindung mit der Glasbedruckung dort, wo sich die Tragstruktur befindet, erhält das Gebäude einen leichten, offenen Charakter, der den statischen, soliden Mauerwerksfassaden der umgebenden Gebäude entgegenwirkt. Dazu meint der Architekt: „Wir wollten dem Gebäude eine starke Form geben aber mit Materialien, die sehr leicht wirken.“ Besonders hervorzuheben ist die Ostfassade, nicht nur durch die skulpturale Abwicklung vom kleineren zum größeren Volumen, sondern auch durch ihre Materialität. Parallel zur Highline verlaufend ist diese Fassadenseite eher geschlossen mit einigen wenigen gezielt eingesetzten Lochfenstern. Was fasziniert, ist ihre Verkleidung: Die Hülle besteht aus 3D-Blechpaneelen mit einer Größe von jeweils 3,80 m x 0,50 m. Diese Blechelemente sind eine Spezialanfertigung einer argentinischen Metallbaufirma, die die Paneele ähnlich wie in der Autoindustrie nach den Angaben der Architekten in einer Spezialpresse für „Großformate“ produziert hat. Die dreidimensionale Struktur der Bleche in Kombination mit den Fugen ergeben eine Metallhaut, in der sich der Himmel und die Atmosphäre je nach Wetterlage ganz unterschiedlich widerspiegeln. „Das kann keine Stein- oder Mauerwerksfassade“, lautet Neil Denaris Fazit. „Deshalb schockiert HL 23 und überrascht zugleich auf eine eigene, elegante Weise.“ Neil Denari lobt die gute Zusammenarbeit mit den Fachplanern und Firmen. Allen gemein sei die Begeisterung, Neues zu erproben und zu entwickeln, besonders auch im Bereich der Vorfertigung.
Interior und Impressionen
Durch die Gebäudeform hat jede der Wohnungen einen geringfügig anderen Grundriss. Die Größen variieren von 175 bis zu 250 Quadratmetern. Noch sind nicht alle Wohnungen bewohnt, obwohl diese Wohnungen nicht nur von der Einrichtung sondern auch vom ökologischen Design höchsten Standard bieten. So wurde das Gebäude komplett auf das Gold-Level des amerikanischen LEED-Standards ausgerichtet. Im Erdgeschoss gibt es keine Wohnung, hier befindet sich neben der Eingangslobby noch ein Ladengeschäft. Mittlerweile passieren viele Menschen das Gebäude vor allem auf dem neuen Abschnitt der Highline. „Was mich besonders bewegt, ist, wie Menschen auf das Gebäude reagieren“, beobachtet der Architekt. „Für viele ist unser Bau der Blickfang des neuen Promenadenabschnitts. Das Gebäude ist wie ein Schauspieler in einem Theaterstück, die Kulisse bilden Promenade und Stadt. Ich selbst finde es sehr spannend, wie unterschiedlich das Gebäude wirken kann – aus der Ferne und aus der Nähe. Steht man einige Blocks entfernt, wirkt das Gebäudeprofil sehr markant. Wenn man sich den Gebäude nähert, entfaltet es sich plötzlich – wie Origami (japanische Papierfaltkunst). Wenn man sich nur einen Meter in die eine oder andere Richtung am Gebäude vorbei bewegt, scheint es sich komplett zu verändern. Am besten gefällt mir die Südost-Ecke im Bereich des dritten Obergeschosses. An dieser Stelle löst die Struktur und die Fassade all das, was hier an Komplexität aus den oberen Ebenen zusammentrifft.“
Susanne Kreykenbohm, Hannover
(ca. 7800 Zeichen inkl. Leerzeichen)
