In der Schwebe
Sportgebäude Babenhäuser Landstraße, Frankfurt a.M.
Am Rande des Frankfurter Stadtwaldes schwebt ein aufgeständerter Holzriegel zwischen den Baumkronen. Kostengünstig erschlossen, überrascht das Umkleidegebäude einer Sportanlage im Innenraum mit hochwertigen Materialien und klugen Details. In der Hauptrolle: Holz und Sichtbeton.
Der Sportplatz kurz vor dem Ortseingang von Sachsenhausen ist ein idealer Treffpunkt für Läufer. An Sommerwochenenden sammeln sich hier bis zu 200 Jogger und starten direkt in den Frankfurter Stadtwald. Bis vor wenigen Jahren mussten sich die Sportler noch in einem maroden Flachbau aus den 1960er-Jahren duschen. Die Decken waren niedrig, die Energiebilanz katastrophal, die weiß verputzte Fassade infolge starker Setzungen von Rissen durchzogen. Heute schwebt zwischen mächtigen Eichen ein mit rötlichem Zedernholz verkleideter Riegel. Zwei Sockel aus grün durchgefärbtem Beton stemmen den Neubau empor. Im Sockelgeschoss duschen die Läufer und ziehen sich um. Im Obergeschoss machen sich die Ballsportler frisch – drei Fußballteams und eine Hockeymannschaft. Über einen Steg erreichen sie den 3 m höher gelegenen Sportplatz.
Ein Asphaltteppich markiert die regengeschützten Wartebereiche unter dem Holzriegel. Unter dem weit auskragenden Gebäudekopf finden im Sommer Vereinsfeiern statt, eine seitliche Betonmauer dient als Sitzbank. Die Kopfseite des Betonsockels kann man fast vollständig öffnen: Hinter anthrazitfarbenen Stahltüren verbirgt sich ein Tresen mit Zapfanlage.
Über eine offene Stahltreppe gelangen die Ballsportler vom benachbarten Parkplatz ins Obergeschoss. Dort empfängt sie eine bühnenartige, aus dem Bauvolumen herausgeschälte Loggia. Ein überdachter Laubengang erschließt die Umkleiden. Hier trifft man sich, wartet aufeinander oder verfolgt bei schlechtem Wetter das Spiel auf dem Sportplatz. Das Stahlgeländer ist breit genug, um sich bequem abzustützen oder ein Getränk abzustellen. Laubengang, Loggia und der inmitten von Baumkronen schwebende Holzriegel verzahnen das Gebäude mit der Natur. „Uns war wichtig zu zeigen, dass es sich um ein Gebäude für Sport unter freiem Himmel handelt“, sagt Harald Heußer, Architekt und Fachbereichsleiter im Frankfurter Hochbauamt, das den Bau entworfen und bis ins Detail geplant hat. Dank des offenen Laubengangs kommen die Umkleiden ohne innenliegende Flure aus, die beheizt, belichtet und gereinigt werden müssen. „Besonders die Reinigung ist bei Sportgebäuden oft teuer, da die Flure schnell verdrecken“, betont Heußer. „Außerdem brauchen wir keine Windfänge und nur die Hälfte der Türen.“ Das durch die außenliegende Erschließung gesparte Geld wurde in praktische Details und robuste, dauerhafte Materialien investiert. In den Boden eingelassene Gummimatten zum Abtreten der Stollenschuhe halten Schmutz aus den Umkleiden. Die Materialien werden von außen nach innen immer edler: erst Stahl, dann Betonwerkstein für den Laubengang, innen schließlich pflegeleichter Polyurethan-Boden. Duschen, Spiegel und Türen sind aus hochglanzpoliertem, kratzfestem Edelstahl. „Das Material hält es aus, wenn mal ein Spieler nach einem verlorenen Match aus Frust dagegentritt“, sagt Architekt und Werkplaner Klaus Desoi.
Holz und Beton
Am stärksten jedoch bestimmen Holz und Beton den Innenraum. Eine 16 cm dicke, unverkleidete Massivholzdecke aus Fichte überspannt die Umkleiden ebenso wie Laubengang und Loggia. Mittig platzierte Sichtbetonkerne bündeln Duschen und WCs. Die glatte, makellose Oberfläche des Betons zeigt weder Kiesnester noch Rüttelspuren. Um nicht zu kalt zu wirken, wurde der Beton mit einer in wolkigen Strichen aufgetragenen Lasur geweißelt. Das nackte Material wird durch indirektes Licht geschickt beleuchtet: Lichtleisten hinter Spiegeln und Garderobenhaken betonen einzelne Wandpartien und leuchten die Umkleidebereiche aus. Bodeneinbaustrahler setzen die über beide Geschosse durchgesteckten Betonkuben in Szene.
Beim Duschen oder Umziehen blicken die Sportler durch ein Fensterband in Augenhöhe direkt in die Baumkronen. Es verläuft fast über die gesamte Gebäudelänge, Fichtenholzbretter fassen die Laibungen ein. Die Stützen, die das Lichtband im Abstand von 1,8 m durchschneiden, sind schwarz lackiert und vom Glas abgerückt, so dass sie kaum auffallen. Die schmalen Lüftungsflügel lassen sich nur kippen.
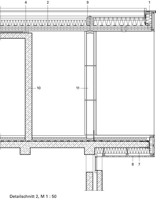
Konstruktion und Fassade
Die beiden Ortbetonsockel im Erdgeschoss sind mit einer Kerndämmung versehen und mit bis zu 6,5 m langen, grün durchgefärbten Betonfertigteilen verkleidet. Die Ecken wurden auf Gärung geschnitten, so dass man keine Stirnseiten sieht. Das Obergeschoss besteht aus vorgefertigten Holzrahmen, die innerhalb von vier Tagen aufgebaut wurden. Die Holzständer sind mit 20 cm Innendämmung verfüllt, innen mit OSB-Platten ausgesteift und mit Gipskartonplatten verkleidet. Von außen wurden sie zu drei Seiten mit unbehandelter kanadischer Rotzeder beplankt. Mit der Zeit wird es eine gleichmäßig braunschwarze Patina bekommen. Die 9 cm breiten Holzplanken sind als Fasebretter verbaut, so dass eine flächige, ruhige Struktur entsteht. Durch die Überlappung halten sich die Bretter untereinander und müssen pro Brett lageweise mit nur einer Schraube befestigt werden. So können Spannungen im Holz bei Feuchteaufnahme oder Trocknung minimiert werden. Lediglich zum Laubengang hin wurden die Umkleiden mit großformatigen, rot lasierten DWD-Holzfaserplatten verkleidet. Die offene Massivholzdecke besteht aus fünf kreuzweise verleimten Fichtenlagen, die unter Pressdruck zu großformatigen Massivholzelementen verleimt und verschraubt werden. Die bis zu 9,26 x 3,24 m großen Kreuzlagenholz (KLH)-Tafeln wurden mittels CNC-Fräsen im Werk zugeschnitten, verleimt und verschraubt, „just in time“ auf der Baustelle angeliefert und per Baukran montiert. „Die monolithische Bauweise der Decke hat den Vorteil, dass wir ohne Dampfbremsen auskommen“, sagt Klaus Desoi. Zudem reguliert das Holz das Raumklima, indem es Luftfeuchte aufnimmt oder abgibt. Damit keine Fugen und Risse an der Oberfläche entstehen, muss die Luftfeuchtigkeit im Gebäude immer zwischen 40 und 60 % liegen. Den Luftwechsel übernehmen dezentrale Lüftungseinheiten. Die kompakten Lüfter saugen verbrauchte Warmluft über den Duschen ab und ersetzen sie durch vorgewärmte Frischluft, die über Türen und Zuluft-Öffnungen im Dach zugeführt wird. Die Lüftungsrohre verlaufen nicht an der Decke, wo sie die Raumhöhe einschränken und den Blick auf die Holzoberfläche versperren würden; sie sind versteckt in den Betonkernen.
