Eine Stegplatte einmal anders gedacht
Schulmensa in Berlin
Die Stegplatte kennt jeder. Doch wer als ein Architekt kommt schon auf die Idee die Holzstege zu zerschneiden und in einer wilden Anordnung unter eine Deckenplatte zu kleben? Was dem Statiker Kopfschmerzen bereitet, wurde in Berlin beim Neubau einer Schulmensa gewagt, nämlich eine ungerichtet konzipierte Astwerkdecke, die komplex und zugleich verspielt ihren Naturraum ins Innere zu übertragen versucht.
Im Umbruch ist heute die Institution Schule, von der Halbtags- zur Ganztagsschule, vom Ort starren Frontalunterrichts hin zu freieren Formen der Wissensaneignung. Neue Räume sind verlangt, die nicht allein einer Funktion, sondern im Laufe des Tages für verschiedene Zwecke genutzt werden können. Die Erweiterung um eine Mensa war in Berlin für die Schule auf dem Tempelhofer Feld Anlass mehr als nur einen Raum für das Mittagessen zu erhalten.
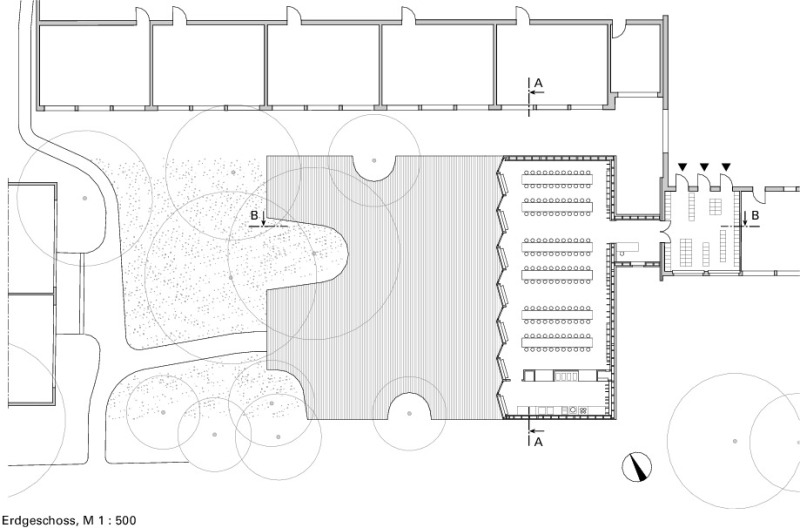
Auf dem ersten Blick allzu simpel erscheint die Lösung, die in einem eingeladenen Wettbewerb Ludloff+Ludloff Architekten fanden. Sie implantierten eine unscheinbare Box , 21,30 m lang und 10,5 m breit, die über einem nun als Garderobe genutzten Schaltraum an die bestehende Fügelanlage der Schule andockt. Doch diese Box, die in nicht einmal drei Monaten errichtet wurde, birgt viele Überraschungen. Während die anderen Architekten ihre Erweiterungen im Zentrum der Schule zu positionieren suchten, wählten Laura und Jens Ludloff bewusst den Rand des Geländes, um das Neue auch von der Straße sichtbar zu machen. Damit erweiterten sie die Schule um einen vierten Flügel, der sich nicht nur in die Kubaturen des Vorhandenen einfügte, sondern auch ihren Pavilloncharakter inmitten von viel Grün auf eine unnachahmlichen Weise neu interpretierte.
Inspiriert von der mächtigen Baumkrone einer alten Eiche, die dort stand und erhalten blieb, schlugen die Architekten einen Holzständerbau vor, der die vorgefundenen Formen der Natur in seinen Innenraum fortsetzen sollte. Zur Eiche und einem kleinen Hof hin öffnet sich nun eine Längsseite ihrer Box überraschend freizügig mit einer großen gefalteten, vollverglasten Pfosten-Riegel-Konstruktion, die transparent und mit vielen Öffnungen jegliche Grenzsituation vermissen lässt, Innen und Außen vielfältig zusammenbindet. Doch der Clou ist das „Astwerk“, frei über eine Wand und die Decke verstreute Stegbretter, die über den Kindern zu schweben scheinen und sie gleichzeitig schützend umfangen – und damit die mächtige Baumkrone des Außenraums nahezu bruchlos im Innenraum fortführt.
Was atmosphärisch überzeugt, drängt jedoch zugleich dem bauversierten Besucher viele Fragen auf? Sind die Stege nur Dekor oder tragen sie wirklich die Decke? Wie kann dies funktionieren, wenn die Stege derart zerschnitten und wild angeordnet wurden? Und wer neben den Architekten machte dies möglich?
Raffinierte Ingenieursleistung
Dank der Ingenieuren von ARUP/Berlin, mit denen Jens Ludloff bereits als früherer Juniorpartner von Sauerbruch+Hutton bei Gebäuden zusammen gearbeitet hatte, fand sich eine Lösung für das ungewöhnliche Ansinnen der Architekten, einmal eine Stegplatte anders zu konzipieren. Doch nicht nur das, die Lösung musste auch kostengünstig sein, denn sehr schmal war das Baubudget, das eigentlich solche Experimente nicht erlaubte. Für Dekor war einfach kein Geld da, was die Aufgabe für die Ingenieure äußerst interessant machte.
Was wirklich keine einfache Aufgabe war, da hier zur wilden bzw. zur Spannrichtung zumeist schrägen Anordnung der Stegbretter unterschiedlicher Länge sehr komplexe Torsions-, Biegungs- und Über-greifungskräfte auf einer überspannenden Länge von 9,5 m zu überdenken waren. Und um diesen noch ein weiteres Handicap hinzufügen, wünschten sich die Architekten zudem noch von den Ingenieuren, dass sie vor den Auflagern enden sollten. Die einfachste Lösung wäre sicherlich gewesen, die Platten in solchen Stärken zu dimensionieren, dass sie selbsttragend und dann das „Astwerk“ nur als Dekor darunter zu kleben gewesen wäre. Doch der Ehrgeiz war geweckt, der die Beteiligten nach kurzen Erwägungen alternativer Konstruktionen in Stahl oder Beton schnell wieder zum Holzbau zurückkehren ließ. Dabei durfte die „wilde Stegplatte“ keinesfalls mehr als das 1,5 fache einer konventionellen Stegplatte kosten.
Mit einer 51 mm dicken Kerto-Q-Platte und Stegen aus KVH 6 cm x 28 cm fand man die Lösung, die allen Ansprüchen genügte. Die Plattenbreite definierte dabei die Elementbreite, während dessen ihre Länge zwischen 0,8 und 3,8 m nahezu frei wählbar blieb. Um ihren „natürlichen“ Charakter nicht zu mindern, entschied man sich gegen sichtbare Verbindungen von Platten und Stegen. Mit einer Schraubpressverklebung nach DIN 1052:2008-12 wurden die Stege auf eine angerissene Oberfläche geklebt und noch zur Sicherheit rückseitig verschraubt. An den Stegenden wurden so entsprechend der hochzuhängenden Querkraft zudem noch je 6 Vollgewindeschrauben mit 300 mm Länge eingebracht. Im Werk mit Robotern vorgefertigt, wurde dann die Dachplatte vormontiert angeliefert und auf den Holzständerbau gesetzt. Und um weitere Kosten zu sparen, wurde danach auf die Holzoberflächen noch eine farbneutrale, staubbindende Lasur aufgebracht, während sich zur Abdichtung der Dachhaut eine aufgespritzte Lackierung fand, die normalerweise nur zur Abdichtung von Tankanlagen benutzt wird.
Freundlich ist nun der Charakter des Mensaraumes, der warm und geschützt, aber zugleich auch exponiert wirkt. Optimal erfüllt das „Astwerk“ an Wand und Decke die Funktion der Schallregulierung und –diffusion. In Verbindung mit etwas Farbe entlang der Längswand, einem Lindgrün, welches als ein Pendant zum Grün des Außenraums verstanden werden will, fühlt man sich hier wohl und geborgen. Die Küche, die nur zum Aufwärmen der Speisen genutzt wird, ist dagegen fast unscheinbar an einer Stirnseite als eine Box in der Box eingestellt. Zum Außenraum, zur Eiche und einem neuen Holzdeck, das ihren mächtigen Baumstamm umfängt, öffnet und orientiert sich der Raum, der nahezu schwellenlos in den Außenraum überleitet ganz entgegen der Schulräume, welche die Schüler bislang hier gewohnt waren. Entsprechend intensiv haben sie schon den Raum für sich erobert, der jenseits der Speisezeiten für die unterschiedlichsten Veranstaltungen genutzt wird, der auch schon als Aula, Naturkunderaum oder Schlafraum hergehalten hat. Claus Käpplinger, Berlin
