Die Kraft orthogonaler Geometrie
Hochschulbibliothek und Medienzentrum in Leipzig
Am südlichen Ende von Leipzigs großer Nord-Süd-Achse, der Karl-Liebknecht-Straße, haben Léon Wohlhage Wernik Architekten eine Zentralbibliothek und ein Medienzentrum für die Hochschule für Technik, Wirtschaft und Kultur (HTWK) gebaut, die architektonisch und städtebaulich erstaunlich viel leisten.
Morphing, Bubbles und Blobs sind heute in vielen Architekturgazetten angesagt, die auf dem Weg zu einer neuen Architektur allzu oft den Nutzer und den Stadtraum vergessen. Ist der Event verrauscht, stellt sich dann zumeist Ernüchterung ein, was das spektakuläre Raumobjekt im Alltag leisten kann. Dass die Möglichkeiten einer modernen Architektur auf orthogonaler Geometrie längst noch nicht völlig ausgeschöpft sind, beweisen nun zwei neue Bauten im Süden Leipzigs auf bestechende Weise. Am südlichen Ende von Leipzigs großer Nord-Süd-Achse, haben Léon Wohlhage Wernik Architekten eine Zentralbibliothek und ein Medienzentrum für die Hochschule für Technik, Wirtschaft und Kultur (HTWK) gebaut, die architektonisch und städtebaulich erstaunlich viel leisten.
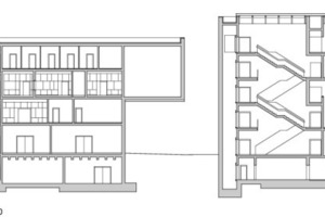
Stadtreparatur leitete die Architekten bei ihrer Lösung eines kleinen Ensembles- zwei Quader, die auf vielfältige Weise zurück springen und aufgestaffelt sind, die räumlich aufs Intimste mit ihrem Stadtraum verschränkt wurden. Weit aus der Straßenflucht des HTWK-Hauptgebäudes ragt ihre Bibliothek an der Straßenecke der Gustav-Freytag-Straße vor und stellt doch dabei nur die alte gründerzeitliche Straßenflucht wieder her. Dramatisch kragen beide Bauten über ihren Haupteingängen im dritten Geschoss bis zu 11 m aus, um innerhalb des strengen Urbanismus des 19.Jahrhunderts eine neue beschirmte Stadtpassage durch den perforierten Blockrand zu genieren. Wozu der zweite Bau des Medienzentrum mit seiner Auskragung um 90 Grad verdreht zur Bibliothek positioniert wurde, wo nun ein kleiner Vorplatz einen neuen Weg ins Innere des Blockgevierts weist.
Erstaunlich leicht, ja fast schwebend generieren sich die Volumina ihrer beiden Ortbetonbauten, die eine vorgehängte Hülle aus perlmuttfarbener Glaskeramik von Bisazza erhielten, welche vorgefertigt auf Sto-Platten montiert wurden. Erstaunlich entmaterialisiert erscheinen sie ganz besonders in der Morgen- und Abendsonne, wenn das Tageslicht über die Fassaden streift. Doch auch ihre Glasöffnungen tragen zur Entmaterialisierung bei. Mit Ordnung und Abweichung spielen sie und scheuen auch nicht vor Maßstabssprüngen zurück. So weist genau an der Straßenecke in luftiger Höhe ein zweigeschossiges Schaufenster zur Leipziger Innenstadt, welches seltsam Blau in den Stadtraum hinaus leuchtet.
Dort befindet sich einer von drei zweigeschossigen Lesesälen, welche nicht nur die verschiedenen Etagen der Bibliothek, sondern auch den Binnenraum mit dem Stadtraum aufs Engste verknüpfen. Doch in ihren Genuss kommt man erst nach einer ganz eigenen „promenade architecturale“, die über ein Platz ähnliches Foyer in einen fast versteckten, haushohen Treppenraum führt, der die Vertikale und Diagonale innerhalb des massiven Mantels Beton zelebriert. Obwohl erstaunlicherweise die Bibliothek nicht besprinklert ist, öffnet sich dieser Treppenraum jeder Etage, ist integraler Teil eines einzigartigen Umlauf-Raumkonzepts, das den Lesern kurze Wege zu den Büchern und immer wieder neue Raumerfahrungen ermöglicht. Auf verschiedenen Höhen implantiert sind dazu die zweigeschossigen Lesesäle, die ganz unterschiedliche Farben und Orientierungen zum Stadtraum erhielten, die konzentrierte Kontemplation mit neuer Stadtwahrnehmung anbieten.
So leicht die Gebäude außen wirken, so beschützt können sich ihre Nutzer nun im Innern fühlen, wo den nicht immer gelungenen Sichtbetonoberflächen der Klassen SB3 und SB4 helle Holzeinbauten und leichtes Mobiliar beigesellt wurden.
Chamäleon Beton
Wie verwandlungsfähig Beton sein kann, erfährt man erst in den zweigeschossigen Lesesälen, die eine leichte Capam Deco-Lasur Matt PG2 in Aubergine, Nepalgelb und Blau L46 erhielten. Die verschiedenen Farben verleihen den Räumen nun nicht nur sehr unterschiedliche Raumqualitäten, sondern bringen auch ganz unterschiedliche Strukturen des Materials Beton hervor.
Erst geätzt, gewaschen und mit einem Schleifvlies behandelt, wurde die Lasur stets mit einer Bürste aufgetragen. Doch je nach Farbton treten nun andere Strukturen hervor, erscheint die Oberfläche feinperlig bei Aubergine oder körnig bei Blau. Nicht elegant, eher expressiv ist das Ergebnis, das die Räume leuchten lässt, aber dabei auch viel von dem Amalgan Beton erzählt, dessen Konsistenz sehr unterschiedlich hervortritt. Trotz vieler Farbproben zuvor gelang nicht dabei nicht jeder Raum. Verwaschen und schwach erscheint so das Gelb, das in der Probe noch so stark erschien. Dem Experiment tut dies keinen Abbruch. Viel wurde hier gewagt und ist gelungen, nämlich ganz neue, nutzerfreundliche Räume integral mit der Stadt verbunden, die bar jedes Spektakels entdeckt werden wollen. Claus Käpplinger, Berlin
