Der Turmbau zu Wien Bahnorama, Ausstellungshalle und Aussichtsturm, Wien/A
Um das Umsteigen zu erleichtern und den großen Eisenbahnknoten leistungsfähiger zu machen, plante man in Wien schon länger einen Zentralbahnhof. Bis 2014 entsteht auf 109 ha Fläche des früheren Südbahnhofs das neue Herzstück des österreichischen Schienenverkehrs. Anders als in Stuttgart formierte sich gegen das Mega-Projekt kein nennenswerter Protest der Bürgerinnen und Bürger. Das dürfte auch an der offensiven Kommunikationspolitik der Österreichische Bundesbahn (ÖBB) und der Stadt Wien liegen: Ein Bestandteil dieser Info-Kampagne ist das „Bahnorama“, ein Informationszentrum zur Bahnhofsbaustelle mit angeschlossenem Aussichtsturm, der es ermöglicht, die Großbaustelle aus der Vogelperspektive zu betrachten.
Unweigerlich erinnert man sich an die knallrote, auf Stelzen über dem Leipziger Platz in Berlin schwebende „InfoBox“, in der sich bis Anfang 2001 jedermann über die Großbaustelle Potsdamer Platz informieren konnte. Mit der roten Kiste machte das damals noch unbekannte Büro Schneider + Schumacher aus Frankfurt Furore. Auch in Wien kamen junge Architekt/innen zum Zug. Das vom Büro Rahm Architekten jüngst fertig gestellte Besucherzentrum ist ebenfalls eine kompakte, kunststoffummantelte Box, doch der zugehörige Aussichtsturm erinnert mit seinem filigranen, sich zur Spitze in eine freie Komposition auflösende Strebwerk eher an Entwürfe der sowjetischen Konstruktivisten aus den 1920er Jahren.
Stahl statt Holz?
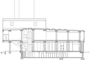
Entgegen der Wettbewerbsvorgaben des Bauherrn ÖBB trennten die Architekten Ausstellungsräume und Aussichtspunkt und verlegten diesen in einen 67 m hohen, Turm. Über einen schmalen Steg ist das zweigeschossige Ausstellungsgebäude mit seinen knapp 850 m² Nutzfläche mit dem Turm verbunden. Die Jury ließ sich von dieser Konzeptänderung überzeugen.
Hans Schartner, Partner von Rahm Architekten hatte sich in den Kopf gesetzt, den Panorama-Turm – ausgerechnet für die Aussicht auf die Eisenbahn – in Holzbauweise zu errichten. „Holz ist exakt zu berechnen, leicht zu demontieren und zu recyceln und außerdem ein heimischer Rohstoff“ – so Schartners Argumente. Bei den Tragwerksplanern, die er anfragte, erntete er allerdings nur Kopfschütteln. Sie empfahlen ihm eine Stahlkonstruktion. Schließlich traf der Architekt auf Hans Matzinger, einen als Tragwerksplaner ausgebildeten Zimmermann. Matzinger bestärkte die Architekten in ihrer Idee, dass ein öffentlich begehbarer Holzturm im Rahmen der geltenden Sicherheitsnormen und Bauvorschriften realisierbar sei. Die konstruktive Idee wurde nach gewonnenem Wettbewerb von Matzinger gemeinsam mit den Architekten und dem renommierten Ingenieurbüro RWT plus GmbH zur Umsetzung geführt.
Turm auf 6 x 6 Stützen
Auf rechteckigem Grundriss stehend wird der Turm an der Längsseite von drei und an seiner Schmalseite von zwei Stützen getragen. Genauer handelt es sich um Stützenbündel – in der Sprache der Zimmerleute eine mehrschnittige Holzkonstruktion; was bedeutet, dass sich jede der 6 Stützen aus sechs Einzelstützen von 20 x 20 cm zusammensetzt. Es handelt sich um verleimte Holzträger (Brettschichtholz) aus unbehandeltem Fichtenholz. Untereinander verbunden sind die Stützen an jedem Turmgeschoss durch ebenfalls mehrgliedrige Querriegel. An den Knoten sind Stützen und Riegel mit 16 mm starken Stahlbolzen verschraubt. Weil sie auch den Luftraum zwischen den Stützen durchqueren, sind sie bis zu einen Meter lang. Die Verteilung der Lasten auf zahlreiche Einzelstützen führte zu dem filigranen Anblick des Baus und der konstruktiven Knotenpunkte.
Der vollständige Tragwerkskorpus reicht bis auf die Höhe der Aussichtsplattform auf 40,6 m, auf der sich der Ausstieg der zwei Panoramalifte befindet. Auf den 26 folgenden Metern bis zur Spitze verjüngt sich die Konstruktion immer weiter, bis nur noch ein einzelnes, frei in die Luft ragendes Stützenpaar bleibt.
Sockelgeschoss aus Stahl
Das unterste Turmsegment führte man in Stahl aus – sechs 300 x 500 mm starken Kastenhohlprofilen mit 20 mm Wandstärke, an der Oberkante zusammengehalten von einem Kranz aus doppelten HEB 300 Trägern bilden den sogenannten Stahltisch. Grund für die Ausführung des Sockels in Stahl waren neben dem Vandalismusschutz die nahtlos herstellbare konstruktive Einheit mit der ebenfalls stählernen Verbindungsbrücke zwischen Ausstellungshalle und Turm. Sie liegt auf dem Stahltisch auf.
Die Stützen sind mit einer 1 m dicken Fundamentplatte aus Stahlbeton verdübelt. Das Fundament wiederum verfügt über 12 m lange duktile Pfähle, die die Lasten in den Untergrund ableiten. Für den Turm musste Erdbebensicherheit nachgewiesen werden, die bedeutsamere Beanspruchung für die Konstruktion stellt jedoch der Wind dar – was aber Dank des dehnbaren Materials Holz kein wirkliches Problem darstellt. Die Schwingungsempfindlichkeit des Turms ist minimal: Auch bei starkem Wind, erklärt Projektarchitektin Ursula Musil nicht ohne Stolz, schwingt der Turm auf der Plattform maximal 2 cm aus.
Herausforderung Brandschutz
Eine größere Herausforderung bildeten die Brandschutzauflagen. Ein mehr als sechzig Meter hoher Turm aus unbehandeltem Holz inmitten dicht bebauter Stadtviertel – das weckte die Skepsis der Genehmigungsbehörde. Ingenieure und Architekten konnten sie zerstreuen mit einer präzisen Berechnung des im Brandfall für die Stützenquerschnitte von je 20 x 20 cm zu erwartenden „Abbrandes“. Im Ergebnis konnte nachgewiesen werden, dass die Stützen dem Feuer mindestens 30 Minuten standhalten (Österreich: R 30). Ein Drehkreuz mit Lichtschranke am Turmzugang stellt zudem sicher, das nur 30 Personen gleichzeitig auf dem Turm sind. Auch die stählerne Sockelzone trug dazu bei, die Genehmigungsbehörde zu überzeugen. Holz wäre auch hier machbar gewesen, „Aber wir wollten keine Ein-Meter dicken Stützen, sagt Architektin Musil. „Wenn Holz, dann soll es eine leichte, aufgelöste Konstruktion sein.“
Die Unterkonstruktion für die Panoramalifte bilden je zwei HEA 400-Träger, die alle 10 m mit dem Turm verbunden sind. Sie tragen die vertikalen Lasten der Aufzüge unabhängig vom Turm ab, die horizontalen Kräfte der offen geführten Liftkabinen nimmt das Holztragwerk auf.
Auch das Ausstellungszentrum entwarf man als Holzskelettbau auf der Basis von 20 x 20 cm starke Brettschichthölzer – hier in Bündeln von 4 Hölzern für die Stützen und 3 für die Träger. Decken wie Wände des Obergeschosses bestehen aus Holz-Sandwichelementen mit OSB-Platten als Außenhülle.
Frank Peter Jäger, Berlin
Weiterer passender Artikel: Schönbuch-Turm bei Herrenberg: Leuchtturmprojekt aus Holz
Baudaten
Fachplaner
Bauklimatik GmbH, Wien/A
