Das neue Leben eines sozialistischen Kleinods
Café Moskau in Berlin
				
				
								
				
							Ein Kleinod der DDR-Moderne, Josef Kaisers Café Moskau wurde in Berlin von HSH-Hoyer Schindele Hirschmüller vor dem Verfall bewahrt. Sensibel modernisiert und erweitert, verwandelte sich das Gebäude in ein gehobenes Konferenz- und Veranstaltungszentrum, das bereits erfolgreich Stars und Sternchen der Filmbranche anzog.
Die DDR-Moderne hat einen schweren Stand. Viele Bauten verschwanden in den letzten Jahrzehnten, mussten Platz machen für wirtschaftlich effizientere Neubauten, die selten die architektonische Qualität ihrer Vorgänger erreichten. Während in Ostdeutschland eine Renaissance der Altbausubstanz vergangener Jahrhunderte anbrach, wurden und werden die prominentesten Gebäude der DDR zur Disposition gestellt. So verschwanden in Ost-Berlin das Stadion der Weltjugend von Selman Selmanagic oder das Ahornblatt Ulrich Müthers. Nur ein Torso blieb auch vom Werk des bedeutenden DDR-Architekten Josef Kaisers übrig, dessen Hotel Berolina und DDR-Außenministerium abgerissen wurden, während viele andere seiner Bauten stark verändert wurden. Umso erstaunlicher ist nun die Wiedergeburt eines seiner Meisterwerke, des Café Moskau, das zu Zeiten der DDR einen sehr illustren Klang besaß. Im 1964 eröffneten HO-Vorzeigebetrieb Café Moskau konnten sich Ost und West für sozialistische Verhältnisse in einem selten exklusiven Rahmen treffen und näher kommen. Umsorgt von 160 Mitarbeitern genossen damals bis zu 800 Gäste Gastronomie und Unterhaltung auf höchstem Niveau. Der Wiedervereinigung folgte 1995 die Schließung des Gebäudes und Jahre des Leerstandes. Nur temporär erwachte später das Gebäude zu neuem Leben als cooler Ort der Berliner Clubszene, für Filmdrehs oder Zeitgeist-Veranstaltungen. Doch Investoren fanden sich lange Zeit nicht, die ein seriöses Konzept für das 5 000 m2 große Gebäude vorweisen konnten. Erst mit Nicolas Berggruen, dem Sohn des Galeristen Heinz Berggruen, veränderte sich die Lage, der 2007 das Café Moskau von der Treuhand Liegenschaftsverwaltung kaufte, um es zu einem multifunktionalen Konferenz- und Veranstaltungszentrum zu verwandeln. Zur Wiederherstellung des ursprünglichen Gebäudes erklärte sich Heinz Berggruen bereit, das noch 1982 erheblich umgebaut worden war und damals schwere hölzerne Wandverkleidungen und Porzellan-Wandschmuckelemente, große Klima- und Küchenanlagen auf jeder Etage erhalten hatte. Der Raumfluss, seine Grazilität und Leichtigkeit sollte das Gebäude in enger Abstimmung mit den Auflagen des Denkmalschutzes zurück erhalten. Wozu die Nicolas Berggruen Three Properties vier renommierte Architekturbüros zu einem Gutachterverfahren einlud, aus dem das Berliner Büro HSH Hoyer Schindele Hirschmüller als Sieger hervorgingen.
Das Konzept
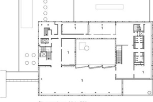
Für die neue Nutzung als Konferenz- und Veranstaltungszentrum essentiell war eine variable Bespielung der Räume, neue Erschließungswege und konfliktlose Raumteilungen. Unbefriedigend war hierzu der 80er Jahre Zustand mit nur zwei Eingängen. Indem HSH einen alten Eingang der 60er Jahre revitalisierten und zusätzlich eine völlig neue Eingangssituation mit einem Erweiterungsbau östlich des Bestands an der Karl-Marx-Allee schufen, wurden die Eingangsmöglichkeiten in das Haus verdoppelt. Gegenüber den alten, an der Westseite konzentrierten Eingängen schufen sie mit ihrem neuen Eingangsgebäude im Osten eine völlig neue Erschließung mit einem zweiten Haupttreppenhaus innerhalb der vorgefundenen Kubaturen.
Alle Küchen, Wandverkleidungen und technischen Anlagen der 80er Jahre wurden entfernt oder wie im Falle des früheren Grusinischen Zimmers mit seinen wertvollen Wandelementen aus Meißner Porzellan an anderer Stelle als Spolien bewahrt. Minimiert wurden auch alle dienende Räume, wodurch mit nun 3 367 m2 die Mietflächen für Veranstaltungen nahezu verdoppelt werden konnten, die dank der vermehrten Eingangssituationen zeitgleich bis zu vier getrennte Events aufnehmen können. Dabei gelang es HSH so geschickt die neuen mobilen Raumteiler in das Gebäude zu integrieren, dass dessen äußere Erscheinung davon nicht berührt wird. Allein im Erdgeschoss musste für die veränderte Nutzung vom Café zum Konferenzraum ein sehr schmerzhafter Eingriff getätigt werden. Für eine bessere Raumsicht wurde dort eine Betonstützenreihe von der Mitte des Raums zur Außenseite versetzt, wo nun ihre Stützen weit sichtbar in der Fensterachsenmitte stehen. Als unschätzbarer Glücksfall kann die Freiräumung des Gebäudes von allen überflüssigen Einbauten der 80er Jahre angesehen werden. Es verschwanden alle lästigen Brüstungskonvektoren, Wandverkleidungen und die futuristische, aber gewaltig lastende Entlüftungsanlage im ersten Obergeschoss, die den Raumfluss von Kaisers grazilen 60er Jahre Pavillon-Architektur stark beeinträchtigt hatten. Äußerst kompakt integrierten HSH die neue Besprinklerung, Glasfaserverkabelung und Luftkonvektoren in die Decken, ohne deren ursprünglichen Querschnitte spürbar zu verändern. Unsichtbar ist der neue Vollwärmeschutz der Massivbauteile und die Wärmerückgewinnung im Untergeschoss.
Nicht geringen Anteil an der Wiederherstellung der Kontinuität von Außen und Innen hatte auch der sehr gelungene Ersatz der 4 m hohen Glasfelder durch neue Sicherheits-Wärmeschutzgläser im gleichen Format. Obwohl sich ihr Durchmesser von 26 mm auf 40 mm erhöhte, gelang es den Architekten sie in die alten, grazilen Profile ihrer Aluminiumrahmen einzusetzen. Nur zum Atrium und Straßen abgewandt, kamen neue kleinere Lüftungs- und Entrauchungsflügel hinzu, die mit ihren schwarzen Rahmen eher unscheinbar sind.
Raumteile und Materialitäten
Anstelle von schweren Holzvertäfelungen, Elasten und Plasten traten in Anlehnung an die ursprüngliche Gestaltung lichte Eschenholzlammellendecken und Eichenstabparkett, die wieder den Raum angenehm ausfließen lassen und im Atrium-Pavillon wieder ungestört den Blick zum Vis-à-Vis ermöglichen. Ein neuer heller Crémeton für die Wände und Stützen lässt das reduzierte Betonskelett hervortreten, das gelungene Spiel Josef Kaisers mit Raum und Licht, Last und Tragen. Umso stärker treten nun wieder die Zierelemente des Gebäudes hervor, mit dem ehemals die sozialistische Einheit mit der großen Brudernation gefeiert wurde. Das überdimensionale Mosaikwandbild „Aus dem Leben der Völker der Sowjetunion“ von Bert Heller, das sich von der Eingangsaußenseite ins Gebäude hinein zieht, ist wieder im Inneren präsenter wie auch die von der UDSSR geschenkte 1:1 Nachbildung des Sputniks, die von Beginn an den Haupteingang markierte.
Eine dunkle Spiegelglasfassade markiert den neuen zweiten Haupteingang, die noch ihrer endgültigen Fertigstellung mit einer LED-Hinterleuchtung entgegen harrt. Erstaunlich zurückhaltend zeigt sich dort die Architektur von HSH, die sonst eher für sehr überraschende Baukörper und Transformationen bekannt sind. Hier beschränkten sie sich jedoch sehr klug auf die Aufwertung des Vorhandenen, auf transistorische Räume ohne markante Plastik. Gläsern und transparent ist so ihr Fahrstuhl im neuen Treppenhaus, reduziert „corbusianisch“ die Decke zum Untergeschoss, die sich allein als Implantate verstehen. Zum „Lust-Wandeln“ lädt das Gebäude wieder ein, zum Erleben von lichten Raumfolgen, die sich von der Straße über das Atrium zu einem Rosengarten erstrecken, aber auch zu einer erweiterten Unterwelt eines Tanzclubs überleiten, wo die alten DDR-Wandsessel wieder aufgearbeitet wurden. Nicht jedes Detail gelang dabei den Architekten. Manche Fuge oder die neuen Bodenplatten im Atrium wirken noch unvollendet, aber ihr Konzept überzeugt durchweg, das ein Kleinod vor Verfall und Abriss bewahrte.




 
						 
						 
						 
						 
						 
						 
						 
						 
						 
						 
						 
						 
						 
						 
						 
						 
						 
						 
						 
						 
						 
						 
									

 
									 
									 
									 
									