Art déco trifft green buildingFenster-Sonderkonstruktion an privater Hochschule, Hamburg
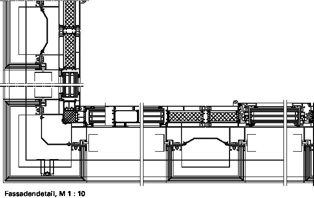
Als „unmögliches Haus“ beschreibt, nicht ohne Stolz, Architekt Carsten Friedrich vom Büro Hörter+Trautmann (Planung, Ausführungsplanung) das Gebäude des Handelskammer Innovations Campus (HKIC) in Hamburg. Grund dafür ist der Standort direkt über einem U-Bahntunnel und Gleisanlagen, die eine schwingungsentkoppelte Gründung erforderlich machten. Für alle Planer eine Herausforderung. Der Neubau wurde nach den Entwürfen von Johann von Mansberg Architekten errichtet; seine an Art Déco angelehnte Fassade ist durch Glas und hinterleuchtete Lisenen geprägt. Entwurf und Green-Building-Konzept wurden unter Einsatz von Fensterbändern der Serie WICLINE von Wicona umgesetzt. Die komplette Fassade des HKIC-Neubaus erreicht Uw-Werte unter 1,0 W/(m²K). Fensterelemente inklusive Flügel und Verglasung wurden bei der Heinrich Würfel Metallbau GmbH & Co. Betriebs KG in Sontra vorgefertigt. Auf Basis der Serie WICLINE 75 wurden verschiedene Aluminium-Sonderprofile für den Neubau des HKIC entwickelt, um den architektonischen Vorgaben gerecht zu werden. In die hinterleuchteten Lisenen sind auch die Führungen für den Sonnenschutz integriert.
