Besse und Grifte, Edermünde
In der nordhessischen Gemeinde Edermünde stehen zwei Kindertagesstätten in den Ortsteilen Besse und Grifte, die sich nur durch ihre Farbgebung unterscheiden. Entworfen wurden sie vom Berliner Büro Löser Lott Architekten in Zusammenarbeit mit Lukas Droste Architekten, Kassel. Das identische Raumprogramm sieht sieben Gruppenräume auf zwei Geschossen vor. Sie alle sind durch einen Laubengang verbunden, der zugleich den Zugang zum Außengelände ermöglicht.
Sowohl der Kindergarten in Besse (rot) als auch in Grifte (grün) zeichnet sich durch die Verschiebung der drei stehfalzgedeckten Dächer sowie eine Fassade aus Trapezblech aus
Foto: Löser Lott Architekten
Am nordöstlichen Ortsrand von Besse fügt sich der zweigeschossige Kindergartenbau mit seiner rosaroten Farbgebung in eine überwiegend von Feldern geprägte Landschaft ein. Direkt an die Grundstücksgrenze gesetzt wird so ein großes, klar gefasstes Außengelände möglich.
Die Kindergärten in Besse (rot) und in Grifte (grün) zeichnen sich durch die Verschiebung der drei stehfalzgedeckten Satteldächer
sowie eine Fassade aus Trapezblech aus
Foto: Löser Lott Architekten
Analog zum identischen, grüngehaltenen Pendant im 4 km entfernten Grifte macht das langgezogene Gebäude Anleihen bei landwirtschaftlichen Nutzbauten: Satteldachvolumen, lineare Gliederung und die bewusste Einfachheit der Kubatur orientierten sich an Strukturen wie Scheunen oder Hofbauten. Die leichte Verschiebung der drei Baukörper reagiert dabei auf die Maßstäblichkeit der angrenzenden Umgebung mit ihren Einfamilienhäusern und erzeugt zugleich differenzierte Außenräume.
Auf den Laubengängen zeigt die Unterseite der überkragenden Dächer die unverkleidet verbauten OSB-Platten
Foto: Simone Bossi
Die Entscheidung für einen Zwillingsbau mit identischem Raumprogramm resultiert aus den vergleichbaren Grundstückssituationen. Beide Gebäude sind nahezu deckungsgleich ausgeführt, was planerische Effizienz ermöglichte (und damit Einfluss auf die Kosten gehabt haben dürfte). Lediglich eine Außentoilette in Besse, bedingt durch den angrenzenden öffentlichen Mehrgenerationenspielplatz, stellt eine minimale Abweichung dar. Die Zweigeschossigkeit ermöglicht eine kompakte Bauweise und maximiert gleichzeitig die nutzbaren Freiflächen.
Räumliche Anordnung und Sichtachsen
Der Zugang erfolgt über einen kleinen Vorplatz. Ein überdachter tiefer Eingangsbereich führt in ein Foyer, das als Treffpunkt für Eltern und Kinder in der Bring- und Abholphase konzipiert ist. Gemeinsam mit einem angrenzenden Raum ist das Foyer mit öffenbaren Wänden multifunktional angelegt und ermöglicht so flexible Nutzungen, auch über den Kita-Betrieb hinaus – etwa als Wahllokal mit eigenem Eingang zum Garten hin.
Das Grün bzw. Rot der Fassade findet sich auch im Innenraum wieder
Foto: Simone Bossi
Bereits im Eingangsbereich wird das Leitmotiv eines komplexen „Raumgewebes“ (Löser Lott) erfahrbar: Geschlossene Gruppenräume wechseln sich mit offenen Bereichen ab. Diese räumliche Verzahnung setzt sich über beide Geschosse fort und wird durch die offenen Sichtachsen verstärkt. Fenster in Türen und Wänden sollen Orientierung und Kommunikation unter Erzieherinnen und Kindern fördern.
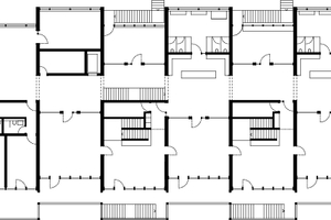
Im Erdgeschoss sind die drei Gruppenräume der jüngeren Krippenkinder untergebracht, jeweils mit direktem Zugang ins Freie sowie den zugehörigen Schlaf- und Sanitärbereichen. Im Obergeschoss befinden sich die vier zusammenschaltbaren Räume für die älteren Kinder mit erhöhten Nischen als Rückzugsflächen, ergänzt durch Sonderräume wie Werkstatt, Musik- und Snoezelraum (Entspannungsraum). Die Erschließungsflächen sind dabei bewusst nicht als reine Verkehrsflächen ausgebildet, sondern dienen den Kindern zusätzlich zu ihrem Gruppenraum als Spielzonen. Türen können offenstehen, Räume ineinander übergehen – ein Konzept, das Flexibilität im Alltag und jedem Kind Rückzug wie Gemeinschaft ermöglicht.
Die räumliche Organisation unterstützt das pädagogische Konzept: Sichtbeziehungen zwischen Funktionsbereichen, etwa zwischen Wickel- und Spielzonen, erleichtern die Betreuung.
Verankerung des Stahlbaus im Holztragwerk
Warme Holzatmosphäre: Im Innenraum - hier der Spielflur - prägen unverkleidete Schallschutzelemente das Erscheinungsbild
Foto: Simone Bossi
Die Außenwände sind in Holzständerbauweise errichtet und durch eine Fassade aus grün bzw. rot lackiertem Stahltrapezblech ergänzt. Eine zentrale Rolle spielt der breite außenliegende Laubengang, der als Stahlkonstruktion ausgeführt ist und dem Holzbaukörper vorsteht. Er fungiert als Pufferzone, bietet Witterungsschutz und schafft nicht nur bei schlechtem Wetter zusätzliche Aufenthaltsqualitäten für die Kinder.
Der in die Dachfläche integrierte Betondeckel musste exakt positioniert werden, da nachfolgende Holzelemente direkt darauf aufbauen
Foto: Löser Lott Architekten
Das Zusammenspiel unterschiedlicher Konstruktionen stellte dabei für die Architektinnen und Architekten eine Herausforderung während der Bauphase dar. Aufgrund der geringen Toleranzen mussten Knotenpunkte exakt geplant und ausgeführt werden. Teilweise wurden Details, die üblicherweise von ausführenden Firmen entwickelt werden, bereits in der Planung durch den Statiker vorweggenommen. Dies betraf insbesondere komplexe Anschlussbereiche, etwa die Verankerung des Stahlbaus im Holztragwerk, damit sich dieser „wie ein Schlüssel“ (Lukas Droste) in die Holzbau-Struktur einfügt.
Durchlaufende Fuge im Innern
Gerade bei einer formal reduzierten Architektur gewinnen Maßtoleranzen, Fugenverläufe oder Materialanschlüsse an gestalterischer Relevanz. Eine durchlaufende, 1 cm breite Schattenfuge zwischen Wand und Decke, die sich durch das gesamte Gebäude zieht, erforderte eine exakte Ausführung. Da der Holzbau weitgehend ohne ausgleichende Schichten auskommt – der Rohbau ist zugleich Ausbau –, konnten Unebenheiten nicht kaschiert werden.
Axonometrie, o. M.
Dach:
Trapezblech lackiert,
Oberlichter für Mittelzone,
Solar/Photovoltaik
Fassade:
Trapezblech lackiert (teilweise perforiert),
im Laubengang als kalte Konstruktion,
Geschossebenen:
Holzsystembau, vorfabriziert auf Massivdecke
Gartenanschluss:
parallel zum Haus (überdachter Bereich),
Anschluss zum Laubengang
Die Trennung der Brandabschnitte erfolgt über eine Stahlbetonwand, die sich bis in die Dachkonstruktion fortsetzt. Ein in die Dachfläche integrierter Betondeckel verhindert den Brandüberschlag, ohne von außen sichtbar zu sein. Die exakte Positionierung dieses Bauteils war entscheidend, da nachfolgende Holzelemente direkt darauf aufbauen.
Integration der Haustechnik
Auch die Haustechnik stellte besondere Anforderungen. Die begrenzten Aufbauhöhen im Fußboden erforderten genau abgestimmte Durchführungen und eine Aufteilung in Schotten, insbesondere im Bereich der Leitungsführung durch tragende Bauteile. Die Koordination zwischen Tragwerk, Ausbau und TGA war hier maßgeblich.
Lageplan Besse, M 1 : 2 000
Im Innenraum prägen sichtbare, weiß lasierte Holzbalken sowie unverkleidete Schallschutzelemente an den Wänden das Erscheinungsbild und die Akustik. Die Materialität bleibt bewusst einfach und robust, gleichzeitig warm und haptisch erfahrbar.
Auch das von Löser Lott vorgegebene Farbkonzept orientiert sich an landwirtschaftlichen Vorbildern und unterstützt die Lesbarkeit der Raumstruktur. Ergänzungen wie nachträglich installierte Sicherheitsnetze vor den offenen Treppenaufgängen durch die Kita-Betreiber oder Verdunkelungen der Sichtfenster in den Türen zu den Schlafenszeiten der Kleinsten zeigen, dass sich die Gestaltung im Betrieb immer weiterentwickelt.
Längsschnitt 1 : 500
Maßgebliche Dächer
Die leichte Verschiebung der drei stehfalzgedeckten Satteldächer wirkt sich nicht nur auf das äußere Erscheinungsbild aus, sondern strukturiert auch die innere Raumfolge. Offene und geschlossene Bereiche werden räumlich differenziert, Belichtungssituationen variiert. Die tiefen Dachüberstände ermöglichen großzügige, bodentiefe Fenster zur Gartenseite hin und sorgen für eine gleichmäßige Belichtung der Innenräume.
Detail, M 1 : 15
1 Dachaufbau
50 mm Stehfalz-Profiltafel
200 mm Wärmedämmung (WLG 040)
5 mm Bitumendachbahn nach DIN 52128
25 mm OSB-Platte
30 mm Distanzholz (Ausgleichsschicht)
260 mm Stahlträger U 260
2 Schneefang
3 Traufwinkel
4 Notüberlauf
5 Rinne, mind. 0,5 Grad Gefälle, begehbar
6 Rinnenblech mit angekantetem Rinneneinlaufblech, Dachrinnenheizung
7 Wärmedämmung WLG 023, druckfest
8 Sicherheitsrinne, ausgeklebt
9 Dachaufbau
50 mm Stehfalz-Profiltafel
200 mm Wärmedämmung (WLG 035)
5 mm Bitumendachbahn nach DIN 52128
22 mm OSB-Platte
280 mm offene Holzbalkendecke GL 28c, e = 625 mm
dazwischen Akustikpanel
10 Zink-Fallrohr DN 80
Das Bauen für Kinder verlangt eine besondere Aufmerksamkeit – nicht trotz, sondern gerade wegen der scheinbaren Einfachheit. Die Räume müssen intuitiv verständlich, die Materialien robust und zugleich mit allen Sinnen erfahrbar sein. Die Konstruktion wird sichtbar und damit Teil der pädagogischen Erfahrung. Gleichzeitig erfordert die Kombination aus Holzbau, offenen Raumkonzepten und den gestalterischen Ansprüchen eine sorgfältige Planung und Ausführung bis ins Detail. Die Projekte in Besse und Grifte verdeutlichen, dass gerade in dieser Klarheit die größte Herausforderung liegt: im exakten Zusammenspiel aller Teile, damit Architektur entsteht, die sowohl funktional als auch atmosphärisch überzeugt. ⇥Heide Teschner/DBZ
Löser Lott Architeken
Johannes Lott, Katharina Löser www.loeserlott.de
Foto: Löser Lott Architekten
Lukas Droste Architekten
Lukas Droste
www.lukasdroste-architekten.de
Foto: Moritz Bernoully
wird die Struktur auf einen kindgerechten Maßstab heruntergebrochen.«
Projektdaten
Objekt: Kita Grifte (grün), Baunatalweg 2,
34295 Edermünde
Kita Besse (rot), Auf der Sandkaute 30,
34295 Edermünde
Bauherrin: Gemeinde Edermünde
Nutzerin: Gemeinde Edermünde/evangelische Kirche
Architektur (LP 1-5)/Generalunternehmung/Innenarchitektur: Löser Lott Architekten GmbH, Berlin, www.loeserlott.de
Team: Katharina Löser, Johannes Lott, Elena Masla, Lea Leist, Phillip Bötof, Phillipa König
Architektur (LP 6-9)/Bauleitung: Lukas Droste Architekten, Kassel, www.lukasdroste-architekten.de
Bauzeit: 02.2021-07.2023
Grundstücksgröße: 6 933 m²
Grundflächenzahl: 0,1
Geschossflächenzahl: 0,3
Nutzfläche gesamt: 1 483 m2
Nutzfläche: 1 065 m2
Technikfläche: 32 m²
Verkehrsfläche: 386 m²
Brutto-Grundfläche: 2 125 m²
Brutto-Rauminhalt: 8 115 m3
Baukosten, gesamt brutto (KG 100-600 nach DIN 276): 5,5 Mio. €
Fachplanung
Tragwerksplanung: EHS beratende Ingenieure für Bauwesen GmbH, www.ehs-ingenieure.de
TGA-Planung/Lichtplanung/ Energieplaner/Haustechnik: PlanerAllianz GmbH & Co. KG,
www.planerallianz.de
Fassadentechnik: ST Fassaden, www.st-fassaden.de
Landschaftsarchitektur: LPH 1-5: studio polymorph, Landschaftsarchitekten Bernard & Waszczuk PartGmbB, www.studio-polymorph.com, LP 6-9: Riehl Bauermann + Partner Landschaftsarchitekten,
www.rbplusp.de
Brandschutz/Wärmeschutz/Schallschutz/Akustik: RBS Ingenieure PartG mbB, www.rbs-ingenieure.de
Energie
Primärenergiebedarf: 127,25 kWh/m²a nach EnEV
U-Werte Gebäudehülle:
Außenwand: U = 0,18 W/(m²K)
Fassade: U = 0,163 W/(m²K)
Bodenplatte: U = 0,21 W/(m²K)
Dach: U = 0,17 W/(m²K)
Fenster: Uw = 0,86 W/(m²K)
Verglasung: Ug = 0,5 W/(m²K)
Hersteller (Auswahl)
Beleuchtung: Trilux, Bega
Bodenbeläge/Fliesen: Pandomo, forbo marmoleum, Agrob Buchtal
Dach: Kalzip Stehfalz System
Fassade/Außenwand: Laukin
Fenster: Seufert-Niklaus GmbH, Velux
Heizung: Ochsner Wärmepumpen
Möbel: Holz Specht, Haba
Sanitär: Geberit, Schell
Sonnenschutz: Warema
Türen/Tore: Schörghuber
